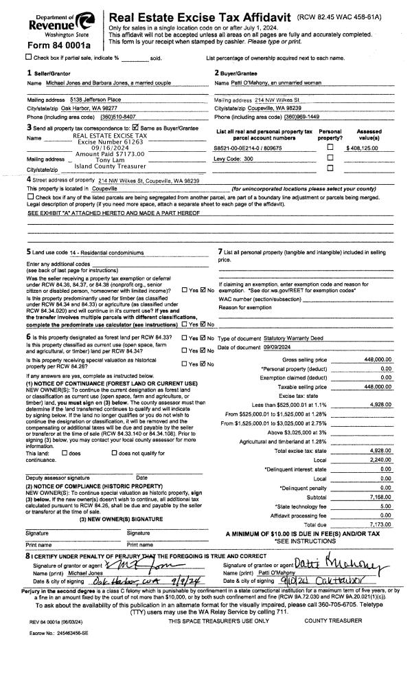
Property
Account |
| Property ID: | 323581 | Abbreviated Legal Description: | MOSHIERS ADD LOT 1 BLK 1 |
| Geographic ID: | S7520-00-01001-0 | Agent Code: | |
| Type: | Real | | |
| Tax Area: | 100 - APPRAISER-OH Schl Dist, in OH | Land Use Code | 11 |
| Open Space: | N | DFL | N |
| Historic Property: | N | Remodel Property: | N |
| Multi-Family Redevelopment: | N | | |
| Township: | | Section: | |
| Range: | |
Location |
| Address: | 1474 NE 6TH AVE OAK HARBOR, WA 98277 | Mapsco: | |
| Neighborhood: | Cycle 1 | Map ID: | 257 |
| Neighborhood CD: | 1 |
Owner |
| Name: | MOORE, TORREN J | Owner ID: | 273827 |
| Mailing Address: | ANYELA MOORE 946 MISSISSIPPI AVE SE WASHINGTON, DC 20032-5901 | % Ownership: | 100.0000000000% |
| | | Exemptions: | |
Taxes and Assessment Details
Values
| (+) Improvement Homesite Value: | + | $0 | |
| (+) Improvement Non-Homesite Value: | + | $220,246 | |
| (+) Land Homesite Value: | + | $0 | |
| (+) Land Non-Homesite Value: | + | $180,000 | |
| (+) Curr Use (HS): | + | $0 | $0 |
| (+) Curr Use (NHS): | + | $0 | $0 |
| | | -------------------------- | |
| (=) Market Value: | = | $400,246 | |
| (–) Productivity Loss: | – | $0 | |
| | | -------------------------- | |
| (=) Subtotal: | = | $400,246 | |
| (+) Senior Appraised Value: | + | $0 | |
| (+) Non-Senior Appraised Value: | + | $400,246 | |
| | | -------------------------- | |
| (=) Total Appraised Value: | = | $400,246 | |
| (–) Senior Exemption Loss: | – | $0 | |
| (–) Exemption Loss: | – | $0 | |
| | | -------------------------- | |
| (=) Taxable Value: | = | $400,246 | |
Taxing Jurisdiction
| Owner: | MOORE, TORREN J | | |
| % Ownership: | 100.0000000000% | | |
| Total Value: | $400,246 | | |
| Tax Area: | 100 - APPRAISER-OH Schl Dist, in OH |
| CF | Conservation Futures | 0.0316035091 | $400,246 | $400,246 | $12.65 | | |
| CEM1 | Cemetery #1 | 0.0040320932 | $400,246 | $400,246 | $1.61 | | |
| COH | City of Oak Harbor | 2.3001546061 | $400,246 | $400,246 | $920.63 | | |
| OAKBOND | City of Oak Harbor BOND | 0.1926904192 | $400,246 | $400,246 | $77.12 | | |
| HOBOND | Hospital BOND | 0.1910887512 | $400,246 | $400,246 | $76.48 | | |
| HOGEN | Hospital GEN | 0.3902502903 | $400,246 | $400,246 | $156.20 | | |
| CE | County Current Expense | 0.3708482477 | $400,246 | $400,246 | $148.43 | | |
| ISLANDEMS | Hospital GEN (EMS) | 0.5000000000 | $400,246 | $400,246 | $200.12 | | |
| LIB | Library Sno-Isle GEN | 0.3153421757 | $400,246 | $400,246 | $126.21 | | |
| NWHIDPRMT | P & R N Whidbey GEN | 0.2004466701 | $400,246 | $400,246 | $80.23 | | |
| SCH201MO | School 201 Enrichment | 1.8559231640 | $400,246 | $400,246 | $742.83 | | |
| ST | State School | 1.3035497053 | $400,246 | $400,246 | $521.74 | | |
| ST2 | State School Part 2 | 0.8169543533 | $400,246 | $400,246 | $326.98 | | |
| | Total Tax Rate: | 8.4728839852 | | | | | |
| | | | | Taxes w/Current Exemptions: | $3,391.23 | | |
| | | | | Taxes w/o Exemptions: | $3,391.23 | | |
Improvement / Building
| Improvement #1: | RESIDENTIAL | State Code: | Y | 1145.0 sqft | Value: | $220,246 |
| Bathrooms: | 2 | Bedrooms: | 3 | | Ceiling: | DRYWALL PAINTED | Exterior Wall/Cover: | WOOD SIDING | | Floor Covering: | HARDWOOD/CARP 80-20 | Floor Structure: | WOOD W/SUBFLOOR | | Foundation: | CONCRETE BLOCKS | Heating: | RADIANT FLOOR | | Interior Finish: | DRYWALL PAINT | Plumbing Fixture Cnt: | 8 | | Roof Slope: | 5" IN 12" | Roof Structure/Cover: | CJ ASPHALT |
|
| | Type | Description | Class CD | Sub Class CD | Year Built | Area |
| | BAS | BASE/MAIN FLOOR | 3 | 0 | 1957 | 1145.0 |
| | OP1 | OPEN PORCH SLAB | 3 | 0 | 1957 | 313.8 |
| | OP4 | OPEN PORCH W/CEILING-ROOF | 3 | 0 | 1957 | 20.0 |
| | AGR | ATTACHED GARAGE | 3 | 0 | 1957 | 400.0 |
| | UTY | STORAGE/UTILITY | 3 | 0 | 1957 | 176.0 |
Sketch
Property Image
Land
| 1 | 14 | SQ (08001-12000) | 0.0000 | 0.00 | 0.00 | 0.00 | 1.00 | $180,000 | $0 |
Roll Value History
| 2026 | N/A | N/A | N/A | N/A | N/A |
| 2025 | $220,246 | $180,000 | $0 | $400,246 | $400,246 |
| 2024 | $223,252 | $170,000 | $0 | $393,252 | $393,252 |
| 2023 | $208,219 | $170,000 | $0 | $378,219 | $378,219 |
| 2022 | $191,273 | $160,000 | $0 | $351,273 | $351,273 |
| 2021 | $168,688 | $125,000 | $0 | $293,688 | $293,688 |
| 2020 | $164,596 | $100,000 | $0 | $264,596 | $264,596 |
| 2019 | $117,994 | $140,000 | $0 | $257,994 | $257,994 |
| 2018 | $118,398 | $125,000 | $0 | $243,398 | $243,398 |
| 2017 | $116,862 | $110,000 | $0 | $226,862 | $226,862 |
| 2016 | $127,174 | $90,000 | $0 | $217,174 | $217,174 |
| 2015 | $79,422 | $70,000 | $0 | $149,422 | $149,422 |
| 2014 | $80,839 | $55,000 | $0 | $135,839 | $135,839 |
| 2013 | $82,257 | $55,000 | $0 | $137,257 | $137,257 |
| 2012 | $83,675 | $65,000 | $0 | $148,675 | $148,675 |
| 2011 | $70,414 | $65,000 | $0 | $135,414 | $135,414 |
| 2010 | $82,129 | $65,000 | $0 | $147,129 | $147,129 |
| 2009 | $86,222 | $87,855 | $0 | $174,077 | $174,077 |
| 2008 | $87,971 | $109,000 | $0 | $196,971 | $196,971 |
| 2007 | $89,671 | $109,000 | $0 | $198,671 | $198,671 |
Deed and Sales History
| 1 | 02/22/2016 | WD | Warranty Deed | MOMBERGER, ROBERT LON | MOORE, TORREN J | | | $227,500.00 | 23268 | 4394644 |
| 2 | 05/15/2008 | WD | Warranty Deed | PETERSON, ERIC A | MOMBERGER, ROBERT LON | | | $205,000.00 | 81258 | 4228939 |
| 3 | 08/22/2003 | WD | Warranty Deed | SULLIVAN, SHAY J | PETERSON, ERIC A | | | $131,500.00 | 33763 | 4072637 |
| 4 | 03/14/2001 | WD | Warranty Deed | BOREEN, ALLEN R | SULLIVAN, SHAY J | | | $111,900.00 | 10824 | 20027336 |
| 5 | 01/01/1974 | TRUSTEED | Trustee's Deed | BIRD, JOHN A | BOREEN, ALLEN R | | | $22,750.00 | 49668 | 0 |
| 6 | 01/01/1900 | OTHER | Other - Misc. Documents | Unknown | BIRD, JOHN A | | | $0.00 | 0 | 0 |
Payout Agreement
| No payout information available.. |