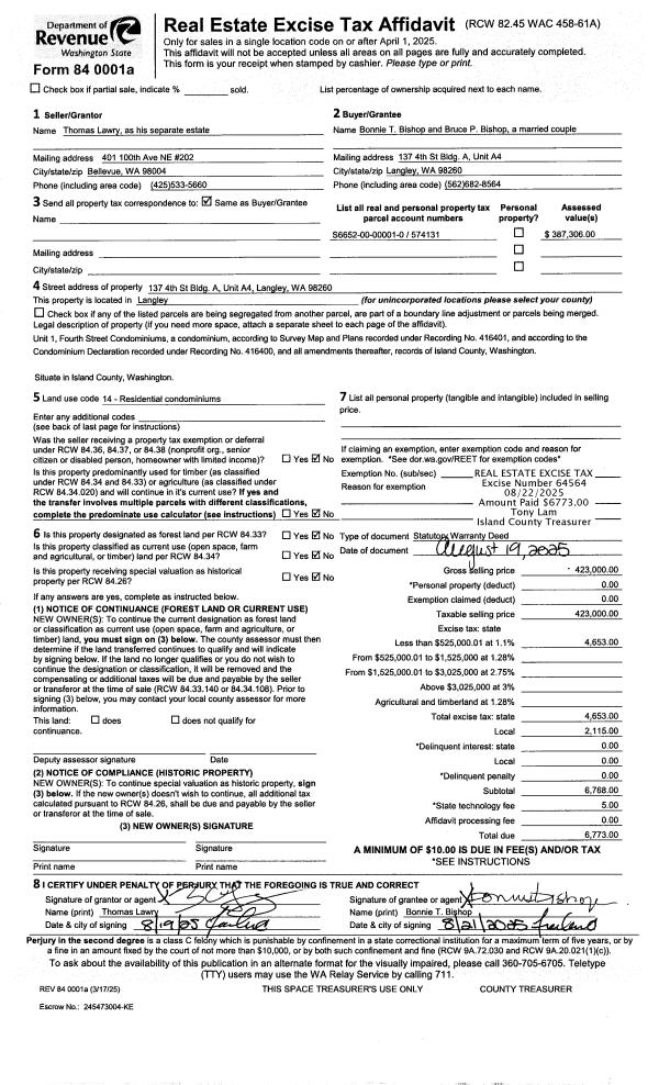
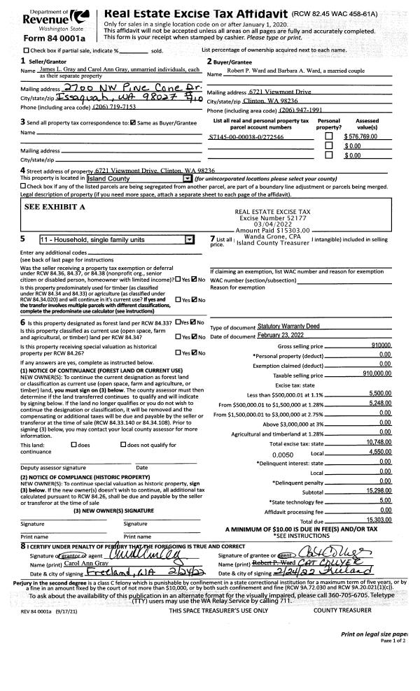
Property
Account |
| Property ID: | 324349 | Abbreviated Legal Description: | MT VW BCH 1 LOT 41 |
| Geographic ID: | S7525-00-00041-0 | Agent Code: | |
| Type: | Real | | |
| Tax Area: | 549 - APPRAISER-Stan/Cam Schl Dist, Special Dist, vacant & 50 acres or less | Land Use Code | 99 |
| Open Space: | N | DFL | N |
| Historic Property: | N | Remodel Property: | N |
| Multi-Family Redevelopment: | N | | |
| Township: | | Section: | |
| Range: | |
Location |
| Address: | | Mapsco: | |
| Neighborhood: | Cycle 5 | Map ID: | 947 |
| Neighborhood CD: | 5 |
Owner |
| Name: | SCHULTZ, STACEY | Owner ID: | 315621 |
| Mailing Address: | CHRISTOPHER DAVID FONTECCHIO 109 NORTH 62ND ST SEATTLE, WA 98103 | % Ownership: | 100.0000000000% |
| | | Exemptions: | |
Taxes and Assessment Details
Values
| (+) Improvement Homesite Value: | + | $0 | |
| (+) Improvement Non-Homesite Value: | + | $0 | |
| (+) Land Homesite Value: | + | $0 | |
| (+) Land Non-Homesite Value: | + | $40,000 | |
| (+) Curr Use (HS): | + | $0 | $0 |
| (+) Curr Use (NHS): | + | $0 | $0 |
| | | -------------------------- | |
| (=) Market Value: | = | $40,000 | |
| (–) Productivity Loss: | – | $0 | |
| | | -------------------------- | |
| (=) Subtotal: | = | $40,000 | |
| (+) Senior Appraised Value: | + | $0 | |
| (+) Non-Senior Appraised Value: | + | $40,000 | |
| | | -------------------------- | |
| (=) Total Appraised Value: | = | $40,000 | |
| (–) Senior Exemption Loss: | – | $0 | |
| (–) Exemption Loss: | – | $0 | |
| | | -------------------------- | |
| (=) Taxable Value: | = | $40,000 | |
Taxing Jurisdiction
| Owner: | SCHULTZ, STACEY | | |
| % Ownership: | 100.0000000000% | | |
| Total Value: | $40,000 | | |
| Tax Area: | 549 - APPRAISER-Stan/Cam Schl Dist, Special Dist, vacant & 50 acres or less |
| CF | Conservation Futures | 0.0316035091 | $40,000 | $40,000 | $1.26 | | |
| EMS1 | Fire & Rescue Dist #1 Camano GEN (EMS) | 0.3677864386 | $40,000 | $40,000 | $14.71 | | |
| CE | County Current Expense | 0.3708482477 | $40,000 | $40,000 | $14.83 | | |
| CR | County Roads | 0.4584763726 | $40,000 | $40,000 | $18.34 | | |
| LCIB | Library Sno-Isle BOND (Camano Island) | 0.0396325772 | $40,000 | $40,000 | $1.59 | | |
| LIB | Library Sno-Isle GEN | 0.3153421757 | $40,000 | $40,000 | $12.61 | | |
| SCH205_401 | School 205-401 Enrichment | 1.2698420524 | $40,000 | $40,000 | $50.79 | | |
| SCH205BOND | School 205-401 BOND | 0.9396497583 | $40,000 | $40,000 | $37.59 | | |
| ST | State School | 1.3035497053 | $40,000 | $40,000 | $52.14 | | |
| ST2 | State School Part 2 | 0.8169543533 | $40,000 | $40,000 | $32.68 | | |
| | Total Tax Rate: | 5.9136851902 | | | | | |
| | | | | Taxes w/Current Exemptions: | $236.54 | | |
| | | | | Taxes w/o Exemptions: | $236.54 | | |
Improvement / Building
Sketch
| No sketches available for this property. |
Property Image
Land
| 1 | HB | HIGH BLUFF | 0.3399 | 14806.04 | 50.00 | 0.00 | 1.00 | $40,000 | $0 |
Roll Value History
| 2026 | N/A | N/A | N/A | N/A | N/A |
| 2025 | $0 | $40,000 | $0 | $40,000 | $40,000 |
| 2024 | $0 | $40,000 | $0 | $40,000 | $40,000 |
| 2023 | $0 | $25,000 | $0 | $25,000 | $25,000 |
| 2022 | $0 | $25,000 | $0 | $25,000 | $25,000 |
| 2021 | $0 | $50,000 | $0 | $50,000 | $50,000 |
| 2020 | $0 | $50,000 | $0 | $50,000 | $50,000 |
| 2019 | $0 | $50,000 | $0 | $50,000 | $50,000 |
| 2018 | $0 | $25,000 | $0 | $25,000 | $25,000 |
| 2017 | $0 | $25,000 | $0 | $25,000 | $25,000 |
| 2016 | $0 | $25,000 | $0 | $25,000 | $25,000 |
| 2015 | $0 | $25,000 | $0 | $25,000 | $25,000 |
| 2014 | $0 | $25,000 | $0 | $25,000 | $25,000 |
| 2013 | $0 | $23,648 | $0 | $23,648 | $23,648 |
| 2012 | $0 | $23,648 | $0 | $23,648 | $23,648 |
| 2011 | $0 | $23,648 | $0 | $23,648 | $23,648 |
| 2010 | $0 | $23,648 | $0 | $23,648 | $23,648 |
| 2009 | $0 | $27,802 | $0 | $27,802 | $27,802 |
| 2008 | $0 | $34,723 | $0 | $34,723 | $34,723 |
| 2007 | $0 | $34,724 | $0 | $34,724 | $34,724 |
Deed and Sales History
| 1 | 02/27/2025 | WD | Warranty Deed | STEPHENS JTWRS, RICHARD K | SCHULTZ, STACEY | | | $788,000.00 | 62692 | 4582775 |
|   | |
| 2 | 01/10/2003 | WD | Warranty Deed | NEUMAN TRUSTEE, MAYNELL | STEPHENS, RICHARD | | | $43,804.00 | 30300 | 4045663 |
| 3 | 03/29/2002 | PRD | Personal Representatives Deed | Unknown | NEUMAN TRUSTEE, MAYNELL | | | $0.00 | 21201 | 4015627 |
Payout Agreement
| No payout information available.. |