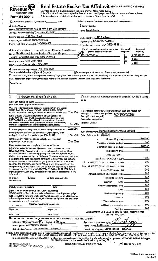
Property
Account |
| Property ID: | 324768 | Abbreviated Legal Description: | MT VW BCH 1 LOT 156 |
| Geographic ID: | S7525-00-00156-0 | Agent Code: | |
| Type: | Real | | |
| Tax Area: | 540 - APPRAISER-Stan/Cam Schl Dist, Special Dist, improved & less than 1 acre | Land Use Code | 11 |
| Open Space: | N | DFL | N |
| Historic Property: | N | Remodel Property: | N |
| Multi-Family Redevelopment: | N | | |
| Township: | | Section: | |
| Range: | |
Location |
| Address: | | Mapsco: | |
| Neighborhood: | Cycle 5 | Map ID: | 947 |
| Neighborhood CD: | 5 |
Owner |
| Name: | OLSEN, STEPHAN A | Owner ID: | 302041 |
| Mailing Address: | CHELSEA M OLSEN 12753 98TH PL NE KIRKLAND, WA 98034 | % Ownership: | 100.0000000000% |
| | | Exemptions: | |
Taxes and Assessment Details
Values
| (+) Improvement Homesite Value: | + | $0 | |
| (+) Improvement Non-Homesite Value: | + | $118,373 | |
| (+) Land Homesite Value: | + | $0 | |
| (+) Land Non-Homesite Value: | + | $9,000 | |
| (+) Curr Use (HS): | + | $0 | $0 |
| (+) Curr Use (NHS): | + | $0 | $0 |
| | | -------------------------- | |
| (=) Market Value: | = | $127,373 | |
| (–) Productivity Loss: | – | $0 | |
| | | -------------------------- | |
| (=) Subtotal: | = | $127,373 | |
| (+) Senior Appraised Value: | + | $0 | |
| (+) Non-Senior Appraised Value: | + | $127,373 | |
| | | -------------------------- | |
| (=) Total Appraised Value: | = | $127,373 | |
| (–) Senior Exemption Loss: | – | $0 | |
| (–) Exemption Loss: | – | $0 | |
| | | -------------------------- | |
| (=) Taxable Value: | = | $127,373 | |
Taxing Jurisdiction
| Owner: | OLSEN, STEPHAN A | | |
| % Ownership: | 100.0000000000% | | |
| Total Value: | $127,373 | | |
| Tax Area: | 540 - APPRAISER-Stan/Cam Schl Dist, Special Dist, improved & less than 1 acre |
| CF | Conservation Futures | 0.0316035091 | $127,373 | $127,373 | $4.03 | | |
| EMS1 | Fire & Rescue Dist #1 Camano GEN (EMS) | 0.3677864386 | $127,373 | $127,373 | $46.85 | | |
| FIRE1 | Fire & Rescue Dist #1 Camano GEN | 1.2502910536 | $127,373 | $127,373 | $159.25 | | |
| FIRE1BOND | Fire & Rescue Dist #1 Camano BOND | 0.1570001679 | $127,373 | $127,373 | $20.00 | | |
| CE | County Current Expense | 0.3708482477 | $127,373 | $127,373 | $47.24 | | |
| CR | County Roads | 0.4584763726 | $127,373 | $127,373 | $58.40 | | |
| LCIB | Library Sno-Isle BOND (Camano Island) | 0.0396325772 | $127,373 | $127,373 | $5.05 | | |
| LIB | Library Sno-Isle GEN | 0.3153421757 | $127,373 | $127,373 | $40.17 | | |
| SCH205_401 | School 205-401 Enrichment | 1.2698420524 | $127,373 | $127,373 | $161.74 | | |
| SCH205BOND | School 205-401 BOND | 0.9396497583 | $127,373 | $127,373 | $119.69 | | |
| ST | State School | 1.3035497053 | $127,373 | $127,373 | $166.04 | | |
| ST2 | State School Part 2 | 0.8169543533 | $127,373 | $127,373 | $104.06 | | |
| | Total Tax Rate: | 7.3209764117 | | | | | |
| | | | | Taxes w/Current Exemptions: | $932.52 | | |
| | | | | Taxes w/o Exemptions: | $932.52 | | |
Improvement / Building
| Improvement #1: | RESIDENTIAL | State Code: | Y | 660.0 sqft | Value: | $118,373 |
| | Type | Description | Class CD | Sub Class CD | Year Built | Area |
| | oGAR | GARAGE | 3 | 0 | 2025 | 1800.0 |
| | LOF | LOFT | 3 | 0 | 2025 | 660.0 |
| | oCAR | CARPORT | 3 | 0 | 2025 | 780.0 |
Sketch
| No sketches available for this property. |
Property Image
Land
| 1 | 12 | SQ (00000-06000) | 0.0000 | 0.00 | 0.00 | 0.00 | 1.00 | $9,000 | $0 |
Roll Value History
| 2026 | N/A | N/A | N/A | N/A | N/A |
| 2025 | $118,373 | $9,000 | $0 | $127,373 | $127,373 |
| 2024 | $0 | $9,000 | $0 | $9,000 | $9,000 |
| 2023 | $0 | $9,000 | $0 | $9,000 | $9,000 |
| 2022 | $0 | $5,000 | $0 | $5,000 | $5,000 |
| 2021 | $0 | $5,000 | $0 | $5,000 | $5,000 |
| 2020 | $0 | $5,000 | $0 | $5,000 | $5,000 |
| 2019 | $0 | $5,000 | $0 | $5,000 | $5,000 |
| 2018 | $0 | $5,000 | $0 | $5,000 | $5,000 |
| 2017 | $0 | $5,000 | $0 | $5,000 | $5,000 |
| 2016 | $0 | $5,000 | $0 | $5,000 | $5,000 |
| 2015 | $0 | $2,000 | $0 | $2,000 | $2,000 |
| 2014 | $0 | $3,000 | $0 | $3,000 | $3,000 |
| 2013 | $0 | $3,000 | $0 | $3,000 | $3,000 |
| 2012 | $0 | $3,000 | $0 | $3,000 | $3,000 |
| 2011 | $0 | $3,000 | $0 | $3,000 | $3,000 |
| 2010 | $0 | $3,000 | $0 | $3,000 | $3,000 |
| 2009 | $0 | $6,000 | $0 | $6,000 | $6,000 |
| 2008 | $0 | $10,500 | $0 | $10,500 | $10,500 |
| 2007 | $0 | $10,500 | $0 | $10,500 | $10,500 |
Deed and Sales History
| 1 | 10/22/2021 | QCD | Quit Claim Deed | OLSEN, PATRICIA M | OLSEN, STEPHAN A | | | $3,000.00 | 50985 | 4534185 |
| 2 | 10/11/2016 | ESTSEPPROP | Establish Separate Property | OLSEN, FRANK A | OLSEN, PATRICIA M | | | $0.00 | 26965 | 4411661 |
| 3 | 01/01/1982 | TRUSTEED | Trustee's Deed | VANASSE, H J | OLSEN, FRANK A | | | $5,200.00 | 20156 | 392346 |
| 4 | 01/01/1900 | OTHER | Other - Misc. Documents | Unknown | VANASSE, H J | | | $0.00 | 0 | 0 |
Payout Agreement
| No payout information available.. |