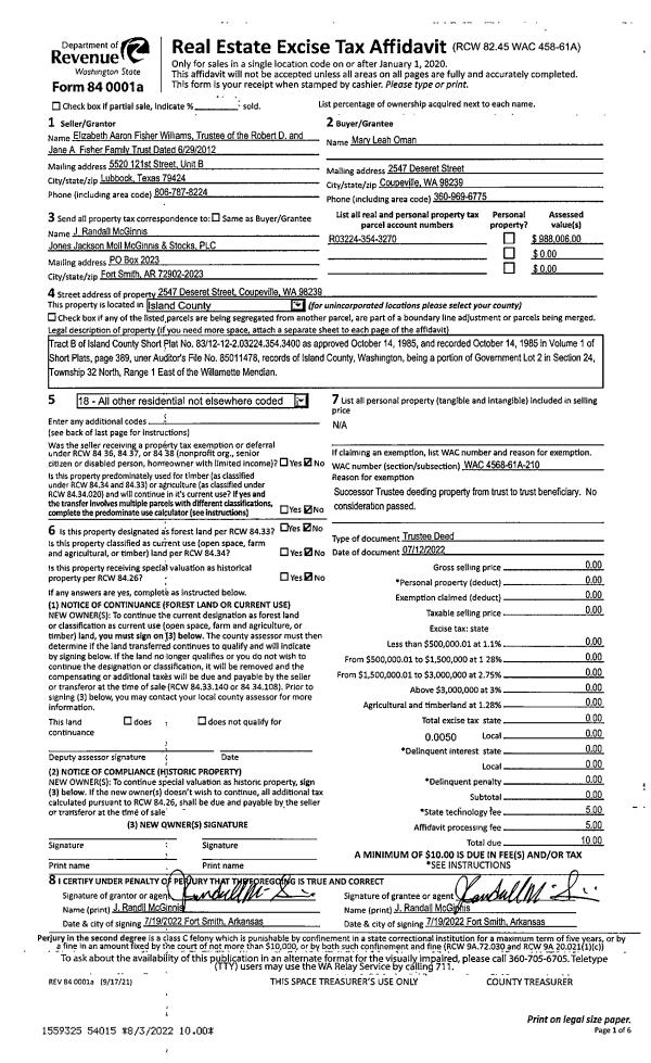
Property
Account |
| Property ID: | 32574 | Abbreviated Legal Description: | 41 - IN E/2 NE NW: PT OF N322.11' OF E/2 NE NW LY E OF ST HWY 20 EX RD EX PT TO ST HWY AF#4089759 |
| Geographic ID: | R13302-511-2340 | Agent Code: | |
| Type: | Real | | |
| Tax Area: | 119 - APPRAISER-OH Schl Dist, outside OH, vacant & 50 acres or less | Land Use Code | 91 |
| Open Space: | N | DFL | N |
| Historic Property: | N | Remodel Property: | N |
| Multi-Family Redevelopment: | N | | |
| Township: | 33 | Section: | 02 |
| Range: | R1 |
Location |
| Address: | | Mapsco: | |
| Neighborhood: | Cycle 6 | Map ID: | 195 |
| Neighborhood CD: | 6 |
Owner |
| Name: | KENNEY, DON F | Owner ID: | 307076 |
| Mailing Address: | LEAH R. LAMBERT 15253 JOSH WILSON ROAD BURLINGTON, WA 98233-9648 | % Ownership: | 100.0000000000% |
| | | Exemptions: | |
Taxes and Assessment Details
Values
| (+) Improvement Homesite Value: | + | $0 | |
| (+) Improvement Non-Homesite Value: | + | $0 | |
| (+) Land Homesite Value: | + | $0 | |
| (+) Land Non-Homesite Value: | + | $170,000 | |
| (+) Curr Use (HS): | + | $0 | $0 |
| (+) Curr Use (NHS): | + | $0 | $0 |
| | | -------------------------- | |
| (=) Market Value: | = | $170,000 | |
| (–) Productivity Loss: | – | $0 | |
| | | -------------------------- | |
| (=) Subtotal: | = | $170,000 | |
| (+) Senior Appraised Value: | + | $0 | |
| (+) Non-Senior Appraised Value: | + | $170,000 | |
| | | -------------------------- | |
| (=) Total Appraised Value: | = | $170,000 | |
| (–) Senior Exemption Loss: | – | $0 | |
| (–) Exemption Loss: | – | $0 | |
| | | -------------------------- | |
| (=) Taxable Value: | = | $170,000 | |
Taxing Jurisdiction
| Owner: | KENNEY, DON F | | |
| % Ownership: | 100.0000000000% | | |
| Total Value: | $170,000 | | |
| Tax Area: | 119 - APPRAISER-OH Schl Dist, outside OH, vacant & 50 acres or less |
| CF | Conservation Futures | 0.0316035091 | $170,000 | $170,000 | $5.37 | | |
| CEM1 | Cemetery #1 | 0.0040320932 | $170,000 | $170,000 | $0.69 | | |
| HOBOND | Hospital BOND | 0.1910887512 | $170,000 | $170,000 | $32.49 | | |
| HOGEN | Hospital GEN | 0.3902502903 | $170,000 | $170,000 | $66.34 | | |
| CE | County Current Expense | 0.3708482477 | $170,000 | $170,000 | $63.04 | | |
| CR | County Roads | 0.4584763726 | $170,000 | $170,000 | $77.94 | | |
| ISLANDEMS | Hospital GEN (EMS) | 0.5000000000 | $170,000 | $170,000 | $85.00 | | |
| LIB | Library Sno-Isle GEN | 0.3153421757 | $170,000 | $170,000 | $53.61 | | |
| NWHIDPRMT | P & R N Whidbey GEN | 0.2004466701 | $170,000 | $170,000 | $34.08 | | |
| SCH201MO | School 201 Enrichment | 1.8559231640 | $170,000 | $170,000 | $315.51 | | |
| ST | State School | 1.3035497053 | $170,000 | $170,000 | $221.60 | | |
| ST2 | State School Part 2 | 0.8169543533 | $170,000 | $170,000 | $138.88 | | |
| | Total Tax Rate: | 6.4385153325 | | | | | |
| | | | | Taxes w/Current Exemptions: | $1,094.55 | | |
| | | | | Taxes w/o Exemptions: | $1,094.55 | | |
Improvement / Building
Sketch
| No sketches available for this property. |
Property Image
Land
| 1 | 32 | AC (03.01-09.99) | 4.2400 | 184694.40 | 0.00 | 0.00 | 1.00 | $170,000 | $0 |
Roll Value History
| 2026 | N/A | N/A | N/A | N/A | N/A |
| 2025 | $0 | $170,000 | $0 | $170,000 | $170,000 |
| 2024 | $0 | $150,000 | $0 | $150,000 | $150,000 |
| 2023 | $0 | $140,000 | $0 | $140,000 | $140,000 |
| 2022 | $0 | $100,000 | $0 | $100,000 | $100,000 |
| 2021 | $0 | $90,000 | $0 | $90,000 | $90,000 |
| 2020 | $0 | $90,000 | $0 | $90,000 | $90,000 |
| 2019 | $0 | $90,000 | $0 | $90,000 | $90,000 |
| 2018 | $0 | $90,000 | $0 | $90,000 | $90,000 |
| 2017 | $0 | $80,000 | $0 | $80,000 | $80,000 |
| 2016 | $0 | $80,000 | $0 | $80,000 | $80,000 |
| 2015 | $0 | $70,000 | $0 | $70,000 | $70,000 |
| 2014 | $0 | $75,000 | $0 | $75,000 | $75,000 |
| 2013 | $0 | $101,250 | $0 | $101,250 | $101,250 |
| 2012 | $0 | $101,250 | $0 | $101,250 | $101,250 |
| 2011 | $0 | $112,500 | $0 | $112,500 | $112,500 |
| 2010 | $348 | $112,500 | $0 | $112,848 | $112,848 |
| 2009 | $1,208 | $112,500 | $0 | $113,708 | $113,708 |
| 2008 | $1,208 | $132,750 | $0 | $133,958 | $133,958 |
| 2007 | $1,208 | $132,750 | $0 | $133,958 | $133,958 |
Deed and Sales History
| 1 | 12/27/2022 | WD | Warranty Deed | APARICIO, JEFF MARCOS | KENNEY, DON F | | | $215,000.00 | 55516 | 4555276 |
| 2 | 02/25/2022 | WD | Warranty Deed | GOLDMAN, ROBERT S | APARICIO, JEFF MARCOS | | | $195,000.00 | 52181 | 4540884 |
| 3 | 11/30/2020 | WD | Warranty Deed | DUBOIS, RALPH D | GOLDMAN, ROBERT S | | | $88,500.00 | 46034 | 4504581 |
| 4 | 01/24/2018 | WD | Warranty Deed | CARGILL, HUGH T | DUBOIS, RALPH D | | | $78,500.00 | 32783 | 4438359 |
| 5 | 12/17/2003 | WD | Warranty Deed | CARGILL, HUGH T | CARGILL, HUGH T | | | $4,519.00 | 40333 | 4089759 |
| 6 | 01/01/1990 | WD | Warranty Deed | RHUDY, DAVID G | CARGILL, HUGH T | | | $15,000.00 | 503 | 90001581 |
| 7 | 08/01/1988 | QCD | Quit Claim Deed | ZYLSTRA, TED D | RHUDY, DAVID G | | | $0.00 | 82654 | 88010012 |
| 8 | 03/01/1987 | WD | Warranty Deed | SHELDON, ROBERT A | ZYLSTRA, TED D | | | $0.00 | 70553 | 87003270 |
| 9 | 09/01/1983 | WD | Warranty Deed | RHUDY, DAVID G | SHELDON, ROBERT A | | | $20,000.00 | 32741 | 415227 |
| 10 | 09/01/1983 | QCD | Quit Claim Deed | LAW, PEOPLE I | RHUDY, DAVID G | | | $0.00 | 62544 | 86011519 |
| 11 | 12/01/1981 | WD | Warranty Deed | CHURCHILL, KATHLEEN M | LAW, PEOPLE I | | | $14,000.00 | 13739 | 391008 |
| 12 | 10/01/1981 | PACD | Purchaser's Assignment | CHURCHILL, GEORGE | CHURCHILL, KATHLEEN M | | | $0.00 | 13562 | 390260 |
| 13 | 01/01/1900 | OTHER | Other - Misc. Documents | Unknown | CHURCHILL, GEORGE | | | $0.00 | 0 | 0 |
Payout Agreement
| No payout information available.. |