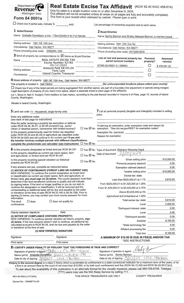
Property
Account |
| Property ID: | 326070 | Abbreviated Legal Description: | MUELLERS REPLAT L12 LOT A |
| Geographic ID: | S7530-01-0000A-0 | Agent Code: | |
| Type: | Real | | |
| Tax Area: | 310 - APPRAISER-Cpvl Schl Dist, outside Cpvl, improved & 1 acre or less | Land Use Code | 11 |
| Open Space: | N | DFL | N |
| Historic Property: | N | Remodel Property: | N |
| Multi-Family Redevelopment: | N | | |
| Township: | | Section: | |
| Range: | |
Location |
| Address: | TWIN LAGOON LN COUPEVILLE, WA 98239 | Mapsco: | |
| Neighborhood: | Cycle 2 | Map ID: | 169 |
| Neighborhood CD: | 2 |
Owner |
| Name: | TOSSEY, MELVIN D | Owner ID: | 116573 |
| Mailing Address: | PO BOX 1131 COUPEVILLE, WA 98239-1131 | % Ownership: | 100.0000000000% |
| | | Exemptions: | |
Taxes and Assessment Details
Values
| (+) Improvement Homesite Value: | + | $0 | |
| (+) Improvement Non-Homesite Value: | + | $1,684 | |
| (+) Land Homesite Value: | + | $0 | |
| (+) Land Non-Homesite Value: | + | $34,500 | |
| (+) Curr Use (HS): | + | $0 | $0 |
| (+) Curr Use (NHS): | + | $0 | $0 |
| | | -------------------------- | |
| (=) Market Value: | = | $36,184 | |
| (–) Productivity Loss: | – | $0 | |
| | | -------------------------- | |
| (=) Subtotal: | = | $36,184 | |
| (+) Senior Appraised Value: | + | $0 | |
| (+) Non-Senior Appraised Value: | + | $36,184 | |
| | | -------------------------- | |
| (=) Total Appraised Value: | = | $36,184 | |
| (–) Senior Exemption Loss: | – | $0 | |
| (–) Exemption Loss: | – | $0 | |
| | | -------------------------- | |
| (=) Taxable Value: | = | $36,184 | |
Taxing Jurisdiction
| Owner: | TOSSEY, MELVIN D | | |
| % Ownership: | 100.0000000000% | | |
| Total Value: | $36,184 | | |
| Tax Area: | 310 - APPRAISER-Cpvl Schl Dist, outside Cpvl, improved & 1 acre or less |
| CF | Conservation Futures | 0.0316035091 | $36,184 | $36,184 | $1.14 | | |
| CEM2 | Cemetery #2 | 0.0095056933 | $36,184 | $36,184 | $0.34 | | |
| FIRE5 | Fire & Rescue Dist #5 C Whidbey GEN | 1.2008080668 | $36,184 | $36,184 | $43.45 | | |
| FIRE5BOND | Fire & Rescue Dist #5 C Whidbey BOND | 0.1400090713 | $36,184 | $36,184 | $5.07 | | |
| HOBOND | Hospital BOND | 0.1910887512 | $36,184 | $36,184 | $6.91 | | |
| HOGEN | Hospital GEN | 0.3902502903 | $36,184 | $36,184 | $14.12 | | |
| CE | County Current Expense | 0.3708482477 | $36,184 | $36,184 | $13.42 | | |
| CR | County Roads | 0.4584763726 | $36,184 | $36,184 | $16.59 | | |
| ISLANDEMS | Hospital GEN (EMS) | 0.5000000000 | $36,184 | $36,184 | $18.09 | | |
| LIB | Library Sno-Isle GEN | 0.3153421757 | $36,184 | $36,184 | $11.41 | | |
| LIBCAP | Library Sno-Isle BOND (Cap Fac Imp Area) | 0.0543427938 | $36,184 | $36,184 | $1.97 | | |
| POCOUP | Port of Coupeville GEN | 0.1093371703 | $36,184 | $36,184 | $3.96 | | |
| POCOUPIDD | Port of Coupeville IDD | 0.3409740022 | $36,184 | $36,184 | $12.34 | | |
| COUPSDTECH | School 204 CP (TECH) | 0.7545480007 | $36,184 | $36,184 | $27.30 | | |
| SCH204MO | School 204 Enrichment | 0.6716186034 | $36,184 | $36,184 | $24.30 | | |
| ST | State School | 1.3035497053 | $36,184 | $36,184 | $47.17 | | |
| ST2 | State School Part 2 | 0.8169543533 | $36,184 | $36,184 | $29.56 | | |
| | Total Tax Rate: | 7.6592568070 | | | | | |
| | | | | Taxes w/Current Exemptions: | $277.14 | | |
| | | | | Taxes w/o Exemptions: | $277.14 | | |
Improvement / Building
| Improvement #1: | RESIDENTIAL | State Code: | Y | 180.0 sqft | Value: | $1,684 |
| Exterior Wall/Cover: | WOOD SIDING | Floor Structure: | WOOD W/SUBFLOOR | | Foundation: | PEIRS | Plumbing Fixture Cnt: | 1 | | Roof Slope: | 3" IN 12" | Roof Structure/Cover: | ALUM LIGHT |
|
| | Type | Description | Class CD | Sub Class CD | Year Built | Area |
| | BAS | BASE/MAIN FLOOR | 1 | 0 | 1969 | 180.0 |
| | CPD | OPEN CARPORT DIRT FLOOR | 1 | 0 | 1969 | 360.0 |
Sketch
Property Image
Land
| 1 | LB | LOW BANK | 0.4498 | 19593.29 | 50.00 | 0.00 | 1.00 | $34,500 | $0 |
Roll Value History
| 2026 | N/A | N/A | N/A | N/A | N/A |
| 2025 | $1,684 | $34,500 | $0 | $36,184 | $36,184 |
| 2024 | $3,443 | $34,500 | $0 | $37,943 | $37,943 |
| 2023 | $3,520 | $33,000 | $0 | $36,520 | $36,520 |
| 2022 | $3,256 | $33,000 | $0 | $36,256 | $36,256 |
| 2021 | $2,891 | $30,000 | $0 | $32,891 | $32,891 |
| 2020 | $2,852 | $30,000 | $0 | $32,852 | $32,852 |
| 2019 | $2,189 | $30,000 | $0 | $32,189 | $32,189 |
| 2018 | $1,411 | $15,000 | $0 | $16,411 | $16,411 |
| 2017 | $1,411 | $15,000 | $0 | $16,411 | $16,411 |
| 2016 | $1,411 | $15,000 | $0 | $16,411 | $16,411 |
| 2015 | $1,411 | $17,850 | $0 | $19,261 | $19,261 |
| 2014 | $1,411 | $17,850 | $0 | $19,261 | $19,261 |
| 2013 | $1,411 | $17,850 | $0 | $19,261 | $19,261 |
| 2012 | $1,411 | $17,850 | $0 | $19,261 | $19,261 |
| 2011 | $1,411 | $21,000 | $0 | $22,411 | $22,411 |
| 2010 | $1,411 | $21,000 | $0 | $22,411 | $22,411 |
| 2009 | $1,411 | $25,000 | $0 | $26,411 | $26,411 |
| 2008 | $1,411 | $24,000 | $0 | $25,411 | $25,411 |
| 2007 | $1,411 | $11,870 | $0 | $13,281 | $13,281 |
Deed and Sales History
| 1 | 08/05/1999 | WD | Warranty Deed | CORWIN, NANCY A | TOSSEY, MELVIN D | | | $12,000.00 | 93294 | 99019017 |
| 2 | 07/06/1999 | DECREE | Divorce Decree/Legal Separation | DYKE, PATRICK A | CORWIN, NANCY A | | | $0.00 | 68351 | 0 |
| 3 | 01/01/1900 | OTHER | Other - Misc. Documents | Unknown | DYKE, PATRICK A | | | $0.00 | 0 | 0 |
Payout Agreement
| No payout information available.. |