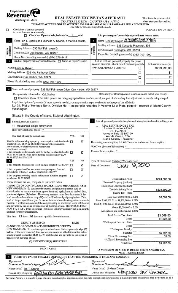
Property
Account |
| Property ID: | 326294 | Abbreviated Legal Description: | MUTINY BAY HTS LOT 5 |
| Geographic ID: | S7535-00-00005-0 | Agent Code: | |
| Type: | Real | | |
| Tax Area: | 710 - APPRAISER-S Whid Schl Dist, outside Langley, improved & 1 acre or less | Land Use Code | 11 |
| Open Space: | N | DFL | N |
| Historic Property: | N | Remodel Property: | N |
| Multi-Family Redevelopment: | N | | |
| Township: | | Section: | |
| Range: | |
Location |
| Address: | 1433 MUTINY LN FREELAND, WA 98249 | Mapsco: | |
| Neighborhood: | Cycle 3 | Map ID: | 336 |
| Neighborhood CD: | 3 |
Owner |
| Name: | STEIN, JULIE HENDERSON | Owner ID: | 252223 |
| Mailing Address: | JAMIN MICHAEL HENDERSON PO BOX 1353 FREELAND, WA 98249 | % Ownership: | 100.0000000000% |
| | | Exemptions: | |
Taxes and Assessment Details
Values
| (+) Improvement Homesite Value: | + | $0 | |
| (+) Improvement Non-Homesite Value: | + | $133,828 | |
| (+) Land Homesite Value: | + | $0 | |
| (+) Land Non-Homesite Value: | + | $330,000 | |
| (+) Curr Use (HS): | + | $0 | $0 |
| (+) Curr Use (NHS): | + | $0 | $0 |
| | | -------------------------- | |
| (=) Market Value: | = | $463,828 | |
| (–) Productivity Loss: | – | $0 | |
| | | -------------------------- | |
| (=) Subtotal: | = | $463,828 | |
| (+) Senior Appraised Value: | + | $0 | |
| (+) Non-Senior Appraised Value: | + | $463,828 | |
| | | -------------------------- | |
| (=) Total Appraised Value: | = | $463,828 | |
| (–) Senior Exemption Loss: | – | $0 | |
| (–) Exemption Loss: | – | $0 | |
| | | -------------------------- | |
| (=) Taxable Value: | = | $463,828 | |
Taxing Jurisdiction
| Owner: | STEIN, JULIE HENDERSON | | |
| % Ownership: | 100.0000000000% | | |
| Total Value: | $463,828 | | |
| Tax Area: | 710 - APPRAISER-S Whid Schl Dist, outside Langley, improved & 1 acre or less |
| CF | Conservation Futures | 0.0316035091 | $463,828 | $463,828 | $14.66 | | |
| FIRE3 | Fire & Rescue Dist #3 S Whidbey GEN | 1.2004855531 | $463,828 | $463,828 | $556.82 | | |
| HOBOND | Hospital BOND | 0.1910887512 | $463,828 | $463,828 | $88.63 | | |
| HOGEN | Hospital GEN | 0.3902502903 | $463,828 | $463,828 | $181.01 | | |
| CE | County Current Expense | 0.3708482477 | $463,828 | $463,828 | $172.01 | | |
| CR | County Roads | 0.4584763726 | $463,828 | $463,828 | $212.65 | | |
| ISLANDEMS | Hospital GEN (EMS) | 0.5000000000 | $463,828 | $463,828 | $231.91 | | |
| LIB | Library Sno-Isle GEN | 0.3153421757 | $463,828 | $463,828 | $146.26 | | |
| PORTWHID | Port of S Whidbey GEN | 0.1094540357 | $463,828 | $463,828 | $50.77 | | |
| SCH206BOND | School 206 BOND | 0.3161759235 | $463,828 | $463,828 | $146.65 | | |
| SCH206MO | School 206 Enrichment | 0.4547169547 | $463,828 | $463,828 | $210.91 | | |
| ST | State School | 1.3035497053 | $463,828 | $463,828 | $604.62 | | |
| ST2 | State School Part 2 | 0.8169543533 | $463,828 | $463,828 | $378.93 | | |
| SWHIDPRBD | P & R S Whidbey BOND | 0.0152817568 | $463,828 | $463,828 | $7.09 | | |
| SWHIDPRBD2 | P & R S Whidbey BOND2 | 0.0138911264 | $463,828 | $463,828 | $6.44 | | |
| SWHIDPRMT | P & R S Whidbey GEN | 0.2053334452 | $463,828 | $463,828 | $95.24 | | |
| | Total Tax Rate: | 6.6934522006 | | | | | |
| | | | | Taxes w/Current Exemptions: | $3,104.60 | | |
| | | | | Taxes w/o Exemptions: | $3,104.60 | | |
Improvement / Building
| Improvement #1: | RESIDENTIAL | State Code: | Y | 1008.0 sqft | Value: | $133,828 |
| Bathrooms: | 2 | Bedrooms: | 2 | | Ceiling: | DRYWALL PAINTED | Exterior Wall/Cover: | PLY/HARDBOARD T-111 | | Floor Covering: | VINYL TILE/CARP 20-80 | Floor Structure: | WOOD W/SUBFLOOR | | Foundation: | CONCRETE | Heating: | BASEBOARD ELECTRIC | | Interior Finish: | DRYWALL PAINT | Plumbing Fixture Cnt: | 6 | | Roof Slope: | 3" IN 12" | Roof Structure/Cover: | CJ BUILT-UP ROCK |
|
| | Type | Description | Class CD | Sub Class CD | Year Built | Area |
| | BAS | BASE/MAIN FLOOR | 3 | 0 | 1950 | 1008.0 |
| | OWP | OPEN WOOD PORCH W/STEPS | 3 | 0 | 1950 | 830.8 |
| | OWC | OPEN WOOD PORCH W/STEPS/ROOF/C | 3 | 0 | 1950 | 20.0 |
Sketch
Property Image
Land
| 1 | 14 | SQ (08001-12000) | 0.2000 | 8712.00 | 0.00 | 0.00 | 1.00 | $330,000 | $0 |
Roll Value History
| 2026 | N/A | N/A | N/A | N/A | N/A |
| 2025 | $133,828 | $330,000 | $0 | $463,828 | $463,828 |
| 2024 | $138,920 | $300,000 | $0 | $438,920 | $438,920 |
| 2023 | $141,153 | $300,000 | $0 | $441,153 | $441,153 |
| 2022 | $129,837 | $280,000 | $0 | $409,837 | $409,837 |
| 2021 | $114,663 | $190,000 | $0 | $304,663 | $304,663 |
| 2020 | $112,069 | $170,000 | $0 | $282,069 | $282,069 |
| 2019 | $72,808 | $200,000 | $0 | $272,808 | $272,808 |
| 2018 | $73,104 | $180,000 | $0 | $253,104 | $253,104 |
| 2017 | $73,693 | $135,000 | $0 | $208,693 | $208,693 |
| 2016 | $74,882 | $125,000 | $0 | $199,882 | $199,882 |
| 2015 | $76,070 | $125,000 | $0 | $201,070 | $201,070 |
| 2014 | $77,260 | $125,000 | $0 | $202,260 | $202,260 |
| 2013 | $77,595 | $125,000 | $0 | $202,595 | $202,595 |
| 2012 | $78,785 | $140,250 | $0 | $219,035 | $219,035 |
| 2011 | $79,972 | $165,000 | $0 | $244,972 | $244,972 |
| 2010 | $83,963 | $165,000 | $0 | $248,963 | $248,963 |
| 2009 | $87,773 | $205,000 | $0 | $292,773 | $292,773 |
| 2008 | $89,033 | $223,000 | $0 | $312,033 | $312,033 |
| 2007 | $87,889 | $154,000 | $0 | $241,889 | $241,889 |
Deed and Sales History
| 1 | 08/12/2010 | BARGSLD | Bargain And Sale Deed | HSBC BANK USA NATIONAL ASSOCIATION AS | STEIN, JULIE HENDERSON | | | $192,000.00 | 2000 | 4278802 |
| 2 | 05/22/2010 | TRUSTEED | Trustee's Deed | WALTZ, DOUGLAS S | HSBC BANK USA NATIONAL ASSOCIA | | | $185,000.00 | 1266 | 4274467 |
| 3 | 05/22/2000 | WD | Warranty Deed | HART, JOHN K | WALTZ, DOUGLAS S | | | $181,300.00 | 2096 | 20010004 |
| 4 | 10/01/1993 | WD | Warranty Deed | MECKLEY, MATHEW C | HART, JOHN K | | | $120,000.00 | 34249 | 93022131 |
| 5 | 09/01/1991 | WD | Warranty Deed | SCHWARZ, HENRY A | MECKLEY, MATHEW C | | | $90,000.00 | 13594 | 91015361 |
| 6 | 06/01/1991 | PRD | Personal Representatives Deed | BAER, CARL F | SCHWARZ, HENRY A | | | $0.00 | 12329 | 91009949 |
| 7 | 01/01/1900 | OTHER | Other - Misc. Documents | Unknown | BAER, CARL F | | | $0.00 | 0 | 0 |
Payout Agreement
| No payout information available.. |