Property
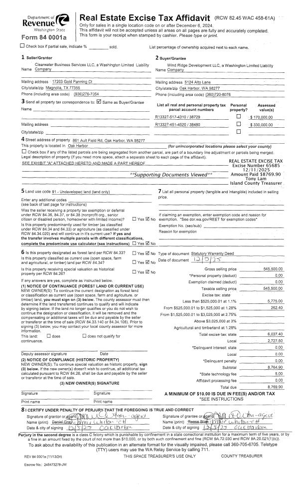
Account |
| Property ID: | 326613 | Abbreviated Legal Description: | MUTINY BAY PK 1 LOT 2 |
| Geographic ID: | S7540-00-00002-0 | Agent Code: | |
| Type: | Real | | |
| Tax Area: | 712 - APPRAISER-S Whid Schl Dist, outside Langley, improved, greater than 1 acre | Land Use Code | 11 |
| Open Space: | N | DFL | N |
| Historic Property: | N | Remodel Property: | N |
| Multi-Family Redevelopment: | N | | |
| Township: | | Section: | |
| Range: | |
Location |
| Address: | 5010 BOUNTY LOOP FREELAND, WA 98249 | Mapsco: | |
| Neighborhood: | Cycle 3 | Map ID: | 293 |
| Neighborhood CD: | 3 |
Owner |
| Name: | MALONE, CAROL S / ROBERT K | Owner ID: | 98999 |
| Mailing Address: | 5010 BOUNTY LOOP FREELAND, WA 98249-9668 | % Ownership: | 100.0000000000% |
| | | Exemptions: | |
Taxes and Assessment Details
Values
| (+) Improvement Homesite Value: | + | $0 | |
| (+) Improvement Non-Homesite Value: | + | $233,232 | |
| (+) Land Homesite Value: | + | $0 | |
| (+) Land Non-Homesite Value: | + | $250,000 | |
| (+) Curr Use (HS): | + | $0 | $0 |
| (+) Curr Use (NHS): | + | $0 | $0 |
| | | -------------------------- | |
| (=) Market Value: | = | $483,232 | |
| (–) Productivity Loss: | – | $0 | |
| | | -------------------------- | |
| (=) Subtotal: | = | $483,232 | |
| (+) Senior Appraised Value: | + | $0 | |
| (+) Non-Senior Appraised Value: | + | $483,232 | |
| | | -------------------------- | |
| (=) Total Appraised Value: | = | $483,232 | |
| (–) Senior Exemption Loss: | – | $0 | |
| (–) Exemption Loss: | – | $0 | |
| | | -------------------------- | |
| (=) Taxable Value: | = | $483,232 | |
Taxing Jurisdiction
| Owner: | MALONE, CAROL S / ROBERT K | | |
| % Ownership: | 100.0000000000% | | |
| Total Value: | $483,232 | | |
| Tax Area: | 712 - APPRAISER-S Whid Schl Dist, outside Langley, improved, greater than 1 acre |
| CF | Conservation Futures | 0.0316035091 | $483,232 | $483,232 | $15.27 | | |
| FIRE3 | Fire & Rescue Dist #3 S Whidbey GEN | 1.2004855531 | $483,232 | $483,232 | $580.11 | | |
| HOBOND | Hospital BOND | 0.1910887512 | $483,232 | $483,232 | $92.34 | | |
| HOGEN | Hospital GEN | 0.3902502903 | $483,232 | $483,232 | $188.58 | | |
| CE | County Current Expense | 0.3708482477 | $483,232 | $483,232 | $179.21 | | |
| CR | County Roads | 0.4584763726 | $483,232 | $483,232 | $221.55 | | |
| ISLANDEMS | Hospital GEN (EMS) | 0.5000000000 | $483,232 | $483,232 | $241.62 | | |
| LIB | Library Sno-Isle GEN | 0.3153421757 | $483,232 | $483,232 | $152.38 | | |
| PORTWHID | Port of S Whidbey GEN | 0.1094540357 | $483,232 | $483,232 | $52.89 | | |
| SCH206BOND | School 206 BOND | 0.3161759235 | $483,232 | $483,232 | $152.79 | | |
| SCH206MO | School 206 Enrichment | 0.4547169547 | $483,232 | $483,232 | $219.73 | | |
| ST | State School | 1.3035497053 | $483,232 | $483,232 | $629.92 | | |
| ST2 | State School Part 2 | 0.8169543533 | $483,232 | $483,232 | $394.78 | | |
| SWHIDPRBD | P & R S Whidbey BOND | 0.0152817568 | $483,232 | $483,232 | $7.38 | | |
| SWHIDPRBD2 | P & R S Whidbey BOND2 | 0.0138911264 | $483,232 | $483,232 | $6.71 | | |
| SWHIDPRMT | P & R S Whidbey GEN | 0.2053334452 | $483,232 | $483,232 | $99.22 | | |
| | Total Tax Rate: | 6.6934522006 | | | | | |
| | | | | Taxes w/Current Exemptions: | $3,234.48 | | |
| | | | | Taxes w/o Exemptions: | $3,234.48 | | |
Improvement / Building
| Improvement #1: | RESIDENTIAL | State Code: | Y | 1160.0 sqft | Value: | $233,232 |
| Bathrooms: | 2 | Bedrooms: | 3 | | Ceiling: | DRYWALL PAINTED | Exterior Wall/Cover: | PLY/HARDBOARD T-111 | | Floor Covering: | VINYL/HARDWOOD 20-80 | Floor Structure: | WOOD W/SUBFLOOR | | Foundation: | CONCRETE | Heating: | FHA GAS | | Interior Finish: | DRYWALL PAINT | Plumbing Fixture Cnt: | 9 | | Roof Slope: | 4" IN 12" | Roof Structure/Cover: | CJ ALUMINIUM HEAVY |
|
| | Type | Description | Class CD | Sub Class CD | Year Built | Area |
| | BAS | BASE/MAIN FLOOR | 3 | 0 | 1972 | 1160.0 |
| | OP3 | OPEN PORCH W/ROOF | 3 | 0 | 1972 | 16.0 |
| | AGR | ATTACHED GARAGE | 3 | 0 | 1972 | 594.0 |
| | UTY | STORAGE/UTILITY | 3 | 0 | 1972 | 240.0 |
Sketch
Property Image
Land
| 1 | 18 | AC (02.01-03.00) | 0.0000 | 0.00 | 0.00 | 0.00 | 1.00 | $250,000 | $0 |
Roll Value History
| 2026 | N/A | N/A | N/A | N/A | N/A |
| 2025 | $233,232 | $250,000 | $0 | $483,232 | $483,232 |
| 2024 | $236,331 | $230,000 | $0 | $466,331 | $466,331 |
| 2023 | $239,431 | $230,000 | $0 | $469,431 | $469,431 |
| 2022 | $219,621 | $200,000 | $0 | $419,621 | $419,621 |
| 2021 | $193,410 | $180,000 | $0 | $373,410 | $373,410 |
| 2020 | $188,328 | $165,000 | $0 | $353,328 | $353,328 |
| 2019 | $130,201 | $200,000 | $0 | $330,201 | $330,201 |
| 2018 | $130,612 | $120,000 | $0 | $250,612 | $250,612 |
| 2017 | $131,434 | $100,000 | $0 | $231,434 | $231,434 |
| 2016 | $133,077 | $100,000 | $0 | $233,077 | $233,077 |
| 2015 | $134,720 | $100,000 | $0 | $234,720 | $234,720 |
| 2014 | $136,362 | $100,000 | $0 | $236,362 | $236,362 |
| 2013 | $132,355 | $100,000 | $0 | $232,355 | $232,355 |
| 2012 | $134,096 | $106,250 | $0 | $240,346 | $240,346 |
| 2011 | $135,837 | $125,000 | $0 | $260,837 | $260,837 |
| 2010 | $143,280 | $125,000 | $0 | $268,280 | $268,280 |
| 2009 | $149,527 | $155,000 | $0 | $304,527 | $304,527 |
| 2008 | $151,428 | $100,000 | $0 | $251,428 | $251,428 |
| 2007 | $100,687 | $100,000 | $0 | $200,687 | $200,687 |
Deed and Sales History
| 1 | 03/01/1994 | WD | Warranty Deed | HEGGEM, RICHARD G | MALONE, CAROL S | | | $125,000.00 | 41192 | 94007545 |
| 2 | 04/01/1987 | WD | Warranty Deed | THRASHER, ROBERT L | HEGGEM, RICHARD G | | | $57,000.00 | 70872 | 87004529 |
| 3 | 01/01/1900 | OTHER | Other - Misc. Documents | Unknown | THRASHER, ROBERT L | | | $0.00 | 0 | 0 |
Payout Agreement
| No payout information available.. |