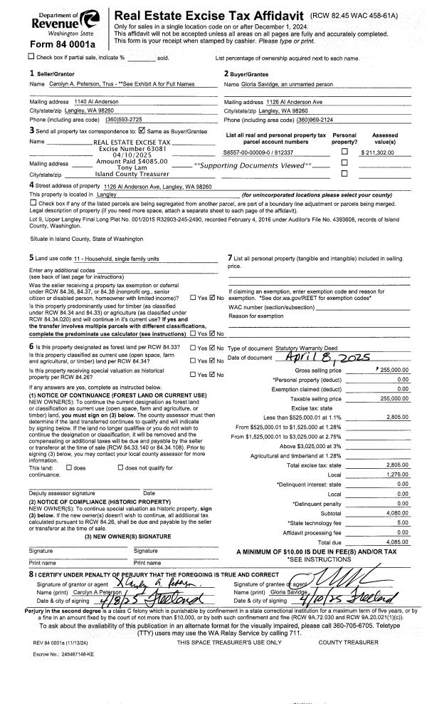
Property
Account |
| Property ID: | 326622 | Abbreviated Legal Description: | MUTINY BAY PK 1 LOT 3 |
| Geographic ID: | S7540-00-00003-0 | Agent Code: | |
| Type: | Real | | |
| Tax Area: | 710 - APPRAISER-S Whid Schl Dist, outside Langley, improved & 1 acre or less | Land Use Code | 11 |
| Open Space: | N | DFL | N |
| Historic Property: | N | Remodel Property: | N |
| Multi-Family Redevelopment: | N | | |
| Township: | | Section: | |
| Range: | |
Location |
| Address: | 4996 BOUNTY LOOP FREELAND, WA 98249 | Mapsco: | |
| Neighborhood: | Cycle 3 | Map ID: | 293 |
| Neighborhood CD: | 3 |
Owner |
| Name: | HAWKINS, ROCKY A | Owner ID: | 99000 |
| Mailing Address: | 4996 BOUNTY LOOP FREELAND, WA 98249 | % Ownership: | 100.0000000000% |
| | | Exemptions: | |
Taxes and Assessment Details
Values
| (+) Improvement Homesite Value: | + | $0 | |
| (+) Improvement Non-Homesite Value: | + | $86,500 | |
| (+) Land Homesite Value: | + | $0 | |
| (+) Land Non-Homesite Value: | + | $250,000 | |
| (+) Curr Use (HS): | + | $0 | $0 |
| (+) Curr Use (NHS): | + | $0 | $0 |
| | | -------------------------- | |
| (=) Market Value: | = | $336,500 | |
| (–) Productivity Loss: | – | $0 | |
| | | -------------------------- | |
| (=) Subtotal: | = | $336,500 | |
| (+) Senior Appraised Value: | + | $0 | |
| (+) Non-Senior Appraised Value: | + | $336,500 | |
| | | -------------------------- | |
| (=) Total Appraised Value: | = | $336,500 | |
| (–) Senior Exemption Loss: | – | $0 | |
| (–) Exemption Loss: | – | $0 | |
| | | -------------------------- | |
| (=) Taxable Value: | = | $336,500 | |
Taxing Jurisdiction
| Owner: | HAWKINS, ROCKY A | | |
| % Ownership: | 100.0000000000% | | |
| Total Value: | $336,500 | | |
| Tax Area: | 710 - APPRAISER-S Whid Schl Dist, outside Langley, improved & 1 acre or less |
| CF | Conservation Futures | 0.0316035091 | $336,500 | $336,500 | $10.63 | | |
| FIRE3 | Fire & Rescue Dist #3 S Whidbey GEN | 1.2004855531 | $336,500 | $336,500 | $403.96 | | |
| HOBOND | Hospital BOND | 0.1910887512 | $336,500 | $336,500 | $64.30 | | |
| HOGEN | Hospital GEN | 0.3902502903 | $336,500 | $336,500 | $131.32 | | |
| CE | County Current Expense | 0.3708482477 | $336,500 | $336,500 | $124.79 | | |
| CR | County Roads | 0.4584763726 | $336,500 | $336,500 | $154.28 | | |
| ISLANDEMS | Hospital GEN (EMS) | 0.5000000000 | $336,500 | $336,500 | $168.25 | | |
| LIB | Library Sno-Isle GEN | 0.3153421757 | $336,500 | $336,500 | $106.11 | | |
| PORTWHID | Port of S Whidbey GEN | 0.1094540357 | $336,500 | $336,500 | $36.83 | | |
| SCH206BOND | School 206 BOND | 0.3161759235 | $336,500 | $336,500 | $106.39 | | |
| SCH206MO | School 206 Enrichment | 0.4547169547 | $336,500 | $336,500 | $153.01 | | |
| ST | State School | 1.3035497053 | $336,500 | $336,500 | $438.64 | | |
| ST2 | State School Part 2 | 0.8169543533 | $336,500 | $336,500 | $274.91 | | |
| SWHIDPRBD | P & R S Whidbey BOND | 0.0152817568 | $336,500 | $336,500 | $5.14 | | |
| SWHIDPRBD2 | P & R S Whidbey BOND2 | 0.0138911264 | $336,500 | $336,500 | $4.67 | | |
| SWHIDPRMT | P & R S Whidbey GEN | 0.2053334452 | $336,500 | $336,500 | $69.09 | | |
| | Total Tax Rate: | 6.6934522006 | | | | | |
| | | | | Taxes w/Current Exemptions: | $2,252.32 | | |
| | | | | Taxes w/o Exemptions: | $2,252.32 | | |
Improvement / Building
| Improvement #1: | MANUFACTURED HOME | State Code: | Y | 1080.0 sqft | Value: | $86,500 |
| Bathrooms: | 0 | Bedrooms: | 0 | | Ceiling: | PLASTER PAINTED | Cooling: | EVAP NO DUCT | | Exterior Wall/Cover: | VINYL | Floor Covering: | CARPET 100% | | Floor Structure: | SLAB ON GRADE | Foundation: | SLAB | | Heating: | FHA ELECTRIC | Interior Finish: | PLASTER | | Plumbing Fixture Cnt: | 1 | Roof Slope: | FLAT | | Roof Structure/Cover: | CJ ALUMINIUM HEAVY |   |   |
|
| | Type | Description | Class CD | Sub Class CD | Year Built | Area |
| | BAS | BASE/MAIN FLOOR | 3 | 0 | 1991 | 1080.0 |
| | OWP | OPEN WOOD PORCH W/STEPS | 3 | 0 | 1991 | 80.0 |
| | DGR | DETACHED GARAGE | 3 | 0 | 1991 | 1440.0 |
Sketch
Property Image
Land
| 1 | 18 | AC (02.01-03.00) | 0.0000 | 0.00 | 0.00 | 0.00 | 1.00 | $250,000 | $0 |
Roll Value History
| 2026 | N/A | N/A | N/A | N/A | N/A |
| 2025 | $86,500 | $250,000 | $0 | $336,500 | $336,500 |
| 2024 | $89,383 | $230,000 | $0 | $319,383 | $319,383 |
| 2023 | $92,266 | $230,000 | $0 | $322,266 | $322,266 |
| 2022 | $86,165 | $200,000 | $0 | $286,165 | $286,165 |
| 2021 | $77,193 | $180,000 | $0 | $257,193 | $257,193 |
| 2020 | $77,140 | $165,000 | $0 | $242,140 | $242,140 |
| 2019 | $58,912 | $200,000 | $0 | $258,912 | $258,912 |
| 2018 | $60,167 | $120,000 | $0 | $180,167 | $180,167 |
| 2017 | $61,422 | $100,000 | $0 | $161,422 | $161,422 |
| 2016 | $62,677 | $100,000 | $0 | $162,677 | $162,677 |
| 2015 | $63,933 | $100,000 | $0 | $163,933 | $163,933 |
| 2014 | $65,188 | $100,000 | $0 | $165,188 | $165,188 |
| 2013 | $64,923 | $100,000 | $0 | $164,923 | $164,923 |
| 2012 | $65,956 | $114,750 | $0 | $180,706 | $180,706 |
| 2011 | $66,988 | $135,000 | $0 | $201,988 | $201,988 |
| 2010 | $66,219 | $135,000 | $0 | $201,219 | $201,219 |
| 2009 | $69,507 | $155,000 | $0 | $224,507 | $224,507 |
| 2008 | $71,621 | $100,000 | $0 | $171,621 | $171,621 |
| 2007 | $68,541 | $100,000 | $0 | $168,541 | $168,541 |
Deed and Sales History
| 1 | 06/01/1991 | OTHER | Other - Misc. Documents | HAWKINS, ROCKY A | HAWKINS, ROCKY A | | | $28,099.00 | 11111111 | 0 |
| 2 | 07/01/1990 | WD | Warranty Deed | SPAFFORD, HOWARD C | HAWKINS, ROCKY A | | | $27,000.00 | 4376 | 90014476 |
| 3 | 01/01/1900 | OTHER | Other - Misc. Documents | Unknown | SPAFFORD, HOWARD C | | | $0.00 | 0 | 0 |
Payout Agreement
| No payout information available.. |