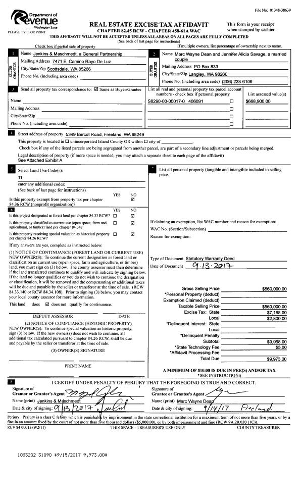
Property
Account |
| Property ID: | 326739 | Abbreviated Legal Description: | MUTINY BAY PK 1 LOT 15 EX S167' |
| Geographic ID: | S7540-00-00015-1 | Agent Code: | |
| Type: | Real | | |
| Tax Area: | 710 - APPRAISER-S Whid Schl Dist, outside Langley, improved & 1 acre or less | Land Use Code | 11 |
| Open Space: | N | DFL | N |
| Historic Property: | N | Remodel Property: | N |
| Multi-Family Redevelopment: | N | | |
| Township: | | Section: | |
| Range: | |
Location |
| Address: | 4958 MUTINY BAY RD FREELAND, WA 98249 | Mapsco: | |
| Neighborhood: | Cycle 3 | Map ID: | 293 |
| Neighborhood CD: | 3 |
Owner |
| Name: | JEPPESEN, RACHEL | Owner ID: | 281212 |
| Mailing Address: | PO BOX 871 LANGLEY, WA 98260 | % Ownership: | 100.0000000000% |
| | | Exemptions: | |
Taxes and Assessment Details
Values
| (+) Improvement Homesite Value: | + | $0 | |
| (+) Improvement Non-Homesite Value: | + | $74,281 | |
| (+) Land Homesite Value: | + | $0 | |
| (+) Land Non-Homesite Value: | + | $250,000 | |
| (+) Curr Use (HS): | + | $0 | $0 |
| (+) Curr Use (NHS): | + | $0 | $0 |
| | | -------------------------- | |
| (=) Market Value: | = | $324,281 | |
| (–) Productivity Loss: | – | $0 | |
| | | -------------------------- | |
| (=) Subtotal: | = | $324,281 | |
| (+) Senior Appraised Value: | + | $0 | |
| (+) Non-Senior Appraised Value: | + | $324,281 | |
| | | -------------------------- | |
| (=) Total Appraised Value: | = | $324,281 | |
| (–) Senior Exemption Loss: | – | $0 | |
| (–) Exemption Loss: | – | $0 | |
| | | -------------------------- | |
| (=) Taxable Value: | = | $324,281 | |
Taxing Jurisdiction
| Owner: | JEPPESEN, RACHEL | | |
| % Ownership: | 100.0000000000% | | |
| Total Value: | $324,281 | | |
| Tax Area: | 710 - APPRAISER-S Whid Schl Dist, outside Langley, improved & 1 acre or less |
| CF | Conservation Futures | 0.0316035091 | $324,281 | $324,281 | $10.25 | | |
| FIRE3 | Fire & Rescue Dist #3 S Whidbey GEN | 1.2004855531 | $324,281 | $324,281 | $389.29 | | |
| HOBOND | Hospital BOND | 0.1910887512 | $324,281 | $324,281 | $61.97 | | |
| HOGEN | Hospital GEN | 0.3902502903 | $324,281 | $324,281 | $126.55 | | |
| CE | County Current Expense | 0.3708482477 | $324,281 | $324,281 | $120.26 | | |
| CR | County Roads | 0.4584763726 | $324,281 | $324,281 | $148.68 | | |
| ISLANDEMS | Hospital GEN (EMS) | 0.5000000000 | $324,281 | $324,281 | $162.14 | | |
| LIB | Library Sno-Isle GEN | 0.3153421757 | $324,281 | $324,281 | $102.26 | | |
| PORTWHID | Port of S Whidbey GEN | 0.1094540357 | $324,281 | $324,281 | $35.49 | | |
| SCH206BOND | School 206 BOND | 0.3161759235 | $324,281 | $324,281 | $102.53 | | |
| SCH206MO | School 206 Enrichment | 0.4547169547 | $324,281 | $324,281 | $147.46 | | |
| ST | State School | 1.3035497053 | $324,281 | $324,281 | $422.72 | | |
| ST2 | State School Part 2 | 0.8169543533 | $324,281 | $324,281 | $264.92 | | |
| SWHIDPRBD | P & R S Whidbey BOND | 0.0152817568 | $324,281 | $324,281 | $4.96 | | |
| SWHIDPRBD2 | P & R S Whidbey BOND2 | 0.0138911264 | $324,281 | $324,281 | $4.50 | | |
| SWHIDPRMT | P & R S Whidbey GEN | 0.2053334452 | $324,281 | $324,281 | $66.59 | | |
| | Total Tax Rate: | 6.6934522006 | | | | | |
| | | | | Taxes w/Current Exemptions: | $2,170.57 | | |
| | | | | Taxes w/o Exemptions: | $2,170.57 | | |
Improvement / Building
| Improvement #1: | MANUFACTURED HOME | State Code: | Y | 1188.0 sqft | Value: | $74,281 |
| Bathrooms: | 0 | Bedrooms: | 0 | | Ceiling: | PLASTER PAINTED | Cooling: | EVAP NO DUCT | | Exterior Wall/Cover: | VINYL | Floor Covering: | CARPET 100% | | Floor Structure: | SLAB ON GRADE | Foundation: | SLAB | | Heating: | FHA ELECTRIC | Interior Finish: | PLASTER | | Plumbing Fixture Cnt: | 1 | Roof Slope: | FLAT | | Roof Structure/Cover: | CJ ALUMINIUM HEAVY |   |   |
|
Sketch
Property Image
Land
| 1 | 17 | AC (01.01-02.00) | 0.0000 | 0.00 | 0.00 | 0.00 | 1.00 | $250,000 | $0 |
Roll Value History
| 2026 | N/A | N/A | N/A | N/A | N/A |
| 2025 | $74,281 | $250,000 | $0 | $324,281 | $324,281 |
| 2024 | $76,466 | $230,000 | $0 | $306,466 | $306,466 |
| 2023 | $78,651 | $230,000 | $0 | $308,651 | $308,651 |
| 2022 | $72,206 | $200,000 | $0 | $272,206 | $272,206 |
| 2021 | $64,508 | $150,000 | $0 | $214,508 | $214,508 |
| 2020 | $64,299 | $135,000 | $0 | $199,299 | $199,299 |
| 2019 | $51,966 | $190,000 | $0 | $241,966 | $241,966 |
| 2018 | $53,282 | $120,000 | $0 | $173,282 | $173,282 |
| 2017 | $40,952 | $100,000 | $0 | $140,952 | $140,952 |
| 2016 | $42,193 | $100,000 | $0 | $142,193 | $142,193 |
| 2015 | $43,434 | $100,000 | $0 | $143,434 | $143,434 |
| 2014 | $44,675 | $100,000 | $0 | $144,675 | $144,675 |
| 2013 | $47,738 | $65,000 | $0 | $112,738 | $112,738 |
| 2012 | $48,979 | $72,250 | $0 | $121,229 | $121,229 |
| 2011 | $50,220 | $85,000 | $0 | $135,220 | $135,220 |
| 2010 | $49,447 | $85,000 | $0 | $134,447 | $134,447 |
| 2009 | $52,188 | $100,000 | $0 | $152,188 | $152,188 |
| 2008 | $53,606 | $100,000 | $0 | $153,606 | $153,606 |
| 2007 | $45,664 | $100,000 | $0 | $145,664 | $145,664 |
Deed and Sales History
| 1 | 07/11/2017 | WD | Warranty Deed | JONES, DEIRDRE WHITTAKER | JEPPESEN, RACHEL | | | $205,000.00 | 30428 | 4427288 |
| 2 | 03/30/2006 | QCD | Quit Claim Deed | WHITTAKER, MARTIN R | JONES, DEIRDRE WHITTAKER | | | $0.00 | 61400 | 4166383 |
| 3 | 06/05/2003 | QCD | Quit Claim Deed | JONES, KENNETH A | WHITTAKER, MARTIN R | | | $0.00 | 32809 | 4064964 |
| 4 | 04/01/1996 | OTHER | Other - Misc. Documents | HARRELL, GWEN E | JONES, KENNETH A | | | $32,358.00 | 61145 | 0 |
| 5 | 04/01/1996 | WD | Warranty Deed | JONES, KENNETH A | JONES, KENNETH A | | | $72,642.00 | 61144 | 96005875 |
| 6 | 02/01/1990 | WD | Warranty Deed | QUINTERO, ANGEL C | HARRELL, GWEN E | | | $15,000.00 | 1074 | 90003556 |
| 7 | 01/01/1900 | OTHER | Other - Misc. Documents | Unknown | HARRELL, GWEN | | | $0.00 | 0 | 0 |
| 8 | 01/01/1900 | OTHER | Other - Misc. Documents | HARRELL, GWEN | QUINTERO, ANGEL C | | | $0.00 | 0 | 0 |
Payout Agreement
| No payout information available.. |