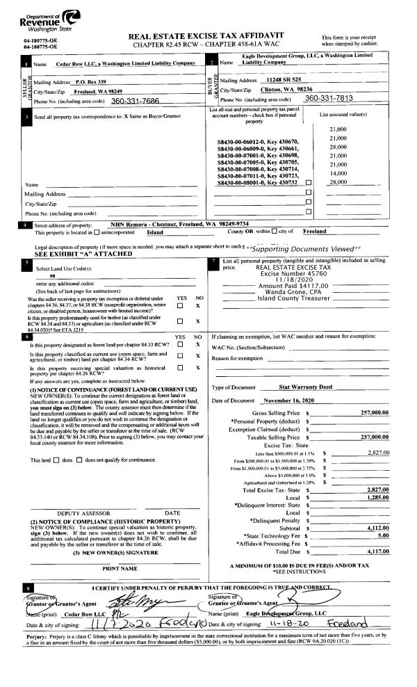
Property
Account |
| Property ID: | 326775 | Abbreviated Legal Description: | MUTINY BAY PK 1 LOT 18 |
| Geographic ID: | S7540-00-00018-0 | Agent Code: | |
| Type: | Real | | |
| Tax Area: | 710 - APPRAISER-S Whid Schl Dist, outside Langley, improved & 1 acre or less | Land Use Code | 11 |
| Open Space: | N | DFL | N |
| Historic Property: | N | Remodel Property: | N |
| Multi-Family Redevelopment: | N | | |
| Township: | | Section: | |
| Range: | |
Location |
| Address: | 5247 BOUNTY LOOP FREELAND, WA 98249 | Mapsco: | |
| Neighborhood: | Cycle 3 | Map ID: | 293 |
| Neighborhood CD: | 3 |
Owner |
| Name: | SWEARENGIN, BARBARA L | Owner ID: | 99020 |
| Mailing Address: | 5247 BOUNTY LOOP RD FREELAND, WA 98249 | % Ownership: | 100.0000000000% |
| | | Exemptions: | |
Taxes and Assessment Details
Values
| (+) Improvement Homesite Value: | + | $0 | |
| (+) Improvement Non-Homesite Value: | + | $110,424 | |
| (+) Land Homesite Value: | + | $0 | |
| (+) Land Non-Homesite Value: | + | $250,000 | |
| (+) Curr Use (HS): | + | $0 | $0 |
| (+) Curr Use (NHS): | + | $0 | $0 |
| | | -------------------------- | |
| (=) Market Value: | = | $360,424 | |
| (–) Productivity Loss: | – | $0 | |
| | | -------------------------- | |
| (=) Subtotal: | = | $360,424 | |
| (+) Senior Appraised Value: | + | $0 | |
| (+) Non-Senior Appraised Value: | + | $360,424 | |
| | | -------------------------- | |
| (=) Total Appraised Value: | = | $360,424 | |
| (–) Senior Exemption Loss: | – | $0 | |
| (–) Exemption Loss: | – | $0 | |
| | | -------------------------- | |
| (=) Taxable Value: | = | $360,424 | |
Taxing Jurisdiction
| Owner: | SWEARENGIN, BARBARA L | | |
| % Ownership: | 100.0000000000% | | |
| Total Value: | $360,424 | | |
| Tax Area: | 710 - APPRAISER-S Whid Schl Dist, outside Langley, improved & 1 acre or less |
| CF | Conservation Futures | 0.0316035091 | $360,424 | $360,424 | $11.39 | | |
| FIRE3 | Fire & Rescue Dist #3 S Whidbey GEN | 1.2004855531 | $360,424 | $360,424 | $432.68 | | |
| HOBOND | Hospital BOND | 0.1910887512 | $360,424 | $360,424 | $68.87 | | |
| HOGEN | Hospital GEN | 0.3902502903 | $360,424 | $360,424 | $140.66 | | |
| CE | County Current Expense | 0.3708482477 | $360,424 | $360,424 | $133.66 | | |
| CR | County Roads | 0.4584763726 | $360,424 | $360,424 | $165.25 | | |
| ISLANDEMS | Hospital GEN (EMS) | 0.5000000000 | $360,424 | $360,424 | $180.21 | | |
| LIB | Library Sno-Isle GEN | 0.3153421757 | $360,424 | $360,424 | $113.66 | | |
| PORTWHID | Port of S Whidbey GEN | 0.1094540357 | $360,424 | $360,424 | $39.45 | | |
| SCH206BOND | School 206 BOND | 0.3161759235 | $360,424 | $360,424 | $113.96 | | |
| SCH206MO | School 206 Enrichment | 0.4547169547 | $360,424 | $360,424 | $163.89 | | |
| ST | State School | 1.3035497053 | $360,424 | $360,424 | $469.83 | | |
| ST2 | State School Part 2 | 0.8169543533 | $360,424 | $360,424 | $294.45 | | |
| SWHIDPRBD | P & R S Whidbey BOND | 0.0152817568 | $360,424 | $360,424 | $5.51 | | |
| SWHIDPRBD2 | P & R S Whidbey BOND2 | 0.0138911264 | $360,424 | $360,424 | $5.01 | | |
| SWHIDPRMT | P & R S Whidbey GEN | 0.2053334452 | $360,424 | $360,424 | $74.01 | | |
| | Total Tax Rate: | 6.6934522006 | | | | | |
| | | | | Taxes w/Current Exemptions: | $2,412.49 | | |
| | | | | Taxes w/o Exemptions: | $2,412.49 | | |
Improvement / Building
| Improvement #1: | MANUFACTURED HOME | State Code: | Y | 1782.0 sqft | Value: | $110,424 |
| Bathrooms: | 0 | Bedrooms: | 0 | | Ceiling: | PLASTER PAINTED | Cooling: | EVAP NO DUCT | | Exterior Wall/Cover: | VINYL | Floor Covering: | CARPET 100% | | Floor Structure: | SLAB ON GRADE | Foundation: | SLAB | | Heating: | FHA ELECTRIC | Interior Finish: | PLASTER | | Plumbing Fixture Cnt: | 1 | Roof Slope: | FLAT | | Roof Structure/Cover: | CJ ALUMINIUM HEAVY |   |   |
|
| | Type | Description | Class CD | Sub Class CD | Year Built | Area |
| | BAS | BASE/MAIN FLOOR | 3 | 0 | 1988 | 1782.0 |
| | DGR | DETACHED GARAGE | 3 | 0 | 1988 | 2000.0 |
| | OWP | OPEN WOOD PORCH W/STEPS | 3 | 0 | 1988 | 240.0 |
| | OWP | OPEN WOOD PORCH W/STEPS | 3 | 0 | 1988 | 460.0 |
Sketch
Property Image
Land
| 1 | 18 | AC (02.01-03.00) | 0.0000 | 0.00 | 0.00 | 0.00 | 1.00 | $250,000 | $0 |
Roll Value History
| 2026 | N/A | N/A | N/A | N/A | N/A |
| 2025 | $110,424 | $250,000 | $0 | $360,424 | $360,424 |
| 2024 | $114,755 | $230,000 | $0 | $344,755 | $344,755 |
| 2023 | $119,085 | $230,000 | $0 | $349,085 | $349,085 |
| 2022 | $111,753 | $200,000 | $0 | $311,753 | $311,753 |
| 2021 | $102,303 | $180,000 | $0 | $282,303 | $282,303 |
| 2020 | $102,606 | $165,000 | $0 | $267,606 | $267,606 |
| 2019 | $95,776 | $200,000 | $0 | $295,776 | $295,776 |
| 2018 | $97,676 | $120,000 | $0 | $217,676 | $217,676 |
| 2017 | $99,574 | $100,000 | $0 | $199,574 | $199,574 |
| 2016 | $101,474 | $100,000 | $0 | $201,474 | $201,474 |
| 2015 | $103,374 | $100,000 | $0 | $203,374 | $203,374 |
| 2014 | $104,323 | $100,000 | $0 | $204,323 | $204,323 |
| 2013 | $107,455 | $100,000 | $0 | $207,455 | $207,455 |
| 2012 | $108,362 | $114,750 | $0 | $223,112 | $223,112 |
| 2011 | $110,176 | $135,000 | $0 | $245,176 | $245,176 |
| 2010 | $121,597 | $135,000 | $0 | $256,597 | $256,597 |
| 2009 | $126,169 | $155,000 | $0 | $281,169 | $281,169 |
| 2008 | $131,332 | $99,075 | $0 | $230,407 | $230,407 |
| 2007 | $115,947 | $100,000 | $0 | $215,947 | $215,947 |
Deed and Sales History
| 1 | 07/01/1988 | OTHER | Other - Misc. Documents | SWEARENGIN, GLENN O | SWEARENGIN, GLENN O | | | $47,715.00 | 11111111 | 0 |
| 2 | 06/01/1986 | WD | Warranty Deed | LALANNE, ROBERT J | SWEARENGIN, GLENN O | | | $24,000.00 | 61533 | 86007164 |
| 3 | 01/01/1900 | OTHER | Other - Misc. Documents | Unknown | LALANNE, ROBERT J | | | $0.00 | 0 | 0 |
Payout Agreement
| No payout information available.. |