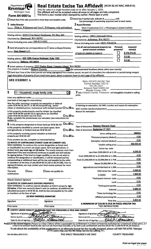
Property
Account |
| Property ID: | 326873 | Abbreviated Legal Description: | MUTINY BAY PK 2 LOT 1 EX PT TO ST HWY |
| Geographic ID: | S7540-02-00001-0 | Agent Code: | |
| Type: | Real | | |
| Tax Area: | 712 - APPRAISER-S Whid Schl Dist, outside Langley, improved, greater than 1 acre | Land Use Code | 11 |
| Open Space: | N | DFL | N |
| Historic Property: | N | Remodel Property: | N |
| Multi-Family Redevelopment: | N | | |
| Township: | | Section: | |
| Range: | |
Location |
| Address: | | Mapsco: | |
| Neighborhood: | Cycle 3 | Map ID: | 293 |
| Neighborhood CD: | 3 |
Owner |
| Name: | INGALLS, SKYLAR | Owner ID: | 313741 |
| Mailing Address: | DWI INGALLS 1027 WETMORE AVE EVERETT, WA 98201 | % Ownership: | 100.0000000000% |
| | | Exemptions: | |
Taxes and Assessment Details
Values
| (+) Improvement Homesite Value: | + | $0 | |
| (+) Improvement Non-Homesite Value: | + | $286,068 | |
| (+) Land Homesite Value: | + | $0 | |
| (+) Land Non-Homesite Value: | + | $110,000 | |
| (+) Curr Use (HS): | + | $0 | $0 |
| (+) Curr Use (NHS): | + | $0 | $0 |
| | | -------------------------- | |
| (=) Market Value: | = | $396,068 | |
| (–) Productivity Loss: | – | $0 | |
| | | -------------------------- | |
| (=) Subtotal: | = | $396,068 | |
| (+) Senior Appraised Value: | + | $0 | |
| (+) Non-Senior Appraised Value: | + | $396,068 | |
| | | -------------------------- | |
| (=) Total Appraised Value: | = | $396,068 | |
| (–) Senior Exemption Loss: | – | $0 | |
| (–) Exemption Loss: | – | $0 | |
| | | -------------------------- | |
| (=) Taxable Value: | = | $396,068 | |
Taxing Jurisdiction
| Owner: | INGALLS, SKYLAR | | |
| % Ownership: | 100.0000000000% | | |
| Total Value: | $396,068 | | |
| Tax Area: | 712 - APPRAISER-S Whid Schl Dist, outside Langley, improved, greater than 1 acre |
| CF | Conservation Futures | 0.0316035091 | $396,068 | $396,068 | $12.52 | | |
| FIRE3 | Fire & Rescue Dist #3 S Whidbey GEN | 1.2004855531 | $396,068 | $396,068 | $475.47 | | |
| HOBOND | Hospital BOND | 0.1910887512 | $396,068 | $396,068 | $75.68 | | |
| HOGEN | Hospital GEN | 0.3902502903 | $396,068 | $396,068 | $154.57 | | |
| CE | County Current Expense | 0.3708482477 | $396,068 | $396,068 | $146.88 | | |
| CR | County Roads | 0.4584763726 | $396,068 | $396,068 | $181.59 | | |
| ISLANDEMS | Hospital GEN (EMS) | 0.5000000000 | $396,068 | $396,068 | $198.03 | | |
| LIB | Library Sno-Isle GEN | 0.3153421757 | $396,068 | $396,068 | $124.90 | | |
| PORTWHID | Port of S Whidbey GEN | 0.1094540357 | $396,068 | $396,068 | $43.35 | | |
| SCH206BOND | School 206 BOND | 0.3161759235 | $396,068 | $396,068 | $125.23 | | |
| SCH206MO | School 206 Enrichment | 0.4547169547 | $396,068 | $396,068 | $180.10 | | |
| ST | State School | 1.3035497053 | $396,068 | $396,068 | $516.29 | | |
| ST2 | State School Part 2 | 0.8169543533 | $396,068 | $396,068 | $323.57 | | |
| SWHIDPRBD | P & R S Whidbey BOND | 0.0152817568 | $396,068 | $396,068 | $6.05 | | |
| SWHIDPRBD2 | P & R S Whidbey BOND2 | 0.0138911264 | $396,068 | $396,068 | $5.50 | | |
| SWHIDPRMT | P & R S Whidbey GEN | 0.2053334452 | $396,068 | $396,068 | $81.33 | | |
| | Total Tax Rate: | 6.6934522006 | | | | | |
| | | | | Taxes w/Current Exemptions: | $2,651.06 | | |
| | | | | Taxes w/o Exemptions: | $2,651.06 | | |
Improvement / Building
| Improvement #1: | RESIDENTIAL | State Code: | Y | 1476.0 sqft | Value: | $286,068 |
| Bathrooms: | 1 | Bedrooms: | 2 | | Ceiling: | DRYWALL PAINTED | Cooling: | HEAT PUMP/CONV/V | | Exterior Wall/Cover: | VINYL | Floor Covering: | VINYL 100% | | Floor Structure: | WOOD W/SUBFLOOR | Foundation: | CONCRETE | | Interior Finish: | DRYWALL PAINT | Plumbing Fixture Cnt: | 9 | | Roof Slope: | 6" IN 12" | Roof Structure/Cover: | CJ ALUMINIUM HEAVY |
|
| | Type | Description | Class CD | Sub Class CD | Year Built | Area |
| | BAS | BASE/MAIN FLOOR | 3 | 0 | 2014 | 1476.0 |
| | BIG | BUILT IN GARAGE | 3 | 0 | 2014 | 2952.0 |
| | UTY | STORAGE/UTILITY | 3 | 0 | 2014 | 1476.0 |
| | CPD | OPEN CARPORT DIRT FLOOR | 3 | 0 | 2014 | 2000.0 |
Sketch
Property Image
Land
| 1 | 18 | AC (02.01-03.00) | 0.0000 | 0.00 | 0.00 | 0.00 | 1.00 | $110,000 | $0 |
Roll Value History
| 2026 | N/A | N/A | N/A | N/A | N/A |
| 2025 | $286,068 | $110,000 | $0 | $396,068 | $396,068 |
| 2024 | $268,945 | $110,000 | $0 | $378,945 | $378,945 |
| 2023 | $203,502 | $110,000 | $0 | $313,502 | $313,502 |
| 2022 | $0 | $100,000 | $0 | $100,000 | $100,000 |
| 2021 | $0 | $100,000 | $0 | $100,000 | $100,000 |
| 2020 | $0 | $90,000 | $0 | $90,000 | $90,000 |
| 2019 | $0 | $100,000 | $0 | $100,000 | $100,000 |
| 2018 | $0 | $100,000 | $0 | $100,000 | $100,000 |
| 2017 | $0 | $100,000 | $0 | $100,000 | $100,000 |
| 2016 | $0 | $100,000 | $0 | $100,000 | $100,000 |
| 2015 | $0 | $100,000 | $0 | $100,000 | $100,000 |
| 2014 | $0 | $100,000 | $0 | $100,000 | $100,000 |
| 2013 | $0 | $100,000 | $0 | $100,000 | $100,000 |
| 2012 | $0 | $100,000 | $0 | $100,000 | $100,000 |
| 2011 | $0 | $100,000 | $0 | $100,000 | $100,000 |
| 2010 | $0 | $100,000 | $0 | $100,000 | $100,000 |
| 2009 | $0 | $125,000 | $0 | $125,000 | $125,000 |
| 2008 | $0 | $100,000 | $0 | $100,000 | $100,000 |
| 2007 | $0 | $100,000 | $0 | $100,000 | $100,000 |
Deed and Sales History
| 1 | 08/30/2024 | WD | Warranty Deed | KN IRA INVESTMENTS LLC | INGALLS, SKYLAR | | | $210,000.00 | 61143 | 4576584 |
| 2 | 04/05/2021 | WD | Warranty Deed | MORGISON, BRENDA J | KN IRA INVESTMENTS LLC | | | $92,000.00 | 47713 | 4516120 |
| 3 | 12/08/2016 | 5 | DNU - Marriage License/Name Change | PREWITT, BRENDA J | MORGISON, BRENDA J | | | $0.00 | 27955 | 4416434 |
| 4 | 05/01/1994 | WD | Warranty Deed | SCHUSTED, TERRY E | PREWITT, BRENDA J | | | $35,000.00 | 41890 | 94011083 |
| 5 | 04/01/1990 | WD | Warranty Deed | SCHUSTED, TERRY E | SCHUSTED, TERRY E | | | $1,600.00 | 2068 | 90006742 |
| 6 | 07/01/1979 | CD | DNU - Correction Deed | SCHUSTED, LARRY E | SCHUSTED, TERRY E | | | $0.00 | 93609 | 356079 |
| 7 | 06/01/1978 | OTHER | Other - Misc. Documents | Unknown | SCHUSTED, LARRY E | | | $10,000.00 | 830970 | 3354720 |
Payout Agreement
| No payout information available.. |