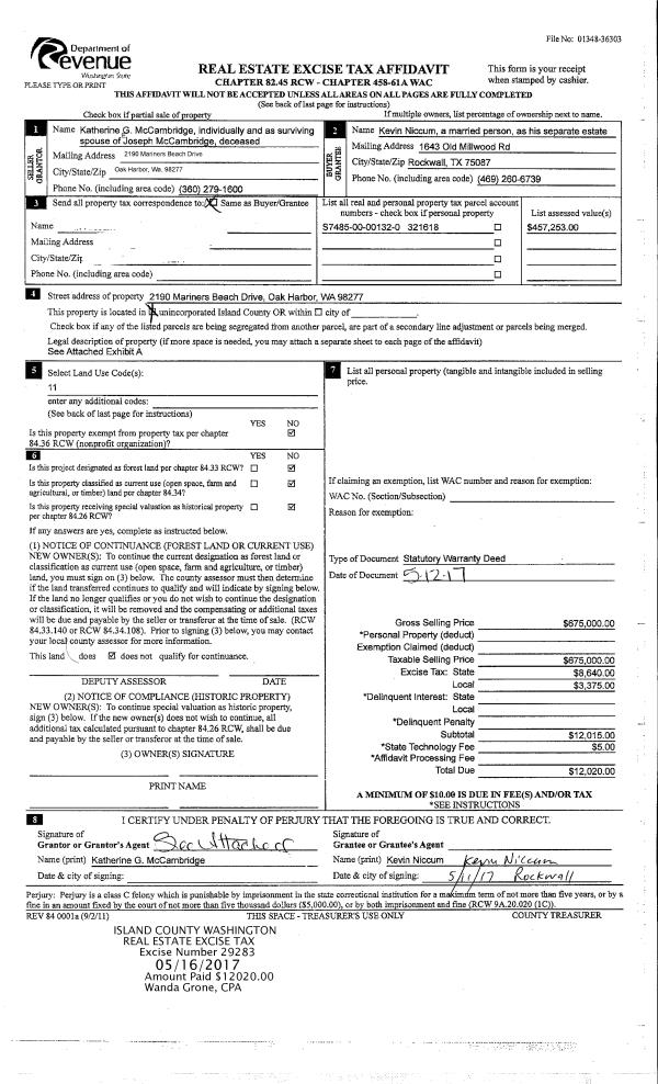
Property
Account |
| Property ID: | 326999 | Abbreviated Legal Description: | MUTINY BAY RIVIERA CONDO APT 7 NOW UNIT 7 BLDG 828 3.77% INT |
| Geographic ID: | S7545-00-00007-0 | Agent Code: | |
| Type: | Real | | |
| Tax Area: | 710 - APPRAISER-S Whid Schl Dist, outside Langley, improved & 1 acre or less | Land Use Code | 14 |
| Open Space: | N | DFL | N |
| Historic Property: | N | Remodel Property: | N |
| Multi-Family Redevelopment: | N | | |
| Township: | | Section: | |
| Range: | |
Location |
| Address: | 828 OLD BEACH RD UNIT 7 FREELAND, WA 98249 | Mapsco: | |
| Neighborhood: | 33*FR-mut riviera | Map ID: | 305 |
| Neighborhood CD: | 33*FRmtriv |
Owner |
| Name: | ALLEN ET AL, WENDY | Owner ID: | 284009 |
| Mailing Address: | 611 21ST AVE E SEATTLE, WA 98112 | % Ownership: | 100.0000000000% |
| | | Exemptions: | |
Taxes and Assessment Details
Values
| (+) Improvement Homesite Value: | + | $0 | |
| (+) Improvement Non-Homesite Value: | + | $230,293 | |
| (+) Land Homesite Value: | + | $0 | |
| (+) Land Non-Homesite Value: | + | $500,000 | |
| (+) Curr Use (HS): | + | $0 | $0 |
| (+) Curr Use (NHS): | + | $0 | $0 |
| | | -------------------------- | |
| (=) Market Value: | = | $730,293 | |
| (–) Productivity Loss: | – | $0 | |
| | | -------------------------- | |
| (=) Subtotal: | = | $730,293 | |
| (+) Senior Appraised Value: | + | $0 | |
| (+) Non-Senior Appraised Value: | + | $730,293 | |
| | | -------------------------- | |
| (=) Total Appraised Value: | = | $730,293 | |
| (–) Senior Exemption Loss: | – | $0 | |
| (–) Exemption Loss: | – | $0 | |
| | | -------------------------- | |
| (=) Taxable Value: | = | $730,293 | |
Taxing Jurisdiction
| Owner: | ALLEN ET AL, WENDY | | |
| % Ownership: | 100.0000000000% | | |
| Total Value: | $730,293 | | |
| Tax Area: | 710 - APPRAISER-S Whid Schl Dist, outside Langley, improved & 1 acre or less |
| CF | Conservation Futures | 0.0316035091 | $730,293 | $730,293 | $23.08 | | |
| FIRE3 | Fire & Rescue Dist #3 S Whidbey GEN | 1.2004855531 | $730,293 | $730,293 | $876.71 | | |
| HOBOND | Hospital BOND | 0.1910887512 | $730,293 | $730,293 | $139.55 | | |
| HOGEN | Hospital GEN | 0.3902502903 | $730,293 | $730,293 | $285.00 | | |
| CE | County Current Expense | 0.3708482477 | $730,293 | $730,293 | $270.83 | | |
| CR | County Roads | 0.4584763726 | $730,293 | $730,293 | $334.82 | | |
| ISLANDEMS | Hospital GEN (EMS) | 0.5000000000 | $730,293 | $730,293 | $365.15 | | |
| LIB | Library Sno-Isle GEN | 0.3153421757 | $730,293 | $730,293 | $230.29 | | |
| PORTWHID | Port of S Whidbey GEN | 0.1094540357 | $730,293 | $730,293 | $79.93 | | |
| SCH206BOND | School 206 BOND | 0.3161759235 | $730,293 | $730,293 | $230.90 | | |
| SCH206MO | School 206 Enrichment | 0.4547169547 | $730,293 | $730,293 | $332.08 | | |
| ST | State School | 1.3035497053 | $730,293 | $730,293 | $951.97 | | |
| ST2 | State School Part 2 | 0.8169543533 | $730,293 | $730,293 | $596.62 | | |
| SWHIDPRBD | P & R S Whidbey BOND | 0.0152817568 | $730,293 | $730,293 | $11.16 | | |
| SWHIDPRBD2 | P & R S Whidbey BOND2 | 0.0138911264 | $730,293 | $730,293 | $10.14 | | |
| SWHIDPRMT | P & R S Whidbey GEN | 0.2053334452 | $730,293 | $730,293 | $149.95 | | |
| | Total Tax Rate: | 6.6934522006 | | | | | |
| | | | | Taxes w/Current Exemptions: | $4,888.18 | | |
| | | | | Taxes w/o Exemptions: | $4,888.18 | | |
Improvement / Building
| Improvement #1: | RESIDENTIAL | State Code: | A1 | 1344.0 sqft | Value: | $230,293 |
| Bathrooms: | 1.5 | Bedrooms: | 2 | | Ceiling: | DRY WALL SPRAYED | Exterior Wall/Cover: | SHINGLE | | Floor Covering: | CARPET/VINYL 80-20 | Floor Structure: | WOOD W/SUBFLOOR | | Foundation: | CONCRETE | Heating: | BASEBOARD ELECTRIC | | Interior Finish: | DRYWALL PAINT | Plumbing Fixture Cnt: | 8 | | Roof Slope: | 5" IN 12" | Roof Structure/Cover: | CJ ASPHALT |
|
| | Type | Description | Class CD | Sub Class CD | Year Built | Area |
| | BAS | BASE/MAIN FLOOR | 4 | 0 | 1973 | 792.0 |
| | OP4 | OPEN PORCH W/CEILING-ROOF | 4 | 0 | 1973 | 120.0 |
| | UPS | UPPER STORY | 4 | 0 | 1973 | 552.0 |
| | OWR | OPEN WOOD PORCH W/STEPS/ROOF | 4 | 0 | 1973 | 72.0 |
| | COMA | Common Area Improvement | 4 | 0 | 1973 | 0.0 |
Sketch
Property Image
Land
| 1 | 61 | MULTIPLE RESIDENCES | 0.0000 | 7778.00 | 0.00 | 0.00 | 1.00 | $500,000 | $0 |
Roll Value History
| 2026 | N/A | N/A | N/A | N/A | N/A |
| 2025 | $230,293 | $500,000 | $0 | $730,293 | $730,293 |
| 2024 | $237,787 | $420,000 | $0 | $657,787 | $657,787 |
| 2023 | $240,933 | $420,000 | $0 | $660,933 | $660,933 |
| 2022 | $222,003 | $420,000 | $0 | $642,003 | $642,003 |
| 2021 | $196,896 | $360,000 | $0 | $556,896 | $556,896 |
| 2020 | $192,259 | $300,000 | $0 | $492,259 | $492,259 |
| 2019 | $119,994 | $320,000 | $0 | $439,994 | $439,994 |
| 2018 | $120,421 | $300,000 | $0 | $420,421 | $420,421 |
| 2017 | $121,280 | $174,538 | $0 | $295,818 | $295,818 |
| 2016 | $122,996 | $174,538 | $0 | $297,534 | $297,534 |
| 2015 | $113,603 | $174,538 | $0 | $288,141 | $288,141 |
| 2014 | $115,165 | $174,538 | $0 | $289,703 | $289,703 |
| 2013 | $148,854 | $174,538 | $0 | $323,392 | $323,392 |
| 2012 | $148,854 | $174,538 | $0 | $323,392 | $323,392 |
| 2011 | $148,854 | $174,538 | $0 | $323,392 | $323,392 |
| 2010 | $154,445 | $174,538 | $0 | $328,983 | $328,983 |
| 2009 | $161,016 | $233,340 | $0 | $394,356 | $394,356 |
| 2008 | $162,952 | $248,896 | $0 | $411,848 | $411,848 |
| 2007 | $159,689 | $108,892 | $0 | $268,581 | $268,581 |
Deed and Sales History
| 1 | 08/09/2017 | QCD | Quit Claim Deed | ALLEN ET AL, WENDY | ALLEN ET AL, WENDY | | | $0.00 | 30678 | 4428347 |
| 2 | 08/09/2017 | WD | Warranty Deed | ALLEN ET AL, WENDY | ALLEN ET AL, WENDY | | | $160,000.00 | 30677 | 4428346 |
| 3 | 10/24/2011 | WD | Warranty Deed | ALLEN ET AL, WENDY C | ALLEN ET AL, WENDY | | | $131,200.00 | 6007 | 4303904 |
| 4 | 07/20/2005 | WD | Warranty Deed | ALLEN, WENDY C | ALLEN ET AL, WENDY C | | | $250,000.00 | 53607 | 4142250 |
| 5 | 03/01/1997 | WD | Warranty Deed | ALLEN, WENDY C | ALLEN, WENDY C | | | $200,000.00 | 71014 | 97004593 |
| 6 | 03/01/1997 | ESTSEPPROP | Establish Separate Property | YEDICA, DEAN C | ALLEN, WENDY C | | | $0.00 | 71015 | 97004594 |
| 7 | 12/01/1988 | WD | Warranty Deed | ALLEN, ROBERT H | YEDICA, DEAN C | | | $110,000.00 | 84134 | 88015449 |
| 8 | 01/01/1900 | OTHER | Other - Misc. Documents | Unknown | ALLEN, ROBERT H | | | $0.00 | 0 | 0 |
Payout Agreement
| No payout information available.. |