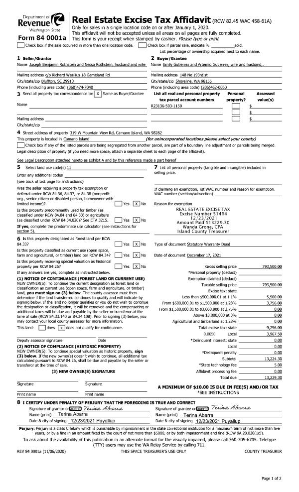
Property
Account |
| Property ID: | 327275 | Abbreviated Legal Description: | MUTINY BAY RIVIERA CONDO APT 35 NOW UNIT 202 BLDG 802 3.23% INT |
| Geographic ID: | S7545-00-00035-0 | Agent Code: | |
| Type: | Real | | |
| Tax Area: | 710 - APPRAISER-S Whid Schl Dist, outside Langley, improved & 1 acre or less | Land Use Code | 14 |
| Open Space: | N | DFL | N |
| Historic Property: | N | Remodel Property: | N |
| Multi-Family Redevelopment: | N | | |
| Township: | | Section: | |
| Range: | |
Location |
| Address: | 802 OLD BEACH RD UNIT 202 FREELAND, WA 98249 | Mapsco: | |
| Neighborhood: | 33*FR-mut riviera | Map ID: | 305 |
| Neighborhood CD: | 33*FRmtriv |
Owner |
| Name: | DEVINE ET AL, KATHRYN ANN | Owner ID: | 301206 |
| Mailing Address: | C/O ANDREA ORTH 3816 81ST AVE SE MERCER ISLAND, WA 98040 | % Ownership: | 100.0000000000% |
| | | Exemptions: | |
Taxes and Assessment Details
Values
| (+) Improvement Homesite Value: | + | $0 | |
| (+) Improvement Non-Homesite Value: | + | $200,777 | |
| (+) Land Homesite Value: | + | $0 | |
| (+) Land Non-Homesite Value: | + | $500,000 | |
| (+) Curr Use (HS): | + | $0 | $0 |
| (+) Curr Use (NHS): | + | $0 | $0 |
| | | -------------------------- | |
| (=) Market Value: | = | $700,777 | |
| (–) Productivity Loss: | – | $0 | |
| | | -------------------------- | |
| (=) Subtotal: | = | $700,777 | |
| (+) Senior Appraised Value: | + | $0 | |
| (+) Non-Senior Appraised Value: | + | $700,777 | |
| | | -------------------------- | |
| (=) Total Appraised Value: | = | $700,777 | |
| (–) Senior Exemption Loss: | – | $0 | |
| (–) Exemption Loss: | – | $0 | |
| | | -------------------------- | |
| (=) Taxable Value: | = | $700,777 | |
Taxing Jurisdiction
| Owner: | DEVINE ET AL, KATHRYN ANN | | |
| % Ownership: | 100.0000000000% | | |
| Total Value: | $700,777 | | |
| Tax Area: | 710 - APPRAISER-S Whid Schl Dist, outside Langley, improved & 1 acre or less |
| CF | Conservation Futures | 0.0316035091 | $700,777 | $700,777 | $22.15 | | |
| FIRE3 | Fire & Rescue Dist #3 S Whidbey GEN | 1.2004855531 | $700,777 | $700,777 | $841.27 | | |
| HOBOND | Hospital BOND | 0.1910887512 | $700,777 | $700,777 | $133.91 | | |
| HOGEN | Hospital GEN | 0.3902502903 | $700,777 | $700,777 | $273.48 | | |
| CE | County Current Expense | 0.3708482477 | $700,777 | $700,777 | $259.88 | | |
| CR | County Roads | 0.4584763726 | $700,777 | $700,777 | $321.29 | | |
| ISLANDEMS | Hospital GEN (EMS) | 0.5000000000 | $700,777 | $700,777 | $350.39 | | |
| LIB | Library Sno-Isle GEN | 0.3153421757 | $700,777 | $700,777 | $220.98 | | |
| PORTWHID | Port of S Whidbey GEN | 0.1094540357 | $700,777 | $700,777 | $76.70 | | |
| SCH206BOND | School 206 BOND | 0.3161759235 | $700,777 | $700,777 | $221.57 | | |
| SCH206MO | School 206 Enrichment | 0.4547169547 | $700,777 | $700,777 | $318.66 | | |
| ST | State School | 1.3035497053 | $700,777 | $700,777 | $913.50 | | |
| ST2 | State School Part 2 | 0.8169543533 | $700,777 | $700,777 | $572.50 | | |
| SWHIDPRBD | P & R S Whidbey BOND | 0.0152817568 | $700,777 | $700,777 | $10.71 | | |
| SWHIDPRBD2 | P & R S Whidbey BOND2 | 0.0138911264 | $700,777 | $700,777 | $9.73 | | |
| SWHIDPRMT | P & R S Whidbey GEN | 0.2053334452 | $700,777 | $700,777 | $143.89 | | |
| | Total Tax Rate: | 6.6934522006 | | | | | |
| | | | | Taxes w/Current Exemptions: | $4,690.61 | | |
| | | | | Taxes w/o Exemptions: | $4,690.61 | | |
Improvement / Building
| Improvement #1: | RESIDENTIAL | State Code: | A1 | 1337.0 sqft | Value: | $200,777 |
| Bathrooms: | 1 | Bedrooms: | 2 | | Ceiling: | DRY WALL SPRAYED | Exterior Wall/Cover: | SHINGLE | | Floor Covering: | CARPET/VINYL 80-20 | Floor Structure: | WOOD W/SUBFLOOR | | Foundation: | CONCRETE | Heating: | BASEBOARD ELECTRIC | | Interior Finish: | DRYWALL PAINT | Plumbing Fixture Cnt: | 6 | | Roof Slope: | 5" IN 12" | Roof Structure/Cover: | CJ ASPHALT |
|
| | Type | Description | Class CD | Sub Class CD | Year Built | Area |
| | BAS | BASE/MAIN FLOOR | 4 | 0 | 1973 | 1038.0 |
| | OWP | OPEN WOOD PORCH W/STEPS | 4 | 0 | 1973 | 54.0 |
| | OWR | OPEN WOOD PORCH W/STEPS/ROOF | 4 | 0 | 1973 | 63.0 |
| | LOF | LOFT | 4 | 0 | 1973 | 299.0 |
| | COMA | Common Area Improvement | 4 | 0 | 1973 | 0.0 |
Sketch
Property Image
Land
| 1 | 61 | MULTIPLE RESIDENCES | 0.0000 | 7778.00 | 0.00 | 0.00 | 1.00 | $500,000 | $0 |
Roll Value History
| 2026 | N/A | N/A | N/A | N/A | N/A |
| 2025 | $200,777 | $500,000 | $0 | $700,777 | $700,777 |
| 2024 | $207,421 | $420,000 | $0 | $627,421 | $627,421 |
| 2023 | $210,146 | $420,000 | $0 | $630,146 | $630,146 |
| 2022 | $193,749 | $420,000 | $0 | $613,749 | $613,749 |
| 2021 | $171,991 | $360,000 | $0 | $531,991 | $531,991 |
| 2020 | $168,277 | $300,000 | $0 | $468,277 | $468,277 |
| 2019 | $107,474 | $320,000 | $0 | $427,474 | $427,474 |
| 2018 | $107,859 | $300,000 | $0 | $407,859 | $407,859 |
| 2017 | $108,628 | $174,538 | $0 | $283,166 | $283,166 |
| 2016 | $110,165 | $174,538 | $0 | $284,703 | $284,703 |
| 2015 | $124,992 | $174,538 | $0 | $299,530 | $299,530 |
| 2014 | $126,713 | $174,538 | $0 | $301,251 | $301,251 |
| 2013 | $131,878 | $174,538 | $0 | $306,416 | $306,416 |
| 2012 | $131,878 | $174,538 | $0 | $306,416 | $306,416 |
| 2011 | $131,878 | $174,538 | $0 | $306,416 | $306,416 |
| 2010 | $158,979 | $174,538 | $0 | $333,517 | $333,517 |
| 2009 | $154,028 | $233,340 | $0 | $387,368 | $387,368 |
| 2008 | $155,981 | $248,896 | $0 | $404,877 | $404,877 |
| 2007 | $154,124 | $108,892 | $0 | $263,016 | $263,016 |
Deed and Sales History
| 1 | 08/18/2021 | BARGSLD | Bargain And Sale Deed | DEVINE, DARRELL A | DEVINE ET AL, KATHRYN ANN | | | $0.00 | 49711 | 4527285 |
| 2 | 02/03/2017 | WD | Warranty Deed | DEVINE, DARRELL A | DEVINE, DARRELL A | | | $115,000.00 | 27984 | 4416598 |
| 3 | 06/28/2005 | WD | Warranty Deed | DEVINE, DARRELL A | ORTH, NORBERT R | | | $70,000.00 | 53066 | 4139161 |
| 4 | 09/01/1992 | WD | Warranty Deed | DEVINE, DARRELL A | DEVINE, DARRELL A | | | $38,910.00 | 23871 | 92018740 |
| 5 | 02/01/1987 | WD | Warranty Deed | DEVINE, DARRELL A | DEVINE, DARRELL A | | | $0.00 | 70410 | 87002622 |
| 6 | 10/01/1986 | QCD | Quit Claim Deed | DEVINE, DARRELL A | DEVINE, DARRELL A | | | $0.00 | 62972 | 86013427 |
| 7 | 07/01/1980 | TRUSTEED | Trustee's Deed | KEIN, G C | DEVINE, DARRELL A | | | $0.00 | 2375 | 371166 |
Payout Agreement
| No payout information available.. |