Property
Account |
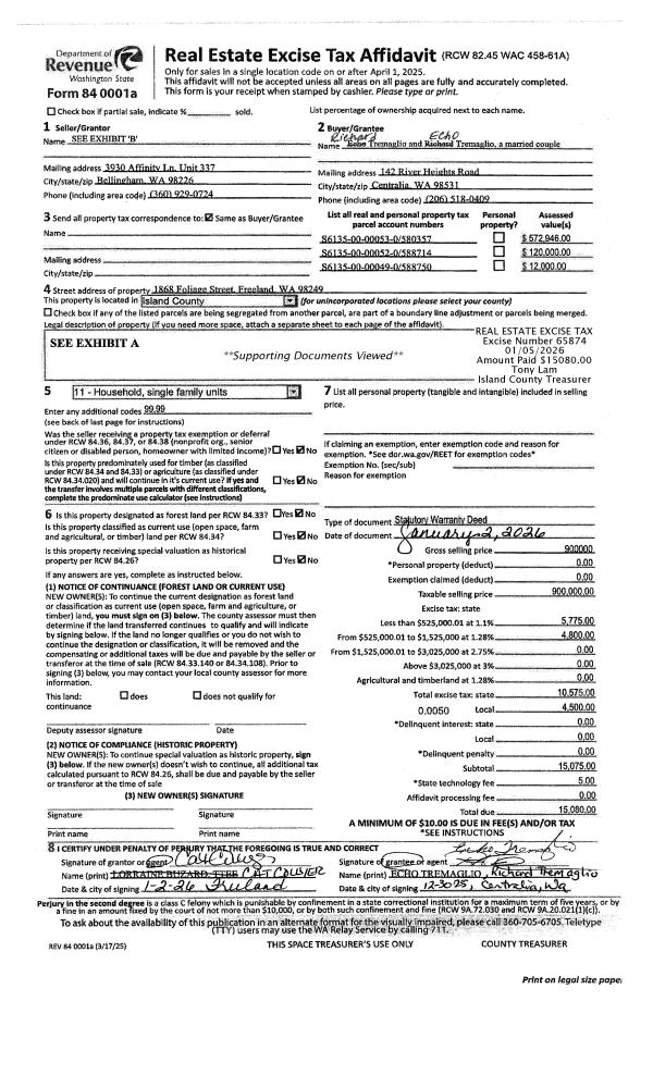
| Property ID: | 328014 | Abbreviated Legal Description: | MUTINY SANDS LOT 8 BLK 2 |
| Geographic ID: | S7555-00-02008-0 | Agent Code: | |
| Type: | Real | | |
| Tax Area: | 710 - APPRAISER-S Whid Schl Dist, outside Langley, improved & 1 acre or less | Land Use Code | 11 |
| Open Space: | N | DFL | N |
| Historic Property: | N | Remodel Property: | N |
| Multi-Family Redevelopment: | N | | |
| Township: | | Section: | |
| Range: | |
Location |
| Address: | 5536 BEACH BLUFF DR FREELAND, WA 98249 | Mapsco: | |
| Neighborhood: | Cycle 3 | Map ID: | 305 |
| Neighborhood CD: | 3 |
Owner |
| Name: | HOLMES, DEAN | Owner ID: | 190726 |
| Mailing Address: | 104 SIMMONS AVE ST SIMONS IS, GA 31522-2813 | % Ownership: | 100.0000000000% |
| | | Exemptions: | |
Taxes and Assessment Details
Values
| (+) Improvement Homesite Value: | + | $0 | |
| (+) Improvement Non-Homesite Value: | + | $256,948 | |
| (+) Land Homesite Value: | + | $0 | |
| (+) Land Non-Homesite Value: | + | $390,000 | |
| (+) Curr Use (HS): | + | $0 | $0 |
| (+) Curr Use (NHS): | + | $0 | $0 |
| | | -------------------------- | |
| (=) Market Value: | = | $646,948 | |
| (–) Productivity Loss: | – | $0 | |
| | | -------------------------- | |
| (=) Subtotal: | = | $646,948 | |
| (+) Senior Appraised Value: | + | $0 | |
| (+) Non-Senior Appraised Value: | + | $646,948 | |
| | | -------------------------- | |
| (=) Total Appraised Value: | = | $646,948 | |
| (–) Senior Exemption Loss: | – | $0 | |
| (–) Exemption Loss: | – | $0 | |
| | | -------------------------- | |
| (=) Taxable Value: | = | $646,948 | |
Taxing Jurisdiction
| Owner: | HOLMES, DEAN | | |
| % Ownership: | 100.0000000000% | | |
| Total Value: | $646,948 | | |
| Tax Area: | 710 - APPRAISER-S Whid Schl Dist, outside Langley, improved & 1 acre or less |
| CF | Conservation Futures | 0.0316035091 | $646,948 | $646,948 | $20.45 | | |
| FIRE3 | Fire & Rescue Dist #3 S Whidbey GEN | 1.2004855531 | $646,948 | $646,948 | $776.65 | | |
| HOBOND | Hospital BOND | 0.1910887512 | $646,948 | $646,948 | $123.62 | | |
| HOGEN | Hospital GEN | 0.3902502903 | $646,948 | $646,948 | $252.47 | | |
| CE | County Current Expense | 0.3708482477 | $646,948 | $646,948 | $239.92 | | |
| CR | County Roads | 0.4584763726 | $646,948 | $646,948 | $296.61 | | |
| ISLANDEMS | Hospital GEN (EMS) | 0.5000000000 | $646,948 | $646,948 | $323.47 | | |
| LIB | Library Sno-Isle GEN | 0.3153421757 | $646,948 | $646,948 | $204.01 | | |
| PORTWHID | Port of S Whidbey GEN | 0.1094540357 | $646,948 | $646,948 | $70.81 | | |
| SCH206BOND | School 206 BOND | 0.3161759235 | $646,948 | $646,948 | $204.55 | | |
| SCH206MO | School 206 Enrichment | 0.4547169547 | $646,948 | $646,948 | $294.18 | | |
| ST | State School | 1.3035497053 | $646,948 | $646,948 | $843.33 | | |
| ST2 | State School Part 2 | 0.8169543533 | $646,948 | $646,948 | $528.53 | | |
| SWHIDPRBD | P & R S Whidbey BOND | 0.0152817568 | $646,948 | $646,948 | $9.89 | | |
| SWHIDPRBD2 | P & R S Whidbey BOND2 | 0.0138911264 | $646,948 | $646,948 | $8.99 | | |
| SWHIDPRMT | P & R S Whidbey GEN | 0.2053334452 | $646,948 | $646,948 | $132.84 | | |
| | Total Tax Rate: | 6.6934522006 | | | | | |
| | | | | Taxes w/Current Exemptions: | $4,330.32 | | |
| | | | | Taxes w/o Exemptions: | $4,330.32 | | |
Improvement / Building
| Improvement #1: | RESIDENTIAL | State Code: | Y | 1467.0 sqft | Value: | $256,948 |
| Bathrooms: | 2 | Bedrooms: | 2 | | Ceiling: | TONGUE & GROOVE | Cooling: | HEAT PUMP/CONV/V | | Exterior Wall/Cover: | WOOD SIDING | Floor Covering: | CARPET/VINYL 80-20 | | Floor Structure: | WOOD W/SUBFLOOR | Foundation: | CONCRETE | | Interior Finish: | DRYWALL PAINT | Plumbing Fixture Cnt: | 8 | | Roof Slope: | 12" IN 12" | Roof Structure/Cover: | BEAM ASPHALT |
|
| | Type | Description | Class CD | Sub Class CD | Year Built | Area |
| | BAS | BASE/MAIN FLOOR | 4 | 0 | 1960 | 1167.0 |
| | OP4 | OPEN PORCH W/CEILING-ROOF | 4 | 0 | 1960 | 76.0 |
| | AGR | ATTACHED GARAGE | 4 | 0 | 1960 | 348.5 |
| | UTY | STORAGE/UTILITY | 4 | 0 | 1960 | 126.0 |
| | OWP | OPEN WOOD PORCH W/STEPS | 4 | 0 | 1960 | 699.0 |
| | LOF | LOFT | 4 | 0 | 1960 | 300.0 |
Sketch
Property Image
Land
| 1 | 14 | SQ (08001-12000) | 0.1400 | 6098.40 | 0.00 | 0.00 | 1.00 | $390,000 | $0 |
Roll Value History
| 2026 | N/A | N/A | N/A | N/A | N/A |
| 2025 | $256,948 | $390,000 | $0 | $646,948 | $646,948 |
| 2024 | $260,769 | $370,000 | $0 | $630,769 | $630,769 |
| 2023 | $264,590 | $370,000 | $0 | $634,590 | $634,590 |
| 2022 | $243,039 | $360,000 | $0 | $603,039 | $603,039 |
| 2021 | $214,351 | $350,000 | $0 | $564,351 | $564,351 |
| 2020 | $205,954 | $280,000 | $0 | $485,954 | $485,954 |
| 2019 | $126,239 | $270,000 | $0 | $396,239 | $396,239 |
| 2018 | $126,701 | $250,000 | $0 | $376,701 | $376,701 |
| 2017 | $127,619 | $200,000 | $0 | $327,619 | $327,619 |
| 2016 | $129,469 | $200,000 | $0 | $329,469 | $329,469 |
| 2015 | $131,319 | $150,000 | $0 | $281,319 | $281,319 |
| 2014 | $133,169 | $150,000 | $0 | $283,169 | $283,169 |
| 2013 | $132,078 | $150,000 | $0 | $282,078 | $282,078 |
| 2012 | $133,928 | $150,000 | $0 | $283,928 | $283,928 |
| 2011 | $135,777 | $150,000 | $0 | $285,777 | $285,777 |
| 2010 | $146,460 | $150,000 | $0 | $296,460 | $296,460 |
| 2009 | $150,936 | $175,000 | $0 | $325,936 | $325,936 |
| 2008 | $152,888 | $200,000 | $0 | $352,888 | $352,888 |
| 2007 | $115,753 | $200,000 | $0 | $315,753 | $315,753 |
Deed and Sales History
| 1 | 07/01/1996 | PRD | Personal Representatives Deed | SHIPMAN, EVELYN N | HOLMES, DEAN & | | | $155,000.00 | 62518 | 96012527 |
| 2 | 11/01/1982 | QCD | Quit Claim Deed | SHIPMAN, GEORGE A | SHIPMAN, EVELYN N | | | $0.00 | 22821 | 402956 |
| 3 | 01/01/1900 | OTHER | Other - Misc. Documents | Unknown | SHIPMAN, GEORGE A | | | $0.00 | 0 | 0 |
Payout Agreement
| No payout information available.. |