Property
Account |
| Property ID: | 328023 | Abbreviated Legal Description: | MUTINY SANDS LOT 9 BLK 2 |
| Geographic ID: | S7555-00-02009-0 | Agent Code: | |
| Type: | Real | | |
| Tax Area: | 710 - APPRAISER-S Whid Schl Dist, outside Langley, improved & 1 acre or less | Land Use Code | 11 |
| Open Space: | N | DFL | N |
| Historic Property: | N | Remodel Property: | N |
| Multi-Family Redevelopment: | N | | |
| Township: | | Section: | |
| Range: | |
Location |
| Address: | 5542 BEACH BLUFF DR FREELAND, WA 98249 | Mapsco: | |
| Neighborhood: | Cycle 3 | Map ID: | 305 |
| Neighborhood CD: | 3 |
Owner |
| Name: | ACKER, CHRISTOPHER | Owner ID: | 312339 |
| Mailing Address: | JILL ACKER 6851 49TH AVE NORTHEAST SEATTLE, WA 98115 | % Ownership: | 100.0000000000% |
| | | Exemptions: | |
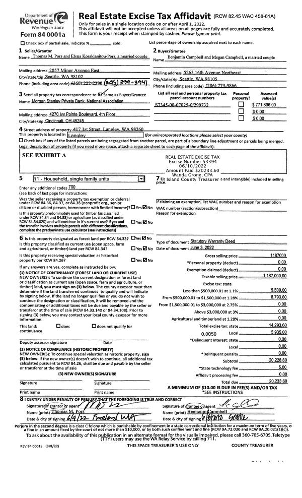
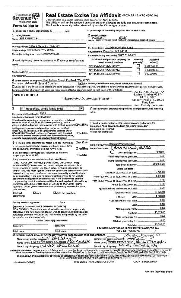
Taxes and Assessment Details
Values
| (+) Improvement Homesite Value: | + | $0 | |
| (+) Improvement Non-Homesite Value: | + | $386,213 | |
| (+) Land Homesite Value: | + | $0 | |
| (+) Land Non-Homesite Value: | + | $390,000 | |
| (+) Curr Use (HS): | + | $0 | $0 |
| (+) Curr Use (NHS): | + | $0 | $0 |
| | | -------------------------- | |
| (=) Market Value: | = | $776,213 | |
| (–) Productivity Loss: | – | $0 | |
| | | -------------------------- | |
| (=) Subtotal: | = | $776,213 | |
| (+) Senior Appraised Value: | + | $0 | |
| (+) Non-Senior Appraised Value: | + | $776,213 | |
| | | -------------------------- | |
| (=) Total Appraised Value: | = | $776,213 | |
| (–) Senior Exemption Loss: | – | $0 | |
| (–) Exemption Loss: | – | $0 | |
| | | -------------------------- | |
| (=) Taxable Value: | = | $776,213 | |
Taxing Jurisdiction
| Owner: | ACKER, CHRISTOPHER | | |
| % Ownership: | 100.0000000000% | | |
| Total Value: | $776,213 | | |
| Tax Area: | 710 - APPRAISER-S Whid Schl Dist, outside Langley, improved & 1 acre or less |
| CF | Conservation Futures | 0.0316035091 | $776,213 | $776,213 | $24.53 | | |
| FIRE3 | Fire & Rescue Dist #3 S Whidbey GEN | 1.2004855531 | $776,213 | $776,213 | $931.83 | | |
| HOBOND | Hospital BOND | 0.1910887512 | $776,213 | $776,213 | $148.33 | | |
| HOGEN | Hospital GEN | 0.3902502903 | $776,213 | $776,213 | $302.92 | | |
| CE | County Current Expense | 0.3708482477 | $776,213 | $776,213 | $287.86 | | |
| CR | County Roads | 0.4584763726 | $776,213 | $776,213 | $355.88 | | |
| ISLANDEMS | Hospital GEN (EMS) | 0.5000000000 | $776,213 | $776,213 | $388.11 | | |
| LIB | Library Sno-Isle GEN | 0.3153421757 | $776,213 | $776,213 | $244.77 | | |
| PORTWHID | Port of S Whidbey GEN | 0.1094540357 | $776,213 | $776,213 | $84.96 | | |
| SCH206BOND | School 206 BOND | 0.3161759235 | $776,213 | $776,213 | $245.42 | | |
| SCH206MO | School 206 Enrichment | 0.4547169547 | $776,213 | $776,213 | $352.96 | | |
| ST | State School | 1.3035497053 | $776,213 | $776,213 | $1,011.83 | | |
| ST2 | State School Part 2 | 0.8169543533 | $776,213 | $776,213 | $634.13 | | |
| SWHIDPRBD | P & R S Whidbey BOND | 0.0152817568 | $776,213 | $776,213 | $11.86 | | |
| SWHIDPRBD2 | P & R S Whidbey BOND2 | 0.0138911264 | $776,213 | $776,213 | $10.78 | | |
| SWHIDPRMT | P & R S Whidbey GEN | 0.2053334452 | $776,213 | $776,213 | $159.38 | | |
| | Total Tax Rate: | 6.6934522006 | | | | | |
| | | | | Taxes w/Current Exemptions: | $5,195.55 | | |
| | | | | Taxes w/o Exemptions: | $5,195.55 | | |
Improvement / Building
| Improvement #1: | RESIDENTIAL | State Code: | Y | 1734.1 sqft | Value: | $386,213 |
| Bathrooms: | 2 | Bedrooms: | 3 | | Ceiling: | TONGUE & GROOVE | Exterior Wall/Cover: | WOOD SIDING | | Floor Covering: | VINYL/HARDWOOD 20-80 | Floor Structure: | WOOD W/SUBFLOOR | | Foundation: | CONCRETE | Heating: | BASEBOARD ELECTRIC | | Interior Finish: | DRYWALL PAINT | Plumbing Fixture Cnt: | 10 | | Roof Slope: | 6" IN 12" | Roof Structure/Cover: | BEAM ASPHALT |
|
| | Type | Description | Class CD | Sub Class CD | Year Built | Area |
| | BAS | BASE/MAIN FLOOR | 5 | 0 | 1960 | 1250.3 |
| | OWP | OPEN WOOD PORCH W/STEPS | 5 | 0 | 1960 | 452.2 |
| | OWP | OPEN WOOD PORCH W/STEPS | 5 | 0 | 1960 | 313.1 |
| | LOF | LOFT | 5 | 0 | 1960 | 483.8 |
Sketch
| No sketches available for this property. |
Property Image
Land
| 1 | 14 | SQ (08001-12000) | 0.0000 | 0.00 | 0.00 | 0.00 | 1.00 | $390,000 | $0 |
Roll Value History
| 2026 | N/A | N/A | N/A | N/A | N/A |
| 2025 | $386,213 | $390,000 | $0 | $776,213 | $776,213 |
| 2024 | $304,758 | $370,000 | $0 | $674,758 | $674,758 |
| 2023 | $308,861 | $370,000 | $0 | $678,861 | $678,861 |
| 2022 | $253,419 | $360,000 | $0 | $613,419 | $613,419 |
| 2021 | $223,498 | $350,000 | $0 | $573,498 | $573,498 |
| 2020 | $218,193 | $280,000 | $0 | $498,193 | $498,193 |
| 2019 | $146,368 | $270,000 | $0 | $416,368 | $416,368 |
| 2018 | $146,920 | $250,000 | $0 | $396,920 | $396,920 |
| 2017 | $147,914 | $200,000 | $0 | $347,914 | $347,914 |
| 2016 | $150,122 | $200,000 | $0 | $350,122 | $350,122 |
| 2015 | $152,330 | $150,000 | $0 | $302,330 | $302,330 |
| 2014 | $154,536 | $150,000 | $0 | $304,536 | $304,536 |
| 2013 | $156,745 | $150,000 | $0 | $306,745 | $306,745 |
| 2012 | $158,953 | $150,000 | $0 | $308,953 | $308,953 |
| 2011 | $161,162 | $150,000 | $0 | $311,162 | $311,162 |
| 2010 | $171,407 | $150,000 | $0 | $321,407 | $321,407 |
| 2009 | $176,613 | $175,000 | $0 | $351,613 | $351,613 |
| 2008 | $178,841 | $200,000 | $0 | $378,841 | $378,841 |
| 2007 | $158,793 | $200,000 | $0 | $358,793 | $358,793 |
Deed and Sales History
| 1 | 05/14/2024 | WD | Warranty Deed | CARPENTER, ERIN | ACKER, CHRISTOPHER | | | $875,000.00 | 59952 | 4572346 |
| 2 | 07/18/2022 | WD | Warranty Deed | SCHLAIFER, DEBRA L | CARPENTER, ERIN | | | $729,000.00 | 54189 | 4549834 |
| 3 | 10/11/2021 | TOD | Transfer On Death Deed | SCHAIFLER, GERTRUDE E | SCHLAIFER, DEBRA L | | | $0.00 | 51348 | 4450092 |
| 4 | 08/23/2007 | QCD | Quit Claim Deed | SCHAIFLER, PHILLIP | SCHAIFLER, GERTRUDE E | | | $0.00 | 73046 | 4211358 |
| 5 | 05/01/1983 | TRUSTEED | Trustee's Deed | DAVIS, DORIS A | SCHAIFLER, PHILLIP | | | $90,000.00 | 31695 | 411286 |
| 6 | 01/01/1900 | OTHER | Other - Misc. Documents | Unknown | DAVIS, DORIS A | | | $0.00 | 0 | 0 |
Payout Agreement
| No payout information available.. |