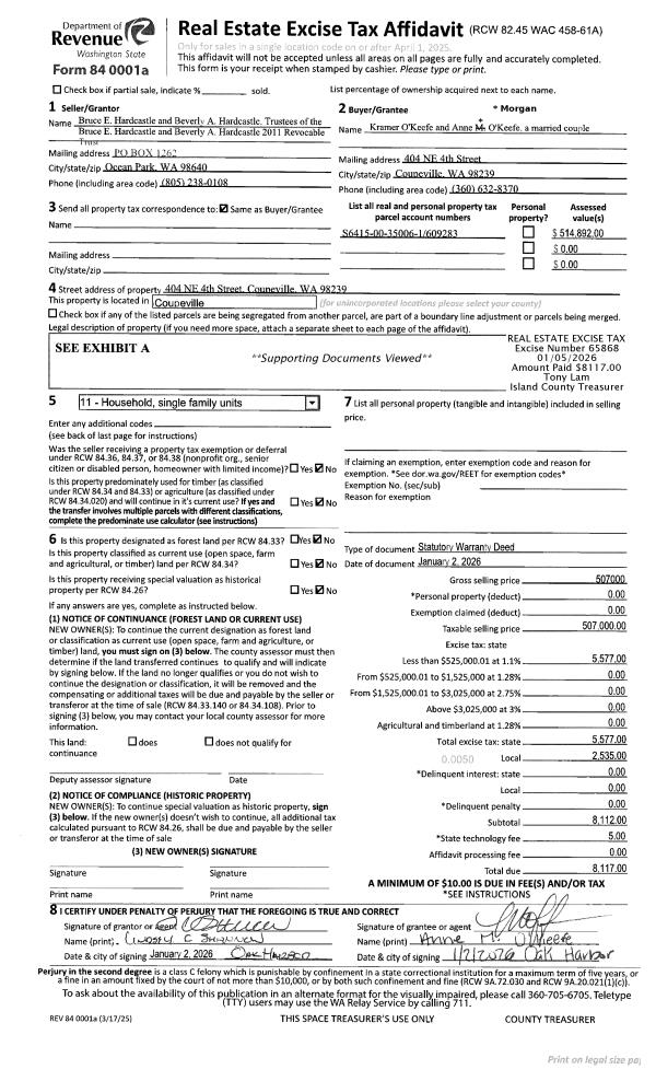
Property
Account |
| Property ID: | 328452 | Abbreviated Legal Description: | MUTINY SANDS LOT 14 & W/2 LOT 13 BLK 3 INCL ADJ TIDES |
| Geographic ID: | S7555-00-03014-0 | Agent Code: | |
| Type: | Real | | |
| Tax Area: | 710 - APPRAISER-S Whid Schl Dist, outside Langley, improved & 1 acre or less | Land Use Code | 11 |
| Open Space: | N | DFL | N |
| Historic Property: | N | Remodel Property: | N |
| Multi-Family Redevelopment: | N | | |
| Township: | | Section: | |
| Range: | |
Location |
| Address: | 968 MUTINY SHORE DR FREELAND, WA 98249 | Mapsco: | |
| Neighborhood: | Cycle 3 | Map ID: | 305 |
| Neighborhood CD: | 3 |
Owner |
| Name: | ANDERSON, ROGER A | Owner ID: | 290141 |
| Mailing Address: | LISA C ANDERSON 5301 NE 85TH ST SEATTLE, WA 98115 | % Ownership: | 100.0000000000% |
| | | Exemptions: | |
Taxes and Assessment Details
Values
| (+) Improvement Homesite Value: | + | $0 | |
| (+) Improvement Non-Homesite Value: | + | $671,576 | |
| (+) Land Homesite Value: | + | $0 | |
| (+) Land Non-Homesite Value: | + | $1,150,900 | |
| (+) Curr Use (HS): | + | $0 | $0 |
| (+) Curr Use (NHS): | + | $0 | $0 |
| | | -------------------------- | |
| (=) Market Value: | = | $1,822,476 | |
| (–) Productivity Loss: | – | $0 | |
| | | -------------------------- | |
| (=) Subtotal: | = | $1,822,476 | |
| (+) Senior Appraised Value: | + | $0 | |
| (+) Non-Senior Appraised Value: | + | $1,822,476 | |
| | | -------------------------- | |
| (=) Total Appraised Value: | = | $1,822,476 | |
| (–) Senior Exemption Loss: | – | $0 | |
| (–) Exemption Loss: | – | $0 | |
| | | -------------------------- | |
| (=) Taxable Value: | = | $1,822,476 | |
Taxing Jurisdiction
| Owner: | ANDERSON, ROGER A | | |
| % Ownership: | 100.0000000000% | | |
| Total Value: | $1,822,476 | | |
| Tax Area: | 710 - APPRAISER-S Whid Schl Dist, outside Langley, improved & 1 acre or less |
| CF | Conservation Futures | 0.0316035091 | $1,822,476 | $1,822,476 | $57.60 | | |
| FIRE3 | Fire & Rescue Dist #3 S Whidbey GEN | 1.2004855531 | $1,822,476 | $1,822,476 | $2,187.86 | | |
| HOBOND | Hospital BOND | 0.1910887512 | $1,822,476 | $1,822,476 | $348.25 | | |
| HOGEN | Hospital GEN | 0.3902502903 | $1,822,476 | $1,822,476 | $711.22 | | |
| CE | County Current Expense | 0.3708482477 | $1,822,476 | $1,822,476 | $675.86 | | |
| CR | County Roads | 0.4584763726 | $1,822,476 | $1,822,476 | $835.56 | | |
| ISLANDEMS | Hospital GEN (EMS) | 0.5000000000 | $1,822,476 | $1,822,476 | $911.24 | | |
| LIB | Library Sno-Isle GEN | 0.3153421757 | $1,822,476 | $1,822,476 | $574.70 | | |
| PORTWHID | Port of S Whidbey GEN | 0.1094540357 | $1,822,476 | $1,822,476 | $199.48 | | |
| SCH206BOND | School 206 BOND | 0.3161759235 | $1,822,476 | $1,822,476 | $576.22 | | |
| SCH206MO | School 206 Enrichment | 0.4547169547 | $1,822,476 | $1,822,476 | $828.71 | | |
| ST | State School | 1.3035497053 | $1,822,476 | $1,822,476 | $2,375.69 | | |
| ST2 | State School Part 2 | 0.8169543533 | $1,822,476 | $1,822,476 | $1,488.88 | | |
| SWHIDPRBD | P & R S Whidbey BOND | 0.0152817568 | $1,822,476 | $1,822,476 | $27.85 | | |
| SWHIDPRBD2 | P & R S Whidbey BOND2 | 0.0138911264 | $1,822,476 | $1,822,476 | $25.32 | | |
| SWHIDPRMT | P & R S Whidbey GEN | 0.2053334452 | $1,822,476 | $1,822,476 | $374.22 | | |
| | Total Tax Rate: | 6.6934522006 | | | | | |
| | | | | Taxes w/Current Exemptions: | $12,198.66 | | |
| | | | | Taxes w/o Exemptions: | $12,198.66 | | |
Improvement / Building
| Improvement #1: | RESIDENTIAL | State Code: | Y | 2351.0 sqft | Value: | $671,576 |
| Bathrooms: | 4 | Bedrooms: | 3 | | Ceiling: | TONGUE & GROOVE | Exterior Wall/Cover: | CEMENT FIBER | | Floor Covering: | HARDWOOD/CARP 60-40 | Floor Structure: | WOOD W/SUBFLOOR | | Foundation: | CONCRETE | Heating: | FHA ELECTRIC | | Interior Finish: | DRYWALL PAINT | Plumbing Fixture Cnt: | 17 | | Roof Slope: | 3" IN 12" | Roof Structure/Cover: | CJ ALUMINIUM HEAVY |
|
| | Type | Description | Class CD | Sub Class CD | Year Built | Area |
| | BAS | BASE/MAIN FLOOR | 4 | 0 | 2020 | 2351.0 |
| | AGR | ATTACHED GARAGE | 4 | 0 | 2020 | 495.0 |
| | OWP | OPEN WOOD PORCH W/STEPS | 4 | 0 | 2020 | 459.0 |
| | OWR | OPEN WOOD PORCH W/STEPS/ROOF | 4 | 0 | 2020 | 1062.0 |
Sketch
Property Image
Land
| 1 | LB | LOW BANK | 0.0000 | 0.00 | 90.00 | 0.00 | 1.00 | $1,150,000 | $0 |
| 2 | 55 | TIDES | 0.0000 | 0.00 | 90.00 | 0.00 | 1.00 | $900 | $0 |
Roll Value History
| 2026 | N/A | N/A | N/A | N/A | N/A |
| 2025 | $671,576 | $1,150,900 | $0 | $1,822,476 | $1,822,476 |
| 2024 | $676,948 | $1,005,900 | $0 | $1,682,848 | $1,682,848 |
| 2023 | $682,322 | $1,005,900 | $0 | $1,688,222 | $1,688,222 |
| 2022 | $624,345 | $960,900 | $0 | $1,585,245 | $1,585,245 |
| 2021 | $552,778 | $800,900 | $0 | $1,353,678 | $1,353,678 |
| 2020 | $311,974 | $800,900 | $0 | $1,112,874 | $1,112,874 |
| 2019 | $0 | $800,900 | $0 | $800,900 | $800,900 |
| 2018 | $122,379 | $725,900 | $0 | $848,279 | $848,279 |
| 2017 | $123,235 | $700,900 | $0 | $824,135 | $824,135 |
| 2016 | $124,947 | $700,900 | $0 | $825,847 | $825,847 |
| 2015 | $126,658 | $700,900 | $0 | $827,558 | $827,558 |
| 2014 | $128,370 | $600,900 | $0 | $729,270 | $729,270 |
| 2013 | $113,698 | $632,187 | $0 | $745,885 | $745,885 |
| 2012 | $115,410 | $632,187 | $0 | $747,597 | $747,597 |
| 2011 | $117,121 | $632,187 | $0 | $749,308 | $749,308 |
| 2010 | $126,735 | $632,187 | $0 | $758,922 | $758,922 |
| 2009 | $132,288 | $850,496 | $0 | $982,784 | $982,784 |
| 2008 | $134,033 | $889,708 | $0 | $1,023,741 | $1,023,741 |
| 2007 | $103,749 | $889,078 | $0 | $992,827 | $992,827 |
Deed and Sales History
| 1 | 05/10/2019 | QCD | Quit Claim Deed | ANDERSON, LISA C | ANDERSON, ROGER A | | | $0.00 | 38856 | 4464835 |
| 2 | 05/10/2019 | QCD | Quit Claim Deed | ANDERSON TRUSTEE, LISA C | ANDERSON, LISA C | | | $0.00 | 38855 | 4464834 |
| 3 | 10/03/2014 | QCD | Quit Claim Deed | ANDERSON CO TRUSTEE, LISA C | ANDERSON TRUSTEE, LISA C | | | $0.00 | 17255 | 4367271 |
| 4 | 12/15/2010 | QCD | Quit Claim Deed | GURVICH, MAX A | ANDERSON CO TRUSTEE, LISA C | | | $0.00 | 3315 | 4288121 |
| 5 | 04/14/2003 | BLA | DNU - Boundary Line Adjustment | GURVICH, MAX A | GURVICH, MAX A | | | $0.00 | 69812 | 4037361 |
| 6 | 12/08/1959 | REC | Real Estate Contract | MUTINY SANDS INC, | GURVICH, MAX A | | | $6,600.00 | 6658 | 0 |
| 7 | 01/01/1900 | OTHER | Other - Misc. Documents | Unknown | MUTINY SANDS INC, | | | $0.00 | 0 | 0 |
Payout Agreement
| No payout information available.. |