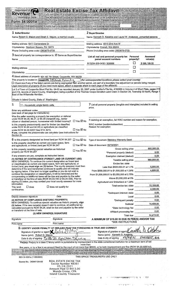
Property
Account |
| Property ID: | 328470 | Abbreviated Legal Description: | MUTINY SANDS LOT 16 BLK 3 INCL ADJ TIDES |
| Geographic ID: | S7555-00-03016-0 | Agent Code: | |
| Type: | Real | | |
| Tax Area: | 710 - APPRAISER-S Whid Schl Dist, outside Langley, improved & 1 acre or less | Land Use Code | 11 |
| Open Space: | N | DFL | N |
| Historic Property: | N | Remodel Property: | N |
| Multi-Family Redevelopment: | N | | |
| Township: | | Section: | |
| Range: | |
Location |
| Address: | 958 MUTINY SHORE DR FREELAND, WA 98249 | Mapsco: | |
| Neighborhood: | Cycle 3 | Map ID: | 305 |
| Neighborhood CD: | 3 |
Owner |
| Name: | CRISERA TTEE, MELISSA D | Owner ID: | 297540 |
| Mailing Address: | 1931 BOYER AVE E SEATTLE, WA 98112 | % Ownership: | 100.0000000000% |
| | | Exemptions: | |
Taxes and Assessment Details
Values
| (+) Improvement Homesite Value: | + | $0 | |
| (+) Improvement Non-Homesite Value: | + | $406,758 | |
| (+) Land Homesite Value: | + | $0 | |
| (+) Land Non-Homesite Value: | + | $1,150,720 | |
| (+) Curr Use (HS): | + | $0 | $0 |
| (+) Curr Use (NHS): | + | $0 | $0 |
| | | -------------------------- | |
| (=) Market Value: | = | $1,557,478 | |
| (–) Productivity Loss: | – | $0 | |
| | | -------------------------- | |
| (=) Subtotal: | = | $1,557,478 | |
| (+) Senior Appraised Value: | + | $0 | |
| (+) Non-Senior Appraised Value: | + | $1,557,478 | |
| | | -------------------------- | |
| (=) Total Appraised Value: | = | $1,557,478 | |
| (–) Senior Exemption Loss: | – | $0 | |
| (–) Exemption Loss: | – | $0 | |
| | | -------------------------- | |
| (=) Taxable Value: | = | $1,557,478 | |
Taxing Jurisdiction
| Owner: | CRISERA TTEE, MELISSA D | | |
| % Ownership: | 100.0000000000% | | |
| Total Value: | $1,557,478 | | |
| Tax Area: | 710 - APPRAISER-S Whid Schl Dist, outside Langley, improved & 1 acre or less |
| CF | Conservation Futures | 0.0316035091 | $1,557,478 | $1,557,478 | $49.22 | | |
| FIRE3 | Fire & Rescue Dist #3 S Whidbey GEN | 1.2004855531 | $1,557,478 | $1,557,478 | $1,869.73 | | |
| HOBOND | Hospital BOND | 0.1910887512 | $1,557,478 | $1,557,478 | $297.62 | | |
| HOGEN | Hospital GEN | 0.3902502903 | $1,557,478 | $1,557,478 | $607.81 | | |
| CE | County Current Expense | 0.3708482477 | $1,557,478 | $1,557,478 | $577.59 | | |
| CR | County Roads | 0.4584763726 | $1,557,478 | $1,557,478 | $714.07 | | |
| ISLANDEMS | Hospital GEN (EMS) | 0.5000000000 | $1,557,478 | $1,557,478 | $778.74 | | |
| LIB | Library Sno-Isle GEN | 0.3153421757 | $1,557,478 | $1,557,478 | $491.14 | | |
| PORTWHID | Port of S Whidbey GEN | 0.1094540357 | $1,557,478 | $1,557,478 | $170.47 | | |
| SCH206BOND | School 206 BOND | 0.3161759235 | $1,557,478 | $1,557,478 | $492.44 | | |
| SCH206MO | School 206 Enrichment | 0.4547169547 | $1,557,478 | $1,557,478 | $708.21 | | |
| ST | State School | 1.3035497053 | $1,557,478 | $1,557,478 | $2,030.25 | | |
| ST2 | State School Part 2 | 0.8169543533 | $1,557,478 | $1,557,478 | $1,272.39 | | |
| SWHIDPRBD | P & R S Whidbey BOND | 0.0152817568 | $1,557,478 | $1,557,478 | $23.80 | | |
| SWHIDPRBD2 | P & R S Whidbey BOND2 | 0.0138911264 | $1,557,478 | $1,557,478 | $21.64 | | |
| SWHIDPRMT | P & R S Whidbey GEN | 0.2053334452 | $1,557,478 | $1,557,478 | $319.80 | | |
| | Total Tax Rate: | 6.6934522006 | | | | | |
| | | | | Taxes w/Current Exemptions: | $10,424.92 | | |
| | | | | Taxes w/o Exemptions: | $10,424.92 | | |
Improvement / Building
| Improvement #1: | RESIDENTIAL | State Code: | Y | 2037.0 sqft | Value: | $406,758 |
| Bathrooms: | 3 | Bedrooms: | 3 | | Ceiling: | TONGUE & GROOVE | Exterior Wall/Cover: | COMMON BRICK VENEER | | Floor Covering: | HARDWOOD/CARP 60-40 | Floor Structure: | WOOD W/SUBFLOOR | | Foundation: | CONCRETE BLOCKS | Heating: | FHA GAS | | Interior Finish: | DRYWALL PAINT | Plumbing Fixture Cnt: | 12 | | Roof Slope: | 4" IN 12" | Roof Structure/Cover: | CJ ASPHALT |
|
| | Type | Description | Class CD | Sub Class CD | Year Built | Area |
| | BAS | BASE/MAIN FLOOR | 3 | 0 | 1960 | 2037.0 |
| | OP4 | OPEN PORCH W/CEILING-ROOF | 3 | 0 | 1960 | 20.0 |
| | AGR | ATTACHED GARAGE | 3 | 0 | 1960 | 619.5 |
| | OWP | OPEN WOOD PORCH W/STEPS | 3 | 0 | 1960 | 936.0 |
| | OWC | OPEN WOOD PORCH W/STEPS/ROOF/C | 3 | 0 | 1960 | 240.0 |
Sketch
Property Image
Land
| 1 | LB | LOW BANK | 0.0000 | 0.00 | 72.00 | 0.00 | 1.00 | $1,150,000 | $0 |
| 2 | 55 | TIDES | 0.0000 | 0.00 | 72.00 | 0.00 | 1.00 | $720 | $0 |
Roll Value History
| 2026 | N/A | N/A | N/A | N/A | N/A |
| 2025 | $406,758 | $1,150,720 | $0 | $1,557,478 | $1,557,478 |
| 2024 | $411,890 | $1,005,720 | $0 | $1,417,610 | $1,417,610 |
| 2023 | $417,023 | $1,005,720 | $0 | $1,422,743 | $1,422,743 |
| 2022 | $382,280 | $960,720 | $0 | $1,343,000 | $1,343,000 |
| 2021 | $336,468 | $800,720 | $0 | $1,137,188 | $1,137,188 |
| 2020 | $328,119 | $800,720 | $0 | $1,128,839 | $1,128,839 |
| 2019 | $237,869 | $800,720 | $0 | $1,038,589 | $1,038,589 |
| 2018 | $238,601 | $725,720 | $0 | $964,321 | $964,321 |
| 2017 | $240,052 | $600,720 | $0 | $840,772 | $840,772 |
| 2016 | $242,979 | $600,720 | $0 | $843,699 | $843,699 |
| 2015 | $224,494 | $600,720 | $0 | $825,214 | $825,214 |
| 2014 | $222,951 | $500,720 | $0 | $723,671 | $723,671 |
| 2013 | $236,034 | $495,649 | $0 | $731,683 | $731,683 |
| 2012 | $239,062 | $495,649 | $0 | $734,711 | $734,711 |
| 2011 | $242,086 | $495,649 | $0 | $737,735 | $737,735 |
| 2010 | $251,880 | $495,649 | $0 | $747,529 | $747,529 |
| 2009 | $262,822 | $709,319 | $0 | $972,141 | $972,141 |
| 2008 | $266,029 | $742,023 | $0 | $1,008,052 | $1,008,052 |
| 2007 | $260,338 | $741,519 | $0 | $1,001,857 | $1,001,857 |
Deed and Sales History
| 1 | 11/18/2020 | WD | Warranty Deed | DUZAN, MARY ELIZABETH | CRISERA TTEE, MELISSA D | | | $0.00 | 46360 | 4506663 |
| 2 | 08/07/2000 | PRD | Personal Representatives Deed | PHILPOT, LYNN S JEROME | DUZAN, MARY ELIZABETH | | | $835,000.00 | 2975 | 20013893 |
| 3 | 02/23/1998 | WD | Warranty Deed | JEROME, RUTH E | PHILPOT, LYNN S JEROME | | | $0.00 | 82632 | 98013564 |
| 4 | 02/01/1996 | QCD | Quit Claim Deed | JEROME, RUTH E | JEROME, RUTH E | | | $0.00 | 64144 | 96020145 |
| 5 | 12/01/1995 | QCD | Quit Claim Deed | JEROME, FRANK E | JEROME, RUTH E | | | $0.00 | 54464 | 95020620 |
| 6 | 01/01/1900 | OTHER | Other - Misc. Documents | Unknown | PHILPOT-JEROME, S | | | $0.00 | 82632 | 98013564 |
| 7 | 01/01/1900 | OTHER | Other - Misc. Documents | PHILPOT-JEROME, S | JEROME, FRANK E | | | $0.00 | 0 | 0 |
Payout Agreement
| No payout information available.. |