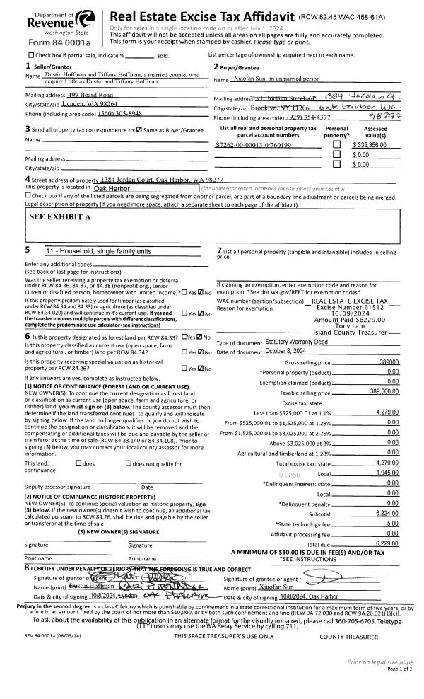
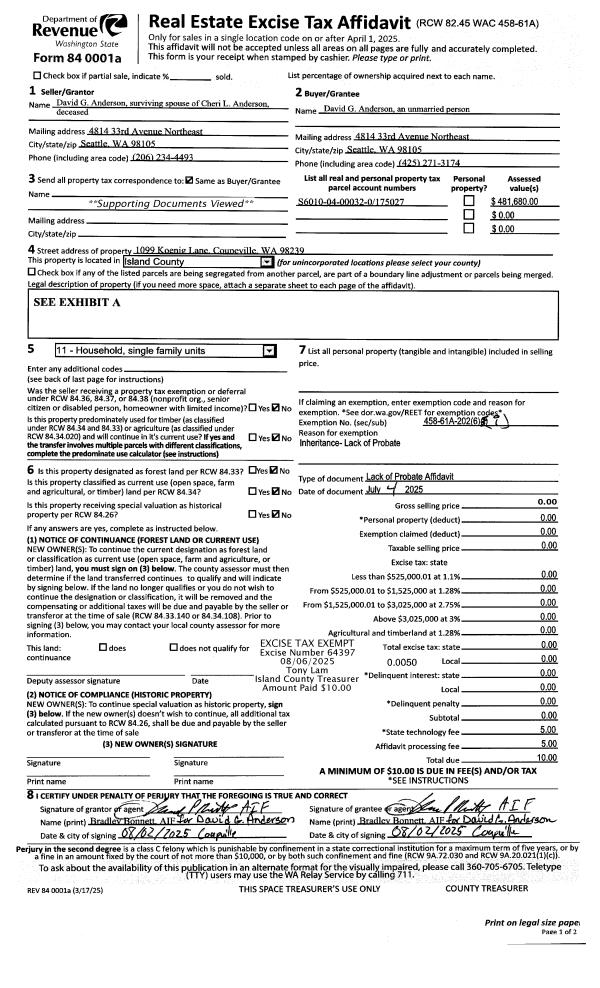
Property
Account |
| Property ID: | 328675 | Abbreviated Legal Description: | MUTINY VW MAN 1 LOT 5 |
| Geographic ID: | S7560-00-00005-0 | Agent Code: | |
| Type: | Real | | |
| Tax Area: | 710 - APPRAISER-S Whid Schl Dist, outside Langley, improved & 1 acre or less | Land Use Code | 11 |
| Open Space: | N | DFL | N |
| Historic Property: | N | Remodel Property: | N |
| Multi-Family Redevelopment: | N | | |
| Township: | | Section: | |
| Range: | |
Location |
| Address: | 1421 CHANNEL VIEW LN FREELAND, WA 98249 | Mapsco: | |
| Neighborhood: | Cycle 3 | Map ID: | 330 |
| Neighborhood CD: | 3 |
Owner |
| Name: | THORING TTEE, TODD C | Owner ID: | 315287 |
| Mailing Address: | PAMELA A THORING TTEE 1353 SHELL BEACH RD PISMO BEACH, CA 93449 | % Ownership: | 100.0000000000% |
| | | Exemptions: | |
Taxes and Assessment Details
Values
| (+) Improvement Homesite Value: | + | $0 | |
| (+) Improvement Non-Homesite Value: | + | $204,141 | |
| (+) Land Homesite Value: | + | $0 | |
| (+) Land Non-Homesite Value: | + | $250,000 | |
| (+) Curr Use (HS): | + | $0 | $0 |
| (+) Curr Use (NHS): | + | $0 | $0 |
| | | -------------------------- | |
| (=) Market Value: | = | $454,141 | |
| (–) Productivity Loss: | – | $0 | |
| | | -------------------------- | |
| (=) Subtotal: | = | $454,141 | |
| (+) Senior Appraised Value: | + | $0 | |
| (+) Non-Senior Appraised Value: | + | $454,141 | |
| | | -------------------------- | |
| (=) Total Appraised Value: | = | $454,141 | |
| (–) Senior Exemption Loss: | – | $0 | |
| (–) Exemption Loss: | – | $0 | |
| | | -------------------------- | |
| (=) Taxable Value: | = | $454,141 | |
Taxing Jurisdiction
| Owner: | THORING TTEE, TODD C | | |
| % Ownership: | 100.0000000000% | | |
| Total Value: | $454,141 | | |
| Tax Area: | 710 - APPRAISER-S Whid Schl Dist, outside Langley, improved & 1 acre or less |
| CF | Conservation Futures | 0.0316035091 | $454,141 | $454,141 | $14.35 | | |
| FIRE3 | Fire & Rescue Dist #3 S Whidbey GEN | 1.2004855531 | $454,141 | $454,141 | $545.19 | | |
| HOBOND | Hospital BOND | 0.1910887512 | $454,141 | $454,141 | $86.78 | | |
| HOGEN | Hospital GEN | 0.3902502903 | $454,141 | $454,141 | $177.23 | | |
| CE | County Current Expense | 0.3708482477 | $454,141 | $454,141 | $168.42 | | |
| CR | County Roads | 0.4584763726 | $454,141 | $454,141 | $208.21 | | |
| ISLANDEMS | Hospital GEN (EMS) | 0.5000000000 | $454,141 | $454,141 | $227.07 | | |
| LIB | Library Sno-Isle GEN | 0.3153421757 | $454,141 | $454,141 | $143.21 | | |
| PORTWHID | Port of S Whidbey GEN | 0.1094540357 | $454,141 | $454,141 | $49.71 | | |
| SCH206BOND | School 206 BOND | 0.3161759235 | $454,141 | $454,141 | $143.59 | | |
| SCH206MO | School 206 Enrichment | 0.4547169547 | $454,141 | $454,141 | $206.51 | | |
| ST | State School | 1.3035497053 | $454,141 | $454,141 | $592.00 | | |
| ST2 | State School Part 2 | 0.8169543533 | $454,141 | $454,141 | $371.01 | | |
| SWHIDPRBD | P & R S Whidbey BOND | 0.0152817568 | $454,141 | $454,141 | $6.94 | | |
| SWHIDPRBD2 | P & R S Whidbey BOND2 | 0.0138911264 | $454,141 | $454,141 | $6.31 | | |
| SWHIDPRMT | P & R S Whidbey GEN | 0.2053334452 | $454,141 | $454,141 | $93.25 | | |
| | Total Tax Rate: | 6.6934522006 | | | | | |
| | | | | Taxes w/Current Exemptions: | $3,039.78 | | |
| | | | | Taxes w/o Exemptions: | $3,039.78 | | |
Improvement / Building
| Improvement #1: | RESIDENTIAL | State Code: | Y | 1225.0 sqft | Value: | $204,141 |
| Bathrooms: | 1.5 | Bedrooms: | 3 | | Ceiling: | DRY WALL SPRAYED | Exterior Wall/Cover: | WOOD SIDING | | Floor Covering: | CARPET/VINYL 80-20 | Floor Structure: | WOOD W/SUBFLOOR | | Foundation: | CONCRETE | Heating: | FHA ELECTRIC | | Interior Finish: | DRYWALL PAINT | Plumbing Fixture Cnt: | 8 | | Roof Slope: | 4" IN 12" | Roof Structure/Cover: | CJ ASPHALT |
|
| | Type | Description | Class CD | Sub Class CD | Year Built | Area |
| | BAS | BASE/MAIN FLOOR | 3 | 0 | 1977 | 1225.0 |
| | OP1 | OPEN PORCH SLAB | 3 | 0 | 1977 | 192.0 |
| | AGR | ATTACHED GARAGE | 3 | 0 | 1977 | 504.0 |
| | OWP | OPEN WOOD PORCH W/STEPS | 3 | 0 | 1977 | 498.0 |
Sketch
Property Image
Land
| 1 | 14 | SQ (08001-12000) | 0.2368 | 10315.01 | 0.00 | 0.00 | 1.00 | $250,000 | $0 |
Roll Value History
| 2026 | N/A | N/A | N/A | N/A | N/A |
| 2025 | $204,141 | $250,000 | $0 | $454,141 | $454,141 |
| 2024 | $206,927 | $230,000 | $0 | $436,927 | $436,927 |
| 2023 | $195,780 | $230,000 | $0 | $425,780 | $425,780 |
| 2022 | $179,804 | $210,000 | $0 | $389,804 | $389,804 |
| 2021 | $158,548 | $140,000 | $0 | $298,548 | $298,548 |
| 2020 | $154,646 | $130,000 | $0 | $284,646 | $284,646 |
| 2019 | $94,929 | $170,000 | $0 | $264,929 | $264,929 |
| 2018 | $95,298 | $130,000 | $0 | $225,298 | $225,298 |
| 2017 | $96,037 | $100,000 | $0 | $196,037 | $196,037 |
| 2016 | $97,514 | $75,000 | $0 | $172,514 | $172,514 |
| 2015 | $98,991 | $75,000 | $0 | $173,991 | $173,991 |
| 2014 | $100,469 | $75,000 | $0 | $175,469 | $175,469 |
| 2013 | $101,946 | $75,000 | $0 | $176,946 | $176,946 |
| 2012 | $120,311 | $63,750 | $0 | $184,061 | $184,061 |
| 2011 | $121,927 | $75,000 | $0 | $196,927 | $66,339 |
| 2010 | $134,748 | $75,000 | $0 | $209,748 | $66,339 |
| 2009 | $134,748 | $99,000 | $0 | $233,748 | $66,339 |
| 2008 | $136,925 | $108,500 | $0 | $245,425 | $66,339 |
| 2007 | $143,801 | $108,500 | $0 | $252,301 | $66,339 |
Deed and Sales History
| 1 | 01/27/2025 | QCD | Quit Claim Deed | THORING, TODD | THORING TTEE, TODD C | | | $0.00 | 62444 | 4581781 |
| 2 | 03/14/2024 | WD | Warranty Deed | LUEKEN, RALPH | THORING, TODD | | | $475,000.00 | 59428 | 4570365 |
| 3 | 02/08/2012 | WD | Warranty Deed | ARNOLD LIVING TRUST, BARARA S | LUEKEN, RALPH | | | $155,000.00 | 6850 | 4309698 |
| 4 | 05/17/2011 | QCD | Quit Claim Deed | BARBARA S ARNOLD | ARNOLD LIVING TRUST, BARARA S | | | $0.00 | 4517 | 4295816 |
| 5 | 12/17/2002 | WD | Warranty Deed | ALLEN, RUSSELL D | ARNOLD, BARBARA S | | | $158,900.00 | 25237 | 4042345 |
| 6 | 07/01/1995 | WD | Warranty Deed | SMITH, HENRY A | ALLEN, RUSSELL D | | | $62,586.00 | 52457 | 95011364 |
| 7 | 12/01/1986 | WD | Warranty Deed | MAJESTIC, ROGER L | SMITH, HENRY A | | | $58,000.00 | 63543 | 86015984 |
| 8 | 08/01/1978 | OTHER | Other - Misc. Documents | Unknown | MAJESTIC, ROGER L | | | $48,000.00 | 83826 | 337761 |
Payout Agreement
| No payout information available.. |