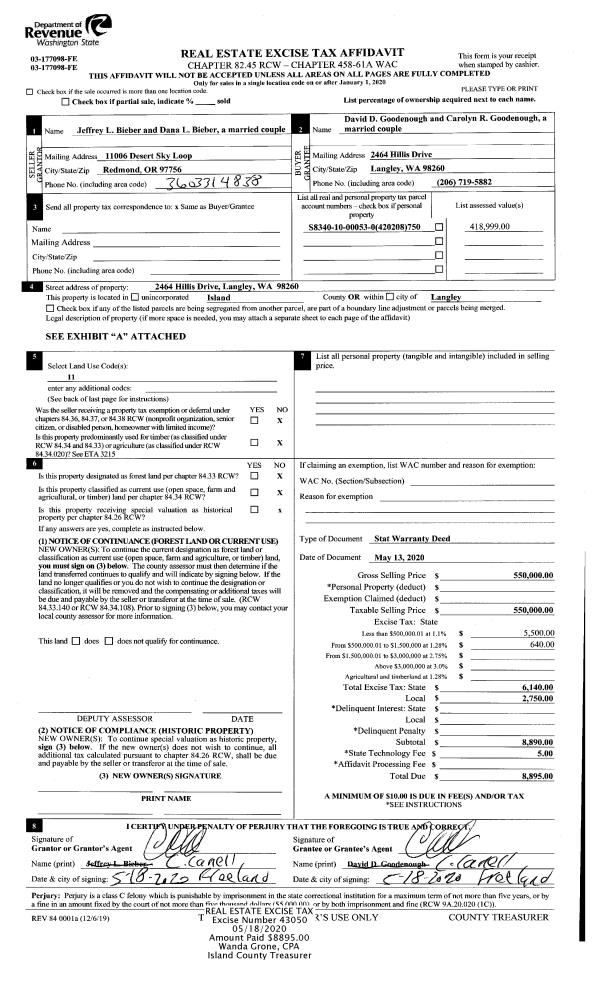
Property
Account |
| Property ID: | 328933 | Abbreviated Legal Description: | MUTINY VW MAN 1 LOT 31 |
| Geographic ID: | S7560-00-00031-0 | Agent Code: | |
| Type: | Real | | |
| Tax Area: | 710 - APPRAISER-S Whid Schl Dist, outside Langley, improved & 1 acre or less | Land Use Code | 11 |
| Open Space: | N | DFL | N |
| Historic Property: | N | Remodel Property: | N |
| Multi-Family Redevelopment: | N | | |
| Township: | | Section: | |
| Range: | |
Location |
| Address: | 5953 MOUNTAIN VIEW LN FREELAND, WA 98249 | Mapsco: | |
| Neighborhood: | Cycle 3 | Map ID: | 330 |
| Neighborhood CD: | 3 |
Owner |
| Name: | BROWN, RAYMOND J | Owner ID: | 99185 |
| Mailing Address: | CHARLENE R BROWN 5953 MOUNTAIN VIEW LN FREELAND, WA 98249-9725 | % Ownership: | 100.0000000000% |
| | | Exemptions: | |
Taxes and Assessment Details
Values
| (+) Improvement Homesite Value: | + | $0 | |
| (+) Improvement Non-Homesite Value: | + | $193,444 | |
| (+) Land Homesite Value: | + | $0 | |
| (+) Land Non-Homesite Value: | + | $250,000 | |
| (+) Curr Use (HS): | + | $0 | $0 |
| (+) Curr Use (NHS): | + | $0 | $0 |
| | | -------------------------- | |
| (=) Market Value: | = | $443,444 | |
| (–) Productivity Loss: | – | $0 | |
| | | -------------------------- | |
| (=) Subtotal: | = | $443,444 | |
| (+) Senior Appraised Value: | + | $0 | |
| (+) Non-Senior Appraised Value: | + | $443,444 | |
| | | -------------------------- | |
| (=) Total Appraised Value: | = | $443,444 | |
| (–) Senior Exemption Loss: | – | $0 | |
| (–) Exemption Loss: | – | $0 | |
| | | -------------------------- | |
| (=) Taxable Value: | = | $443,444 | |
Taxing Jurisdiction
| Owner: | BROWN, RAYMOND J | | |
| % Ownership: | 100.0000000000% | | |
| Total Value: | $443,444 | | |
| Tax Area: | 710 - APPRAISER-S Whid Schl Dist, outside Langley, improved & 1 acre or less |
| CF | Conservation Futures | 0.0316035091 | $443,444 | $443,444 | $14.01 | | |
| FIRE3 | Fire & Rescue Dist #3 S Whidbey GEN | 1.2004855531 | $443,444 | $443,444 | $532.35 | | |
| HOBOND | Hospital BOND | 0.1910887512 | $443,444 | $443,444 | $84.74 | | |
| HOGEN | Hospital GEN | 0.3902502903 | $443,444 | $443,444 | $173.05 | | |
| CE | County Current Expense | 0.3708482477 | $443,444 | $443,444 | $164.45 | | |
| CR | County Roads | 0.4584763726 | $443,444 | $443,444 | $203.31 | | |
| ISLANDEMS | Hospital GEN (EMS) | 0.5000000000 | $443,444 | $443,444 | $221.72 | | |
| LIB | Library Sno-Isle GEN | 0.3153421757 | $443,444 | $443,444 | $139.84 | | |
| PORTWHID | Port of S Whidbey GEN | 0.1094540357 | $443,444 | $443,444 | $48.54 | | |
| SCH206BOND | School 206 BOND | 0.3161759235 | $443,444 | $443,444 | $140.21 | | |
| SCH206MO | School 206 Enrichment | 0.4547169547 | $443,444 | $443,444 | $201.64 | | |
| ST | State School | 1.3035497053 | $443,444 | $443,444 | $578.05 | | |
| ST2 | State School Part 2 | 0.8169543533 | $443,444 | $443,444 | $362.27 | | |
| SWHIDPRBD | P & R S Whidbey BOND | 0.0152817568 | $443,444 | $443,444 | $6.78 | | |
| SWHIDPRBD2 | P & R S Whidbey BOND2 | 0.0138911264 | $443,444 | $443,444 | $6.16 | | |
| SWHIDPRMT | P & R S Whidbey GEN | 0.2053334452 | $443,444 | $443,444 | $91.05 | | |
| | Total Tax Rate: | 6.6934522006 | | | | | |
| | | | | Taxes w/Current Exemptions: | $2,968.17 | | |
| | | | | Taxes w/o Exemptions: | $2,968.17 | | |
Improvement / Building
| Improvement #1: | RESIDENTIAL | State Code: | Y | 1598.0 sqft | Value: | $193,444 |
| Bathrooms: | 2 | Bedrooms: | 3 | | Ceiling: | DRY WALL SPRAYED | Exterior Wall/Cover: | WOOD SIDING | | Floor Covering: | CARPET/VINYL 80-20 | Floor Structure: | WOOD W/SUBFLOOR | | Foundation: | CONCRETE | Heating: | BASEBOARD ELECTRIC | | Interior Finish: | DRYWALL PAINT | Plumbing Fixture Cnt: | 9 | | Roof Slope: | 6" IN 12" | Roof Structure/Cover: | CJ ASPHALT |
|
| | Type | Description | Class CD | Sub Class CD | Year Built | Area |
| | BAS | BASE/MAIN FLOOR | 3 | 0 | 1979 | 816.0 |
| | AGR | ATTACHED GARAGE | 3 | 0 | 1979 | 460.0 |
| | OWP | OPEN WOOD PORCH W/STEPS | 3 | 0 | 1979 | 120.0 |
| | OWP | OPEN WOOD PORCH W/STEPS | 3 | 0 | 1979 | 112.3 |
| | DWN | DOWNSTAIRS LIVING AREA | 3 | 0 | 1979 | 782.0 |
Sketch
Property Image
Land
| 1 | 14 | SQ (08001-12000) | 0.2200 | 9583.20 | 0.00 | 0.00 | 1.00 | $250,000 | $0 |
Roll Value History
| 2026 | N/A | N/A | N/A | N/A | N/A |
| 2025 | $193,444 | $250,000 | $0 | $443,444 | $443,444 |
| 2024 | $200,598 | $230,000 | $0 | $430,598 | $430,598 |
| 2023 | $203,628 | $230,000 | $0 | $433,628 | $433,628 |
| 2022 | $187,136 | $210,000 | $0 | $397,136 | $397,136 |
| 2021 | $165,105 | $140,000 | $0 | $305,105 | $305,105 |
| 2020 | $161,344 | $130,000 | $0 | $291,344 | $291,344 |
| 2019 | $103,752 | $170,000 | $0 | $273,752 | $273,752 |
| 2018 | $104,143 | $130,000 | $0 | $234,143 | $234,143 |
| 2017 | $104,923 | $100,000 | $0 | $204,923 | $204,923 |
| 2016 | $106,490 | $100,000 | $0 | $206,490 | $206,490 |
| 2015 | $108,055 | $75,000 | $0 | $183,055 | $183,055 |
| 2014 | $109,622 | $75,000 | $0 | $184,622 | $184,622 |
| 2013 | $105,260 | $75,000 | $0 | $180,260 | $180,260 |
| 2012 | $106,827 | $63,750 | $0 | $170,577 | $170,577 |
| 2011 | $108,392 | $75,000 | $0 | $183,392 | $183,392 |
| 2010 | $117,669 | $75,000 | $0 | $192,669 | $192,669 |
| 2009 | $122,968 | $99,000 | $0 | $221,968 | $221,968 |
| 2008 | $124,739 | $108,500 | $0 | $233,239 | $233,239 |
| 2007 | $124,850 | $108,500 | $0 | $233,350 | $233,350 |
Deed and Sales History
| 1 | 06/26/2008 | WD | Warranty Deed | BROWN, RAYMOND J | BROWN, RAYMOND J | | | $233,239.00 | 81780 | 4232514 |
| 2 | 05/23/2005 | ESTSEPPROP | Establish Separate Property | BROWN, RAYMOND J | BROWN, RAYMOND J | | | $0.00 | 52259 | 4135035 |
| 3 | 12/01/1985 | REC | Real Estate Contract | ADMIN, VETERANS A | BROWN, RAYMOND J | | | $58,900.00 | 5382 | 90017984 |
| 4 | 08/01/1985 | WD | Warranty Deed | NEW, YORK G | ADMIN, VETERANS A | | | $0.00 | 52323 | 85009152 |
| 5 | 07/01/1985 | TRUSTEED | Trustee's Deed | SIDERS, CORA | NEW, YORK G | | | $0.00 | 52106 | 85008269 |
| 6 | 08/01/1983 | QCD | Quit Claim Deed | SIDERS, KENNETH A | SIDERS, CORA | | | $0.00 | 32325 | 413688 |
| 7 | 02/01/1980 | TRUSTEED | Trustee's Deed | GOLD, RONALD G | SIDERS, KENNETH A | | | $57,600.00 | 616 | 365509 |
| 8 | 06/01/1979 | TRUSTEED | Trustee's Deed | REIS, CORP I | GOLD, RONALD G | | | $9,370.00 | 92930 | 354130 |
| 9 | 11/01/1978 | OTHER | Other - Misc. Documents | Unknown | REIS, CORP I | | | $128,000.00 | 856880 | 3433400 |
Payout Agreement
| No payout information available.. |