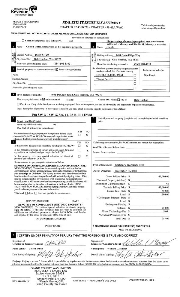
Property
Account |
| Property ID: | 329031 | Abbreviated Legal Description: | MUTINY VW MAN 1 LOT 41 |
| Geographic ID: | S7560-00-00041-0 | Agent Code: | |
| Type: | Real | | |
| Tax Area: | 710 - APPRAISER-S Whid Schl Dist, outside Langley, improved & 1 acre or less | Land Use Code | 11 |
| Open Space: | N | DFL | N |
| Historic Property: | N | Remodel Property: | N |
| Multi-Family Redevelopment: | N | | |
| Township: | | Section: | |
| Range: | |
Location |
| Address: | 5934 MOUNTAIN VIEW LN FREELAND, WA 98249 | Mapsco: | |
| Neighborhood: | Cycle 3 | Map ID: | 330 |
| Neighborhood CD: | 3 |
Owner |
| Name: | BARNETT, NICHOLAS W | Owner ID: | 306924 |
| Mailing Address: | LEAH M BARNETT 5934 MOUNTAIN VIEW LN FREELAND, WA 98249 | % Ownership: | 100.0000000000% |
| | | Exemptions: | |
Taxes and Assessment Details
Values
| (+) Improvement Homesite Value: | + | $0 | |
| (+) Improvement Non-Homesite Value: | + | $191,894 | |
| (+) Land Homesite Value: | + | $0 | |
| (+) Land Non-Homesite Value: | + | $250,000 | |
| (+) Curr Use (HS): | + | $0 | $0 |
| (+) Curr Use (NHS): | + | $0 | $0 |
| | | -------------------------- | |
| (=) Market Value: | = | $441,894 | |
| (–) Productivity Loss: | – | $0 | |
| | | -------------------------- | |
| (=) Subtotal: | = | $441,894 | |
| (+) Senior Appraised Value: | + | $0 | |
| (+) Non-Senior Appraised Value: | + | $441,894 | |
| | | -------------------------- | |
| (=) Total Appraised Value: | = | $441,894 | |
| (–) Senior Exemption Loss: | – | $0 | |
| (–) Exemption Loss: | – | $0 | |
| | | -------------------------- | |
| (=) Taxable Value: | = | $441,894 | |
Taxing Jurisdiction
| Owner: | BARNETT, NICHOLAS W | | |
| % Ownership: | 100.0000000000% | | |
| Total Value: | $441,894 | | |
| Tax Area: | 710 - APPRAISER-S Whid Schl Dist, outside Langley, improved & 1 acre or less |
| CF | Conservation Futures | 0.0316035091 | $441,894 | $441,894 | $13.97 | | |
| FIRE3 | Fire & Rescue Dist #3 S Whidbey GEN | 1.2004855531 | $441,894 | $441,894 | $530.49 | | |
| HOBOND | Hospital BOND | 0.1910887512 | $441,894 | $441,894 | $84.44 | | |
| HOGEN | Hospital GEN | 0.3902502903 | $441,894 | $441,894 | $172.45 | | |
| CE | County Current Expense | 0.3708482477 | $441,894 | $441,894 | $163.88 | | |
| CR | County Roads | 0.4584763726 | $441,894 | $441,894 | $202.60 | | |
| ISLANDEMS | Hospital GEN (EMS) | 0.5000000000 | $441,894 | $441,894 | $220.95 | | |
| LIB | Library Sno-Isle GEN | 0.3153421757 | $441,894 | $441,894 | $139.35 | | |
| PORTWHID | Port of S Whidbey GEN | 0.1094540357 | $441,894 | $441,894 | $48.37 | | |
| SCH206BOND | School 206 BOND | 0.3161759235 | $441,894 | $441,894 | $139.72 | | |
| SCH206MO | School 206 Enrichment | 0.4547169547 | $441,894 | $441,894 | $200.94 | | |
| ST | State School | 1.3035497053 | $441,894 | $441,894 | $576.03 | | |
| ST2 | State School Part 2 | 0.8169543533 | $441,894 | $441,894 | $361.01 | | |
| SWHIDPRBD | P & R S Whidbey BOND | 0.0152817568 | $441,894 | $441,894 | $6.75 | | |
| SWHIDPRBD2 | P & R S Whidbey BOND2 | 0.0138911264 | $441,894 | $441,894 | $6.14 | | |
| SWHIDPRMT | P & R S Whidbey GEN | 0.2053334452 | $441,894 | $441,894 | $90.74 | | |
| | Total Tax Rate: | 6.6934522006 | | | | | |
| | | | | Taxes w/Current Exemptions: | $2,957.83 | | |
| | | | | Taxes w/o Exemptions: | $2,957.83 | | |
Improvement / Building
| Improvement #1: | RESIDENTIAL | State Code: | Y | 1288.0 sqft | Value: | $191,894 |
| Bathrooms: | 1.75 | Bedrooms: | 3 | | Ceiling: | DRYWALL PAINTED | Exterior Wall/Cover: | WOOD SIDING | | Floor Covering: | CARPET/VINYL 60-40 | Floor Structure: | WOOD W/SUBFLOOR | | Foundation: | CONCRETE | Heating: | BASEBOARD ELECTRIC | | Interior Finish: | DRYWALL PAINT | Plumbing Fixture Cnt: | 9 | | Roof Slope: | 5" IN 12" | Roof Structure/Cover: | CJ ASPHALT |
|
| | Type | Description | Class CD | Sub Class CD | Year Built | Area |
| | BAS | BASE/MAIN FLOOR | 3 | 0 | 1978 | 1288.0 |
| | OP1 | OPEN PORCH SLAB | 3 | 0 | 1978 | 60.0 |
| | OP2 | OPEN PORCH W/STEPS | 3 | 0 | 1978 | 24.0 |
| | AGR | ATTACHED GARAGE | 3 | 0 | 1978 | 440.0 |
| | OWP | OPEN WOOD PORCH W/STEPS | 3 | 0 | 1978 | 89.5 |
Sketch
Property Image
Land
| 1 | 14 | SQ (08001-12000) | 0.2239 | 9753.08 | 0.00 | 0.00 | 1.00 | $250,000 | $0 |
Roll Value History
| 2026 | N/A | N/A | N/A | N/A | N/A |
| 2025 | $191,894 | $250,000 | $0 | $441,894 | $441,894 |
| 2024 | $198,749 | $230,000 | $0 | $428,749 | $428,749 |
| 2023 | $201,662 | $230,000 | $0 | $431,662 | $431,662 |
| 2022 | $171,564 | $210,000 | $0 | $381,564 | $381,564 |
| 2021 | $151,375 | $140,000 | $0 | $291,375 | $291,375 |
| 2020 | $147,670 | $130,000 | $0 | $277,670 | $277,670 |
| 2019 | $94,473 | $170,000 | $0 | $264,473 | $264,473 |
| 2018 | $94,839 | $130,000 | $0 | $224,839 | $224,839 |
| 2017 | $95,571 | $100,000 | $0 | $195,571 | $195,571 |
| 2016 | $97,043 | $100,000 | $0 | $197,043 | $197,043 |
| 2015 | $98,512 | $75,000 | $0 | $173,512 | $173,512 |
| 2014 | $99,982 | $75,000 | $0 | $174,982 | $174,982 |
| 2013 | $104,064 | $75,000 | $0 | $179,064 | $179,064 |
| 2012 | $105,609 | $63,750 | $0 | $169,359 | $169,359 |
| 2011 | $107,153 | $75,000 | $0 | $182,153 | $182,153 |
| 2010 | $116,543 | $75,000 | $0 | $191,543 | $191,543 |
| 2009 | $121,757 | $99,000 | $0 | $220,757 | $220,757 |
| 2008 | $123,461 | $108,500 | $0 | $231,961 | $231,961 |
| 2007 | $122,626 | $108,500 | $0 | $231,126 | $231,126 |
Deed and Sales History
| 1 | 07/29/2022 | WD | Warranty Deed | MELVER, CAROL K | BARNETT, NICHOLAS W | | | $469,000.00 | 54303 | 4550248 |
| 2 | 06/27/2019 | WD | Warranty Deed | HUPF PROPERTIES, LLC | MELVER, CAROL K | | | $303,000.00 | 39248 | 4466526 |
| 3 | 01/23/2019 | TRUSTEED | Trustee's Deed | WATSON, MICHAEL J | HUPF PROPERTIES, LLC | | | $228,100.00 | 37479 | 4458659 |
| 4 | 10/26/2009 | WD | Warranty Deed | HUNT SR, HERBERT W | WATSON, MICHAEL J | | | $214,000.00 | 92747 | 4263421 |
| 5 | 09/01/2006 | WD | Warranty Deed | WRIGHT TRUSTEE, JANIS L | HUNT SR, HERBERT W | | | $245,000.00 | 63797 | 4180663 |
| 6 | 04/21/2005 | 5 | DNU - Marriage License/Name Change | WRIGHT, JANIS L | WRIGHT TRUSTEE, JANIS L | | | $0.00 | 51892 | 4133735 |
| 7 | 04/07/1998 | WD | Warranty Deed | WEHMEYER, STEVEN E | WRIGHT, JANIS L | | | $121,000.00 | 81393 | 98007578 |
| 8 | 12/01/1978 | OTHER | Other - Misc. Documents | WRIGHT, JANIS L | WEHMEYER, STEVEN E | | | $52,500.00 | 90005 | 345416 |
| 9 | 01/01/1900 | OTHER | Other - Misc. Documents | Unknown | WRIGHT, JANIS L | | | $0.00 | 81393 | 98007578 |
Payout Agreement
| No payout information available.. |