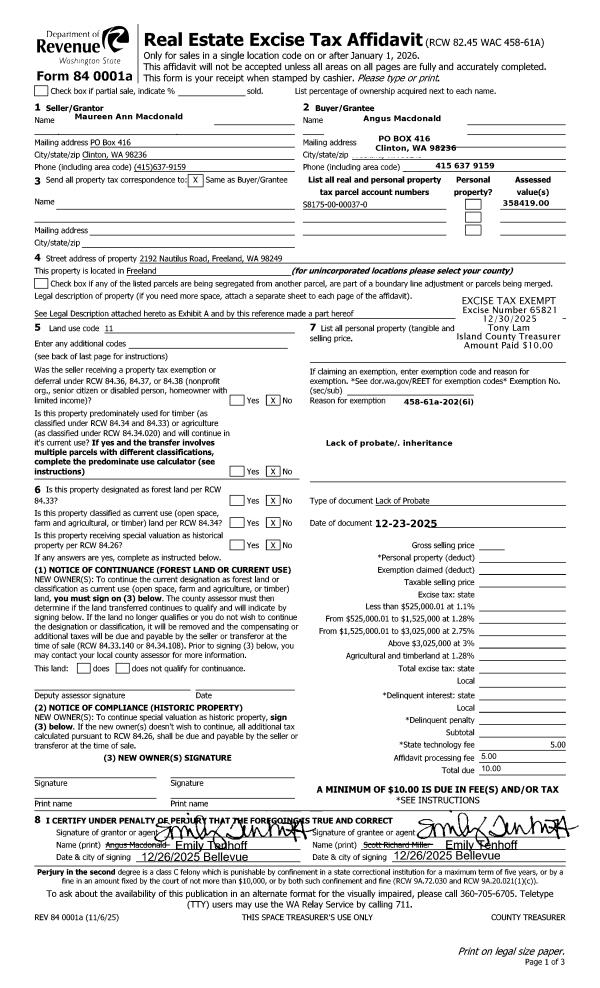
Property
Account |
| Property ID: | 329371 | Abbreviated Legal Description: | MUTINY VIEW MANOR DIV #2 LOT 70 |
| Geographic ID: | S7560-02-00070-0 | Agent Code: | |
| Type: | Real | | |
| Tax Area: | 710 - APPRAISER-S Whid Schl Dist, outside Langley, improved & 1 acre or less | Land Use Code | 11 |
| Open Space: | N | DFL | N |
| Historic Property: | N | Remodel Property: | N |
| Multi-Family Redevelopment: | N | | |
| Township: | | Section: | |
| Range: | |
Location |
| Address: | 1415 MANOR WAY FREELAND, WA 98249 | Mapsco: | |
| Neighborhood: | Cycle 3 | Map ID: | 330 |
| Neighborhood CD: | 3 |
Owner |
| Name: | HARKEWICZ, RICHARD | Owner ID: | 315638 |
| Mailing Address: | LAURA J HARKEWICZ 1415 E MANOR WAY FREELAND, WA 98249 | % Ownership: | 100.0000000000% |
| | | Exemptions: | |
Taxes and Assessment Details
Values
| (+) Improvement Homesite Value: | + | $0 | |
| (+) Improvement Non-Homesite Value: | + | $287,068 | |
| (+) Land Homesite Value: | + | $0 | |
| (+) Land Non-Homesite Value: | + | $340,000 | |
| (+) Curr Use (HS): | + | $0 | $0 |
| (+) Curr Use (NHS): | + | $0 | $0 |
| | | -------------------------- | |
| (=) Market Value: | = | $627,068 | |
| (–) Productivity Loss: | – | $0 | |
| | | -------------------------- | |
| (=) Subtotal: | = | $627,068 | |
| (+) Senior Appraised Value: | + | $0 | |
| (+) Non-Senior Appraised Value: | + | $627,068 | |
| | | -------------------------- | |
| (=) Total Appraised Value: | = | $627,068 | |
| (–) Senior Exemption Loss: | – | $0 | |
| (–) Exemption Loss: | – | $0 | |
| | | -------------------------- | |
| (=) Taxable Value: | = | $627,068 | |
Taxing Jurisdiction
| Owner: | HARKEWICZ, RICHARD | | |
| % Ownership: | 100.0000000000% | | |
| Total Value: | $627,068 | | |
| Tax Area: | 710 - APPRAISER-S Whid Schl Dist, outside Langley, improved & 1 acre or less |
| CF | Conservation Futures | 0.0316035091 | $627,068 | $627,068 | $19.82 | | |
| FIRE3 | Fire & Rescue Dist #3 S Whidbey GEN | 1.2004855531 | $627,068 | $627,068 | $752.79 | | |
| HOBOND | Hospital BOND | 0.1910887512 | $627,068 | $627,068 | $119.83 | | |
| HOGEN | Hospital GEN | 0.3902502903 | $627,068 | $627,068 | $244.71 | | |
| CE | County Current Expense | 0.3708482477 | $627,068 | $627,068 | $232.55 | | |
| CR | County Roads | 0.4584763726 | $627,068 | $627,068 | $287.50 | | |
| ISLANDEMS | Hospital GEN (EMS) | 0.5000000000 | $627,068 | $627,068 | $313.53 | | |
| LIB | Library Sno-Isle GEN | 0.3153421757 | $627,068 | $627,068 | $197.74 | | |
| PORTWHID | Port of S Whidbey GEN | 0.1094540357 | $627,068 | $627,068 | $68.64 | | |
| SCH206BOND | School 206 BOND | 0.3161759235 | $627,068 | $627,068 | $198.26 | | |
| SCH206MO | School 206 Enrichment | 0.4547169547 | $627,068 | $627,068 | $285.14 | | |
| ST | State School | 1.3035497053 | $627,068 | $627,068 | $817.41 | | |
| ST2 | State School Part 2 | 0.8169543533 | $627,068 | $627,068 | $512.29 | | |
| SWHIDPRBD | P & R S Whidbey BOND | 0.0152817568 | $627,068 | $627,068 | $9.58 | | |
| SWHIDPRBD2 | P & R S Whidbey BOND2 | 0.0138911264 | $627,068 | $627,068 | $8.71 | | |
| SWHIDPRMT | P & R S Whidbey GEN | 0.2053334452 | $627,068 | $627,068 | $128.76 | | |
| | Total Tax Rate: | 6.6934522006 | | | | | |
| | | | | Taxes w/Current Exemptions: | $4,197.26 | | |
| | | | | Taxes w/o Exemptions: | $4,197.26 | | |
Improvement / Building
| Improvement #1: | RESIDENTIAL | State Code: | Y | 1476.0 sqft | Value: | $287,068 |
| Bathrooms: | 1.75 | Bedrooms: | 3 | | Ceiling: | DRY WALL SPRAYED | Cooling: | HEAT PUMP/CONV/V | | Exterior Wall/Cover: | WOOD SIDING | Floor Covering: | CARPET/VINYL 80-20 | | Floor Structure: | WOOD W/SUBFLOOR | Foundation: | CONCRETE | | Interior Finish: | DRYWALL PAINT | Plumbing Fixture Cnt: | 10 | | Roof Slope: | 4" IN 12" | Roof Structure/Cover: | CJ ALUMINIUM HEAVY |
|
| | Type | Description | Class CD | Sub Class CD | Year Built | Area |
| | BAS | BASE/MAIN FLOOR | 3 | 0 | 1977 | 1188.0 |
| | OP2 | OPEN PORCH W/STEPS | 3 | 0 | 1977 | 132.0 |
| | OP4 | OPEN PORCH W/CEILING-ROOF | 3 | 0 | 1977 | 12.0 |
| | AGR | ATTACHED GARAGE | 3 | 0 | 1977 | 222.0 |
| | BIG | BUILT IN GARAGE | 3 | 0 | 1977 | 360.0 |
| | OWP | OPEN WOOD PORCH W/STEPS | 3 | 0 | 1977 | 160.0 |
| | DWN | DOWNSTAIRS LIVING AREA | 3 | 0 | 1977 | 288.0 |
| | oUTI | UTILITY | 3 | 0 | 1977 | 0.0 |
Sketch
Property Image
Land
| 1 | 14 | SQ (08001-12000) | 0.0000 | 0.00 | 0.00 | 0.00 | 1.00 | $340,000 | $0 |
Roll Value History
| 2026 | N/A | N/A | N/A | N/A | N/A |
| 2025 | $287,068 | $340,000 | $0 | $627,068 | $627,068 |
| 2024 | $257,877 | $300,000 | $0 | $557,877 | $557,877 |
| 2023 | $261,207 | $300,000 | $0 | $561,207 | $561,207 |
| 2022 | $239,928 | $290,000 | $0 | $529,928 | $529,928 |
| 2021 | $211,777 | $190,000 | $0 | $401,777 | $401,777 |
| 2020 | $206,627 | $160,000 | $0 | $366,627 | $366,627 |
| 2019 | $133,407 | $190,000 | $0 | $323,407 | $323,407 |
| 2018 | $133,862 | $160,000 | $0 | $293,862 | $293,862 |
| 2017 | $134,770 | $160,000 | $0 | $294,770 | $294,770 |
| 2016 | $136,587 | $160,000 | $0 | $296,587 | $296,587 |
| 2015 | $138,402 | $100,000 | $0 | $238,402 | $238,402 |
| 2014 | $140,221 | $100,000 | $0 | $240,221 | $240,221 |
| 2013 | $116,108 | $75,000 | $0 | $191,108 | $191,108 |
| 2012 | $117,786 | $63,750 | $0 | $181,536 | $181,536 |
| 2011 | $119,461 | $75,000 | $0 | $194,461 | $194,461 |
| 2010 | $130,133 | $75,000 | $0 | $205,133 | $205,133 |
| 2009 | $135,723 | $99,000 | $0 | $234,723 | $234,723 |
| 2008 | $137,519 | $108,500 | $0 | $246,019 | $246,019 |
| 2007 | $133,187 | $108,500 | $0 | $241,687 | $241,687 |
Deed and Sales History
| 1 | 02/26/2025 | WD | Warranty Deed | MCEWEN JR, ROBERT J | HARKEWICZ, RICHARD | | | $720,000.00 | 62703 | 4582822 |
| 2 | 06/25/2009 | WD | Warranty Deed | VAN HOUTEN, WADE J | MCEWEN JR, ROBERT J | | | $215,000.00 | 91431 | 4254961 |
| 3 | 07/10/2005 | 5 | DNU - Marriage License/Name Change | VAN HOUTEN, WADE J | VAN HOUTEN, WADE J | | | $0.00 | 55760 | 4154382 |
| 4 | 08/25/2003 | WD | Warranty Deed | VAN HOUTEN, WADE J | VAN HOUTEN, WADE J | | | $0.00 | 56395 | 4158146 |
| 5 | 08/25/2003 | WD | Warranty Deed | IRBY, JAMES V | VAN HOUTEN, WADE J | | | $180,000.00 | 33813 | 4073010 |
| 6 | 05/05/2000 | WD | Warranty Deed | COSTON, ERIC J | IRBY, JAMES V | | | $170,200.00 | 1758 | 20008384 |
| 7 | 12/01/1995 | WD | Warranty Deed | HAYS, ROBERT B | COSTON, ERIC J | | | $135,000.00 | 54512 | 95020761 |
| 8 | 10/01/1994 | WD | Warranty Deed | WORKMAN, GARY L | HAYS, ROBERT B | | | $138,900.00 | 44496 | 94023078 |
| 9 | 05/01/1979 | TRUSTEED | Trustee's Deed | LINGLE, LEON L | WORKMAN, GARY L | | | $68,000.00 | 92780 | 0 |
| 10 | 01/01/1900 | OTHER | Other - Misc. Documents | Unknown | LINGLE, LEON L | | | $0.00 | 0 | 0 |
Payout Agreement
| No payout information available.. |