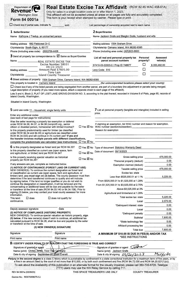
Property
Account |
| Property ID: | 330216 | Abbreviated Legal Description: | NORTHGATE TERRACE LOT 20 BLK 1 |
| Geographic ID: | S7575-00-01020-0 | Agent Code: | |
| Type: | Real | | |
| Tax Area: | 110 - APPRAISER-OH Schl Dist, outside OH, improved & 1 acre or less | Land Use Code | 11 |
| Open Space: | N | DFL | N |
| Historic Property: | N | Remodel Property: | N |
| Multi-Family Redevelopment: | N | | |
| Township: | | Section: | |
| Range: | |
Location |
| Address: | 4345 NORTHGATE DR OAK HARBOR, WA 98277 | Mapsco: | |
| Neighborhood: | Cycle 6 | Map ID: | 202 |
| Neighborhood CD: | 6 |
Owner |
| Name: | SOLVER, ALISSA B | Owner ID: | 280370 |
| Mailing Address: | PAVLO R MARUSETSKYY 4345 NORTHGATE DR OAK HARBOR, WA 98277 | % Ownership: | 100.0000000000% |
| | | Exemptions: | |
Taxes and Assessment Details
Values
| (+) Improvement Homesite Value: | + | $0 | |
| (+) Improvement Non-Homesite Value: | + | $100,172 | |
| (+) Land Homesite Value: | + | $0 | |
| (+) Land Non-Homesite Value: | + | $210,000 | |
| (+) Curr Use (HS): | + | $0 | $0 |
| (+) Curr Use (NHS): | + | $0 | $0 |
| | | -------------------------- | |
| (=) Market Value: | = | $310,172 | |
| (–) Productivity Loss: | – | $0 | |
| | | -------------------------- | |
| (=) Subtotal: | = | $310,172 | |
| (+) Senior Appraised Value: | + | $0 | |
| (+) Non-Senior Appraised Value: | + | $310,172 | |
| | | -------------------------- | |
| (=) Total Appraised Value: | = | $310,172 | |
| (–) Senior Exemption Loss: | – | $0 | |
| (–) Exemption Loss: | – | $0 | |
| | | -------------------------- | |
| (=) Taxable Value: | = | $310,172 | |
Taxing Jurisdiction
| Owner: | SOLVER, ALISSA B | | |
| % Ownership: | 100.0000000000% | | |
| Total Value: | $310,172 | | |
| Tax Area: | 110 - APPRAISER-OH Schl Dist, outside OH, improved & 1 acre or less |
| CF | Conservation Futures | 0.0316035091 | $310,172 | $310,172 | $9.80 | | |
| CEM1 | Cemetery #1 | 0.0040320932 | $310,172 | $310,172 | $1.25 | | |
| FIRE2 | Fire & Rescue Dist #2 N Whidbey GEN | 0.5475949600 | $310,172 | $310,172 | $169.85 | | |
| HOBOND | Hospital BOND | 0.1910887512 | $310,172 | $310,172 | $59.27 | | |
| HOGEN | Hospital GEN | 0.3902502903 | $310,172 | $310,172 | $121.04 | | |
| CE | County Current Expense | 0.3708482477 | $310,172 | $310,172 | $115.03 | | |
| CR | County Roads | 0.4584763726 | $310,172 | $310,172 | $142.21 | | |
| ISLANDEMS | Hospital GEN (EMS) | 0.5000000000 | $310,172 | $310,172 | $155.09 | | |
| LIB | Library Sno-Isle GEN | 0.3153421757 | $310,172 | $310,172 | $97.81 | | |
| NWHIDPRMT | P & R N Whidbey GEN | 0.2004466701 | $310,172 | $310,172 | $62.17 | | |
| SCH201MO | School 201 Enrichment | 1.8559231640 | $310,172 | $310,172 | $575.66 | | |
| ST | State School | 1.3035497053 | $310,172 | $310,172 | $404.32 | | |
| ST2 | State School Part 2 | 0.8169543533 | $310,172 | $310,172 | $253.40 | | |
| | Total Tax Rate: | 6.9861102925 | | | | | |
| | | | | Taxes w/Current Exemptions: | $2,166.90 | | |
| | | | | Taxes w/o Exemptions: | $2,166.90 | | |
Improvement / Building
| Improvement #1: | MANUFACTURED HOME | State Code: | Y | 1400.0 sqft | Value: | $100,172 |
| Bathrooms: | 0 | Bedrooms: | 0 | | Ceiling: | PLASTER PAINTED | Cooling: | EVAP NO DUCT | | Exterior Wall/Cover: | VINYL | Floor Covering: | CARPET 100% | | Floor Structure: | SLAB ON GRADE | Foundation: | SLAB | | Heating: | FHA ELECTRIC | Interior Finish: | PLASTER | | Plumbing Fixture Cnt: | 1 | Roof Slope: | FLAT | | Roof Structure/Cover: | CJ ALUMINIUM HEAVY |   |   |
|
| | Type | Description | Class CD | Sub Class CD | Year Built | Area |
| | BAS | BASE/MAIN FLOOR | 4 | 0 | 1996 | 1400.0 |
| | OWP | OPEN WOOD PORCH W/STEPS | 4 | 0 | 1996 | 64.0 |
Sketch
Property Image
Land
| 1 | 14 | SQ (08001-12000) | 0.0000 | 0.00 | 0.00 | 0.00 | 1.00 | $210,000 | $0 |
Roll Value History
| 2026 | N/A | N/A | N/A | N/A | N/A |
| 2025 | $100,172 | $210,000 | $0 | $310,172 | $310,172 |
| 2024 | $103,208 | $190,000 | $0 | $293,208 | $293,208 |
| 2023 | $92,389 | $190,000 | $0 | $282,389 | $282,389 |
| 2022 | $73,203 | $180,000 | $0 | $253,203 | $253,203 |
| 2021 | $65,474 | $130,000 | $0 | $195,474 | $195,474 |
| 2020 | $64,442 | $110,000 | $0 | $174,442 | $174,442 |
| 2019 | $52,155 | $140,000 | $0 | $192,155 | $192,155 |
| 2018 | $53,546 | $120,000 | $0 | $173,546 | $173,546 |
| 2017 | $50,069 | $90,000 | $0 | $140,069 | $140,069 |
| 2016 | $37,730 | $70,000 | $0 | $107,730 | $107,730 |
| 2015 | $38,808 | $50,000 | $0 | $88,808 | $88,808 |
| 2014 | $39,347 | $45,000 | $0 | $84,347 | $84,347 |
| 2013 | $40,426 | $45,000 | $0 | $85,426 | $85,426 |
| 2012 | $41,503 | $59,500 | $0 | $101,003 | $101,003 |
| 2011 | $42,581 | $70,000 | $0 | $112,581 | $112,581 |
| 2010 | $43,473 | $70,000 | $0 | $113,473 | $113,473 |
| 2009 | $45,900 | $90,000 | $0 | $135,900 | $135,900 |
| 2008 | $47,761 | $90,000 | $0 | $137,761 | $137,761 |
| 2007 | $48,985 | $90,000 | $0 | $138,985 | $138,985 |
Deed and Sales History
| 1 | 06/09/2017 | WD | Warranty Deed | PETERSON, MICHAEL M | SOLVER, ALISSA B | | | $194,500.00 | 29731 | 4424212 |
| 2 | 06/13/2016 | CCOMPROP | Create Community Property | PETERSON, MICHAEL M | PETERSON, MICHAEL M | | | $0.00 | 24802 | 4401347 |
| 3 | 04/28/2009 | ESTSEPPROP | Establish Separate Property | PETERSON, MICHAEL M | PETERSON, MICHAEL M | | | $0.00 | 90956 | 4250264 |
| 4 | 04/28/2009 | WD | Warranty Deed | DEJESSA, GREGORY | PETERSON, MICHAEL M | | | $125,000.00 | 90955 | 4250263 |
| 5 | 05/01/1996 | OTHER | Other - Misc. Documents | DEJESSA, GREGORY C | DEJESSA, GREGORY | | | $35,021.00 | 11111111 | 0 |
| 6 | 09/01/1994 | WD | Warranty Deed | WALDEN, STEPHEN M | DEJESSA, GREGORY C | | | $30,232.00 | 44004 | 94020693 |
| 7 | 07/01/1984 | WD | Warranty Deed | WAGNER, GERALDINE | WALDEN, STEPHEN M | | | $9,250.00 | 42094 | 84000842 |
| 8 | 01/01/1900 | OTHER | Other - Misc. Documents | WAGNER, GERALDINE | WAGNER, GERALDINE | | | $0.00 | 0 | 0 |
| 9 | 01/01/1900 | OTHER | Other - Misc. Documents | Unknown | WAGNER, GERALDINE | | | $0.00 | 48848 | 0 |
Payout Agreement
| No payout information available.. |