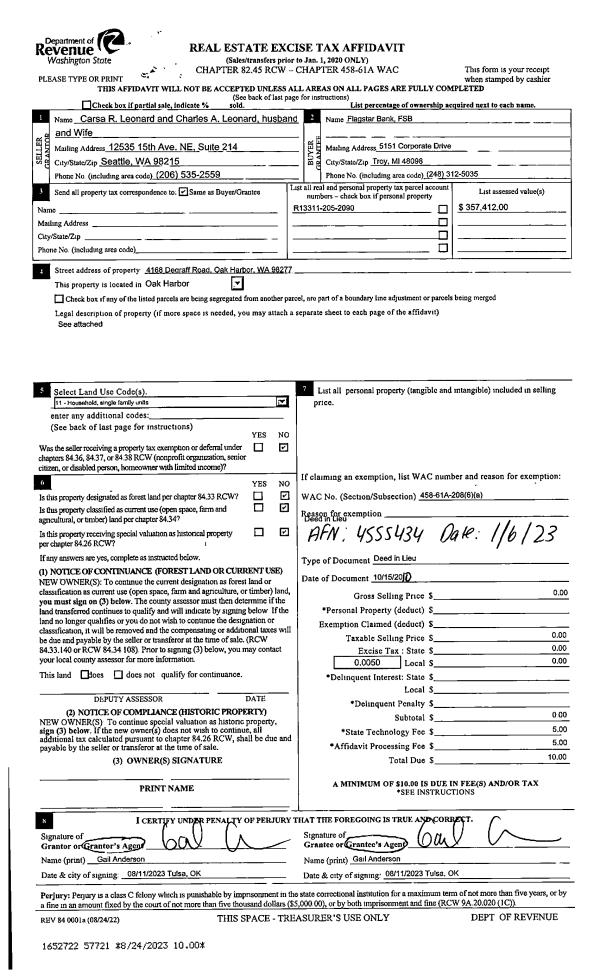
Property
Account |
| Property ID: | 330403 | Abbreviated Legal Description: | NGATE TERR LOT 11 BLK 2 |
| Geographic ID: | S7575-00-02011-0 | Agent Code: | |
| Type: | Real | | |
| Tax Area: | 110 - APPRAISER-OH Schl Dist, outside OH, improved & 1 acre or less | Land Use Code | 11 |
| Open Space: | N | DFL | N |
| Historic Property: | N | Remodel Property: | N |
| Multi-Family Redevelopment: | N | | |
| Township: | | Section: | |
| Range: | |
Location |
| Address: | 4296 NORTHGATE DR OAK HARBOR, WA 98277 | Mapsco: | |
| Neighborhood: | Cycle 6 | Map ID: | 202 |
| Neighborhood CD: | 6 |
Owner |
| Name: | KENNEY, AUSTIN L | Owner ID: | 309792 |
| Mailing Address: | 245 RUSSELL RD CAMANO ISLAND, WA 98282 | % Ownership: | 100.0000000000% |
| | | Exemptions: | |
Taxes and Assessment Details
Values
| (+) Improvement Homesite Value: | + | $0 | |
| (+) Improvement Non-Homesite Value: | + | $161,357 | |
| (+) Land Homesite Value: | + | $0 | |
| (+) Land Non-Homesite Value: | + | $210,000 | |
| (+) Curr Use (HS): | + | $0 | $0 |
| (+) Curr Use (NHS): | + | $0 | $0 |
| | | -------------------------- | |
| (=) Market Value: | = | $371,357 | |
| (–) Productivity Loss: | – | $0 | |
| | | -------------------------- | |
| (=) Subtotal: | = | $371,357 | |
| (+) Senior Appraised Value: | + | $0 | |
| (+) Non-Senior Appraised Value: | + | $371,357 | |
| | | -------------------------- | |
| (=) Total Appraised Value: | = | $371,357 | |
| (–) Senior Exemption Loss: | – | $0 | |
| (–) Exemption Loss: | – | $0 | |
| | | -------------------------- | |
| (=) Taxable Value: | = | $371,357 | |
Taxing Jurisdiction
| Owner: | KENNEY, AUSTIN L | | |
| % Ownership: | 100.0000000000% | | |
| Total Value: | $371,357 | | |
| Tax Area: | 110 - APPRAISER-OH Schl Dist, outside OH, improved & 1 acre or less |
| CF | Conservation Futures | 0.0316035091 | $371,357 | $371,357 | $11.74 | | |
| CEM1 | Cemetery #1 | 0.0040320932 | $371,357 | $371,357 | $1.50 | | |
| FIRE2 | Fire & Rescue Dist #2 N Whidbey GEN | 0.5475949600 | $371,357 | $371,357 | $203.35 | | |
| HOBOND | Hospital BOND | 0.1910887512 | $371,357 | $371,357 | $70.96 | | |
| HOGEN | Hospital GEN | 0.3902502903 | $371,357 | $371,357 | $144.92 | | |
| CE | County Current Expense | 0.3708482477 | $371,357 | $371,357 | $137.72 | | |
| CR | County Roads | 0.4584763726 | $371,357 | $371,357 | $170.26 | | |
| ISLANDEMS | Hospital GEN (EMS) | 0.5000000000 | $371,357 | $371,357 | $185.68 | | |
| LIB | Library Sno-Isle GEN | 0.3153421757 | $371,357 | $371,357 | $117.10 | | |
| NWHIDPRMT | P & R N Whidbey GEN | 0.2004466701 | $371,357 | $371,357 | $74.44 | | |
| SCH201MO | School 201 Enrichment | 1.8559231640 | $371,357 | $371,357 | $689.21 | | |
| ST | State School | 1.3035497053 | $371,357 | $371,357 | $484.08 | | |
| ST2 | State School Part 2 | 0.8169543533 | $371,357 | $371,357 | $303.38 | | |
| | Total Tax Rate: | 6.9861102925 | | | | | |
| | | | | Taxes w/Current Exemptions: | $2,594.34 | | |
| | | | | Taxes w/o Exemptions: | $2,594.34 | | |
Improvement / Building
| Improvement #1: | RESIDENTIAL | State Code: | Y | 1086.5 sqft | Value: | $161,357 |
| Bathrooms: | 1 | Bedrooms: | 3 | | Ceiling: | DRYWALL PAINTED | Exterior Wall/Cover: | PLY/HARDBOARD T-111 | | Floor Covering: | CARPET/VINYL 80-20 | Floor Structure: | WOOD W/SUBFLOOR | | Foundation: | CONCRETE | Heating: | BASEBOARD ELECTRIC | | Interior Finish: | DRYWALL PAINT | Plumbing Fixture Cnt: | 6 | | Roof Slope: | 5" IN 12" | Roof Structure/Cover: | CJ ASPHALT |
|
| | Type | Description | Class CD | Sub Class CD | Year Built | Area |
| | BAS | BASE/MAIN FLOOR | 3 | 0 | 1984 | 1086.5 |
| | AGR | ATTACHED GARAGE | 3 | 0 | 1984 | 320.0 |
Sketch
Property Image
Land
| 1 | 13 | SQ (06001-08000) | 0.0000 | 0.00 | 0.00 | 0.00 | 1.00 | $210,000 | $0 |
Roll Value History
| 2026 | N/A | N/A | N/A | N/A | N/A |
| 2025 | $161,357 | $210,000 | $0 | $371,357 | $371,357 |
| 2024 | $167,155 | $190,000 | $0 | $357,155 | $357,155 |
| 2023 | $169,437 | $190,000 | $0 | $359,437 | $359,437 |
| 2022 | $153,431 | $180,000 | $0 | $333,431 | $333,431 |
| 2021 | $135,214 | $130,000 | $0 | $265,214 | $265,214 |
| 2020 | $131,960 | $110,000 | $0 | $241,960 | $241,960 |
| 2019 | $94,203 | $140,000 | $0 | $234,203 | $234,203 |
| 2018 | $94,507 | $120,000 | $0 | $214,507 | $214,507 |
| 2017 | $95,117 | $90,000 | $0 | $185,117 | $185,117 |
| 2016 | $98,919 | $70,000 | $0 | $168,919 | $168,919 |
| 2015 | $100,333 | $50,000 | $0 | $150,333 | $150,333 |
| 2014 | $101,745 | $45,000 | $0 | $146,745 | $146,745 |
| 2013 | $103,158 | $45,000 | $0 | $148,158 | $148,158 |
| 2012 | $104,572 | $59,500 | $0 | $164,072 | $164,072 |
| 2011 | $105,985 | $70,000 | $0 | $175,985 | $175,985 |
| 2010 | $111,740 | $70,000 | $0 | $181,740 | $181,740 |
| 2009 | $116,599 | $77,500 | $0 | $194,099 | $194,099 |
| 2008 | $118,099 | $94,500 | $0 | $212,599 | $212,599 |
| 2007 | $119,598 | $90,000 | $0 | $209,598 | $209,598 |
Deed and Sales History
| 1 | 08/23/2023 | WD | Warranty Deed | LANG, ZAPPLIN M | KENNEY, AUSTIN L | | | $260,750.00 | 57743 | 4563926 |
| 2 | 03/17/2017 | QCD | Quit Claim Deed | LANG, RACHELLE | LANG, ZAPPLIN M | | | $0.00 | 28479 | 4418985 |
| 3 | 03/15/2017 | WD | Warranty Deed | THODE, CHRISTOPHER M | LANG, ZAPPLIN M | | | $183,900.00 | 28477 | 4418984 |
| 4 | 07/05/2013 | CCOMPROP | Create Community Property | THODE, CHRISTOPHER M | THODE, CHRISTOPHER M | | | $0.00 | 11976 | 4343775 |
| 5 | 07/05/2005 | WD | Warranty Deed | FLAHERTY, BRENDAN P | THODE, CHRISTOPHER M | | | $170,000.00 | 53198 | 4139822 |
| 6 | 09/30/2003 | WD | Warranty Deed | FADNESS, JIMMIE I | FLAHERTY, BRENDAN P | | | $120,000.00 | 34527 | 4075227 |
| 7 | 06/01/1993 | WD | Warranty Deed | HUNTER, RODERICK P | FADNESS, JIMMIE I | | | $89,500.00 | 32273 | 93011752 |
| 8 | 06/01/1984 | WD | Warranty Deed | KOETJE, GORDON H | HUNTER, RODERICK P | | | $49,950.00 | 41728 | 425970 |
| 9 | 05/01/1979 | REC | Real Estate Contract | , | KOETJE, GORDON H | | | $6,275.00 | 91933 | 351485 |
| 10 | 08/01/1978 | OTHER | Other - Misc. Documents | Unknown | , | | | $94,500.00 | 842910 | 3391040 |
Payout Agreement
| No payout information available.. |