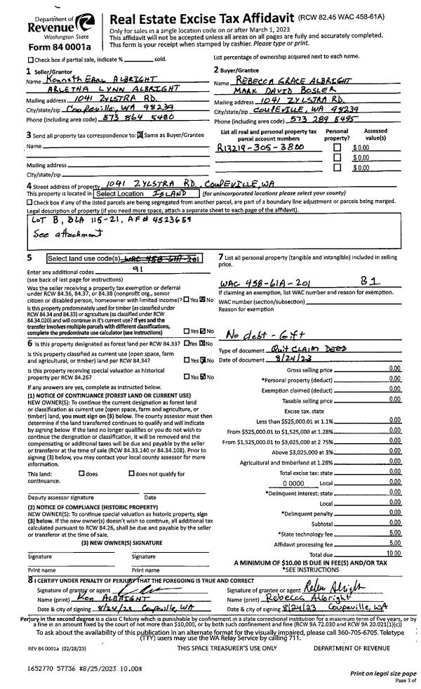
Property
Account |
| Property ID: | 330779 | Abbreviated Legal Description: | NGATE TERR LOT 25 BLK 3 |
| Geographic ID: | S7575-00-03025-0 | Agent Code: | |
| Type: | Real | | |
| Tax Area: | 110 - APPRAISER-OH Schl Dist, outside OH, improved & 1 acre or less | Land Use Code | 11 |
| Open Space: | N | DFL | N |
| Historic Property: | N | Remodel Property: | N |
| Multi-Family Redevelopment: | N | | |
| Township: | | Section: | |
| Range: | |
Location |
| Address: | 4361 RHODODENDRON DR OAK HARBOR, WA 98277 | Mapsco: | |
| Neighborhood: | Cycle 6 | Map ID: | 202 |
| Neighborhood CD: | 6 |
Owner |
| Name: | O'BOYLE, JAMES H | Owner ID: | 293788 |
| Mailing Address: | BRITTANY E DARBY 4361 RHODODENDRON DR OAK HARBOR, WA 98277 | % Ownership: | 100.0000000000% |
| | | Exemptions: | |
Taxes and Assessment Details
Values
| (+) Improvement Homesite Value: | + | $0 | |
| (+) Improvement Non-Homesite Value: | + | $213,975 | |
| (+) Land Homesite Value: | + | $0 | |
| (+) Land Non-Homesite Value: | + | $210,000 | |
| (+) Curr Use (HS): | + | $0 | $0 |
| (+) Curr Use (NHS): | + | $0 | $0 |
| | | -------------------------- | |
| (=) Market Value: | = | $423,975 | |
| (–) Productivity Loss: | – | $0 | |
| | | -------------------------- | |
| (=) Subtotal: | = | $423,975 | |
| (+) Senior Appraised Value: | + | $0 | |
| (+) Non-Senior Appraised Value: | + | $423,975 | |
| | | -------------------------- | |
| (=) Total Appraised Value: | = | $423,975 | |
| (–) Senior Exemption Loss: | – | $0 | |
| (–) Exemption Loss: | – | $0 | |
| | | -------------------------- | |
| (=) Taxable Value: | = | $423,975 | |
Taxing Jurisdiction
| Owner: | O'BOYLE, JAMES H | | |
| % Ownership: | 100.0000000000% | | |
| Total Value: | $423,975 | | |
| Tax Area: | 110 - APPRAISER-OH Schl Dist, outside OH, improved & 1 acre or less |
| CF | Conservation Futures | 0.0316035091 | $423,975 | $423,975 | $13.40 | | |
| CEM1 | Cemetery #1 | 0.0040320932 | $423,975 | $423,975 | $1.71 | | |
| FIRE2 | Fire & Rescue Dist #2 N Whidbey GEN | 0.5475949600 | $423,975 | $423,975 | $232.17 | | |
| HOBOND | Hospital BOND | 0.1910887512 | $423,975 | $423,975 | $81.02 | | |
| HOGEN | Hospital GEN | 0.3902502903 | $423,975 | $423,975 | $165.46 | | |
| CE | County Current Expense | 0.3708482477 | $423,975 | $423,975 | $157.23 | | |
| CR | County Roads | 0.4584763726 | $423,975 | $423,975 | $194.38 | | |
| ISLANDEMS | Hospital GEN (EMS) | 0.5000000000 | $423,975 | $423,975 | $211.99 | | |
| LIB | Library Sno-Isle GEN | 0.3153421757 | $423,975 | $423,975 | $133.70 | | |
| NWHIDPRMT | P & R N Whidbey GEN | 0.2004466701 | $423,975 | $423,975 | $84.98 | | |
| SCH201MO | School 201 Enrichment | 1.8559231640 | $423,975 | $423,975 | $786.87 | | |
| ST | State School | 1.3035497053 | $423,975 | $423,975 | $552.67 | | |
| ST2 | State School Part 2 | 0.8169543533 | $423,975 | $423,975 | $346.37 | | |
| | Total Tax Rate: | 6.9861102925 | | | | | |
| | | | | Taxes w/Current Exemptions: | $2,961.95 | | |
| | | | | Taxes w/o Exemptions: | $2,961.95 | | |
Improvement / Building
| Improvement #1: | RESIDENTIAL | State Code: | Y | 1332.0 sqft | Value: | $213,975 |
| Bathrooms: | 2 | Bedrooms: | 3 | | Ceiling: | DRY WALL SPRAYED | Exterior Wall/Cover: | CEMENT FIBER | | Floor Covering: | VINYL 100% | Floor Structure: | WOOD W/SUBFLOOR | | Foundation: | CONCRETE | Heating: | BASEBOARD ELECTRIC | | Interior Finish: | DRYWALL PAINT | Plumbing Fixture Cnt: | 9 | | Roof Slope: | 4" IN 12" | Roof Structure/Cover: | CJ ASPHALT |
|
| | Type | Description | Class CD | Sub Class CD | Year Built | Area |
| | BAS | BASE/MAIN FLOOR | 3 | 0 | 1977 | 1332.0 |
| | OWP | OPEN WOOD PORCH W/STEPS | 3 | 0 | 1977 | 72.0 |
| | AGR | ATTACHED GARAGE | 3 | 0 | 1977 | 216.0 |
Sketch
Property Image
Land
| 1 | 13 | SQ (06001-08000) | 0.0000 | 0.00 | 0.00 | 0.00 | 1.00 | $210,000 | $0 |
Roll Value History
| 2026 | N/A | N/A | N/A | N/A | N/A |
| 2025 | $213,975 | $210,000 | $0 | $423,975 | $423,975 |
| 2024 | $221,131 | $190,000 | $0 | $411,131 | $411,131 |
| 2023 | $223,887 | $190,000 | $0 | $413,887 | $413,887 |
| 2022 | $200,240 | $180,000 | $0 | $380,240 | $380,240 |
| 2021 | $176,296 | $130,000 | $0 | $306,296 | $306,296 |
| 2020 | $171,642 | $110,000 | $0 | $281,642 | $281,642 |
| 2019 | $114,725 | $140,000 | $0 | $254,725 | $254,725 |
| 2018 | $115,082 | $120,000 | $0 | $235,082 | $235,082 |
| 2017 | $115,797 | $90,000 | $0 | $205,797 | $205,797 |
| 2016 | $103,983 | $70,000 | $0 | $173,983 | $173,983 |
| 2015 | $105,559 | $50,000 | $0 | $155,559 | $155,559 |
| 2014 | $107,135 | $45,000 | $0 | $152,135 | $152,135 |
| 2013 | $108,711 | $45,000 | $0 | $153,711 | $153,711 |
| 2012 | $110,286 | $59,500 | $0 | $169,786 | $169,786 |
| 2011 | $111,861 | $70,000 | $0 | $181,861 | $181,861 |
| 2010 | $116,390 | $70,000 | $0 | $186,390 | $186,390 |
| 2009 | $121,507 | $77,500 | $0 | $199,007 | $199,007 |
| 2008 | $123,069 | $94,500 | $0 | $217,569 | $217,569 |
| 2007 | $123,069 | $90,000 | $0 | $213,069 | $213,069 |
Deed and Sales History
| 1 | 03/09/2020 | WD | Warranty Deed | MARTINEZ, LEVI T | O'BOYLE, JAMES H | | | $283,000.00 | 42430 | 4483340 |
| 2 | 03/07/2017 | WD | Warranty Deed | LAFAVE, KEVIN | MARTINEZ, LEVI T | | | $235,000.00 | 28356 | 4418501 |
| 3 | 04/07/2015 | WD | Warranty Deed | NICHOLS, JOSHUA S | LAFAVE, KEVIN | | | $150,000.00 | 19107 | 4376421 |
| 4 | 03/06/2001 | WD | Warranty Deed | HOMESIDE LENDING, INC, | NICHOLS, JOSHUA S | | | $100,000.00 | 10800 | 20027291 |
| 5 | 08/25/2000 | TRUSTEED | Trustee's Deed | HOUSLEY, MARK S | HOMESIDE LENDING, INC, | | | $0.00 | 3296 | 20015420 |
| 6 | 11/01/1997 | WD | Warranty Deed | HAYDEN, KEVIN M | HOUSLEY, MARK S | | | $110,000.00 | 74011 | 97019223 |
| 7 | 06/01/1994 | WD | Warranty Deed | RUSSELL, DAVID L | HAYDEN, KEVIN M | | | $95,000.00 | 42428 | 94013605 |
| 8 | 12/01/1985 | WD | Warranty Deed | DUNN, DON M | RUSSELL, DAVID L | | | $50,000.00 | 53421 | 85013529 |
| 9 | 12/01/1980 | WD | Warranty Deed | BROCKWAY, GALE | DUNN, DON M | | | $46,000.00 | 4162 | 377511 |
| 10 | 01/01/1900 | OTHER | Other - Misc. Documents | Unknown | BROCKWAY, GALE | | | $0.00 | 0 | 0 |
Payout Agreement
| No payout information available.. |