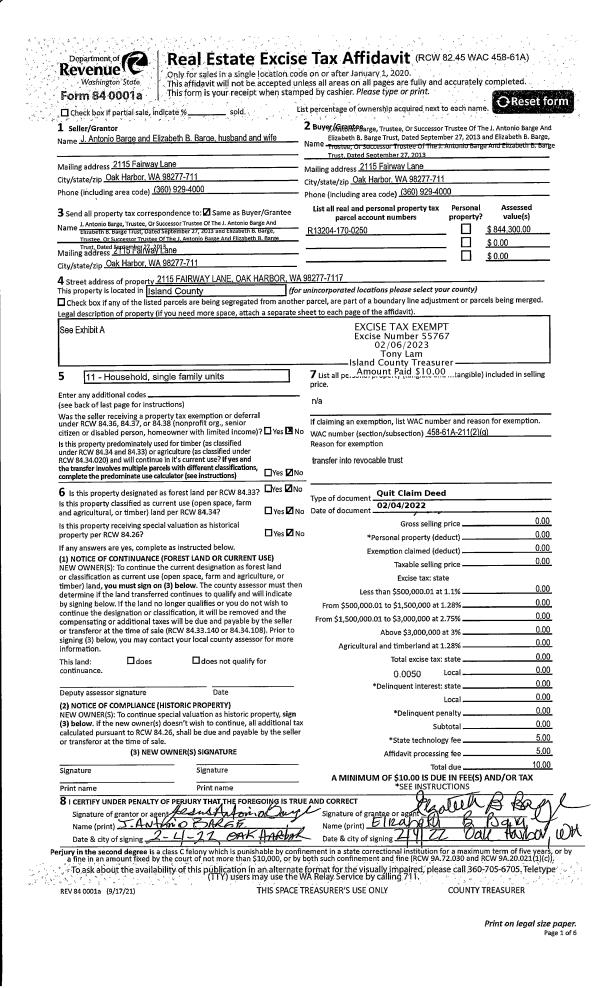
Property
Account |
| Property ID: | 33127 | Abbreviated Legal Description: | 39 - S650' OF SE SW LY WLY OF OLD ST HWY (DEGRAAF RD) EX S20' EX N30' AF#215957 |
| Geographic ID: | R13311-036-1520 | Agent Code: | |
| Type: | Real | | |
| Tax Area: | 112 - APPRAISER-OH Schl Dist, outside OH, improved, greater than 1 acre | Land Use Code | 11 |
| Open Space: | N | DFL | N |
| Historic Property: | N | Remodel Property: | N |
| Multi-Family Redevelopment: | N | | |
| Township: | 33 | Section: | 11 |
| Range: | R1 |
Location |
| Address: | 4011 DEGRAFF RD OAK HARBOR, WA 98277 | Mapsco: | |
| Neighborhood: | Cycle 6 | Map ID: | 200 |
| Neighborhood CD: | 6 |
Owner |
| Name: | MILLER, PEGGY | Owner ID: | 305791 |
| Mailing Address: | 4011 DEGRAFF RD OAK HARBOR, WA 98277 | % Ownership: | 100.0000000000% |
| | | Exemptions: | |
Taxes and Assessment Details
Values
| (+) Improvement Homesite Value: | + | $0 | |
| (+) Improvement Non-Homesite Value: | + | $13,539 | |
| (+) Land Homesite Value: | + | $0 | |
| (+) Land Non-Homesite Value: | + | $300,000 | |
| (+) Curr Use (HS): | + | $0 | $0 |
| (+) Curr Use (NHS): | + | $0 | $0 |
| | | -------------------------- | |
| (=) Market Value: | = | $313,539 | |
| (–) Productivity Loss: | – | $0 | |
| | | -------------------------- | |
| (=) Subtotal: | = | $313,539 | |
| (+) Senior Appraised Value: | + | $0 | |
| (+) Non-Senior Appraised Value: | + | $313,539 | |
| | | -------------------------- | |
| (=) Total Appraised Value: | = | $313,539 | |
| (–) Senior Exemption Loss: | – | $0 | |
| (–) Exemption Loss: | – | $0 | |
| | | -------------------------- | |
| (=) Taxable Value: | = | $313,539 | |
Taxing Jurisdiction
| Owner: | MILLER, PEGGY | | |
| % Ownership: | 100.0000000000% | | |
| Total Value: | $313,539 | | |
| Tax Area: | 112 - APPRAISER-OH Schl Dist, outside OH, improved, greater than 1 acre |
| CF | Conservation Futures | 0.0316035091 | $313,539 | $313,539 | $9.91 | | |
| CEM1 | Cemetery #1 | 0.0040320932 | $313,539 | $313,539 | $1.26 | | |
| FIRE2 | Fire & Rescue Dist #2 N Whidbey GEN | 0.5475949600 | $313,539 | $313,539 | $171.69 | | |
| HOBOND | Hospital BOND | 0.1910887512 | $313,539 | $313,539 | $59.91 | | |
| HOGEN | Hospital GEN | 0.3902502903 | $313,539 | $313,539 | $122.36 | | |
| CE | County Current Expense | 0.3708482477 | $313,539 | $313,539 | $116.28 | | |
| CR | County Roads | 0.4584763726 | $313,539 | $313,539 | $143.75 | | |
| ISLANDEMS | Hospital GEN (EMS) | 0.5000000000 | $313,539 | $313,539 | $156.77 | | |
| LIB | Library Sno-Isle GEN | 0.3153421757 | $313,539 | $313,539 | $98.87 | | |
| NWHIDPRMT | P & R N Whidbey GEN | 0.2004466701 | $313,539 | $313,539 | $62.85 | | |
| SCH201MO | School 201 Enrichment | 1.8559231640 | $313,539 | $313,539 | $581.90 | | |
| ST | State School | 1.3035497053 | $313,539 | $313,539 | $408.71 | | |
| ST2 | State School Part 2 | 0.8169543533 | $313,539 | $313,539 | $256.15 | | |
| | Total Tax Rate: | 6.9861102925 | | | | | |
| | | | | Taxes w/Current Exemptions: | $2,190.41 | | |
| | | | | Taxes w/o Exemptions: | $2,190.41 | | |
Improvement / Building
| Improvement #1: | MANUFACTURED HOME | State Code: | Y | 756.0 sqft | Value: | $13,539 |
| Bathrooms: | 3 | Bedrooms: | 2 | | Ceiling: | PLASTER PAINTED | Cooling: | EVAP NO DUCT | | Exterior Wall/Cover: | VINYL | Floor Covering: | CARPET 100% | | Floor Structure: | SLAB ON GRADE | Foundation: | SLAB | | Heating: | FHA ELECTRIC | Interior Finish: | PLASTER | | Plumbing Fixture Cnt: | 1 | Roof Slope: | FLAT | | Roof Structure/Cover: | CJ ALUMINIUM HEAVY |   |   |
|
| | Type | Description | Class CD | Sub Class CD | Year Built | Area |
| | BAS | BASE/MAIN FLOOR | 3 | 0 | 1979 | 756.0 |
| | OWR | OPEN WOOD PORCH W/STEPS/ROOF | 3 | 0 | 1979 | 60.0 |
| | OWR | OPEN WOOD PORCH W/STEPS/ROOF | 3 | 0 | 1979 | 128.0 |
| | ENP | ENCLOSED PORCH | 3 | 0 | 1979 | 320.0 |
| | DGR | DETACHED GARAGE | 3 | 0 | 1979 | 576.0 |
| | UTY | STORAGE/UTILITY | 3 | 0 | 1979 | 200.0 |
Sketch
Property Image
Land
| 1 | 32 | AC (03.01-09.99) | 4.7500 | 0.00 | 0.00 | 0.00 | 1.00 | $300,000 | $0 |
Roll Value History
| 2026 | N/A | N/A | N/A | N/A | N/A |
| 2025 | $13,539 | $300,000 | $0 | $313,539 | $313,539 |
| 2024 | $14,106 | $280,000 | $0 | $294,106 | $294,106 |
| 2023 | $15,235 | $270,000 | $0 | $285,235 | $285,235 |
| 2022 | $14,305 | $300,000 | $0 | $314,305 | $314,305 |
| 2021 | $13,325 | $200,000 | $0 | $213,325 | $213,325 |
| 2020 | $13,370 | $160,000 | $0 | $173,370 | $173,370 |
| 2019 | $11,211 | $220,000 | $0 | $231,211 | $231,211 |
| 2018 | $11,893 | $200,000 | $0 | $211,893 | $211,893 |
| 2017 | $12,912 | $165,000 | $0 | $177,912 | $177,912 |
| 2016 | $11,063 | $140,000 | $0 | $151,063 | $151,063 |
| 2015 | $11,732 | $120,000 | $0 | $131,732 | $131,732 |
| 2014 | $12,738 | $100,000 | $0 | $112,738 | $112,738 |
| 2013 | $13,408 | $106,875 | $0 | $120,283 | $120,283 |
| 2012 | $14,078 | $106,875 | $0 | $120,953 | $120,953 |
| 2011 | $14,750 | $118,750 | $0 | $133,500 | $133,500 |
| 2010 | $28,995 | $118,750 | $0 | $147,745 | $147,745 |
| 2009 | $30,258 | $118,750 | $0 | $149,008 | $149,008 |
| 2008 | $31,184 | $140,125 | $0 | $171,309 | $171,309 |
| 2007 | $32,326 | $140,125 | $0 | $172,451 | $172,451 |
Deed and Sales History
| 1 | 07/11/2022 | WD | Warranty Deed | SCHEER, KEVIN | MILLER, PEGGY | | | $310,000.00 | 54463 | 4550905 |
| 2 | 07/22/2022 | QCD | Quit Claim Deed | SCHEER, JENNIFER | SCHEER, KEVIN | | | $0.00 | 54462 | 4550904 |
| 3 | 12/13/2001 | TRUSTEED | Trustee's Deed | APPLEGARTH, GARLAND E | SCHEER, KEVIN | | | $0.00 | 14804 | 4006326 |
| 4 | 05/01/1993 | OTHER | Other - Misc. Documents | BELLINGHAM, NATIONAL B | APPLEGARTH, GARLAND E | | | $0.00 | 65372 | 93009214 |
| 5 | 01/01/1991 | TRUSTEED | Trustee's Deed | APPLEGARTH, GARLAND E | BELLINGHAM, NATIONAL B | | | $0.00 | 10143 | 91000751 |
| 6 | 07/01/1988 | OTHER | Other - Misc. Documents | APPLEGARTH, GARLAND | APPLEGARTH, GARLAND E | | | $0.00 | 82227 | 0 |
| 7 | 06/01/1987 | WD | Warranty Deed | PETER, KIEWIT S | APPLEGARTH, GARLAND | | | $14,250.00 | 71694 | 87007928 |
| 8 | 01/01/1900 | OTHER | Other - Misc. Documents | Unknown | PETER, KIEWIT S | | | $0.00 | 0 | 0 |
Payout Agreement
| No payout information available.. |