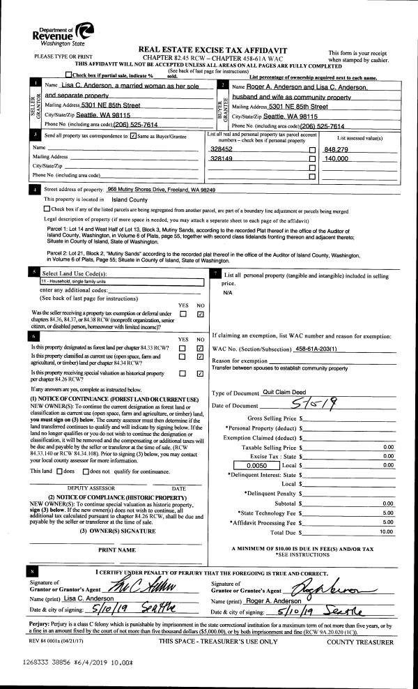
| 1 | 09/11/2024 | WD | Warranty Deed | ROBERTSON, BRODY K | GORLACH TTEE, JENIFER MARIE | | | $405,000.00 | 61276 | 4577126 |
| 2 | 10/26/2021 | QCD | Quit Claim Deed | ROBERTSON, BRODY K | ROBERTSON, BRODY K | | | $0.00 | 50729 | 4532956 |
| 3 | 04/26/2019 | WD | Warranty Deed | RUIZ, RAYMOND | ROBERTSON, BRODY K | | | $245,000.00 | 38488 | 4463271 |
| 4 | 11/01/2016 | WD | Warranty Deed | COGGINS, SUSAN | RUIZ, RAYMOND | | | $197,500.00 | 26771 | 4410666 |
| 5 | 09/11/2013 | WD | Warranty Deed | MORSE, JEDEDIAH M | COGGINS, SUSAN | | | $142,900.00 | 12883 | 4348470 |
| 6 | 03/07/2011 | WD | Warranty Deed | FEDERAL NATIONAL MORTGAGE ASSOCIATION | MORSE, JEDEDIAH M | | | $119,300.00 | 3841 | 4292103 |
| 7 | 11/19/2010 | TRUSTEED | Trustee's Deed | SWAIN JR, ROBERT | FEDERAL NATIONAL MORTGAGE ASSOCIATION | | | $168,043.00 | 3105 | 4286658 |
| 8 | 12/09/2002 | ESTSEPPROP | Establish Separate Property | SWAIN JR, ROBERT | SWAIN JR, ROBERT | | | $0.00 | 25047 | 4040927 |
| 9 | 12/09/2002 | TRUSTEED | Trustee's Deed | HENRY M JACKSON BUILDING, VETE | SWAIN JR, ROBERT | | | $109,000.00 | 25046 | 4040926 |
| 10 | 07/24/2002 | WD | Warranty Deed | HOME MORTGAGE, INC, WELLS FARG | HENRY M JACKSON BUILDING, VETE | | | $0.00 | 22943 | 4026876 |
| 11 | 07/24/2002 | TRUSTEED | Trustee's Deed | Unknown | HOME MORTGAGE, INC, WELLS FARG | | | $92,537.00 | 22942 | 4026875 |
| 12 | 10/09/1998 | WD | Warranty Deed | LESTER, JULIETTE B | CPPLE, STEVE | | | $103,000.00 | 84038 | 98021764 |
| 13 | 07/01/1990 | DECREE | Divorce Decree/Legal Separation | LESTER, GARY E | LESTER, JULIETTE B | | | $0.00 | 4049 | 90013235 |
| 14 | 11/01/1987 | WD | Warranty Deed | ISLAND, PACIFIC C | LESTER, GARY E | | | $55,900.00 | 73631 | 87015806 |
| 15 | 07/01/1987 | WD | Warranty Deed | DENISON, GEORGE K | ISLAND, PACIFIC C | | | $10,400.00 | 71998 | 87009143 |
| 16 | 10/01/1980 | WD | Warranty Deed | ECKART, HANS J | DENISON, GEORGE K | | | $6,000.00 | 3285 | 374505 |