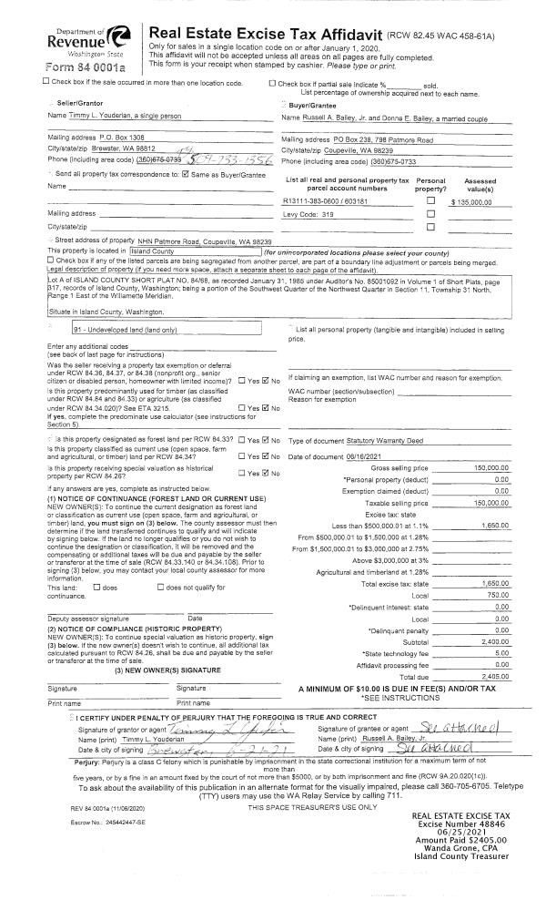
Property
Account |
| Property ID: | 331457 | Abbreviated Legal Description: | NGATE TERR LOT 4 BLK 7 |
| Geographic ID: | S7575-00-07004-0 | Agent Code: | |
| Type: | Real | | |
| Tax Area: | 110 - APPRAISER-OH Schl Dist, outside OH, improved & 1 acre or less | Land Use Code | 11 |
| Open Space: | N | DFL | N |
| Historic Property: | N | Remodel Property: | N |
| Multi-Family Redevelopment: | N | | |
| Township: | | Section: | |
| Range: | |
Location |
| Address: | 587 SALAL ST OAK HARBOR, WA 98277 | Mapsco: | |
| Neighborhood: | Cycle 6 | Map ID: | 203 |
| Neighborhood CD: | 6 |
Owner |
| Name: | JANNOT, LOGAN RUSSELL | Owner ID: | 297600 |
| Mailing Address: | ALYSHA ANN JANNOT 587 SALAL ST OAK HARBOR, WA 98277 | % Ownership: | 100.0000000000% |
| | | Exemptions: | |
Taxes and Assessment Details
Values
| (+) Improvement Homesite Value: | + | $0 | |
| (+) Improvement Non-Homesite Value: | + | $177,306 | |
| (+) Land Homesite Value: | + | $0 | |
| (+) Land Non-Homesite Value: | + | $210,000 | |
| (+) Curr Use (HS): | + | $0 | $0 |
| (+) Curr Use (NHS): | + | $0 | $0 |
| | | -------------------------- | |
| (=) Market Value: | = | $387,306 | |
| (–) Productivity Loss: | – | $0 | |
| | | -------------------------- | |
| (=) Subtotal: | = | $387,306 | |
| (+) Senior Appraised Value: | + | $0 | |
| (+) Non-Senior Appraised Value: | + | $387,306 | |
| | | -------------------------- | |
| (=) Total Appraised Value: | = | $387,306 | |
| (–) Senior Exemption Loss: | – | $0 | |
| (–) Exemption Loss: | – | $0 | |
| | | -------------------------- | |
| (=) Taxable Value: | = | $387,306 | |
Taxing Jurisdiction
| Owner: | JANNOT, LOGAN RUSSELL | | |
| % Ownership: | 100.0000000000% | | |
| Total Value: | $387,306 | | |
| Tax Area: | 110 - APPRAISER-OH Schl Dist, outside OH, improved & 1 acre or less |
| CF | Conservation Futures | 0.0316035091 | $387,306 | $387,306 | $12.24 | | |
| CEM1 | Cemetery #1 | 0.0040320932 | $387,306 | $387,306 | $1.56 | | |
| FIRE2 | Fire & Rescue Dist #2 N Whidbey GEN | 0.5475949600 | $387,306 | $387,306 | $212.09 | | |
| HOBOND | Hospital BOND | 0.1910887512 | $387,306 | $387,306 | $74.01 | | |
| HOGEN | Hospital GEN | 0.3902502903 | $387,306 | $387,306 | $151.15 | | |
| CE | County Current Expense | 0.3708482477 | $387,306 | $387,306 | $143.63 | | |
| CR | County Roads | 0.4584763726 | $387,306 | $387,306 | $177.57 | | |
| ISLANDEMS | Hospital GEN (EMS) | 0.5000000000 | $387,306 | $387,306 | $193.65 | | |
| LIB | Library Sno-Isle GEN | 0.3153421757 | $387,306 | $387,306 | $122.13 | | |
| NWHIDPRMT | P & R N Whidbey GEN | 0.2004466701 | $387,306 | $387,306 | $77.63 | | |
| SCH201MO | School 201 Enrichment | 1.8559231640 | $387,306 | $387,306 | $718.81 | | |
| ST | State School | 1.3035497053 | $387,306 | $387,306 | $504.87 | | |
| ST2 | State School Part 2 | 0.8169543533 | $387,306 | $387,306 | $316.41 | | |
| | Total Tax Rate: | 6.9861102925 | | | | | |
| | | | | Taxes w/Current Exemptions: | $2,705.75 | | |
| | | | | Taxes w/o Exemptions: | $2,705.75 | | |
Improvement / Building
| Improvement #1: | RESIDENTIAL | State Code: | Y | 1000.0 sqft | Value: | $177,306 |
| Bathrooms: | 1 | Bedrooms: | 3 | | Ceiling: | DRY WALL SPRAYED | Exterior Wall/Cover: | PLY/HARDBOARD T-111 | | Floor Covering: | CARPET/VINYL 80-20 | Floor Structure: | WOOD W/SUBFLOOR | | Foundation: | CONCRETE | Heating: | BASEBOARD ELECTRIC | | Interior Finish: | DRYWALL PAINT | Plumbing Fixture Cnt: | 6 | | Roof Slope: | 4" IN 12" | Roof Structure/Cover: | CJ ASPHALT |
|
| | Type | Description | Class CD | Sub Class CD | Year Built | Area |
| | BAS | BASE/MAIN FLOOR | 3 | 0 | 1978 | 1000.0 |
| | OP3 | OPEN PORCH W/ROOF | 3 | 0 | 1978 | 24.0 |
| | AGR | ATTACHED GARAGE | 3 | 0 | 1978 | 312.0 |
| | OWP | OPEN WOOD PORCH W/STEPS | 3 | 0 | 1978 | 42.0 |
| | OWP | OPEN WOOD PORCH W/STEPS | 3 | 0 | 1978 | 240.0 |
Sketch
Property Image
Land
| 1 | 14 | SQ (08001-12000) | 0.0000 | 0.00 | 0.00 | 0.00 | 1.00 | $210,000 | $0 |
Roll Value History
| 2026 | N/A | N/A | N/A | N/A | N/A |
| 2025 | $177,306 | $210,000 | $0 | $387,306 | $387,306 |
| 2024 | $183,484 | $190,000 | $0 | $373,484 | $373,484 |
| 2023 | $185,828 | $190,000 | $0 | $375,828 | $375,828 |
| 2022 | $170,393 | $180,000 | $0 | $350,393 | $350,393 |
| 2021 | $150,013 | $130,000 | $0 | $280,013 | $280,013 |
| 2020 | $120,695 | $110,000 | $0 | $230,695 | $230,695 |
| 2019 | $85,928 | $140,000 | $0 | $225,928 | $225,928 |
| 2018 | $86,224 | $120,000 | $0 | $206,224 | $206,224 |
| 2017 | $86,820 | $90,000 | $0 | $176,820 | $176,820 |
| 2016 | $82,062 | $70,000 | $0 | $152,062 | $152,062 |
| 2015 | $83,251 | $50,000 | $0 | $133,251 | $133,251 |
| 2014 | $84,440 | $45,000 | $0 | $129,440 | $129,440 |
| 2013 | $85,630 | $45,000 | $0 | $130,630 | $130,630 |
| 2012 | $86,820 | $59,500 | $0 | $146,320 | $146,320 |
| 2011 | $88,008 | $70,000 | $0 | $158,008 | $158,008 |
| 2010 | $97,327 | $70,000 | $0 | $167,327 | $167,327 |
| 2009 | $101,634 | $77,500 | $0 | $179,134 | $179,134 |
| 2008 | $103,140 | $94,500 | $0 | $197,640 | $197,640 |
| 2007 | $104,645 | $90,000 | $0 | $194,645 | $194,645 |
Deed and Sales History
| 1 | 12/29/2020 | WD | Warranty Deed | MCLAIN, JOSHUA G | JANNOT, LOGAN RUSSELL | | | $305,000.00 | 46423 | 4506867 |
| 2 | 12/06/2004 | WD | Warranty Deed | SHANNON, JAY M | MCLAIN, JOSHUA G | | | $139,900.00 | 45735 | 4120289 |
| 3 | 04/01/1994 | WD | Warranty Deed | OWEN, JOSEPH & | SHANNON, JAY M | | | $90,000.00 | 41453 | 94008924 |
| 4 | 06/01/1991 | WD | Warranty Deed | JOHNSON, DAVID A | OWEN, JOSEPH & | | | $75,000.00 | 12252 | 91009684 |
| 5 | 03/01/1984 | WD | Warranty Deed | WATKINS, RICHARD L | JOHNSON, DAVID A | | | $52,000.00 | 40799 | 422576 |
| 6 | 02/01/1983 | WD | Warranty Deed | ESLINGER, DARRELL A | WATKINS, RICHARD L | | | $44,900.00 | 30312 | 405631 |
| 7 | 12/01/1978 | OTHER | Other - Misc. Documents | Unknown | ESLINGER, DARRELL A | | | $37,600.00 | 86051 | 344508 |
Payout Agreement
| No payout information available.. |