Property
Account |
| Property ID: | 331475 | Abbreviated Legal Description: | NORTHGATE TERRACE LOT 6 BLK 7 |
| Geographic ID: | S7575-00-07006-0 | Agent Code: | |
| Type: | Real | | |
| Tax Area: | 110 - APPRAISER-OH Schl Dist, outside OH, improved & 1 acre or less | Land Use Code | 11 |
| Open Space: | N | DFL | N |
| Historic Property: | N | Remodel Property: | N |
| Multi-Family Redevelopment: | N | | |
| Township: | | Section: | |
| Range: | |
Location |
| Address: | 577 SALAL ST OAK HARBOR, WA 98277 | Mapsco: | |
| Neighborhood: | Cycle 6 | Map ID: | 203 |
| Neighborhood CD: | 6 |
Owner |
| Name: | CACHOASCENCIO, FRANCISCO G | Owner ID: | 78136 |
| Mailing Address: | 577 SALAL ST OAK HARBOR, WA 98277-9528 | % Ownership: | 100.0000000000% |
| | | Exemptions: | |
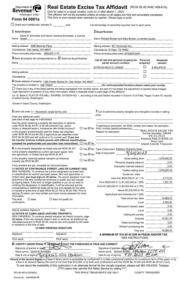
Taxes and Assessment Details
Values
| (+) Improvement Homesite Value: | + | $0 | |
| (+) Improvement Non-Homesite Value: | + | $173,139 | |
| (+) Land Homesite Value: | + | $0 | |
| (+) Land Non-Homesite Value: | + | $210,000 | |
| (+) Curr Use (HS): | + | $0 | $0 |
| (+) Curr Use (NHS): | + | $0 | $0 |
| | | -------------------------- | |
| (=) Market Value: | = | $383,139 | |
| (–) Productivity Loss: | – | $0 | |
| | | -------------------------- | |
| (=) Subtotal: | = | $383,139 | |
| (+) Senior Appraised Value: | + | $0 | |
| (+) Non-Senior Appraised Value: | + | $383,139 | |
| | | -------------------------- | |
| (=) Total Appraised Value: | = | $383,139 | |
| (–) Senior Exemption Loss: | – | $0 | |
| (–) Exemption Loss: | – | $0 | |
| | | -------------------------- | |
| (=) Taxable Value: | = | $383,139 | |
Taxing Jurisdiction
| Owner: | CACHOASCENCIO, FRANCISCO G | | |
| % Ownership: | 100.0000000000% | | |
| Total Value: | $383,139 | | |
| Tax Area: | 110 - APPRAISER-OH Schl Dist, outside OH, improved & 1 acre or less |
| CF | Conservation Futures | 0.0316035091 | $383,139 | $383,139 | $12.11 | | |
| CEM1 | Cemetery #1 | 0.0040320932 | $383,139 | $383,139 | $1.54 | | |
| FIRE2 | Fire & Rescue Dist #2 N Whidbey GEN | 0.5475949600 | $383,139 | $383,139 | $209.80 | | |
| HOBOND | Hospital BOND | 0.1910887512 | $383,139 | $383,139 | $73.21 | | |
| HOGEN | Hospital GEN | 0.3902502903 | $383,139 | $383,139 | $149.52 | | |
| CE | County Current Expense | 0.3708482477 | $383,139 | $383,139 | $142.09 | | |
| CR | County Roads | 0.4584763726 | $383,139 | $383,139 | $175.66 | | |
| ISLANDEMS | Hospital GEN (EMS) | 0.5000000000 | $383,139 | $383,139 | $191.57 | | |
| LIB | Library Sno-Isle GEN | 0.3153421757 | $383,139 | $383,139 | $120.82 | | |
| NWHIDPRMT | P & R N Whidbey GEN | 0.2004466701 | $383,139 | $383,139 | $76.80 | | |
| SCH201MO | School 201 Enrichment | 1.8559231640 | $383,139 | $383,139 | $711.08 | | |
| ST | State School | 1.3035497053 | $383,139 | $383,139 | $499.44 | | |
| ST2 | State School Part 2 | 0.8169543533 | $383,139 | $383,139 | $313.01 | | |
| | Total Tax Rate: | 6.9861102925 | | | | | |
| | | | | Taxes w/Current Exemptions: | $2,676.65 | | |
| | | | | Taxes w/o Exemptions: | $2,676.65 | | |
Improvement / Building
| Improvement #1: | RESIDENTIAL | State Code: | Y | 1000.0 sqft | Value: | $173,139 |
| Bathrooms: | 1 | Bedrooms: | 3 | | Ceiling: | DRY WALL SPRAYED | Exterior Wall/Cover: | PLY/HARDBOARD T-111 | | Floor Covering: | CARPET/VINYL 80-20 | Floor Structure: | WOOD W/SUBFLOOR | | Foundation: | CONCRETE | Heating: | BASEBOARD ELECTRIC | | Interior Finish: | DRYWALL PAINT | Plumbing Fixture Cnt: | 6 | | Roof Slope: | 4" IN 12" | Roof Structure/Cover: | CJ ASPHALT |
|
| | Type | Description | Class CD | Sub Class CD | Year Built | Area |
| | BAS | BASE/MAIN FLOOR | 3 | 0 | 1978 | 1000.0 |
| | OP3 | OPEN PORCH W/ROOF | 3 | 0 | 1978 | 48.0 |
| | AGR | ATTACHED GARAGE | 3 | 0 | 1978 | 312.0 |
Sketch
Property Image
Land
| 1 | 14 | SQ (08001-12000) | 0.0000 | 0.00 | 0.00 | 0.00 | 1.00 | $210,000 | $0 |
Roll Value History
| 2026 | N/A | N/A | N/A | N/A | N/A |
| 2025 | $173,139 | $210,000 | $0 | $383,139 | $383,139 |
| 2024 | $179,058 | $190,000 | $0 | $369,058 | $369,058 |
| 2023 | $181,235 | $190,000 | $0 | $371,235 | $371,235 |
| 2022 | $162,133 | $180,000 | $0 | $342,133 | $342,133 |
| 2021 | $142,704 | $130,000 | $0 | $272,704 | $272,704 |
| 2020 | $138,993 | $110,000 | $0 | $248,993 | $248,993 |
| 2019 | $98,745 | $140,000 | $0 | $238,745 | $238,745 |
| 2018 | $99,034 | $120,000 | $0 | $219,034 | $219,034 |
| 2017 | $99,613 | $90,000 | $0 | $189,613 | $189,613 |
| 2016 | $87,042 | $70,000 | $0 | $157,042 | $157,042 |
| 2015 | $87,042 | $50,000 | $0 | $137,042 | $137,042 |
| 2014 | $87,042 | $45,000 | $0 | $132,042 | $132,042 |
| 2013 | $87,042 | $45,000 | $0 | $132,042 | $132,042 |
| 2012 | $87,042 | $59,500 | $0 | $146,542 | $146,542 |
| 2011 | $87,042 | $70,000 | $0 | $157,042 | $157,042 |
| 2010 | $96,607 | $70,000 | $0 | $166,607 | $166,607 |
| 2009 | $99,535 | $77,500 | $0 | $177,035 | $177,035 |
| 2008 | $100,818 | $94,500 | $0 | $195,318 | $195,318 |
| 2007 | $102,095 | $90,000 | $0 | $192,095 | $192,095 |
Deed and Sales History
| 1 | 08/19/2005 | ESTSEPPROP | Establish Separate Property | CACHOASCENCIO, FRANCISCO G | CACHOASCENCIO, FRANCISCO G | | | $0.00 | 54313 | 4146103 |
| 2 | 08/19/2005 | WD | Warranty Deed | DUERRE, DANIEL S | CACHOASCENCIO, FRANCISCO G | | | $180,000.00 | 54312 | 4146102 |
| 3 | 12/04/2000 | WD | Warranty Deed | CLAY, THOMAS D | DUERRE, DANIEL S | | | $103,500.00 | 4690 | 20021773 |
| 4 | 07/01/1996 | WD | Warranty Deed | NORWEST, MORTGAGE I | CLAY, THOMAS D | | | $90,510.00 | 62715 | 96013332 |
| 5 | 03/01/1996 | TRUSTEED | Trustee's Deed | SECRETARY, VETERANS A | NORWEST, MORTGAGE I | | | $0.00 | 60998 | 96005123 |
| 6 | 03/01/1996 | WD | Warranty Deed | WHITE, DARYL S | SECRETARY, VETERANS A | | | $83,192.00 | 61286 | 96006566 |
| 7 | 09/01/1993 | WD | Warranty Deed | WHITE, DARYL S | WHITE, DARYL S | | | $88,500.00 | 33579 | 93018635 |
| 8 | 09/01/1993 | QCD | Quit Claim Deed | SMITH, JEFFREY L | WHITE, DARYL S | | | $0.00 | 33580 | 93018636 |
| 9 | 04/01/1985 | WD | Warranty Deed | PHILLIPS, RANDALL M | SMITH, JEFFREY L | | | $51,500.00 | 51030 | 85004282 |
| 10 | 08/01/1983 | QCD | Quit Claim Deed | PHILLIPS, RANDALL M | PHILLIPS, RANDALL M | | | $0.00 | 32447 | 414249 |
| 11 | 01/01/1980 | REC | Real Estate Contract | PURDY, JOHN S | PHILLIPS, RANDALL M | | | $32,100.00 | 356 | 364664 |
| 12 | 06/01/1978 | OTHER | Other - Misc. Documents | Unknown | PURDY, JOHN S | | | $22,250.00 | 82883 | 334804 |
Payout Agreement
| No payout information available.. |