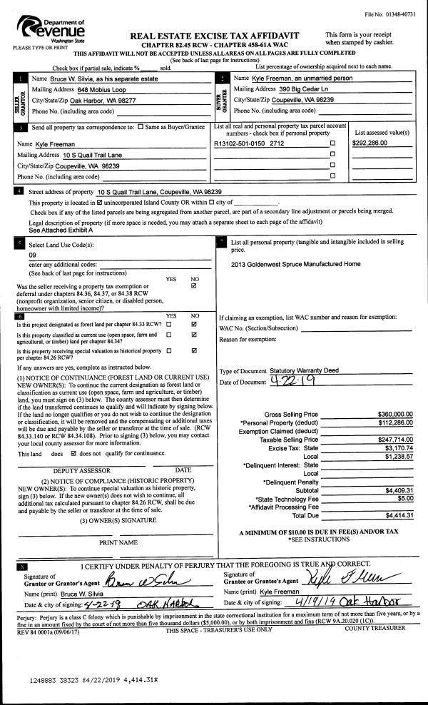
Property
Account |
| Property ID: | 33154 | Abbreviated Legal Description: | LOT B SP385/24 AFN 4582522 |
| Geographic ID: | R13311-066-3630 | Agent Code: | |
| Type: | Real | | |
| Tax Area: | 112 - APPRAISER-OH Schl Dist, outside OH, improved, greater than 1 acre | Land Use Code | 11 |
| Open Space: | N | DFL | N |
| Historic Property: | N | Remodel Property: | N |
| Multi-Family Redevelopment: | N | | |
| Township: | 33 | Section: | 11 |
| Range: | R1 |
Location |
| Address: | 514 SULLIVAN RD OAK HARBOR, WA 98277 | Mapsco: | |
| Neighborhood: | Cycle 6 | Map ID: | 201 |
| Neighborhood CD: | 6 |
Owner |
| Name: | LDELD ENTERPRISES, LLC | Owner ID: | 296062 |
| Mailing Address: | 1320 ADMIRAL DR COUPEVILLE, WA 98239 | % Ownership: | 100.0000000000% |
| | | Exemptions: | |
Taxes and Assessment Details
Values
| (+) Improvement Homesite Value: | + | $0 | |
| (+) Improvement Non-Homesite Value: | + | $29,315 | |
| (+) Land Homesite Value: | + | $0 | |
| (+) Land Non-Homesite Value: | + | $290,000 | |
| (+) Curr Use (HS): | + | $0 | $0 |
| (+) Curr Use (NHS): | + | $0 | $0 |
| | | -------------------------- | |
| (=) Market Value: | = | $319,315 | |
| (–) Productivity Loss: | – | $0 | |
| | | -------------------------- | |
| (=) Subtotal: | = | $319,315 | |
| (+) Senior Appraised Value: | + | $0 | |
| (+) Non-Senior Appraised Value: | + | $319,315 | |
| | | -------------------------- | |
| (=) Total Appraised Value: | = | $319,315 | |
| (–) Senior Exemption Loss: | – | $0 | |
| (–) Exemption Loss: | – | $0 | |
| | | -------------------------- | |
| (=) Taxable Value: | = | $319,315 | |
Taxing Jurisdiction
| Owner: | LDELD ENTERPRISES, LLC | | |
| % Ownership: | 100.0000000000% | | |
| Total Value: | $319,315 | | |
| Tax Area: | 112 - APPRAISER-OH Schl Dist, outside OH, improved, greater than 1 acre |
| CF | Conservation Futures | 0.0316035091 | $319,315 | $319,315 | $10.09 | | |
| CEM1 | Cemetery #1 | 0.0040320932 | $319,315 | $319,315 | $1.29 | | |
| FIRE2 | Fire & Rescue Dist #2 N Whidbey GEN | 0.5475949600 | $319,315 | $319,315 | $174.86 | | |
| HOBOND | Hospital BOND | 0.1910887512 | $319,315 | $319,315 | $61.02 | | |
| HOGEN | Hospital GEN | 0.3902502903 | $319,315 | $319,315 | $124.61 | | |
| CE | County Current Expense | 0.3708482477 | $319,315 | $319,315 | $118.42 | | |
| CR | County Roads | 0.4584763726 | $319,315 | $319,315 | $146.40 | | |
| ISLANDEMS | Hospital GEN (EMS) | 0.5000000000 | $319,315 | $319,315 | $159.66 | | |
| LIB | Library Sno-Isle GEN | 0.3153421757 | $319,315 | $319,315 | $100.69 | | |
| NWHIDPRMT | P & R N Whidbey GEN | 0.2004466701 | $319,315 | $319,315 | $64.01 | | |
| SCH201MO | School 201 Enrichment | 1.8559231640 | $319,315 | $319,315 | $592.62 | | |
| ST | State School | 1.3035497053 | $319,315 | $319,315 | $416.24 | | |
| ST2 | State School Part 2 | 0.8169543533 | $319,315 | $319,315 | $260.87 | | |
| | Total Tax Rate: | 6.9861102925 | | | | | |
| | | | | Taxes w/Current Exemptions: | $2,230.78 | | |
| | | | | Taxes w/o Exemptions: | $2,230.78 | | |
Improvement / Building
| Improvement #1: | RESIDENTIAL | State Code: | Y | 0.0 sqft | Value: | $29,315 |
| | Type | Description | Class CD | Sub Class CD | Year Built | Area |
| | oCB1 | CABIN UNFI | 3 | 0 | 2022 | 480.0 |
| | oEQU | EQUIP SHED | 3 | 0 | 2022 | 100.0 |
Sketch
Property Image
Land
| 1 | 35 | AC (10.00-30.99) | 11.9000 | 518364.00 | 0.00 | 0.00 | 1.00 | $290,000 | $0 |
Roll Value History
| 2026 | N/A | N/A | N/A | N/A | N/A |
| 2025 | $29,315 | $290,000 | $0 | $319,315 | $319,315 |
| 2024 | $19,769 | $280,000 | $0 | $299,769 | $299,769 |
| 2023 | $14,500 | $260,000 | $0 | $274,500 | $274,500 |
| 2022 | $14,500 | $260,000 | $0 | $274,500 | $274,500 |
| 2021 | $0 | $210,000 | $0 | $210,000 | $210,000 |
| 2020 | $0 | $200,000 | $0 | $200,000 | $200,000 |
| 2019 | $0 | $200,000 | $0 | $200,000 | $200,000 |
| 2018 | $0 | $200,000 | $0 | $200,000 | $200,000 |
| 2017 | $0 | $200,000 | $0 | $200,000 | $200,000 |
| 2016 | $0 | $200,000 | $0 | $200,000 | $200,000 |
| 2015 | $0 | $200,000 | $0 | $200,000 | $200,000 |
| 2014 | $0 | $170,000 | $0 | $170,000 | $170,000 |
| 2013 | $0 | $200,000 | $0 | $200,000 | $200,000 |
| 2012 | $0 | $200,000 | $0 | $200,000 | $200,000 |
| 2011 | $0 | $200,000 | $0 | $200,000 | $200,000 |
| 2010 | $0 | $200,000 | $0 | $200,000 | $200,000 |
| 2009 | $0 | $400,000 | $0 | $400,000 | $400,000 |
| 2008 | $0 | $250,000 | $0 | $250,000 | $250,000 |
| 2007 | $0 | $200,000 | $0 | $200,000 | $200,000 |
Deed and Sales History
| 1 | 09/09/2020 | WD | Warranty Deed | COFER, JILL D | LDELD ENTERPRISES, LLC | | | $250,000.00 | 44699 | 4496260 |
| 2 | 03/01/2019 | QCD | Quit Claim Deed | LANG, JERRY J | COFER, JILL D | | | $0.00 | 37872 | 4460510 |
| 3 | 12/01/1996 | QCD | Quit Claim Deed | LANG, FRED | LANG, JERRY | | | $0.00 | 73786 | 97018053 |
| 4 | 01/01/1900 | OTHER | Other - Misc. Documents | Unknown | LANG, FRED | | | $0.00 | 0 | 0 |
Payout Agreement
| No payout information available.. |