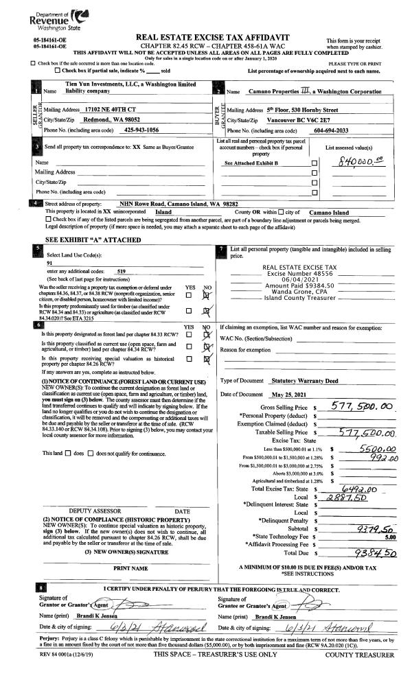
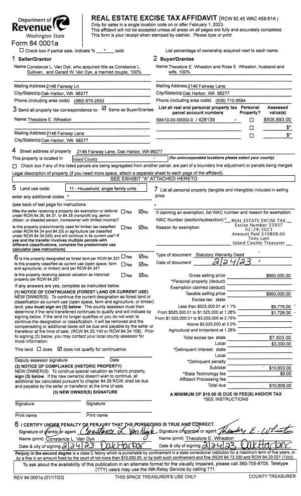
Property
Account |
| Property ID: | 331563 | Abbreviated Legal Description: | NGATE TERR LOT 6 BLK 8 |
| Geographic ID: | S7575-00-08006-0 | Agent Code: | |
| Type: | Real | | |
| Tax Area: | 110 - APPRAISER-OH Schl Dist, outside OH, improved & 1 acre or less | Land Use Code | 11 |
| Open Space: | N | DFL | N |
| Historic Property: | N | Remodel Property: | N |
| Multi-Family Redevelopment: | N | | |
| Township: | | Section: | |
| Range: | |
Location |
| Address: | 4318 RHODODENDRON DR OAK HARBOR, WA 98277 | Mapsco: | |
| Neighborhood: | Cycle 6 | Map ID: | 202 |
| Neighborhood CD: | 6 |
Owner |
| Name: | TRINOSKY, TROY M | Owner ID: | 297779 |
| Mailing Address: | RACHEL E TRINOSKY 12083 LA SALLE RIVER RD CONROE, TX 77304-4006 | % Ownership: | 100.0000000000% |
| | | Exemptions: | |
Taxes and Assessment Details
Values
| (+) Improvement Homesite Value: | + | $0 | |
| (+) Improvement Non-Homesite Value: | + | $226,549 | |
| (+) Land Homesite Value: | + | $0 | |
| (+) Land Non-Homesite Value: | + | $210,000 | |
| (+) Curr Use (HS): | + | $0 | $0 |
| (+) Curr Use (NHS): | + | $0 | $0 |
| | | -------------------------- | |
| (=) Market Value: | = | $436,549 | |
| (–) Productivity Loss: | – | $0 | |
| | | -------------------------- | |
| (=) Subtotal: | = | $436,549 | |
| (+) Senior Appraised Value: | + | $0 | |
| (+) Non-Senior Appraised Value: | + | $436,549 | |
| | | -------------------------- | |
| (=) Total Appraised Value: | = | $436,549 | |
| (–) Senior Exemption Loss: | – | $0 | |
| (–) Exemption Loss: | – | $0 | |
| | | -------------------------- | |
| (=) Taxable Value: | = | $436,549 | |
Taxing Jurisdiction
| Owner: | TRINOSKY, TROY M | | |
| % Ownership: | 100.0000000000% | | |
| Total Value: | $436,549 | | |
| Tax Area: | 110 - APPRAISER-OH Schl Dist, outside OH, improved & 1 acre or less |
| CF | Conservation Futures | 0.0316035091 | $436,549 | $436,549 | $13.80 | | |
| CEM1 | Cemetery #1 | 0.0040320932 | $436,549 | $436,549 | $1.76 | | |
| FIRE2 | Fire & Rescue Dist #2 N Whidbey GEN | 0.5475949600 | $436,549 | $436,549 | $239.05 | | |
| HOBOND | Hospital BOND | 0.1910887512 | $436,549 | $436,549 | $83.42 | | |
| HOGEN | Hospital GEN | 0.3902502903 | $436,549 | $436,549 | $170.36 | | |
| CE | County Current Expense | 0.3708482477 | $436,549 | $436,549 | $161.89 | | |
| CR | County Roads | 0.4584763726 | $436,549 | $436,549 | $200.15 | | |
| ISLANDEMS | Hospital GEN (EMS) | 0.5000000000 | $436,549 | $436,549 | $218.27 | | |
| LIB | Library Sno-Isle GEN | 0.3153421757 | $436,549 | $436,549 | $137.66 | | |
| NWHIDPRMT | P & R N Whidbey GEN | 0.2004466701 | $436,549 | $436,549 | $87.50 | | |
| SCH201MO | School 201 Enrichment | 1.8559231640 | $436,549 | $436,549 | $810.20 | | |
| ST | State School | 1.3035497053 | $436,549 | $436,549 | $569.06 | | |
| ST2 | State School Part 2 | 0.8169543533 | $436,549 | $436,549 | $356.64 | | |
| | Total Tax Rate: | 6.9861102925 | | | | | |
| | | | | Taxes w/Current Exemptions: | $3,049.76 | | |
| | | | | Taxes w/o Exemptions: | $3,049.76 | | |
Improvement / Building
| Improvement #1: | RESIDENTIAL | State Code: | Y | 1152.0 sqft | Value: | $226,549 |
| Bathrooms: | 2 | Bedrooms: | 3 | | Ceiling: | DRY WALL SPRAYED | Exterior Wall/Cover: | PLY/HARDBOARD T-111 | | Floor Covering: | CARPET/VINYL 80-20 | Floor Structure: | WOOD W/SUBFLOOR | | Foundation: | CONCRETE | Heating: | BASEBOARD ELECTRIC | | Interior Finish: | DRYWALL PAINT | Plumbing Fixture Cnt: | 9 | | Roof Slope: | 4" IN 12" | Roof Structure/Cover: | CJ ASPHALT |
|
| | Type | Description | Class CD | Sub Class CD | Year Built | Area |
| | BAS | BASE/MAIN FLOOR | 3 | 0 | 1978 | 1152.0 |
| | AGR | ATTACHED GARAGE | 3 | 0 | 1978 | 336.0 |
| | OWP | OPEN WOOD PORCH W/STEPS | 3 | 0 | 1978 | 240.0 |
Sketch
Property Image
Land
| 1 | 14 | SQ (08001-12000) | 0.0000 | 0.00 | 0.00 | 0.00 | 1.00 | $210,000 | $0 |
Roll Value History
| 2026 | N/A | N/A | N/A | N/A | N/A |
| 2025 | $226,549 | $210,000 | $0 | $436,549 | $436,549 |
| 2024 | $233,933 | $190,000 | $0 | $423,933 | $423,933 |
| 2023 | $236,646 | $190,000 | $0 | $426,646 | $426,646 |
| 2022 | $216,746 | $180,000 | $0 | $396,746 | $396,746 |
| 2021 | $190,608 | $130,000 | $0 | $320,608 | $320,608 |
| 2020 | $145,193 | $110,000 | $0 | $255,193 | $255,193 |
| 2019 | $101,738 | $140,000 | $0 | $241,738 | $241,738 |
| 2018 | $102,076 | $120,000 | $0 | $222,076 | $222,076 |
| 2017 | $102,753 | $90,000 | $0 | $192,753 | $192,753 |
| 2016 | $84,062 | $70,000 | $0 | $154,062 | $154,062 |
| 2015 | $85,396 | $50,000 | $0 | $135,396 | $135,396 |
| 2014 | $86,730 | $45,000 | $0 | $131,730 | $131,730 |
| 2013 | $89,400 | $45,000 | $0 | $134,400 | $134,400 |
| 2012 | $90,734 | $59,500 | $0 | $150,234 | $150,234 |
| 2011 | $92,068 | $70,000 | $0 | $162,068 | $162,068 |
| 2010 | $98,827 | $70,000 | $0 | $168,827 | $168,827 |
| 2009 | $103,141 | $77,500 | $0 | $180,641 | $180,641 |
| 2008 | $104,495 | $94,500 | $0 | $198,995 | $198,995 |
| 2007 | $105,849 | $90,000 | $0 | $195,849 | $195,849 |
Deed and Sales History
| 1 | 01/14/2021 | WD | Warranty Deed | CLARK, STEVEN | TRINOSKY, TROY M | | | $330,000.00 | 46615 | 4508469 |
| 2 | 09/14/2017 | WD | Warranty Deed | GARMAN, NINA | CLARK, STEVEN | | | $204,500.00 | 31211 | 4430781 |
| 3 | 08/11/2005 | WD | Warranty Deed | BURGOS-AVILES, GERALDO | GARMAN, NINA | | | $177,200.00 | 53960 | 4143946 |
| 4 | 08/10/2005 | ESTSEPPROP | Establish Separate Property | GARMAN, NINA | GARMAN, NINA | | | $0.00 | 53961 | 4143947 |
| 5 | 05/09/2002 | WD | Warranty Deed | BERDAN, QUINN F | BURGOS-AVILES, GERALDO | | | $104,000.00 | 21842 | 4020101 |
| 6 | 10/01/1994 | WD | Warranty Deed | HURST, ROBERT W | BERDAN, QUINN F | | | $102,000.00 | 44391 | 94022642 |
| 7 | 12/01/1985 | WD | Warranty Deed | GRAUMANN, DENNIS A | HURST, ROBERT W | | | $0.00 | 53548 | 85014040 |
| 8 | 12/01/1982 | WD | Warranty Deed | TACULAD, JUANITO C | GRAUMANN, DENNIS A | | | $47,000.00 | 23132 | 404192 |
| 9 | 01/01/1900 | OTHER | Other - Misc. Documents | Unknown | TACULAD, JUANITO C | | | $0.00 | 0 | 0 |
Payout Agreement
| No payout information available.. |