Property
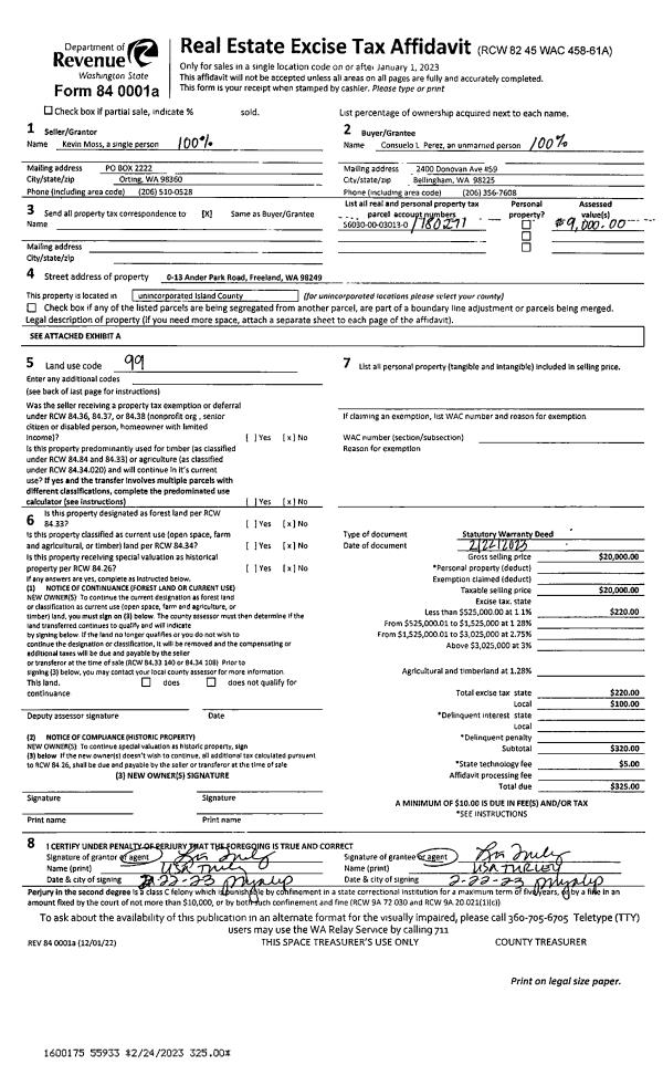
Account |
| Property ID: | 331616 | Abbreviated Legal Description: | NGATE TERR LOT 11 BLK 8 |
| Geographic ID: | S7575-00-08011-0 | Agent Code: | |
| Type: | Real | | |
| Tax Area: | 110 - APPRAISER-OH Schl Dist, outside OH, improved & 1 acre or less | Land Use Code | 11 |
| Open Space: | N | DFL | N |
| Historic Property: | N | Remodel Property: | N |
| Multi-Family Redevelopment: | N | | |
| Township: | | Section: | |
| Range: | |
Location |
| Address: | 4340 RHODODENDRON DR OAK HARBOR, WA 98277 | Mapsco: | |
| Neighborhood: | Cycle 6 | Map ID: | 202 |
| Neighborhood CD: | 6 |
Owner |
| Name: | TOMPKINS, LINDSEY A | Owner ID: | 39701 |
| Mailing Address: | 6720 FAITH DR CHEYENNE, WY 82009 | % Ownership: | 100.0000000000% |
| | | Exemptions: | |
Taxes and Assessment Details
Values
| (+) Improvement Homesite Value: | + | $0 | |
| (+) Improvement Non-Homesite Value: | + | $140,553 | |
| (+) Land Homesite Value: | + | $0 | |
| (+) Land Non-Homesite Value: | + | $210,000 | |
| (+) Curr Use (HS): | + | $0 | $0 |
| (+) Curr Use (NHS): | + | $0 | $0 |
| | | -------------------------- | |
| (=) Market Value: | = | $350,553 | |
| (–) Productivity Loss: | – | $0 | |
| | | -------------------------- | |
| (=) Subtotal: | = | $350,553 | |
| (+) Senior Appraised Value: | + | $0 | |
| (+) Non-Senior Appraised Value: | + | $350,553 | |
| | | -------------------------- | |
| (=) Total Appraised Value: | = | $350,553 | |
| (–) Senior Exemption Loss: | – | $0 | |
| (–) Exemption Loss: | – | $0 | |
| | | -------------------------- | |
| (=) Taxable Value: | = | $350,553 | |
Taxing Jurisdiction
| Owner: | TOMPKINS, LINDSEY A | | |
| % Ownership: | 100.0000000000% | | |
| Total Value: | $350,553 | | |
| Tax Area: | 110 - APPRAISER-OH Schl Dist, outside OH, improved & 1 acre or less |
| CF | Conservation Futures | 0.0316035091 | $350,553 | $350,553 | $11.08 | | |
| CEM1 | Cemetery #1 | 0.0040320932 | $350,553 | $350,553 | $1.41 | | |
| FIRE2 | Fire & Rescue Dist #2 N Whidbey GEN | 0.5475949600 | $350,553 | $350,553 | $191.96 | | |
| HOBOND | Hospital BOND | 0.1910887512 | $350,553 | $350,553 | $66.99 | | |
| HOGEN | Hospital GEN | 0.3902502903 | $350,553 | $350,553 | $136.80 | | |
| CE | County Current Expense | 0.3708482477 | $350,553 | $350,553 | $130.00 | | |
| CR | County Roads | 0.4584763726 | $350,553 | $350,553 | $160.72 | | |
| ISLANDEMS | Hospital GEN (EMS) | 0.5000000000 | $350,553 | $350,553 | $175.28 | | |
| LIB | Library Sno-Isle GEN | 0.3153421757 | $350,553 | $350,553 | $110.54 | | |
| NWHIDPRMT | P & R N Whidbey GEN | 0.2004466701 | $350,553 | $350,553 | $70.27 | | |
| SCH201MO | School 201 Enrichment | 1.8559231640 | $350,553 | $350,553 | $650.60 | | |
| ST | State School | 1.3035497053 | $350,553 | $350,553 | $456.96 | | |
| ST2 | State School Part 2 | 0.8169543533 | $350,553 | $350,553 | $286.39 | | |
| | Total Tax Rate: | 6.9861102925 | | | | | |
| | | | | Taxes w/Current Exemptions: | $2,449.00 | | |
| | | | | Taxes w/o Exemptions: | $2,449.00 | | |
Improvement / Building
| Improvement #1: | RESIDENTIAL | State Code: | Y | 1092.0 sqft | Value: | $140,553 |
| Bathrooms: | 1 | Bedrooms: | 3 | | Ceiling: | DRYWALL PAINTED | Exterior Wall/Cover: | WOOD SIDING | | Floor Covering: | CARPET/VINYL 80-20 | Floor Structure: | WOOD W/SUBFLOOR | | Foundation: | CONCRETE | Heating: | BASEBOARD ELECTRIC | | Interior Finish: | DRYWALL PAINT | Plumbing Fixture Cnt: | 6 | | Roof Slope: | 4" IN 12" | Roof Structure/Cover: | CJ ASPHALT |
|
| | Type | Description | Class CD | Sub Class CD | Year Built | Area |
| | BAS | BASE/MAIN FLOOR | 3 | 0 | 1978 | 1092.0 |
| | AGR | ATTACHED GARAGE | 3 | 0 | 1978 | 288.0 |
Sketch
Property Image
Land
| 1 | 13 | SQ (06001-08000) | 0.0000 | 0.00 | 0.00 | 0.00 | 1.00 | $210,000 | $0 |
Roll Value History
| 2026 | N/A | N/A | N/A | N/A | N/A |
| 2025 | $140,553 | $210,000 | $0 | $350,553 | $350,553 |
| 2024 | $145,882 | $190,000 | $0 | $335,882 | $335,882 |
| 2023 | $148,188 | $190,000 | $0 | $338,188 | $338,188 |
| 2022 | $134,186 | $180,000 | $0 | $314,186 | $314,186 |
| 2021 | $118,498 | $130,000 | $0 | $248,498 | $248,498 |
| 2020 | $115,904 | $110,000 | $0 | $225,904 | $225,904 |
| 2019 | $82,970 | $140,000 | $0 | $222,970 | $222,970 |
| 2018 | $83,278 | $120,000 | $0 | $203,278 | $203,278 |
| 2017 | $83,895 | $90,000 | $0 | $173,895 | $173,895 |
| 2016 | $78,417 | $70,000 | $0 | $148,417 | $148,417 |
| 2015 | $79,662 | $50,000 | $0 | $129,662 | $129,662 |
| 2014 | $80,906 | $45,000 | $0 | $125,906 | $125,906 |
| 2013 | $82,150 | $45,000 | $0 | $127,150 | $127,150 |
| 2012 | $83,395 | $59,500 | $0 | $142,895 | $142,895 |
| 2011 | $84,640 | $70,000 | $0 | $154,640 | $154,640 |
| 2010 | $91,938 | $70,000 | $0 | $161,938 | $161,938 |
| 2009 | $95,942 | $77,500 | $0 | $173,442 | $173,442 |
| 2008 | $97,198 | $94,500 | $0 | $191,698 | $191,698 |
| 2007 | $98,455 | $90,000 | $0 | $188,455 | $188,455 |
Deed and Sales History
| 1 | 06/19/2002 | WD | Warranty Deed | CABANA, ISABELITO M | TOMPKINS, LINDSEY A | | | $103,000.00 | 22377 | 4023458 |
| 2 | 11/01/1989 | WD | Warranty Deed | STUNES, DAVID C | CABANA, ISABELITO M | | | $57,000.00 | 95139 | 89016541 |
| 3 | 01/01/1981 | WD | Warranty Deed | THOMPSON, PATRICK L | STUNES, DAVID C | | | $45,500.00 | 10158 | 378545 |
| 4 | 01/01/1900 | OTHER | Other - Misc. Documents | Unknown | THOMPSON, PATRICK L | | | $0.00 | 0 | 0 |
Payout Agreement
| No payout information available.. |