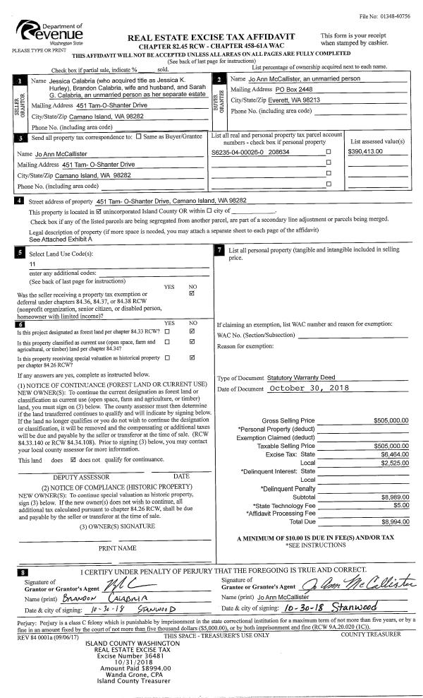
Property
Account |
| Property ID: | 33172 | Abbreviated Legal Description: | 5.2300 Acres ins Section 11s Township 33s Range R1s LOT B BLA 159-18 TL 23;s |
| Geographic ID: | R13311-069-1540 | Agent Code: | |
| Type: | Real | | |
| Tax Area: | 112 - APPRAISER-OH Schl Dist, outside OH, improved, greater than 1 acre | Land Use Code | 11 |
| Open Space: | N | DFL | N |
| Historic Property: | N | Remodel Property: | N |
| Multi-Family Redevelopment: | N | | |
| Township: | 33 | Section: | 11 |
| Range: | R1 |
Location |
| Address: | 4051 DEGRAFF RD OAK HARBOR, WA 98277 | Mapsco: | |
| Neighborhood: | Cycle 6 | Map ID: | 200 |
| Neighborhood CD: | 6 |
Owner |
| Name: | LENNOX, MICHAEL T | Owner ID: | 316436 |
| Mailing Address: | JENNIFER M LENNOX 4051 DEGRAFF RD OAK HARBOR, WA 98277 | % Ownership: | 100.0000000000% |
| | | Exemptions: | |
Taxes and Assessment Details
Values
| (+) Improvement Homesite Value: | + | $0 | |
| (+) Improvement Non-Homesite Value: | + | $165,247 | |
| (+) Land Homesite Value: | + | $0 | |
| (+) Land Non-Homesite Value: | + | $300,000 | |
| (+) Curr Use (HS): | + | $0 | $0 |
| (+) Curr Use (NHS): | + | $0 | $0 |
| | | -------------------------- | |
| (=) Market Value: | = | $465,247 | |
| (–) Productivity Loss: | – | $0 | |
| | | -------------------------- | |
| (=) Subtotal: | = | $465,247 | |
| (+) Senior Appraised Value: | + | $0 | |
| (+) Non-Senior Appraised Value: | + | $465,247 | |
| | | -------------------------- | |
| (=) Total Appraised Value: | = | $465,247 | |
| (–) Senior Exemption Loss: | – | $0 | |
| (–) Exemption Loss: | – | $0 | |
| | | -------------------------- | |
| (=) Taxable Value: | = | $465,247 | |
Taxing Jurisdiction
| Owner: | LENNOX, MICHAEL T | | |
| % Ownership: | 100.0000000000% | | |
| Total Value: | $465,247 | | |
| Tax Area: | 112 - APPRAISER-OH Schl Dist, outside OH, improved, greater than 1 acre |
| CF | Conservation Futures | 0.0316035091 | $465,247 | $465,247 | $14.70 | | |
| CEM1 | Cemetery #1 | 0.0040320932 | $465,247 | $465,247 | $1.88 | | |
| FIRE2 | Fire & Rescue Dist #2 N Whidbey GEN | 0.5475949600 | $465,247 | $465,247 | $254.77 | | |
| HOBOND | Hospital BOND | 0.1910887512 | $465,247 | $465,247 | $88.90 | | |
| HOGEN | Hospital GEN | 0.3902502903 | $465,247 | $465,247 | $181.56 | | |
| CE | County Current Expense | 0.3708482477 | $465,247 | $465,247 | $172.54 | | |
| CR | County Roads | 0.4584763726 | $465,247 | $465,247 | $213.30 | | |
| ISLANDEMS | Hospital GEN (EMS) | 0.5000000000 | $465,247 | $465,247 | $232.62 | | |
| LIB | Library Sno-Isle GEN | 0.3153421757 | $465,247 | $465,247 | $146.71 | | |
| NWHIDPRMT | P & R N Whidbey GEN | 0.2004466701 | $465,247 | $465,247 | $93.26 | | |
| SCH201MO | School 201 Enrichment | 1.8559231640 | $465,247 | $465,247 | $863.46 | | |
| ST | State School | 1.3035497053 | $465,247 | $465,247 | $606.47 | | |
| ST2 | State School Part 2 | 0.8169543533 | $465,247 | $465,247 | $380.09 | | |
| | Total Tax Rate: | 6.9861102925 | | | | | |
| | | | | Taxes w/Current Exemptions: | $3,250.26 | | |
| | | | | Taxes w/o Exemptions: | $3,250.26 | | |
Improvement / Building
| Improvement #1: | MANUFACTURED HOME | State Code: | Y | 1514.1 sqft | Value: | $165,247 |
| Bathrooms: | 2 | Bedrooms: | 3 | | Ceiling: | PLASTER PAINTED | Cooling: | EVAP NO DUCT | | Exterior Wall/Cover: | VINYL | Floor Covering: | CARPET 100% | | Floor Structure: | SLAB ON GRADE | Foundation: | SLAB | | Heating: | FHA ELECTRIC | Interior Finish: | PLASTER | | Plumbing Fixture Cnt: | 9 | Roof Slope: | FLAT | | Roof Structure/Cover: | CJ ALUMINIUM HEAVY |   |   |
|
| | Type | Description | Class CD | Sub Class CD | Year Built | Area |
| | BAS | BASE/MAIN FLOOR | 4 | 0 | 2003 | 1514.1 |
| | OWP | OPEN WOOD PORCH W/STEPS | 4 | 0 | 2003 | 105.7 |
| | OWP | OPEN WOOD PORCH W/STEPS | 4 | 0 | 2003 | 21.0 |
Sketch
Property Image
Land
| 1 | 32 | AC (03.01-09.99) | 5.2300 | 227818.80 | 2.62 | 0.00 | 1.00 | $300,000 | $0 |
Roll Value History
| 2026 | N/A | N/A | N/A | N/A | N/A |
| 2025 | $165,247 | $300,000 | $0 | $465,247 | $465,247 |
| 2024 | $156,397 | $280,000 | $0 | $436,397 | $436,397 |
| 2023 | $137,475 | $270,000 | $0 | $407,475 | $407,475 |
| 2022 | $169,965 | $240,000 | $0 | $409,965 | $409,965 |
| 2021 | $149,504 | $175,000 | $0 | $324,504 | $324,504 |
| 2020 | $148,457 | $150,000 | $0 | $298,457 | $298,457 |
| 2019 | $118,301 | $230,000 | $0 | $348,301 | $348,301 |
| 2018 | $0 | $450 | $0 | $450 | $0 |
| 2017 | $0 | $450 | $0 | $450 | $0 |
| 2016 | $0 | $450 | $0 | $450 | $0 |
| 2015 | $0 | $450 | $0 | $450 | $0 |
| 2014 | $0 | $104 | $0 | $104 | $0 |
| 2013 | $0 | $104 | $0 | $104 | $0 |
| 2012 | $0 | $104 | $0 | $104 | $0 |
| 2011 | $0 | $104 | $0 | $104 | $0 |
| 2010 | $0 | $104 | $0 | $104 | $0 |
| 2009 | $0 | $104 | $0 | $104 | $0 |
| 2008 | $0 | $104 | $0 | $104 | $104 |
| 2007 | $0 | $104 | $0 | $104 | $0 |
Deed and Sales History
| 1 | 05/07/2025 | WD | Warranty Deed | DUCKWORTH, JUSTIN | LENNOX, MICHAEL T | | | $550,000.00 | 63433 | 4585678 |
| 2 | 03/14/2022 | WD | Warranty Deed | HENDRY, FORREST GERALD | DUCKWORTH, JUSTIN | | | $503,000.00 | 52363 | 4541808 |
| 3 | 09/04/2018 | WD | Warranty Deed | DIFFIE, COLTON | HENDRY, FORREST GERALD | | | $294,000.00 | 35976 | 4452039 |
|   | |
| 4 | 12/15/2017 | SPWARDEED | Special Warranty Deed | SECRETARY OF VETERAN AFFAIRS | DIFFIE, COLTON | | | $0.00 | 32362 | 4436192 |
| 5 | 12/14/2016 | WD | Warranty Deed | PENNYMAC LOAN SERVICES, LLC | SECRETARY OF VETERAN AFFAIRS | | | | 27938 | 4416331 |
| 6 | 11/21/2016 | TRUSTEED | Trustee's Deed | HILL, JOHN HENRY | PENNYMAC LOAN SERVICES, LLC | | | $192,794.00 | 27046 | 4412025 |
| 7 | 08/12/2015 | DECREE | Divorce Decree/Legal Separation | HILL, GAIL A | HILL, JOHN HENRY | | | $0.00 | 20959 | 4384246 |
| 8 | 02/08/2005 | WD | Warranty Deed | HELLWIG, MICHAEL B | HILL, GAIL A | | | $114.00 | 50641 | 4126311 |
| 9 | 07/22/2003 | WD | Warranty Deed | YOUNG, STUART S | HELLWIG, MICHAEL B | | | $231.00 | 33214 | 4068490 |
| 10 | 08/24/2001 | WD | Warranty Deed | YOUNG, STUART S | YOUNG, STUART S | | | $0.00 | 13468 | 20042358 |
| 11 | 08/24/2001 | WD | Warranty Deed | HILBERT, DAVID M | YOUNG, STUART S | | | $53.00 | 13430 | 20042213 |
| 12 | 05/01/1997 | WD | Warranty Deed | MEDARIS, FORREST E | HILBERT, DAVID M | | | $100.00 | 71365 | 97006209 |
| 13 | 01/01/1900 | OTHER | Other - Misc. Documents | Unknown | MEDARIS, FORREST E | | | $0.00 | 0 | 0 |
Payout Agreement
| No payout information available.. |