Property
Account |
| Property ID: | 331885 | Abbreviated Legal Description: | NORTHGATE TERRACE #1 LOT 1 BLK 9 |
| Geographic ID: | S7575-00-09001-0 | Agent Code: | |
| Type: | Real | | |
| Tax Area: | 110 - APPRAISER-OH Schl Dist, outside OH, improved & 1 acre or less | Land Use Code | 11 |
| Open Space: | N | DFL | N |
| Historic Property: | N | Remodel Property: | N |
| Multi-Family Redevelopment: | N | | |
| Township: | | Section: | |
| Range: | |
Location |
| Address: | 550 SALAL ST OAK HARBOR, WA 98277 | Mapsco: | |
| Neighborhood: | Cycle 6 | Map ID: | 203 |
| Neighborhood CD: | 6 |
Owner |
| Name: | PITALA, PIYAABALO | Owner ID: | 302321 |
| Mailing Address: | 550 SALAL ST OAK HARBOR, WA 98277 | % Ownership: | 100.0000000000% |
| | | Exemptions: | |
Taxes and Assessment Details
Values
| (+) Improvement Homesite Value: | + | $0 | |
| (+) Improvement Non-Homesite Value: | + | $91,248 | |
| (+) Land Homesite Value: | + | $0 | |
| (+) Land Non-Homesite Value: | + | $210,000 | |
| (+) Curr Use (HS): | + | $0 | $0 |
| (+) Curr Use (NHS): | + | $0 | $0 |
| | | -------------------------- | |
| (=) Market Value: | = | $301,248 | |
| (–) Productivity Loss: | – | $0 | |
| | | -------------------------- | |
| (=) Subtotal: | = | $301,248 | |
| (+) Senior Appraised Value: | + | $0 | |
| (+) Non-Senior Appraised Value: | + | $301,248 | |
| | | -------------------------- | |
| (=) Total Appraised Value: | = | $301,248 | |
| (–) Senior Exemption Loss: | – | $0 | |
| (–) Exemption Loss: | – | $0 | |
| | | -------------------------- | |
| (=) Taxable Value: | = | $301,248 | |
Taxing Jurisdiction
| Owner: | PITALA, PIYAABALO | | |
| % Ownership: | 100.0000000000% | | |
| Total Value: | $301,248 | | |
| Tax Area: | 110 - APPRAISER-OH Schl Dist, outside OH, improved & 1 acre or less |
| CF | Conservation Futures | 0.0316035091 | $301,248 | $301,248 | $9.52 | | |
| CEM1 | Cemetery #1 | 0.0040320932 | $301,248 | $301,248 | $1.21 | | |
| FIRE2 | Fire & Rescue Dist #2 N Whidbey GEN | 0.5475949600 | $301,248 | $301,248 | $164.96 | | |
| HOBOND | Hospital BOND | 0.1910887512 | $301,248 | $301,248 | $57.57 | | |
| HOGEN | Hospital GEN | 0.3902502903 | $301,248 | $301,248 | $117.56 | | |
| CE | County Current Expense | 0.3708482477 | $301,248 | $301,248 | $111.72 | | |
| CR | County Roads | 0.4584763726 | $301,248 | $301,248 | $138.12 | | |
| ISLANDEMS | Hospital GEN (EMS) | 0.5000000000 | $301,248 | $301,248 | $150.62 | | |
| LIB | Library Sno-Isle GEN | 0.3153421757 | $301,248 | $301,248 | $95.00 | | |
| NWHIDPRMT | P & R N Whidbey GEN | 0.2004466701 | $301,248 | $301,248 | $60.38 | | |
| SCH201MO | School 201 Enrichment | 1.8559231640 | $301,248 | $301,248 | $559.09 | | |
| ST | State School | 1.3035497053 | $301,248 | $301,248 | $392.69 | | |
| ST2 | State School Part 2 | 0.8169543533 | $301,248 | $301,248 | $246.11 | | |
| | Total Tax Rate: | 6.9861102925 | | | | | |
| | | | | Taxes w/Current Exemptions: | $2,104.55 | | |
| | | | | Taxes w/o Exemptions: | $2,104.55 | | |
Improvement / Building
| Improvement #1: | MANUFACTURED HOME | State Code: | Y | 1344.0 sqft | Value: | $91,248 |
| Bathrooms: | 2 | Bedrooms: | 3 | | Ceiling: | PLASTER PAINTED | Cooling: | EVAP NO DUCT | | Exterior Wall/Cover: | VINYL | Floor Covering: | CARPET 100% | | Floor Structure: | SLAB ON GRADE | Foundation: | SLAB | | Heating: | FHA ELECTRIC | Interior Finish: | PLASTER | | Plumbing Fixture Cnt: | 1 | Roof Slope: | FLAT | | Roof Structure/Cover: | CJ ALUMINIUM HEAVY |   |   |
|
| | Type | Description | Class CD | Sub Class CD | Year Built | Area |
| | BAS | BASE/MAIN FLOOR | 4 | 0 | 1983 | 1344.0 |
| | OWP | OPEN WOOD PORCH W/STEPS | 4 | 0 | 1983 | 322.0 |
| | OWR | OPEN WOOD PORCH W/STEPS/ROOF | 4 | 0 | 1983 | 32.0 |
Sketch
Property Image
Land
| 1 | 14 | SQ (08001-12000) | 0.0000 | 0.00 | 0.00 | 0.00 | 1.00 | $210,000 | $0 |
Roll Value History
| 2026 | N/A | N/A | N/A | N/A | N/A |
| 2025 | $91,248 | $210,000 | $0 | $301,248 | $301,248 |
| 2024 | $94,289 | $190,000 | $0 | $284,289 | $284,289 |
| 2023 | $84,637 | $190,000 | $0 | $274,637 | $274,637 |
| 2022 | $79,034 | $180,000 | $0 | $259,034 | $259,034 |
| 2021 | $58,075 | $130,000 | $0 | $188,075 | $188,075 |
| 2020 | $58,137 | $110,000 | $0 | $168,137 | $168,137 |
| 2019 | $47,191 | $140,000 | $0 | $187,191 | $187,191 |
| 2018 | $30,535 | $120,000 | $0 | $150,535 | $150,535 |
| 2017 | $31,924 | $90,000 | $0 | $121,924 | $121,924 |
| 2016 | $25,670 | $70,000 | $0 | $95,670 | $95,670 |
| 2015 | $26,893 | $50,000 | $0 | $76,893 | $76,893 |
| 2014 | $28,114 | $45,000 | $0 | $73,114 | $73,114 |
| 2013 | $29,337 | $45,000 | $0 | $74,337 | $74,337 |
| 2012 | $31,170 | $59,500 | $0 | $90,670 | $90,670 |
| 2011 | $32,393 | $70,000 | $0 | $102,393 | $102,393 |
| 2010 | $34,749 | $70,000 | $0 | $104,749 | $104,749 |
| 2009 | $36,863 | $90,000 | $0 | $126,863 | $126,863 |
| 2008 | $38,158 | $90,000 | $0 | $128,158 | $128,158 |
| 2007 | $39,470 | $90,000 | $0 | $129,470 | $129,470 |
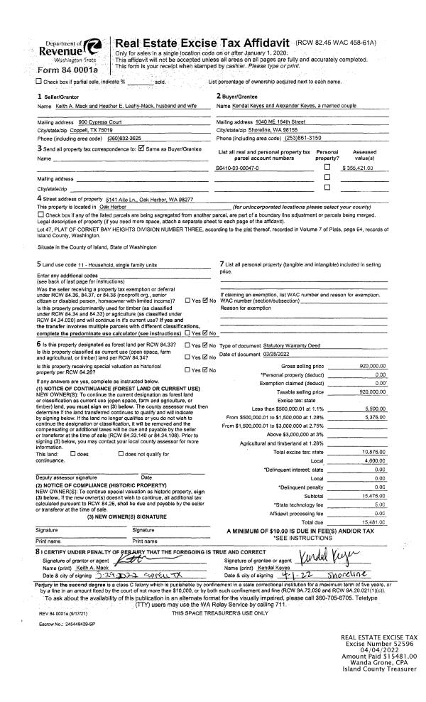
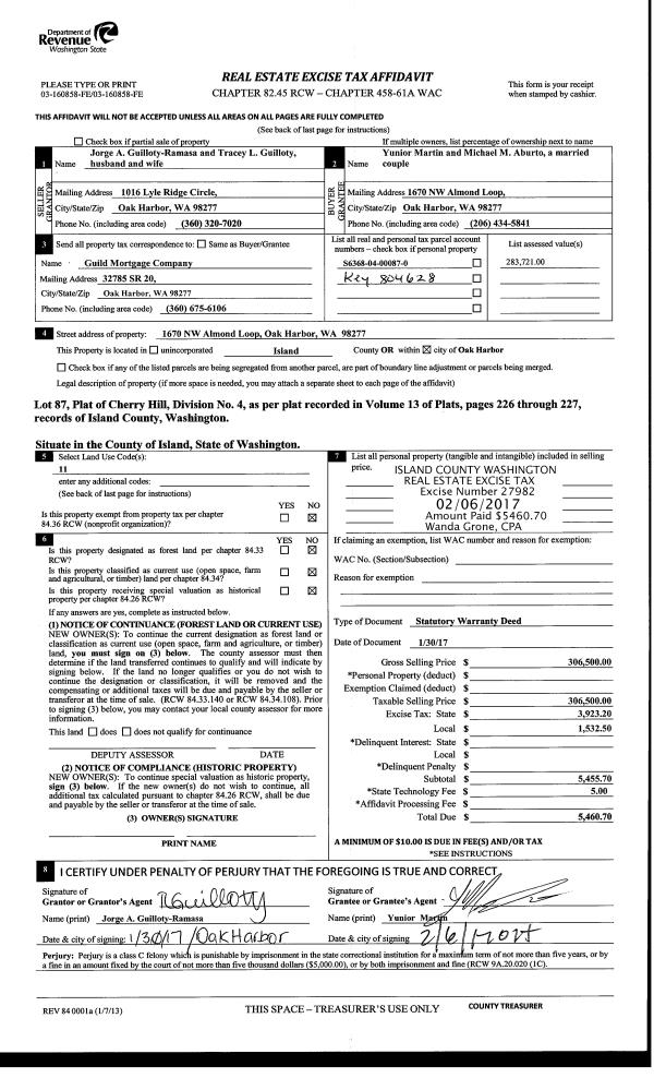
Deed and Sales History
| 1 | 12/06/2021 | QCD | Quit Claim Deed | MINSEWE, PITALA | PITALA, PIYAABALO | | | $0.00 | 51288 | 4535668 |
| 2 | 11/19/2021 | WD | Warranty Deed | SOSA JR, OLIVAR | PITALA, PIYAABALO | | | $355,000.00 | 51287 | 4535667 |
| 3 | 06/20/2018 | WD | Warranty Deed | STOCK, MATHEW | SOSA JR, OLIVAR | | | $225,500.00 | 34763 | 4447098 |
| 4 | 02/28/2017 | QCD | Quit Claim Deed | SIMPSON, SUSIE | STOCK, MATHEW | | | $0.00 | 28319 | 4418314 |
| 5 | 12/09/2014 | QCD | Quit Claim Deed | ENGEN CO | SIMPSON, SUSIE | | | $0.00 | 17855 | 4370013 |
| 6 | 06/28/2011 | WD | Warranty Deed | BIKTIMIR, HACER ROKSAN | ENGEN CO | | | $90,000.00 | 4829 | 4297344 |
| 7 | 06/28/2011 | DECREE | Divorce Decree/Legal Separation | OLIVER, WILLIAM M / ROKSAN | BIKTIMIR, HACER ROKSAN | | | $0.00 | 4828 | 4297343 |
| 8 | 05/01/1997 | QCD | Quit Claim Deed | OLIVER, WILLIAM M | OLIVER, WILLIAM M | | | $0.00 | 71786 | 97008108 |
| 9 | 07/01/1984 | OTHER | Other - Misc. Documents | OLIVER, WILLIAM M | OLIVER, WILLIAM M | | | $22,950.00 | 11111111 | 0 |
| 10 | 07/01/1982 | WD | Warranty Deed | OLIVER, WILLIAM M | OLIVER, WILLIAM M | | | $13,400.00 | 21844 | 399070 |
| 11 | 01/01/1900 | OTHER | Other - Misc. Documents | MANARY, STANLEY L | OLIVER, WILLIAM M | | | $0.00 | 0 | 0 |
| 12 | 01/01/1900 | OTHER | Other - Misc. Documents | Unknown | MANARY, STANLEY L | | | $0.00 | 0 | 0 |
Payout Agreement
| No payout information available.. |