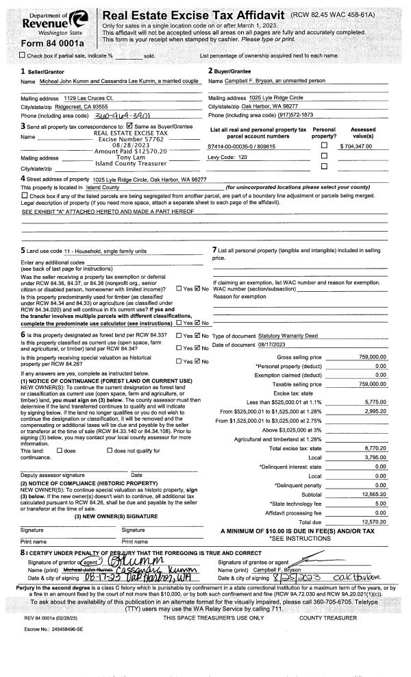
Property
Account |
| Property ID: | 332027 | Abbreviated Legal Description: | NGATE TERR LOT 15 BLK 9 |
| Geographic ID: | S7575-00-09015-0 | Agent Code: | |
| Type: | Real | | |
| Tax Area: | 110 - APPRAISER-OH Schl Dist, outside OH, improved & 1 acre or less | Land Use Code | 11 |
| Open Space: | N | DFL | N |
| Historic Property: | N | Remodel Property: | N |
| Multi-Family Redevelopment: | N | | |
| Township: | | Section: | |
| Range: | |
Location |
| Address: | 4363 TERRACE DR OAK HARBOR, WA 98277 | Mapsco: | |
| Neighborhood: | Cycle 6 | Map ID: | 203 |
| Neighborhood CD: | 6 |
Owner |
| Name: | FUNKHOUSER, ROBERT | Owner ID: | 276611 |
| Mailing Address: | 3015 TRENTON AVE NE BREMERTON, WA 98310 | % Ownership: | 100.0000000000% |
| | | Exemptions: | |
Taxes and Assessment Details
Values
| (+) Improvement Homesite Value: | + | $0 | |
| (+) Improvement Non-Homesite Value: | + | $53,835 | |
| (+) Land Homesite Value: | + | $0 | |
| (+) Land Non-Homesite Value: | + | $210,000 | |
| (+) Curr Use (HS): | + | $0 | $0 |
| (+) Curr Use (NHS): | + | $0 | $0 |
| | | -------------------------- | |
| (=) Market Value: | = | $263,835 | |
| (–) Productivity Loss: | – | $0 | |
| | | -------------------------- | |
| (=) Subtotal: | = | $263,835 | |
| (+) Senior Appraised Value: | + | $0 | |
| (+) Non-Senior Appraised Value: | + | $263,835 | |
| | | -------------------------- | |
| (=) Total Appraised Value: | = | $263,835 | |
| (–) Senior Exemption Loss: | – | $0 | |
| (–) Exemption Loss: | – | $0 | |
| | | -------------------------- | |
| (=) Taxable Value: | = | $263,835 | |
Taxing Jurisdiction
| Owner: | FUNKHOUSER, ROBERT | | |
| % Ownership: | 100.0000000000% | | |
| Total Value: | $263,835 | | |
| Tax Area: | 110 - APPRAISER-OH Schl Dist, outside OH, improved & 1 acre or less |
| CF | Conservation Futures | 0.0316035091 | $263,835 | $263,835 | $8.34 | | |
| CEM1 | Cemetery #1 | 0.0040320932 | $263,835 | $263,835 | $1.06 | | |
| FIRE2 | Fire & Rescue Dist #2 N Whidbey GEN | 0.5475949600 | $263,835 | $263,835 | $144.47 | | |
| HOBOND | Hospital BOND | 0.1910887512 | $263,835 | $263,835 | $50.42 | | |
| HOGEN | Hospital GEN | 0.3902502903 | $263,835 | $263,835 | $102.96 | | |
| CE | County Current Expense | 0.3708482477 | $263,835 | $263,835 | $97.84 | | |
| CR | County Roads | 0.4584763726 | $263,835 | $263,835 | $120.96 | | |
| ISLANDEMS | Hospital GEN (EMS) | 0.5000000000 | $263,835 | $263,835 | $131.92 | | |
| LIB | Library Sno-Isle GEN | 0.3153421757 | $263,835 | $263,835 | $83.20 | | |
| NWHIDPRMT | P & R N Whidbey GEN | 0.2004466701 | $263,835 | $263,835 | $52.88 | | |
| SCH201MO | School 201 Enrichment | 1.8559231640 | $263,835 | $263,835 | $489.66 | | |
| ST | State School | 1.3035497053 | $263,835 | $263,835 | $343.92 | | |
| ST2 | State School Part 2 | 0.8169543533 | $263,835 | $263,835 | $215.54 | | |
| | Total Tax Rate: | 6.9861102925 | | | | | |
| | | | | Taxes w/Current Exemptions: | $1,843.17 | | |
| | | | | Taxes w/o Exemptions: | $1,843.17 | | |
Improvement / Building
| Improvement #1: | MANUFACTURED HOME | State Code: | Y | 1080.0 sqft | Value: | $53,835 |
| Bathrooms: | 0 | Bedrooms: | 0 | | Ceiling: | PLASTER PAINTED | Cooling: | EVAP NO DUCT | | Exterior Wall/Cover: | VINYL | Floor Covering: | CARPET 100% | | Floor Structure: | SLAB ON GRADE | Foundation: | SLAB | | Heating: | FHA ELECTRIC | Interior Finish: | PLASTER | | Plumbing Fixture Cnt: | 1 | Roof Slope: | FLAT | | Roof Structure/Cover: | CJ ALUMINIUM HEAVY |   |   |
|
| | Type | Description | Class CD | Sub Class CD | Year Built | Area |
| | BAS | BASE/MAIN FLOOR | 4 | 0 | 1986 | 1080.0 |
| | OWR | OPEN WOOD PORCH W/STEPS/ROOF | 4 | 0 | 1986 | 160.0 |
| | OWP | OPEN WOOD PORCH W/STEPS | 4 | 0 | 1986 | 150.0 |
Sketch
Property Image
Land
| 1 | 14 | SQ (08001-12000) | 0.0000 | 0.00 | 0.00 | 0.00 | 1.00 | $210,000 | $0 |
Roll Value History
| 2026 | N/A | N/A | N/A | N/A | N/A |
| 2025 | $53,835 | $210,000 | $0 | $263,835 | $263,835 |
| 2024 | $56,527 | $190,000 | $0 | $246,527 | $246,527 |
| 2023 | $51,494 | $190,000 | $0 | $241,494 | $241,494 |
| 2022 | $38,945 | $180,000 | $0 | $218,945 | $218,945 |
| 2021 | $35,481 | $130,000 | $0 | $165,481 | $165,481 |
| 2020 | $36,008 | $110,000 | $0 | $146,008 | $146,008 |
| 2019 | $29,599 | $140,000 | $0 | $169,599 | $169,599 |
| 2018 | $31,449 | $120,000 | $0 | $151,449 | $151,449 |
| 2017 | $32,682 | $90,000 | $0 | $122,682 | $122,682 |
| 2016 | $25,867 | $70,000 | $0 | $95,867 | $95,867 |
| 2015 | $26,844 | $50,000 | $0 | $76,844 | $76,844 |
| 2014 | $27,820 | $45,000 | $0 | $72,820 | $72,820 |
| 2013 | $29,284 | $45,000 | $0 | $74,284 | $74,284 |
| 2012 | $30,261 | $59,500 | $0 | $89,761 | $89,761 |
| 2011 | $31,236 | $70,000 | $0 | $101,236 | $101,236 |
| 2010 | $38,039 | $70,000 | $0 | $108,039 | $108,039 |
| 2009 | $40,219 | $90,000 | $0 | $130,219 | $130,219 |
| 2008 | $40,427 | $90,000 | $0 | $130,427 | $130,427 |
| 2007 | $41,712 | $90,000 | $0 | $131,712 | $131,712 |
Deed and Sales History
| 1 | 08/24/2016 | WD | Warranty Deed | LINDGREN, BRIAN S | FUNKHOUSER, ROBERT | | | $133,000.00 | 25934 | 4406360 |
| 2 | 07/02/1998 | OTHER | Other - Misc. Documents | LINDGREN, BRIAN S | LINDGREN, BRIAN S | | | $0.00 | 82674 | 0 |
| 3 | 06/29/1998 | QCD | Quit Claim Deed | LINDGREN, BRIAN S | LINDGREN, BRIAN S | | | $0.00 | 82673 | 98013826 |
| 4 | 05/01/1992 | OTHER | Other - Misc. Documents | LINDGREN, BRIAN S | LINDGREN, BRIAN S | | | $0.00 | 21883 | 0 |
| 5 | 04/01/1992 | WD | Warranty Deed | SCHAIBLE, HOWARD R | LINDGREN, BRIAN S | | | $62,000.00 | 21643 | 92007849 |
| 6 | 05/01/1980 | REC | Real Estate Contract | JENKINS, OSCAR H | SCHAIBLE, HOWARD R | | | $11,000.00 | 1990 | 369934 |
| 7 | 08/01/1979 | PACD | Purchaser's Assignment | LINDGREN, BRIAN S | JENKINS, OSCAR H | | | $3,450.00 | 93852 | 356812 |
Payout Agreement
| No payout information available.. |