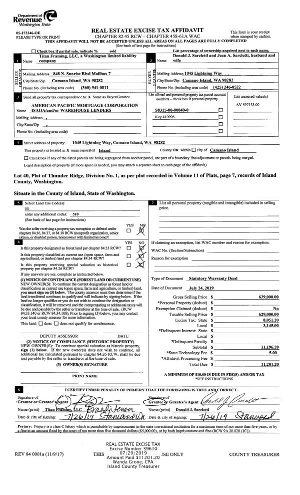
Property
Account |
| Property ID: | 332045 | Abbreviated Legal Description: | NORTHGATE TERRACE #1 LOT 17 BLK 9 |
| Geographic ID: | S7575-00-09017-0 | Agent Code: | |
| Type: | Real | | |
| Tax Area: | 110 - APPRAISER-OH Schl Dist, outside OH, improved & 1 acre or less | Land Use Code | 11 |
| Open Space: | N | DFL | N |
| Historic Property: | N | Remodel Property: | N |
| Multi-Family Redevelopment: | N | | |
| Township: | | Section: | |
| Range: | |
Location |
| Address: | | Mapsco: | |
| Neighborhood: | Cycle 6 | Map ID: | 203 |
| Neighborhood CD: | 6 |
Owner |
| Name: | MLYNARSKI, KAROL | Owner ID: | 315947 |
| Mailing Address: | OLIVIA GRACE SCHULTZ 4353 TERRACE DR OAK HARBOR, WA 98277 | % Ownership: | 100.0000000000% |
| | | Exemptions: | |
Taxes and Assessment Details
Values
| (+) Improvement Homesite Value: | + | $0 | |
| (+) Improvement Non-Homesite Value: | + | $134,422 | |
| (+) Land Homesite Value: | + | $0 | |
| (+) Land Non-Homesite Value: | + | $210,000 | |
| (+) Curr Use (HS): | + | $0 | $0 |
| (+) Curr Use (NHS): | + | $0 | $0 |
| | | -------------------------- | |
| (=) Market Value: | = | $344,422 | |
| (–) Productivity Loss: | – | $0 | |
| | | -------------------------- | |
| (=) Subtotal: | = | $344,422 | |
| (+) Senior Appraised Value: | + | $0 | |
| (+) Non-Senior Appraised Value: | + | $344,422 | |
| | | -------------------------- | |
| (=) Total Appraised Value: | = | $344,422 | |
| (–) Senior Exemption Loss: | – | $0 | |
| (–) Exemption Loss: | – | $0 | |
| | | -------------------------- | |
| (=) Taxable Value: | = | $344,422 | |
Taxing Jurisdiction
| Owner: | MLYNARSKI, KAROL | | |
| % Ownership: | 100.0000000000% | | |
| Total Value: | $344,422 | | |
| Tax Area: | 110 - APPRAISER-OH Schl Dist, outside OH, improved & 1 acre or less |
| CF | Conservation Futures | 0.0316035091 | $344,422 | $344,422 | $10.88 | | |
| CEM1 | Cemetery #1 | 0.0040320932 | $344,422 | $344,422 | $1.39 | | |
| FIRE2 | Fire & Rescue Dist #2 N Whidbey GEN | 0.5475949600 | $344,422 | $344,422 | $188.60 | | |
| HOBOND | Hospital BOND | 0.1910887512 | $344,422 | $344,422 | $65.82 | | |
| HOGEN | Hospital GEN | 0.3902502903 | $344,422 | $344,422 | $134.41 | | |
| CE | County Current Expense | 0.3708482477 | $344,422 | $344,422 | $127.73 | | |
| CR | County Roads | 0.4584763726 | $344,422 | $344,422 | $157.91 | | |
| ISLANDEMS | Hospital GEN (EMS) | 0.5000000000 | $344,422 | $344,422 | $172.21 | | |
| LIB | Library Sno-Isle GEN | 0.3153421757 | $344,422 | $344,422 | $108.61 | | |
| NWHIDPRMT | P & R N Whidbey GEN | 0.2004466701 | $344,422 | $344,422 | $69.04 | | |
| SCH201MO | School 201 Enrichment | 1.8559231640 | $344,422 | $344,422 | $639.22 | | |
| ST | State School | 1.3035497053 | $344,422 | $344,422 | $448.97 | | |
| ST2 | State School Part 2 | 0.8169543533 | $344,422 | $344,422 | $281.38 | | |
| | Total Tax Rate: | 6.9861102925 | | | | | |
| | | | | Taxes w/Current Exemptions: | $2,406.17 | | |
| | | | | Taxes w/o Exemptions: | $2,406.17 | | |
Improvement / Building
| Improvement #1: | MANUFACTURED HOME | State Code: | Y | 1118.0 sqft | Value: | $134,422 |
| Bathrooms: | 1 | Bedrooms: | 2 | | Ceiling: | PLASTER PAINTED | Cooling: | EVAP NO DUCT | | Exterior Wall/Cover: | VINYL | Floor Covering: | CARPET 100% | | Floor Structure: | SLAB ON GRADE | Foundation: | SLAB | | Heating: | FHA ELECTRIC | Interior Finish: | PLASTER | | Plumbing Fixture Cnt: | 1 | Roof Slope: | FLAT | | Roof Structure/Cover: | CJ ALUMINIUM HEAVY |   |   |
|
Sketch
Property Image
Land
| 1 | 13 | SQ (06001-08000) | 0.0000 | 0.00 | 0.00 | 0.00 | 1.00 | $210,000 | $0 |
Roll Value History
| 2026 | N/A | N/A | N/A | N/A | N/A |
| 2025 | $134,422 | $210,000 | $0 | $344,422 | $344,422 |
| 2024 | $135,883 | $190,000 | $0 | $325,883 | $325,883 |
| 2023 | $119,427 | $190,000 | $0 | $309,427 | $309,427 |
| 2022 | $115,273 | $180,000 | $0 | $295,273 | $295,273 |
| 2021 | $101,969 | $130,000 | $0 | $231,969 | $231,969 |
| 2020 | $100,091 | $110,000 | $0 | $210,091 | $210,091 |
| 2019 | $80,856 | $140,000 | $0 | $220,856 | $220,856 |
| 2018 | $5,680 | $120,000 | $0 | $125,680 | $125,680 |
| 2017 | $5,680 | $90,000 | $0 | $95,680 | $95,680 |
| 2016 | $5,680 | $70,000 | $0 | $75,680 | $75,680 |
| 2015 | $5,680 | $50,000 | $0 | $55,680 | $55,680 |
| 2014 | $5,680 | $45,000 | $0 | $50,680 | $50,680 |
| 2013 | $5,680 | $45,000 | $0 | $50,680 | $50,680 |
| 2012 | $5,680 | $41,650 | $0 | $47,330 | $47,330 |
| 2011 | $5,680 | $49,000 | $0 | $54,680 | $54,680 |
| 2010 | $4,909 | $49,000 | $0 | $53,909 | $53,909 |
| 2009 | $4,982 | $54,250 | $0 | $59,232 | $59,232 |
| 2008 | $5,109 | $90,956 | $0 | $96,065 | $96,065 |
| 2007 | $5,149 | $82,500 | $0 | $87,649 | $87,649 |
Deed and Sales History
| 1 | 03/25/2025 | WD | Warranty Deed | TAKACH, DERRICK | MLYNARSKI, KAROL | | | $405,000.00 | 62949 | 458784 |
| 2 | 02/11/2022 | WD | Warranty Deed | FLINT, JULIA | TAKACH, DERRICK | | | $375,000.00 | 52152 | 4540760 |
| 3 | 08/06/2019 | MANHOME | Manufactured Home | PROBERT, STEVEN | FLINT, JULIA | | | $58,000.00 | 39743 | |
| 4 | 08/06/2019 | WD | Warranty Deed | PROBERT, STEVEN | FLINT, JULIA | | | $197,000.00 | 39742 | 4468794 |
| 5 | 07/30/2019 | QCD | Quit Claim Deed | PROBERT, MICHELE | PROBERT, STEVEN | | | $0.00 | 39738 | 4468793 |
| 6 | 12/15/2016 | TTAXD | Treasurer's Tax Deed | ISLAND COUNTY TREASURER | PROBERT, STEVEN | | | $10,100.00 | 27358 | 4413396 |
| 7 | 03/17/2004 | 5 | DNU - Marriage License/Name Change | MACDONALD, D A | MACDONALD, D A | | | $0.00 | 41149 | 4095235 |
| 8 | 07/01/1990 | QCD | Quit Claim Deed | MACDONALD, GEORGE A | MACDONALD, D A | | | $0.00 | 4254 | 90013995 |
| 9 | 04/01/1982 | REC | Real Estate Contract | GILBERT, NOEL H | MACDONALD, GEORGE A | | | $7,500.00 | 20798 | 394975 |
| 10 | 11/01/1981 | REC | Real Estate Contract | RECREATION, LAND M | GILBERT, NOEL H | | | $2,635.00 | 13620 | 390497 |
| 11 | 06/01/1981 | QCD | Quit Claim Deed | DRISCOLL, BARBARA A | RECREATION, LAND M | | | $0.00 | 12009 | 384870 |
| 12 | 01/01/1900 | OTHER | Other - Misc. Documents | Unknown | DRISCOLL, BARBARA A | | | $0.00 | 0 | 0 |
Payout Agreement
| No payout information available.. |