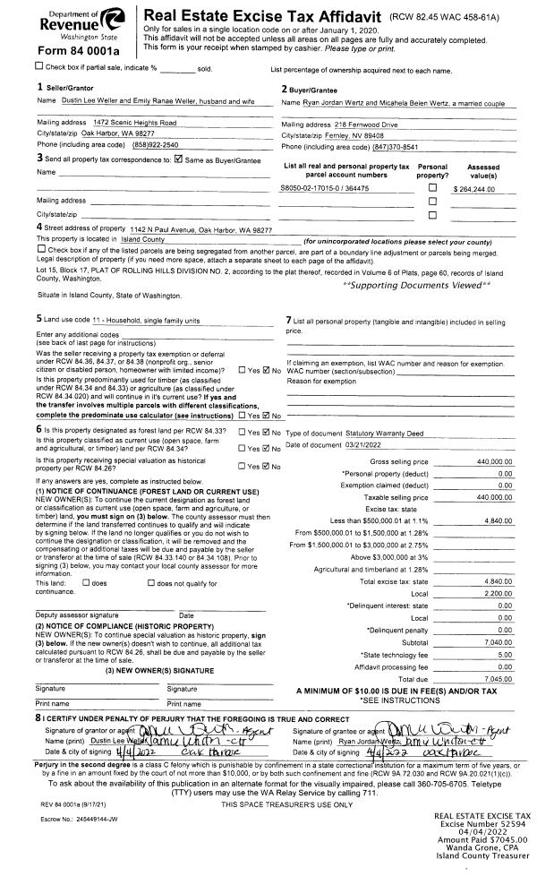
Property
Account |
| Property ID: | 332081 | Abbreviated Legal Description: | NGATE TERR LOT 21 BLK 9 |
| Geographic ID: | S7575-00-09021-0 | Agent Code: | |
| Type: | Real | | |
| Tax Area: | 110 - APPRAISER-OH Schl Dist, outside OH, improved & 1 acre or less | Land Use Code | 11 |
| Open Space: | N | DFL | N |
| Historic Property: | N | Remodel Property: | N |
| Multi-Family Redevelopment: | N | | |
| Township: | | Section: | |
| Range: | |
Location |
| Address: | 4333 TERRACE DR OAK HARBOR, WA 98277 | Mapsco: | |
| Neighborhood: | Cycle 6 | Map ID: | 203 |
| Neighborhood CD: | 6 |
Owner |
| Name: | PARKER, ROCKY | Owner ID: | 302318 |
| Mailing Address: | 4333 TERRACE DR OAK HARBOR, WA 98277 | % Ownership: | 100.0000000000% |
| | | Exemptions: | |
Taxes and Assessment Details
Values
| (+) Improvement Homesite Value: | + | $0 | |
| (+) Improvement Non-Homesite Value: | + | $121,536 | |
| (+) Land Homesite Value: | + | $0 | |
| (+) Land Non-Homesite Value: | + | $210,000 | |
| (+) Curr Use (HS): | + | $0 | $0 |
| (+) Curr Use (NHS): | + | $0 | $0 |
| | | -------------------------- | |
| (=) Market Value: | = | $331,536 | |
| (–) Productivity Loss: | – | $0 | |
| | | -------------------------- | |
| (=) Subtotal: | = | $331,536 | |
| (+) Senior Appraised Value: | + | $0 | |
| (+) Non-Senior Appraised Value: | + | $331,536 | |
| | | -------------------------- | |
| (=) Total Appraised Value: | = | $331,536 | |
| (–) Senior Exemption Loss: | – | $0 | |
| (–) Exemption Loss: | – | $0 | |
| | | -------------------------- | |
| (=) Taxable Value: | = | $331,536 | |
Taxing Jurisdiction
| Owner: | PARKER, ROCKY | | |
| % Ownership: | 100.0000000000% | | |
| Total Value: | $331,536 | | |
| Tax Area: | 110 - APPRAISER-OH Schl Dist, outside OH, improved & 1 acre or less |
| CF | Conservation Futures | 0.0316035091 | $331,536 | $331,536 | $10.48 | | |
| CEM1 | Cemetery #1 | 0.0040320932 | $331,536 | $331,536 | $1.34 | | |
| FIRE2 | Fire & Rescue Dist #2 N Whidbey GEN | 0.5475949600 | $331,536 | $331,536 | $181.55 | | |
| HOBOND | Hospital BOND | 0.1910887512 | $331,536 | $331,536 | $63.35 | | |
| HOGEN | Hospital GEN | 0.3902502903 | $331,536 | $331,536 | $129.38 | | |
| CE | County Current Expense | 0.3708482477 | $331,536 | $331,536 | $122.95 | | |
| CR | County Roads | 0.4584763726 | $331,536 | $331,536 | $152.00 | | |
| ISLANDEMS | Hospital GEN (EMS) | 0.5000000000 | $331,536 | $331,536 | $165.77 | | |
| LIB | Library Sno-Isle GEN | 0.3153421757 | $331,536 | $331,536 | $104.55 | | |
| NWHIDPRMT | P & R N Whidbey GEN | 0.2004466701 | $331,536 | $331,536 | $66.46 | | |
| SCH201MO | School 201 Enrichment | 1.8559231640 | $331,536 | $331,536 | $615.31 | | |
| ST | State School | 1.3035497053 | $331,536 | $331,536 | $432.17 | | |
| ST2 | State School Part 2 | 0.8169543533 | $331,536 | $331,536 | $270.85 | | |
| | Total Tax Rate: | 6.9861102925 | | | | | |
| | | | | Taxes w/Current Exemptions: | $2,316.16 | | |
| | | | | Taxes w/o Exemptions: | $2,316.16 | | |
Improvement / Building
| Improvement #1: | MANUFACTURED HOME | State Code: | Y | 1296.0 sqft | Value: | $121,536 |
| Bathrooms: | 0 | Bedrooms: | 0 | | Ceiling: | PLASTER PAINTED | Cooling: | EVAP NO DUCT | | Exterior Wall/Cover: | VINYL | Floor Covering: | CARPET 100% | | Floor Structure: | SLAB ON GRADE | Foundation: | SLAB | | Heating: | FHA ELECTRIC | Interior Finish: | PLASTER | | Plumbing Fixture Cnt: | 1 | Roof Slope: | FLAT | | Roof Structure/Cover: | CJ ALUMINIUM HEAVY |   |   |
|
| | Type | Description | Class CD | Sub Class CD | Year Built | Area |
| | BAS | BASE/MAIN FLOOR | 4 | 0 | 2006 | 1296.0 |
| | OWP | OPEN WOOD PORCH W/STEPS | 4 | 0 | 2006 | 96.0 |
| | OWP | OPEN WOOD PORCH W/STEPS | 4 | 0 | 2006 | 120.0 |
Sketch
Property Image
Land
| 1 | 13 | SQ (06001-08000) | 0.0000 | 0.00 | 0.00 | 0.00 | 1.00 | $210,000 | $0 |
Roll Value History
| 2026 | N/A | N/A | N/A | N/A | N/A |
| 2025 | $121,536 | $210,000 | $0 | $331,536 | $331,536 |
| 2024 | $124,465 | $190,000 | $0 | $314,465 | $314,465 |
| 2023 | $109,503 | $190,000 | $0 | $299,503 | $299,503 |
| 2022 | $98,003 | $180,000 | $0 | $278,003 | $278,003 |
| 2021 | $82,846 | $130,000 | $0 | $212,846 | $212,846 |
| 2020 | $81,362 | $110,000 | $0 | $191,362 | $191,362 |
| 2019 | $65,562 | $140,000 | $0 | $205,562 | $205,562 |
| 2018 | $66,299 | $120,000 | $0 | $186,299 | $186,299 |
| 2017 | $67,772 | $90,000 | $0 | $157,772 | $157,772 |
| 2016 | $57,222 | $70,000 | $0 | $127,222 | $127,222 |
| 2015 | $58,537 | $50,000 | $0 | $108,537 | $108,537 |
| 2014 | $59,195 | $45,000 | $0 | $104,195 | $104,195 |
| 2013 | $60,510 | $45,000 | $0 | $105,510 | $105,510 |
| 2012 | $61,168 | $59,500 | $0 | $120,668 | $120,668 |
| 2011 | $61,826 | $70,000 | $0 | $131,826 | $131,826 |
| 2010 | $70,280 | $70,000 | $0 | $140,280 | $140,280 |
| 2009 | $73,777 | $90,000 | $0 | $163,777 | $163,777 |
| 2008 | $75,306 | $90,000 | $0 | $165,306 | $165,306 |
| 2007 | $75,694 | $90,000 | $0 | $165,694 | $165,694 |
Deed and Sales History
| 1 | 12/09/2021 | QCD | Quit Claim Deed | PARKER, SHEENA | PARKER, ROCKY | | | $0.00 | 51285 | 4535664 |
| 2 | 11/23/2021 | WD | Warranty Deed | NEUGEBAUER, KAILEY | PARKER, ROCKY | | | $341,000.00 | 51284 | 4535663 |
| 3 | 12/24/2020 | QCD | Quit Claim Deed | NEUGEBAUER, KAILEY | NEUGEBAUER, KAILEY | | | $0.00 | 46550 | 4508046 |
| 4 | 11/16/2018 | WD | Warranty Deed | WOOLSEY, JASON MICHAEL | NEUGEBAUER, KAILEY | | | $235,000.00 | 36772 | 4455581 |
| 5 | 11/22/2016 | QCD | Quit Claim Deed | SHIGLEY, TINA | WOOLSEY, JASON MICHAEL | | | $0.00 | 27261 | 4413165 |
| 6 | 12/21/2006 | WD | Warranty Deed | DEJESSA, GREG | WOOLSEY, JASON M | | | $192,500.00 | 65403 | 4190537 |
| 7 | 07/26/2004 | WD | Warranty Deed | HEWETT, KATHLEEN T | DEJESSA, GREG | | | $12,450.00 | 43512 | 4108579 |
| 8 | 08/01/1995 | QCD | Quit Claim Deed | HEWETT, KATHLEEN T | HEWETT, KATHLEEN T | | | $0.00 | 53074 | 95014154 |
| 9 | 03/01/1989 | OTHER | Other - Misc. Documents | HEWETT, ROBERT W | HEWETT, KATHLEEN T | | | $0.00 | 63049 | 0 |
| 10 | 01/01/1900 | OTHER | Other - Misc. Documents | Unknown | HEWETT, ROBERT W | | | $0.00 | 0 | 0 |
Payout Agreement
| No payout information available.. |