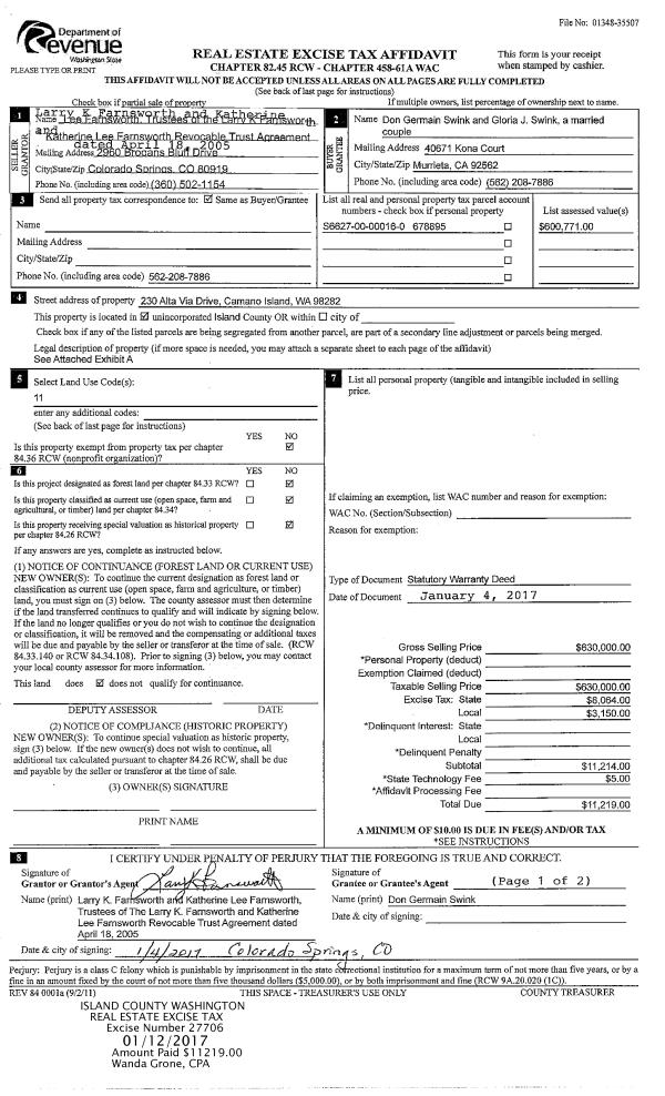
Property
Account |
| Property ID: | 332759 | Abbreviated Legal Description: | NGATE TERR LOTS 29 & 30 BLK 11 COMB 6/93 PT DRAINFIELD FOR 11001-0 AF#96009896 |
| Geographic ID: | S7575-00-11030-0 | Agent Code: | |
| Type: | Real | | |
| Tax Area: | 110 - APPRAISER-OH Schl Dist, outside OH, improved & 1 acre or less | Land Use Code | 11 |
| Open Space: | N | DFL | N |
| Historic Property: | N | Remodel Property: | N |
| Multi-Family Redevelopment: | N | | |
| Township: | | Section: | |
| Range: | |
Location |
| Address: | 522 SALAL ST OAK HARBOR, WA 98277 | Mapsco: | |
| Neighborhood: | Cycle 6 | Map ID: | 203 |
| Neighborhood CD: | 6 |
Owner |
| Name: | WEATHERBY, STEVE E | Owner ID: | 39804 |
| Mailing Address: | PO BOX 441 OAK HARBOR, WA 98277 | % Ownership: | 100.0000000000% |
| | | Exemptions: | |
Taxes and Assessment Details
Values
| (+) Improvement Homesite Value: | + | $0 | |
| (+) Improvement Non-Homesite Value: | + | $164,211 | |
| (+) Land Homesite Value: | + | $0 | |
| (+) Land Non-Homesite Value: | + | $210,000 | |
| (+) Curr Use (HS): | + | $0 | $0 |
| (+) Curr Use (NHS): | + | $0 | $0 |
| | | -------------------------- | |
| (=) Market Value: | = | $374,211 | |
| (–) Productivity Loss: | – | $0 | |
| | | -------------------------- | |
| (=) Subtotal: | = | $374,211 | |
| (+) Senior Appraised Value: | + | $0 | |
| (+) Non-Senior Appraised Value: | + | $374,211 | |
| | | -------------------------- | |
| (=) Total Appraised Value: | = | $374,211 | |
| (–) Senior Exemption Loss: | – | $0 | |
| (–) Exemption Loss: | – | $0 | |
| | | -------------------------- | |
| (=) Taxable Value: | = | $374,211 | |
Taxing Jurisdiction
| Owner: | WEATHERBY, STEVE E | | |
| % Ownership: | 100.0000000000% | | |
| Total Value: | $374,211 | | |
| Tax Area: | 110 - APPRAISER-OH Schl Dist, outside OH, improved & 1 acre or less |
| CF | Conservation Futures | 0.0316035091 | $374,211 | $374,211 | $11.83 | | |
| CEM1 | Cemetery #1 | 0.0040320932 | $374,211 | $374,211 | $1.51 | | |
| FIRE2 | Fire & Rescue Dist #2 N Whidbey GEN | 0.5475949600 | $374,211 | $374,211 | $204.92 | | |
| HOBOND | Hospital BOND | 0.1910887512 | $374,211 | $374,211 | $71.51 | | |
| HOGEN | Hospital GEN | 0.3902502903 | $374,211 | $374,211 | $146.04 | | |
| CE | County Current Expense | 0.3708482477 | $374,211 | $374,211 | $138.78 | | |
| CR | County Roads | 0.4584763726 | $374,211 | $374,211 | $171.57 | | |
| ISLANDEMS | Hospital GEN (EMS) | 0.5000000000 | $374,211 | $374,211 | $187.11 | | |
| LIB | Library Sno-Isle GEN | 0.3153421757 | $374,211 | $374,211 | $118.00 | | |
| NWHIDPRMT | P & R N Whidbey GEN | 0.2004466701 | $374,211 | $374,211 | $75.01 | | |
| SCH201MO | School 201 Enrichment | 1.8559231640 | $374,211 | $374,211 | $694.51 | | |
| ST | State School | 1.3035497053 | $374,211 | $374,211 | $487.80 | | |
| ST2 | State School Part 2 | 0.8169543533 | $374,211 | $374,211 | $305.71 | | |
| | Total Tax Rate: | 6.9861102925 | | | | | |
| | | | | Taxes w/Current Exemptions: | $2,614.30 | | |
| | | | | Taxes w/o Exemptions: | $2,614.30 | | |
Improvement / Building
| Improvement #1: | RESIDENTIAL | State Code: | Y | 1034.0 sqft | Value: | $164,211 |
| Bathrooms: | 1 | Bedrooms: | 3 | | Ceiling: | DRYWALL PAINTED | Exterior Wall/Cover: | PLY/HARDBOARD T-111 | | Floor Covering: | CARPET/VINYL 80-20 | Floor Structure: | WOOD W/SUBFLOOR | | Foundation: | CONCRETE | Heating: | WALL HEAT ELECTRIC | | Interior Finish: | DRYWALL PAINT | Plumbing Fixture Cnt: | 6 | | Roof Slope: | 5" IN 12" | Roof Structure/Cover: | CJ ASPHALT |
|
| | Type | Description | Class CD | Sub Class CD | Year Built | Area |
| | BAS | BASE/MAIN FLOOR | 3 | 0 | 1990 | 1034.0 |
| | OP4 | OPEN PORCH W/CEILING-ROOF | 3 | 0 | 1990 | 24.0 |
| | AGR | ATTACHED GARAGE | 3 | 0 | 1990 | 294.0 |
| | OWP | OPEN WOOD PORCH W/STEPS | 3 | 0 | 1990 | 80.0 |
Sketch
Property Image
Land
| 1 | 15 | SQ (12001-21780) | 0.0000 | 0.00 | 0.00 | 0.00 | 1.00 | $210,000 | $0 |
Roll Value History
| 2026 | N/A | N/A | N/A | N/A | N/A |
| 2025 | $164,211 | $210,000 | $0 | $374,211 | $374,211 |
| 2024 | $166,391 | $190,000 | $0 | $356,391 | $356,391 |
| 2023 | $168,575 | $190,000 | $0 | $358,575 | $358,575 |
| 2022 | $150,671 | $180,000 | $0 | $330,671 | $330,671 |
| 2021 | $132,734 | $130,000 | $0 | $262,734 | $262,734 |
| 2020 | $129,420 | $110,000 | $0 | $239,420 | $239,420 |
| 2019 | $92,045 | $140,000 | $0 | $232,045 | $232,045 |
| 2018 | $92,335 | $120,000 | $0 | $212,335 | $212,335 |
| 2017 | $92,915 | $90,000 | $0 | $182,915 | $182,915 |
| 2016 | $87,330 | $70,000 | $0 | $157,330 | $157,330 |
| 2015 | $88,526 | $50,000 | $0 | $138,526 | $138,526 |
| 2014 | $89,725 | $45,000 | $0 | $134,725 | $134,725 |
| 2013 | $90,921 | $45,000 | $0 | $135,921 | $135,921 |
| 2012 | $92,116 | $59,500 | $0 | $151,616 | $151,616 |
| 2011 | $93,312 | $70,000 | $0 | $163,312 | $163,312 |
| 2010 | $98,038 | $70,000 | $0 | $168,038 | $168,038 |
| 2009 | $102,192 | $77,500 | $0 | $179,692 | $179,692 |
| 2008 | $103,550 | $94,500 | $0 | $198,050 | $198,050 |
| 2007 | $104,966 | $90,000 | $0 | $194,966 | $194,966 |
Deed and Sales History
| 1 | 07/01/1995 | WD | Warranty Deed | BROWER, CHARLES D | WEATHERBY, STEVE E | | | $106,000.00 | 52518 | 95011684 |
| 2 | 06/01/1993 | OTHER | Other - Misc. Documents | BROWER, CHARLES D | BROWER, CHARLES D | | | $0.00 | 65398 | 93010636 |
| 3 | 07/01/1990 | WD | Warranty Deed | ISLAND, PACIFIC C | BROWER, CHARLES D | | | $66,900.00 | 4365 | 90014455 |
| 4 | 03/01/1990 | WD | Warranty Deed | MEYER, JAMES M | ISLAND, PACIFIC C | | | $5,950.00 | 1654 | 90005357 |
| 5 | 08/01/1978 | OTHER | Other - Misc. Documents | Unknown | MEYER, JAMES M | | | $8,000.00 | 83670 | 337254 |
Payout Agreement
| No payout information available.. |