Property
Account |
| Property ID: | 332848 | Abbreviated Legal Description: | OAK GROVE N60' OF S120' OF LOTS 9 & 10 BLK 1 |
| Geographic ID: | S7580-00-01009-2 | Agent Code: | |
| Type: | Real | | |
| Tax Area: | 100 - APPRAISER-OH Schl Dist, in OH | Land Use Code | 11 |
| Open Space: | N | DFL | N |
| Historic Property: | N | Remodel Property: | N |
| Multi-Family Redevelopment: | N | | |
| Township: | | Section: | |
| Range: | |
Location |
| Address: | 826 SE PASEK ST OAK HARBOR, WA 98277 | Mapsco: | |
| Neighborhood: | Cycle 1 | Map ID: | 89 |
| Neighborhood CD: | 1 |
Owner |
| Name: | HAAS, REBECCA E | Owner ID: | 302009 |
| Mailing Address: | 2539 BURNETT CT S RENTON, WA 98055 | % Ownership: | 100.0000000000% |
| | | Exemptions: | |
Taxes and Assessment Details
Values
| (+) Improvement Homesite Value: | + | $0 | |
| (+) Improvement Non-Homesite Value: | + | $252,073 | |
| (+) Land Homesite Value: | + | $0 | |
| (+) Land Non-Homesite Value: | + | $180,000 | |
| (+) Curr Use (HS): | + | $0 | $0 |
| (+) Curr Use (NHS): | + | $0 | $0 |
| | | -------------------------- | |
| (=) Market Value: | = | $432,073 | |
| (–) Productivity Loss: | – | $0 | |
| | | -------------------------- | |
| (=) Subtotal: | = | $432,073 | |
| (+) Senior Appraised Value: | + | $0 | |
| (+) Non-Senior Appraised Value: | + | $432,073 | |
| | | -------------------------- | |
| (=) Total Appraised Value: | = | $432,073 | |
| (–) Senior Exemption Loss: | – | $0 | |
| (–) Exemption Loss: | – | $0 | |
| | | -------------------------- | |
| (=) Taxable Value: | = | $432,073 | |
Taxing Jurisdiction
| Owner: | HAAS, REBECCA E | | |
| % Ownership: | 100.0000000000% | | |
| Total Value: | $432,073 | | |
| Tax Area: | 100 - APPRAISER-OH Schl Dist, in OH |
| CF | Conservation Futures | 0.0316035091 | $432,073 | $432,073 | $13.66 | | |
| CEM1 | Cemetery #1 | 0.0040320932 | $432,073 | $432,073 | $1.74 | | |
| COH | City of Oak Harbor | 2.3001546061 | $432,073 | $432,073 | $993.83 | | |
| OAKBOND | City of Oak Harbor BOND | 0.1926904192 | $432,073 | $432,073 | $83.26 | | |
| HOBOND | Hospital BOND | 0.1910887512 | $432,073 | $432,073 | $82.56 | | |
| HOGEN | Hospital GEN | 0.3902502903 | $432,073 | $432,073 | $168.62 | | |
| CE | County Current Expense | 0.3708482477 | $432,073 | $432,073 | $160.23 | | |
| ISLANDEMS | Hospital GEN (EMS) | 0.5000000000 | $432,073 | $432,073 | $216.04 | | |
| LIB | Library Sno-Isle GEN | 0.3153421757 | $432,073 | $432,073 | $136.25 | | |
| NWHIDPRMT | P & R N Whidbey GEN | 0.2004466701 | $432,073 | $432,073 | $86.61 | | |
| SCH201MO | School 201 Enrichment | 1.8559231640 | $432,073 | $432,073 | $801.89 | | |
| ST | State School | 1.3035497053 | $432,073 | $432,073 | $563.23 | | |
| ST2 | State School Part 2 | 0.8169543533 | $432,073 | $432,073 | $352.98 | | |
| | Total Tax Rate: | 8.4728839852 | | | | | |
| | | | | Taxes w/Current Exemptions: | $3,660.90 | | |
| | | | | Taxes w/o Exemptions: | $3,660.90 | | |
Improvement / Building
| Improvement #1: | RESIDENTIAL | State Code: | Y | 1721.0 sqft | Value: | $252,073 |
| Bathrooms: | 1.5 | Bedrooms: | 2 | | Ceiling: | DRY WALL SPRAYED | Cooling: | HEAT PUMP/CONV/V | | Exterior Wall/Cover: | WOOD SIDING | Floor Covering: | VINYL/HARDWOOD 60-40 | | Floor Structure: | WOOD W/SUBFLOOR | Foundation: | CONCRETE | | Interior Finish: | DRYWALL PAINT | Plumbing Fixture Cnt: | 8 | | Roof Slope: | 4" IN 12" | Roof Structure/Cover: | CJ ASPHALT |
|
| | Type | Description | Class CD | Sub Class CD | Year Built | Area |
| | BAS | BASE/MAIN FLOOR | 3 | 0 | 1958 | 977.0 |
| | DWN | DOWNSTAIRS LIVING AREA | 3 | 0 | 1958 | 744.0 |
| | OP4 | OPEN PORCH W/CEILING-ROOF | 3 | 0 | 1958 | 36.0 |
| | AGR | ATTACHED GARAGE | 3 | 0 | 1958 | 299.0 |
| | OWP | OPEN WOOD PORCH W/STEPS | 3 | 0 | 1958 | 219.4 |
| | OWC | OPEN WOOD PORCH W/STEPS/ROOF/C | 3 | 0 | 1958 | 56.0 |
Sketch
Property Image
Land
| 1 | 13 | SQ (06001-08000) | 0.0000 | 0.00 | 0.00 | 0.00 | 1.00 | $180,000 | $0 |
Roll Value History
| 2026 | N/A | N/A | N/A | N/A | N/A |
| 2025 | $252,073 | $180,000 | $0 | $432,073 | $432,073 |
| 2024 | $255,379 | $170,000 | $0 | $425,379 | $425,379 |
| 2023 | $248,768 | $170,000 | $0 | $418,768 | $418,768 |
| 2022 | $228,262 | $160,000 | $0 | $388,262 | $388,262 |
| 2021 | $181,674 | $120,000 | $0 | $301,674 | $301,674 |
| 2020 | $177,454 | $100,000 | $0 | $277,454 | $277,454 |
| 2019 | $126,789 | $140,000 | $0 | $266,789 | $266,789 |
| 2018 | $127,221 | $125,000 | $0 | $252,221 | $252,221 |
| 2017 | $95,546 | $110,000 | $0 | $205,546 | $205,546 |
| 2016 | $96,875 | $90,000 | $0 | $186,875 | $186,875 |
| 2015 | $98,201 | $80,000 | $0 | $178,201 | $178,201 |
| 2014 | $99,528 | $80,000 | $0 | $179,528 | $179,528 |
| 2013 | $87,584 | $88,000 | $0 | $175,584 | $175,584 |
| 2012 | $82,277 | $88,000 | $0 | $170,277 | $170,277 |
| 2011 | $65,149 | $88,000 | $0 | $153,149 | $153,149 |
| 2010 | $77,232 | $88,000 | $0 | $165,232 | $165,232 |
| 2009 | $80,833 | $102,000 | $0 | $182,833 | $182,833 |
| 2008 | $82,208 | $108,750 | $0 | $190,958 | $190,958 |
| 2007 | $83,594 | $108,750 | $0 | $192,344 | $192,344 |
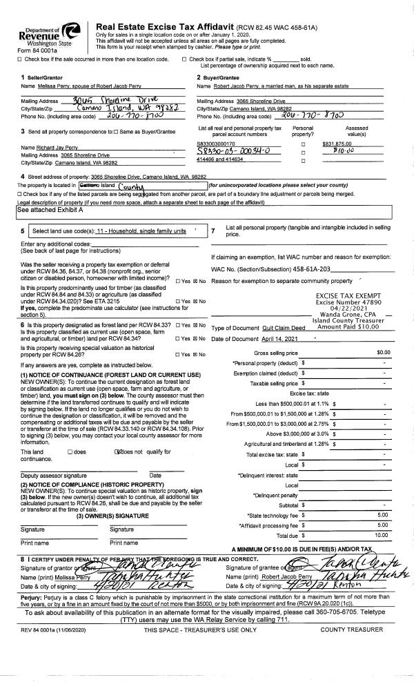
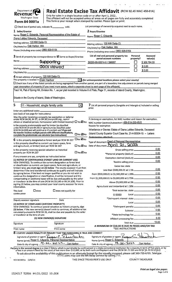
Deed and Sales History
| 1 | 11/05/2021 | WD | Warranty Deed | HOWE JTWROS , CAROLYN | HAAS, REBECCA E | | | $437,500.00 | 50945 | 4534051 |
| 2 | 11/18/2020 | QCD | Quit Claim Deed | HOWE, CAROLYN D | HOWE JTWROS , CAROLYN | | | $0.00 | 45830 | 4503099 |
| 3 | 01/07/2013 | WD | Warranty Deed | ZAHN, CAITLIN M | HOWE, CAROLYN D | | | $183,000.00 | 10162 | 4331652 |
| 4 | 01/17/2006 | ESTSEPPROP | Establish Separate Property | ZAHN, MATTHEW J | ZAHN, CAITLIN M | | | $0.00 | 60281 | 4160376 |
| 5 | 08/29/2003 | WD | Warranty Deed | ISHLER, DANNY P | ZAHN, MATTHEW J | | | $149,000.00 | 33922 | 4073615 |
| 6 | 07/28/1999 | WD | Warranty Deed | MCCLEARY, JO A | ISHLER, DANNY P | | | $112,000.00 | 93114 | 99018092 |
| 7 | 04/01/1997 | 5 | DNU - Marriage License/Name Change | STOLECKI, JO A | MCCLEARY, JO A | | | $0.00 | 67298 | 96011725 |
| 8 | 10/01/1988 | WD | Warranty Deed | GASTON, MARGARET A | STOLECKI, JO A | | | $63,500.00 | 83653 | 88013643 |
| 9 | 01/01/1900 | OTHER | Other - Misc. Documents | Unknown | GASTON, MARGARET A | | | $0.00 | 0 | 0 |
Payout Agreement
| No payout information available.. |