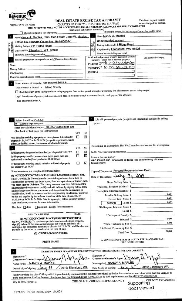
Property
Account |
| Property ID: | 333026 | Abbreviated Legal Description: | OAK GROVE N119.25' OF LOTS 13 & 14 BLK 2 TGW 16' EZ ADJ TO N119.25' AF#405329 |
| Geographic ID: | S7580-00-02013-1 | Agent Code: | |
| Type: | Real | | |
| Tax Area: | 100 - APPRAISER-OH Schl Dist, in OH | Land Use Code | 11 |
| Open Space: | N | DFL | N |
| Historic Property: | N | Remodel Property: | N |
| Multi-Family Redevelopment: | N | | |
| Township: | | Section: | |
| Range: | |
Location |
| Address: | 1323 SE 8TH AVE OAK HARBOR, WA 98277 | Mapsco: | |
| Neighborhood: | Cycle 1 | Map ID: | 89 |
| Neighborhood CD: | 1 |
Owner |
| Name: | FENTON, SHANELLE DAHLIA | Owner ID: | 291527 |
| Mailing Address: | SHEALEN Z CARVER 1323 SE 8TH AVE OAK HARBOR, WA 98277 | % Ownership: | 100.0000000000% |
| | | Exemptions: | |
Taxes and Assessment Details
Values
| (+) Improvement Homesite Value: | + | $0 | |
| (+) Improvement Non-Homesite Value: | + | $321,273 | |
| (+) Land Homesite Value: | + | $0 | |
| (+) Land Non-Homesite Value: | + | $200,000 | |
| (+) Curr Use (HS): | + | $0 | $0 |
| (+) Curr Use (NHS): | + | $0 | $0 |
| | | -------------------------- | |
| (=) Market Value: | = | $521,273 | |
| (–) Productivity Loss: | – | $0 | |
| | | -------------------------- | |
| (=) Subtotal: | = | $521,273 | |
| (+) Senior Appraised Value: | + | $0 | |
| (+) Non-Senior Appraised Value: | + | $521,273 | |
| | | -------------------------- | |
| (=) Total Appraised Value: | = | $521,273 | |
| (–) Senior Exemption Loss: | – | $0 | |
| (–) Exemption Loss: | – | $0 | |
| | | -------------------------- | |
| (=) Taxable Value: | = | $521,273 | |
Taxing Jurisdiction
| Owner: | FENTON, SHANELLE DAHLIA | | |
| % Ownership: | 100.0000000000% | | |
| Total Value: | $521,273 | | |
| Tax Area: | 100 - APPRAISER-OH Schl Dist, in OH |
| CF | Conservation Futures | 0.0316035091 | $521,273 | $521,273 | $16.47 | | |
| CEM1 | Cemetery #1 | 0.0040320932 | $521,273 | $521,273 | $2.10 | | |
| COH | City of Oak Harbor | 2.3001546061 | $521,273 | $521,273 | $1,199.01 | | |
| OAKBOND | City of Oak Harbor BOND | 0.1926904192 | $521,273 | $521,273 | $100.44 | | |
| HOBOND | Hospital BOND | 0.1910887512 | $521,273 | $521,273 | $99.61 | | |
| HOGEN | Hospital GEN | 0.3902502903 | $521,273 | $521,273 | $203.43 | | |
| CE | County Current Expense | 0.3708482477 | $521,273 | $521,273 | $193.31 | | |
| ISLANDEMS | Hospital GEN (EMS) | 0.5000000000 | $521,273 | $521,273 | $260.64 | | |
| LIB | Library Sno-Isle GEN | 0.3153421757 | $521,273 | $521,273 | $164.38 | | |
| NWHIDPRMT | P & R N Whidbey GEN | 0.2004466701 | $521,273 | $521,273 | $104.49 | | |
| SCH201MO | School 201 Enrichment | 1.8559231640 | $521,273 | $521,273 | $967.44 | | |
| ST | State School | 1.3035497053 | $521,273 | $521,273 | $679.51 | | |
| ST2 | State School Part 2 | 0.8169543533 | $521,273 | $521,273 | $425.86 | | |
| | Total Tax Rate: | 8.4728839852 | | | | | |
| | | | | Taxes w/Current Exemptions: | $4,416.69 | | |
| | | | | Taxes w/o Exemptions: | $4,416.69 | | |
Improvement / Building
| Improvement #1: | RESIDENTIAL | State Code: | Y | 2440.0 sqft | Value: | $321,273 |
| Bathrooms: | 2 | Bedrooms: | 5 | | Ceiling: | DRYWALL PAINTED | Exterior Wall/Cover: | STUCCO | | Floor Covering: | CERAMIC TILE/HWD 40/60 | Floor Structure: | WOOD W/SUBFLOOR | | Foundation: | CONCRETE | Heating: | FHA ELECTRIC | | Interior Finish: | DRYWALL PAINT | Plumbing Fixture Cnt: | 9 | | Roof Slope: | FLAT | Roof Structure/Cover: | CJ BUILT-UP ROCK |
|
| | Type | Description | Class CD | Sub Class CD | Year Built | Area |
| | BAS | BASE/MAIN FLOOR | 3 | 0 | 1948 | 1220.0 |
| | OP1 | OPEN PORCH SLAB | 3 | 0 | 1948 | 408.0 |
| | ENP | ENCLOSED PORCH | 3 | 0 | 1948 | 20.0 |
| | DWN | DOWNSTAIRS LIVING AREA | 3 | 0 | 1948 | 1220.0 |
Sketch
Property Image
Land
| 1 | 14 | SQ (08001-12000) | 0.0000 | 0.00 | 0.00 | 0.00 | 1.00 | $200,000 | $0 |
Roll Value History
| 2026 | N/A | N/A | N/A | N/A | N/A |
| 2025 | $321,273 | $200,000 | $0 | $521,273 | $521,273 |
| 2024 | $325,600 | $185,000 | $0 | $510,600 | $510,600 |
| 2023 | $325,600 | $180,000 | $0 | $505,600 | $505,600 |
| 2022 | $298,764 | $170,000 | $0 | $468,764 | $468,764 |
| 2021 | $263,190 | $140,000 | $0 | $403,190 | $403,190 |
| 2020 | $257,548 | $125,000 | $0 | $382,548 | $382,548 |
| 2019 | $188,297 | $160,000 | $0 | $348,297 | $348,297 |
| 2018 | $188,907 | $155,000 | $0 | $343,907 | $343,907 |
| 2017 | $139,951 | $140,000 | $0 | $279,951 | $279,951 |
| 2016 | $142,324 | $120,000 | $0 | $262,324 | $262,324 |
| 2015 | $144,695 | $105,000 | $0 | $249,695 | $249,695 |
| 2014 | $147,069 | $105,000 | $0 | $252,069 | $252,069 |
| 2013 | $149,439 | $109,000 | $0 | $258,439 | $258,439 |
| 2012 | $151,812 | $109,000 | $0 | $260,812 | $260,812 |
| 2011 | $154,804 | $109,000 | $0 | $263,804 | $263,804 |
| 2010 | $166,940 | $109,000 | $0 | $275,940 | $275,940 |
| 2009 | $174,367 | $148,000 | $0 | $322,367 | $322,367 |
| 2008 | $176,836 | $152,400 | $0 | $329,236 | $329,236 |
| 2007 | $179,329 | $152,400 | $0 | $331,729 | $331,729 |
Deed and Sales History
| 1 | 08/26/2019 | QCD | Quit Claim Deed | HARMON, ANTHONY | CARVER, SHEALEN Z | | | $0.00 | 40011 | 4470192 |
| 2 | 08/26/2019 | WD | Warranty Deed | CRIBB, STEPHEN M | FENTON, SHANELLE DAHLIA | | | $420,000.00 | 40010 | 4470191 |
| 3 | 08/11/2017 | QCD | Quit Claim Deed | CRIBB, STEPHEN M | CRIBB, STEPHEN M | | | $0.00 | 30667 | 4428311 |
| 4 | 07/07/2004 | WD | Warranty Deed | WILMONT, FREDERICK E | CRIBB, STEPHEN M | | | $221,500.00 | 43034 | 4106146 |
| 5 | 08/31/2001 | WD | Warranty Deed | MALONEY, JAMES A | WILMONT, FREDERICK E | | | $198,000.00 | 13404 | 20041950 |
| 6 | 06/01/1992 | WD | Warranty Deed | ADAIR, JOHN P | MALONEY, JAMES A | | | $132,000.00 | 22529 | 92012174 |
| 7 | 04/01/1990 | WD | Warranty Deed | SAXMAN, CHRISTOPHER | ADAIR, JOHN P | | | $102,000.00 | 2223 | 90007247 |
| 8 | 06/01/1988 | DECREE | Divorce Decree/Legal Separation | SAXMAN, CHRISTOPHER | SAXMAN, CHRISTOPHER | | | $0.00 | 82212 | 88008147 |
| 9 | 01/01/1983 | EZ | Easement | SAXMAN, CHRISTOPHER | SAXMAN, CHRISTOPHER | | | $0.00 | 60683 | 405329 |
| 10 | 08/01/1978 | OTHER | Other - Misc. Documents | Unknown | SAXMAN, CHRISTOPHER | | | $57,000.00 | 83827 | 337763 |
Payout Agreement
| No payout information available.. |