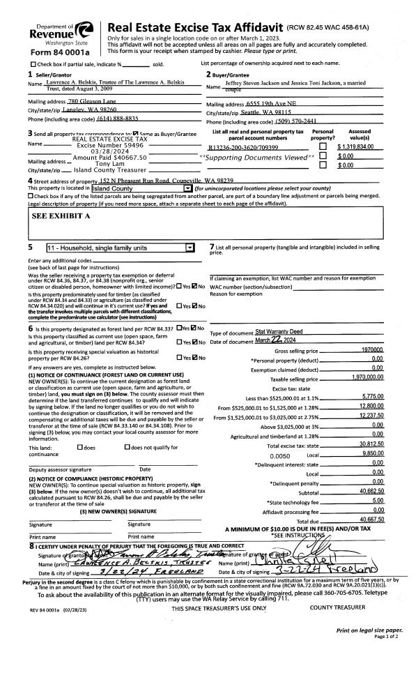
Property
Account |
| Property ID: | 333222 | Abbreviated Legal Description: | OAK GROVE LOTS 1, 2 & E/2 LOT 3 BLK 4 |
| Geographic ID: | S7580-00-04001-0 | Agent Code: | |
| Type: | Real | | |
| Tax Area: | 100 - APPRAISER-OH Schl Dist, in OH | Land Use Code | 99 |
| Open Space: | N | DFL | N |
| Historic Property: | N | Remodel Property: | N |
| Multi-Family Redevelopment: | N | | |
| Township: | | Section: | |
| Range: | |
Location |
| Address: | SE 9TH AVE OAK HARBOR, WA 98277 | Mapsco: | |
| Neighborhood: | 13cOH-se 9th av | Map ID: | 89 |
| Neighborhood CD: | 13cOHse9th |
Owner |
| Name: | RIP OAK, LLC | Owner ID: | 310941 |
| Mailing Address: | 22630 WOODWAY PARK RD WOODWAY, WA 98020 | % Ownership: | 100.0000000000% |
| | | Exemptions: | |
Taxes and Assessment Details
Values
| (+) Improvement Homesite Value: | + | $0 | |
| (+) Improvement Non-Homesite Value: | + | $0 | |
| (+) Land Homesite Value: | + | $0 | |
| (+) Land Non-Homesite Value: | + | $146,884 | |
| (+) Curr Use (HS): | + | $0 | $0 |
| (+) Curr Use (NHS): | + | $0 | $0 |
| | | -------------------------- | |
| (=) Market Value: | = | $146,884 | |
| (–) Productivity Loss: | – | $0 | |
| | | -------------------------- | |
| (=) Subtotal: | = | $146,884 | |
| (+) Senior Appraised Value: | + | $0 | |
| (+) Non-Senior Appraised Value: | + | $146,884 | |
| | | -------------------------- | |
| (=) Total Appraised Value: | = | $146,884 | |
| (–) Senior Exemption Loss: | – | $0 | |
| (–) Exemption Loss: | – | $0 | |
| | | -------------------------- | |
| (=) Taxable Value: | = | $146,884 | |
Taxing Jurisdiction
| Owner: | RIP OAK, LLC | | |
| % Ownership: | 100.0000000000% | | |
| Total Value: | $146,884 | | |
| Tax Area: | 100 - APPRAISER-OH Schl Dist, in OH |
| CF | Conservation Futures | 0.0316035091 | $146,884 | $146,884 | $4.64 | | |
| CEM1 | Cemetery #1 | 0.0040320932 | $146,884 | $146,884 | $0.59 | | |
| COH | City of Oak Harbor | 2.3001546061 | $146,884 | $146,884 | $337.86 | | |
| OAKBOND | City of Oak Harbor BOND | 0.1926904192 | $146,884 | $146,884 | $28.30 | | |
| HOBOND | Hospital BOND | 0.1910887512 | $146,884 | $146,884 | $28.07 | | |
| HOGEN | Hospital GEN | 0.3902502903 | $146,884 | $146,884 | $57.32 | | |
| CE | County Current Expense | 0.3708482477 | $146,884 | $146,884 | $54.47 | | |
| ISLANDEMS | Hospital GEN (EMS) | 0.5000000000 | $146,884 | $146,884 | $73.44 | | |
| LIB | Library Sno-Isle GEN | 0.3153421757 | $146,884 | $146,884 | $46.32 | | |
| NWHIDPRMT | P & R N Whidbey GEN | 0.2004466701 | $146,884 | $146,884 | $29.44 | | |
| SCH201MO | School 201 Enrichment | 1.8559231640 | $146,884 | $146,884 | $272.61 | | |
| ST | State School | 1.3035497053 | $146,884 | $146,884 | $191.47 | | |
| ST2 | State School Part 2 | 0.8169543533 | $146,884 | $146,884 | $120.00 | | |
| | Total Tax Rate: | 8.4728839852 | | | | | |
| | | | | Taxes w/Current Exemptions: | $1,244.53 | | |
| | | | | Taxes w/o Exemptions: | $1,244.53 | | |
Improvement / Building
Sketch
| No sketches available for this property. |
Property Image
Land
| 1 | 61 | MULTIPLE RESIDENCES | 0.4215 | 18360.54 | 0.00 | 0.00 | 1.00 | $146,884 | $0 |
Roll Value History
| 2026 | N/A | N/A | N/A | N/A | N/A |
| 2025 | $0 | $146,884 | $0 | $146,884 | $146,884 |
| 2024 | $0 | $146,884 | $0 | $146,884 | $146,884 |
| 2023 | $0 | $146,884 | $0 | $146,884 | $146,884 |
| 2022 | $0 | $146,884 | $0 | $146,884 | $146,884 |
| 2021 | $0 | $146,884 | $0 | $146,884 | $146,884 |
| 2020 | $0 | $91,803 | $0 | $91,803 | $91,803 |
| 2019 | $0 | $119,344 | $0 | $119,344 | $119,344 |
| 2018 | $0 | $119,344 | $0 | $119,344 | $119,344 |
| 2017 | $0 | $220,326 | $0 | $220,326 | $220,326 |
| 2016 | $0 | $220,326 | $0 | $220,326 | $220,326 |
| 2015 | $0 | $109,793 | $0 | $109,793 | $109,793 |
| 2014 | $0 | $109,793 | $0 | $109,793 | $109,793 |
| 2013 | $0 | $109,793 | $0 | $109,793 | $109,793 |
| 2012 | $0 | $109,793 | $0 | $109,793 | $109,793 |
| 2011 | $0 | $109,793 | $0 | $109,793 | $109,793 |
| 2010 | $0 | $109,793 | $0 | $109,793 | $109,793 |
| 2009 | $0 | $179,726 | $0 | $179,726 | $179,726 |
| 2008 | $0 | $189,154 | $0 | $189,154 | $189,154 |
| 2007 | $0 | $189,154 | $0 | $189,154 | $189,154 |
Deed and Sales History
| 1 | 12/13/2023 | WD | Warranty Deed | HARBOUR TTEE, CLARENCE C | RIP OAK, LLC | | | $2,200,000.00 | 58771 | 4567704 |
|   | |
| 2 | 10/24/2018 | QCD | Quit Claim Deed | HARBOUR, CLARENCE C | HARBOUR TTEE, CLARENCE C | | | $0.00 | 36561 | 4454593 |
| 3 | 12/01/1990 | QCD | Quit Claim Deed | HARBOUR, CLARENCE C | HARBOUR, CLARENCE C | | | $0.00 | 6510 | 90022603 |
| 4 | 01/01/1900 | OTHER | Other - Misc. Documents | Unknown | HARBOUR, CLARENCE C | | | $0.00 | 0 | 0 |
Payout Agreement
| No payout information available.. |