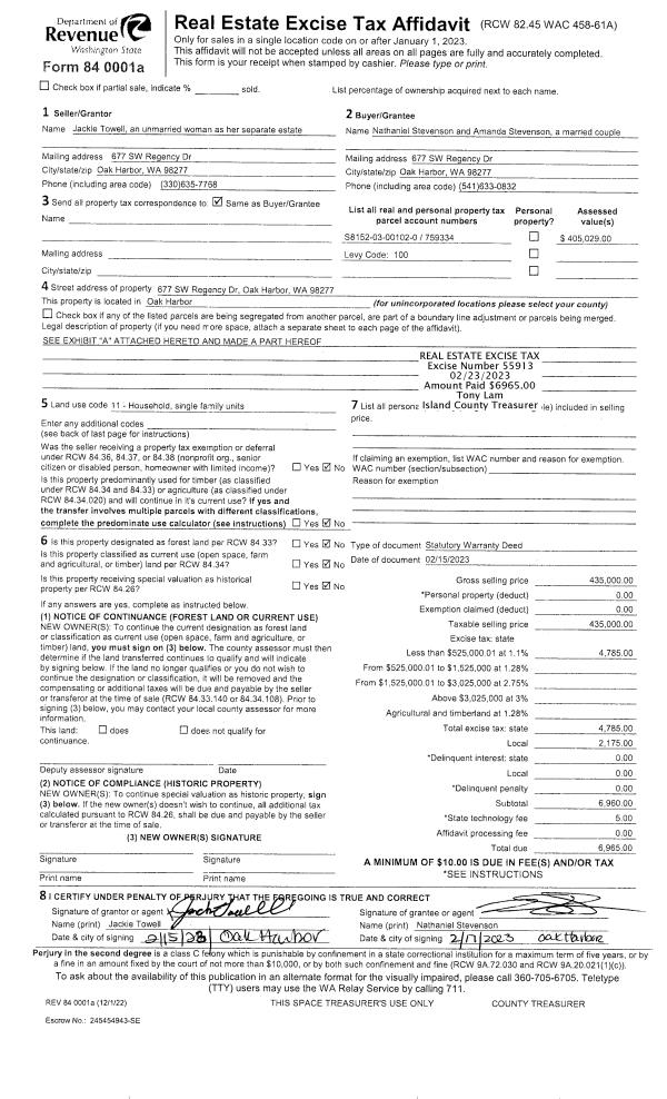
Property
Account |
| Property ID: | 33341 | Abbreviated Legal Description: | 89 - BG NWCR SW S88*E661.51 S30' S25*E740' TPB S25*E457 .18' S59*W477.83' N25*W457 .18' N59*E477.83' TPB TGW & SUB EZ (AKA LOT 7 V2 SUR P29 AF#286715) |
| Geographic ID: | R13311-169-0930 | Agent Code: | |
| Type: | Real | | |
| Tax Area: | 112 - APPRAISER-OH Schl Dist, outside OH, improved, greater than 1 acre | Land Use Code | 11 |
| Open Space: | N | DFL | N |
| Historic Property: | N | Remodel Property: | N |
| Multi-Family Redevelopment: | N | | |
| Township: | 33 | Section: | 11 |
| Range: | R1 |
Location |
| Address: | 4125 HOLLYDALE LN OAK HARBOR, WA 98277 | Mapsco: | |
| Neighborhood: | Cycle 6 | Map ID: | 200 |
| Neighborhood CD: | 6 |
Owner |
| Name: | ROBINSON JR, RONNIE | Owner ID: | 272698 |
| Mailing Address: | TAUNYA G ROBINSON 4125 HOLLYDALE LN OAK HARBOR, WA 98277 | % Ownership: | 100.0000000000% |
| | | Exemptions: | |
Taxes and Assessment Details
Values
| (+) Improvement Homesite Value: | + | $0 | |
| (+) Improvement Non-Homesite Value: | + | $144,358 | |
| (+) Land Homesite Value: | + | $0 | |
| (+) Land Non-Homesite Value: | + | $300,000 | |
| (+) Curr Use (HS): | + | $0 | $0 |
| (+) Curr Use (NHS): | + | $0 | $0 |
| | | -------------------------- | |
| (=) Market Value: | = | $444,358 | |
| (–) Productivity Loss: | – | $0 | |
| | | -------------------------- | |
| (=) Subtotal: | = | $444,358 | |
| (+) Senior Appraised Value: | + | $0 | |
| (+) Non-Senior Appraised Value: | + | $444,358 | |
| | | -------------------------- | |
| (=) Total Appraised Value: | = | $444,358 | |
| (–) Senior Exemption Loss: | – | $0 | |
| (–) Exemption Loss: | – | $0 | |
| | | -------------------------- | |
| (=) Taxable Value: | = | $444,358 | |
Taxing Jurisdiction
| Owner: | ROBINSON JR, RONNIE | | |
| % Ownership: | 100.0000000000% | | |
| Total Value: | $444,358 | | |
| Tax Area: | 112 - APPRAISER-OH Schl Dist, outside OH, improved, greater than 1 acre |
| CF | Conservation Futures | 0.0316035091 | $444,358 | $444,358 | $14.04 | | |
| CEM1 | Cemetery #1 | 0.0040320932 | $444,358 | $444,358 | $1.79 | | |
| FIRE2 | Fire & Rescue Dist #2 N Whidbey GEN | 0.5475949600 | $444,358 | $444,358 | $243.33 | | |
| HOBOND | Hospital BOND | 0.1910887512 | $444,358 | $444,358 | $84.91 | | |
| HOGEN | Hospital GEN | 0.3902502903 | $444,358 | $444,358 | $173.41 | | |
| CE | County Current Expense | 0.3708482477 | $444,358 | $444,358 | $164.79 | | |
| CR | County Roads | 0.4584763726 | $444,358 | $444,358 | $203.73 | | |
| ISLANDEMS | Hospital GEN (EMS) | 0.5000000000 | $444,358 | $444,358 | $222.18 | | |
| LIB | Library Sno-Isle GEN | 0.3153421757 | $444,358 | $444,358 | $140.12 | | |
| NWHIDPRMT | P & R N Whidbey GEN | 0.2004466701 | $444,358 | $444,358 | $89.07 | | |
| SCH201MO | School 201 Enrichment | 1.8559231640 | $444,358 | $444,358 | $824.69 | | |
| ST | State School | 1.3035497053 | $444,358 | $444,358 | $579.24 | | |
| ST2 | State School Part 2 | 0.8169543533 | $444,358 | $444,358 | $363.02 | | |
| | Total Tax Rate: | 6.9861102925 | | | | | |
| | | | | Taxes w/Current Exemptions: | $3,104.32 | | |
| | | | | Taxes w/o Exemptions: | $3,104.32 | | |
Improvement / Building
| Improvement #1: | MANUFACTURED HOME | State Code: | Y | 1914.0 sqft | Value: | $144,358 |
| Bathrooms: | 0 | Bedrooms: | 0 | | Ceiling: | PLASTER PAINTED | Cooling: | EVAP NO DUCT | | Exterior Wall/Cover: | VINYL | Floor Covering: | CARPET 100% | | Floor Structure: | SLAB ON GRADE | Foundation: | SLAB | | Heating: | FHA ELECTRIC | Interior Finish: | PLASTER | | Plumbing Fixture Cnt: | 1 | Roof Slope: | FLAT | | Roof Structure/Cover: | CJ ALUMINIUM HEAVY |   |   |
|
| | Type | Description | Class CD | Sub Class CD | Year Built | Area |
| | BAS | BASE/MAIN FLOOR | 4 | 0 | 1998 | 1914.0 |
| | ENP | ENCLOSED PORCH | 4 | 0 | 1998 | 256.0 |
| | OWP | OPEN WOOD PORCH W/STEPS | 4 | 0 | 1998 | 246.0 |
Sketch
Property Image
Land
| 1 | 32 | AC (03.01-09.99) | 5.0000 | 0.00 | 0.00 | 0.00 | 1.00 | $300,000 | $0 |
Roll Value History
| 2026 | N/A | N/A | N/A | N/A | N/A |
| 2025 | $144,358 | $300,000 | $0 | $444,358 | $444,358 |
| 2024 | $148,603 | $280,000 | $0 | $428,603 | $428,603 |
| 2023 | $132,908 | $270,000 | $0 | $402,908 | $402,908 |
| 2022 | $102,390 | $240,000 | $0 | $342,390 | $342,390 |
| 2021 | $91,577 | $175,000 | $0 | $266,577 | $266,577 |
| 2020 | $90,127 | $150,000 | $0 | $240,127 | $240,127 |
| 2019 | $72,944 | $185,000 | $0 | $257,944 | $257,944 |
| 2018 | $74,888 | $170,000 | $0 | $244,888 | $244,888 |
| 2017 | $76,834 | $150,000 | $0 | $226,834 | $226,834 |
| 2016 | $98,427 | $140,000 | $0 | $238,427 | $238,427 |
| 2015 | $100,922 | $120,000 | $0 | $220,922 | $220,922 |
| 2014 | $103,418 | $100,000 | $0 | $203,418 | $203,418 |
| 2013 | $105,913 | $112,500 | $0 | $218,413 | $218,413 |
| 2012 | $108,409 | $112,500 | $0 | $220,909 | $220,909 |
| 2011 | $110,904 | $125,000 | $0 | $235,904 | $235,904 |
| 2010 | $138,993 | $125,000 | $0 | $263,993 | $263,993 |
| 2009 | $144,573 | $125,000 | $0 | $269,573 | $269,573 |
| 2008 | $149,337 | $147,500 | $0 | $296,837 | $296,837 |
| 2007 | $151,423 | $147,500 | $0 | $298,923 | $298,923 |
Deed and Sales History
| 1 | 10/30/2015 | CCOMPROP | Create Community Property | ROBINSON JR, RONNIE | ROBINSON JR, RONNIE | | | $0.00 | 22068 | 4389027 |
| 2 | 12/14/2011 | ESTSEPPROP | Establish Separate Property | ROBINSON JR, RONNIE | ROBINSON JR, RONNIE | | | $0.00 | 6421 | 4306520 |
| 3 | 12/14/2011 | WD | Warranty Deed | BOS, BRYON K | ROBINSON JR, RONNIE | | | $213,697.00 | 6420 | 4306519 |
| 4 | 10/01/1998 | PACD | Purchaser's Assignment | BOS, BRYON K | BOS, BRYON K | | | $74,850.00 | 0 | 0 |
| 5 | 08/19/1998 | WD | Warranty Deed | DRUMHELLER, GLENN/REBECCA A | BOS, BRYON K | | | $35,000.00 | 83483 | 98018150 |
| 6 | 01/01/1994 | WD | Warranty Deed | HONSBERGER, DELBERT | DRUMHELLER, GLENN/REBECCA A | | | $22,500.00 | 40422 | 94002569 |
| 7 | 01/01/1979 | OTHER | Other - Misc. Documents | BOS, BRYON K | HONSBERGER, DELBERT | | | $15,900.00 | 90236 | 346044 |
Payout Agreement
| No payout information available.. |