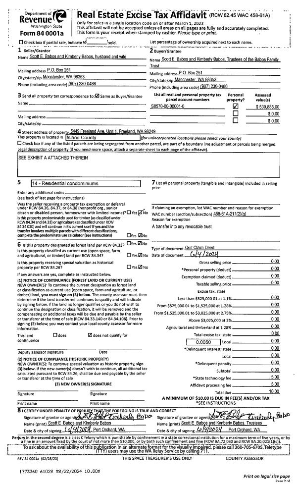
Property
Account |
| Property ID: | 333455 | Abbreviated Legal Description: | OAK GROVE PT LOT 8 & N/2 LOT 7 BLK 5 DESC: BG NWCR SD LOT 8 N82*E94.95'ALG NLN LOTS 8 & 7 S0*W129.03' S85*W94.5'TO WLN SD LOT 8 N0*E125'TPB TGW & SUB EZ AF#91006238 |
| Geographic ID: | S7580-00-05008-0 | Agent Code: | |
| Type: | Real | | |
| Tax Area: | 100 - APPRAISER-OH Schl Dist, in OH | Land Use Code | 12 |
| Open Space: | N | DFL | N |
| Historic Property: | N | Remodel Property: | N |
| Multi-Family Redevelopment: | N | | |
| Township: | | Section: | |
| Range: | |
Location |
| Address: | 1320 SE 10TH CT OAK HARBOR, WA 98277 | Mapsco: | |
| Neighborhood: | 13cOH-se 9th av | Map ID: | 89 |
| Neighborhood CD: | 13cOHse9th |
Owner |
| Name: | MOORE, KIMBERLY | Owner ID: | 107883 |
| Mailing Address: | 17212 NEWBERG RD SNOHOMISH, WA 98290-0909 | % Ownership: | 100.0000000000% |
| | | Exemptions: | |
Taxes and Assessment Details
Values
| (+) Improvement Homesite Value: | + | $0 | |
| (+) Improvement Non-Homesite Value: | + | $396,688 | |
| (+) Land Homesite Value: | + | $0 | |
| (+) Land Non-Homesite Value: | + | $320,155 | |
| (+) Curr Use (HS): | + | $0 | $0 |
| (+) Curr Use (NHS): | + | $0 | $0 |
| | | -------------------------- | |
| (=) Market Value: | = | $716,843 | |
| (–) Productivity Loss: | – | $0 | |
| | | -------------------------- | |
| (=) Subtotal: | = | $716,843 | |
| (+) Senior Appraised Value: | + | $0 | |
| (+) Non-Senior Appraised Value: | + | $716,843 | |
| | | -------------------------- | |
| (=) Total Appraised Value: | = | $716,843 | |
| (–) Senior Exemption Loss: | – | $0 | |
| (–) Exemption Loss: | – | $0 | |
| | | -------------------------- | |
| (=) Taxable Value: | = | $716,843 | |
Taxing Jurisdiction
| Owner: | MOORE, KIMBERLY | | |
| % Ownership: | 100.0000000000% | | |
| Total Value: | $716,843 | | |
| Tax Area: | 100 - APPRAISER-OH Schl Dist, in OH |
| CF | Conservation Futures | 0.0316035091 | $716,843 | $716,843 | $22.65 | | |
| CEM1 | Cemetery #1 | 0.0040320932 | $716,843 | $716,843 | $2.89 | | |
| COH | City of Oak Harbor | 2.3001546061 | $716,843 | $716,843 | $1,648.85 | | |
| OAKBOND | City of Oak Harbor BOND | 0.1926904192 | $716,843 | $716,843 | $138.13 | | |
| HOBOND | Hospital BOND | 0.1910887512 | $716,843 | $716,843 | $136.98 | | |
| HOGEN | Hospital GEN | 0.3902502903 | $716,843 | $716,843 | $279.75 | | |
| CE | County Current Expense | 0.3708482477 | $716,843 | $716,843 | $265.84 | | |
| ISLANDEMS | Hospital GEN (EMS) | 0.5000000000 | $716,843 | $716,843 | $358.42 | | |
| LIB | Library Sno-Isle GEN | 0.3153421757 | $716,843 | $716,843 | $226.05 | | |
| NWHIDPRMT | P & R N Whidbey GEN | 0.2004466701 | $716,843 | $716,843 | $143.69 | | |
| SCH201MO | School 201 Enrichment | 1.8559231640 | $716,843 | $716,843 | $1,330.41 | | |
| ST | State School | 1.3035497053 | $716,843 | $716,843 | $934.44 | | |
| ST2 | State School Part 2 | 0.8169543533 | $716,843 | $716,843 | $585.63 | | |
| | Total Tax Rate: | 8.4728839852 | | | | | |
| | | | | Taxes w/Current Exemptions: | $6,073.73 | | |
| | | | | Taxes w/o Exemptions: | $6,073.73 | | |
Improvement / Building
| Improvement #1: | COMMERCIAL | State Code: | B4 | 3728.0 sqft | Value: | $396,688 |
| Bathrooms: | 4 | Bedrooms: | 8 | | Ceiling: | DRYWALL PAINTED | Exterior Wall/Cover: | COMMON BRICK VENEER | | Floor Covering: | CARPET/VINYL 80-20 | Floor Structure: | WOOD W/SUBFLOOR | | Foundation: | CONCRETE | Heating: | BASEBOARD ELECTRIC | | Interior Finish: | DRYWALL PAINT | Plumbing Fixture Cnt: | 24 | | Roof Slope: | 3" IN 12" | Roof Structure/Cover: | CJ ALUMINIUM HEAVY |
|
| | Type | Description | Class CD | Sub Class CD | Year Built | Area |
| | BAS | BASE/MAIN FLOOR | 3 | 0 | 1962 | 1934.0 |
| | OP1 | OPEN PORCH SLAB | 3 | 0 | 1962 | 195.0 |
| | OP1 | OPEN PORCH SLAB | 3 | 0 | 1962 | 64.0 |
| | UTY | STORAGE/UTILITY | 3 | 0 | 1962 | 140.0 |
| | DWN | DOWNSTAIRS LIVING AREA | 3 | 0 | 1962 | 1794.0 |
| | OWR | OPEN WOOD PORCH W/STEPS/ROOF | 3 | 0 | 1962 | 60.0 |
| | OWR | OPEN WOOD PORCH W/STEPS/ROOF | 3 | 0 | 1962 | 72.0 |
| | OWP | OPEN WOOD PORCH W/STEPS | 3 | 0 | 1962 | 96.0 |
| | OP1 | OPEN PORCH SLAB | 3 | 0 | 1962 | 16.0 |
| | OP2 | OPEN PORCH W/STEPS | 3 | 0 | 1962 | 60.0 |
| | OP2 | OPEN PORCH W/STEPS | 3 | 0 | 1962 | 100.0 |
| | oPV1 | PV/ASPH 2" | 3 | 0 | 1962 | 1300.0 |
Sketch
Property Image
Land
| 1 | 61 | MULTIPLE RESIDENCES | 0.2784 | 12127.10 | 0.00 | 0.00 | 1.00 | $320,155 | $0 |
Roll Value History
| 2026 | N/A | N/A | N/A | N/A | N/A |
| 2025 | $396,688 | $320,155 | $0 | $716,843 | $716,843 |
| 2024 | $402,483 | $320,155 | $0 | $722,638 | $722,638 |
| 2023 | $379,825 | $320,155 | $0 | $699,980 | $699,980 |
| 2022 | $328,234 | $320,155 | $0 | $648,389 | $648,389 |
| 2021 | $307,038 | $320,155 | $0 | $627,193 | $627,193 |
| 2020 | $303,311 | $320,155 | $0 | $623,466 | $623,466 |
| 2019 | $257,934 | $320,155 | $0 | $578,089 | $578,089 |
| 2018 | $258,322 | $277,468 | $0 | $535,790 | $535,790 |
| 2017 | $281,521 | $128,062 | $0 | $409,583 | $409,583 |
| 2016 | $281,521 | $128,062 | $0 | $409,583 | $409,583 |
| 2015 | $281,521 | $134,721 | $0 | $416,242 | $416,242 |
| 2014 | $281,521 | $134,721 | $0 | $416,242 | $416,242 |
| 2013 | $281,521 | $134,721 | $0 | $416,242 | $416,242 |
| 2012 | $281,521 | $134,721 | $0 | $416,242 | $416,242 |
| 2011 | $281,521 | $134,721 | $0 | $416,242 | $416,242 |
| 2010 | $254,687 | $134,721 | $0 | $389,408 | $389,408 |
| 2009 | $258,235 | $161,794 | $0 | $420,029 | $420,029 |
| 2008 | $261,784 | $170,281 | $0 | $432,065 | $432,065 |
| 2007 | $265,332 | $170,281 | $0 | $435,613 | $435,613 |
Deed and Sales History
| 1 | 04/03/2008 | QCD | Quit Claim Deed | MOORE, KIMBERLY | MOORE, KIMBERLY | | | $0.00 | 81798 | 4232588 |
| 2 | 01/24/2006 | ESTSEPPROP | Establish Separate Property | MOORE, KIMBERLY | MOORE, KIMBERLY | | | $0.00 | 6033 | 4160878 |
| 3 | 01/24/2006 | WD | Warranty Deed | KOETJE, KAREL ANN | MOORE, KIMBERLY | | | $379,000.00 | 60374 | 4160879 |
| 4 | 11/11/2002 | WD | Warranty Deed | EERKES, MARY P | KOETJE, KAREL ANN | | | $269,500.00 | 24607 | 4037641 |
| 5 | 12/01/1990 | QCD | Quit Claim Deed | EERKES, MARY P | EERKES, MARY P | | | $0.00 | 6680 | 90023344 |
| 6 | 01/01/1900 | OTHER | Other - Misc. Documents | Unknown | EERKES, MARY P | | | $0.00 | 0 | 0 |
Payout Agreement
| No payout information available.. |