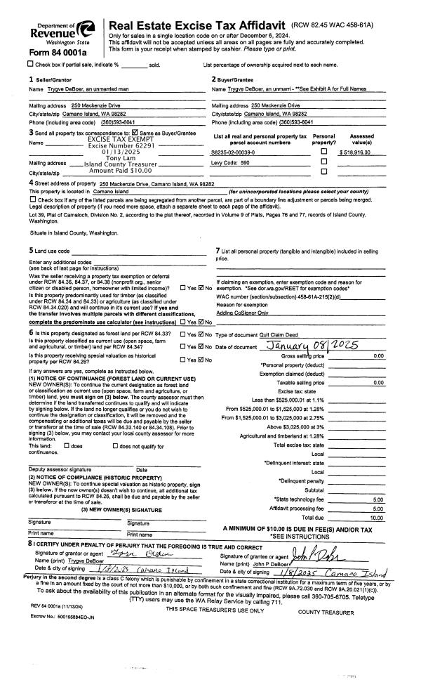
Property
Account |
| Property ID: | 333829 | Abbreviated Legal Description: | OAK HARBOR LOT 15 |
| Geographic ID: | S7585-00-00015-0 | Agent Code: | |
| Type: | Real | | |
| Tax Area: | 100 - APPRAISER-OH Schl Dist, in OH | Land Use Code | 13 |
| Open Space: | N | DFL | N |
| Historic Property: | N | Remodel Property: | N |
| Multi-Family Redevelopment: | N | | |
| Township: | | Section: | |
| Range: | |
Location |
| Address: | 1051 SE 8TH AVE OAK HARBOR, WA 98277 | Mapsco: | |
| Neighborhood: | 12cOH-se 8th av | Map ID: | 89 |
| Neighborhood CD: | 12cOHse8th |
Owner |
| Name: | LY DEVELOPMENT LLC | Owner ID: | 313010 |
| Mailing Address: | C/O ACORN MOTOR INN 31530 SR 20 OAK HARBOR, WA 98277 | % Ownership: | 100.0000000000% |
| | | Exemptions: | |
Taxes and Assessment Details
Values
| (+) Improvement Homesite Value: | + | $0 | |
| (+) Improvement Non-Homesite Value: | + | $506,973 | |
| (+) Land Homesite Value: | + | $0 | |
| (+) Land Non-Homesite Value: | + | $216,014 | |
| (+) Curr Use (HS): | + | $0 | $0 |
| (+) Curr Use (NHS): | + | $0 | $0 |
| | | -------------------------- | |
| (=) Market Value: | = | $722,987 | |
| (–) Productivity Loss: | – | $0 | |
| | | -------------------------- | |
| (=) Subtotal: | = | $722,987 | |
| (+) Senior Appraised Value: | + | $0 | |
| (+) Non-Senior Appraised Value: | + | $722,987 | |
| | | -------------------------- | |
| (=) Total Appraised Value: | = | $722,987 | |
| (–) Senior Exemption Loss: | – | $0 | |
| (–) Exemption Loss: | – | $0 | |
| | | -------------------------- | |
| (=) Taxable Value: | = | $722,987 | |
Taxing Jurisdiction
| Owner: | LY DEVELOPMENT LLC | | |
| % Ownership: | 100.0000000000% | | |
| Total Value: | $722,987 | | |
| Tax Area: | 100 - APPRAISER-OH Schl Dist, in OH |
| CF | Conservation Futures | 0.0316035091 | $722,987 | $722,987 | $22.85 | | |
| CEM1 | Cemetery #1 | 0.0040320932 | $722,987 | $722,987 | $2.92 | | |
| COH | City of Oak Harbor | 2.3001546061 | $722,987 | $722,987 | $1,662.98 | | |
| OAKBOND | City of Oak Harbor BOND | 0.1926904192 | $722,987 | $722,987 | $139.31 | | |
| HOBOND | Hospital BOND | 0.1910887512 | $722,987 | $722,987 | $138.15 | | |
| HOGEN | Hospital GEN | 0.3902502903 | $722,987 | $722,987 | $282.15 | | |
| CE | County Current Expense | 0.3708482477 | $722,987 | $722,987 | $268.12 | | |
| ISLANDEMS | Hospital GEN (EMS) | 0.5000000000 | $722,987 | $722,987 | $361.49 | | |
| LIB | Library Sno-Isle GEN | 0.3153421757 | $722,987 | $722,987 | $227.99 | | |
| NWHIDPRMT | P & R N Whidbey GEN | 0.2004466701 | $722,987 | $722,987 | $144.92 | | |
| SCH201MO | School 201 Enrichment | 1.8559231640 | $722,987 | $722,987 | $1,341.81 | | |
| ST | State School | 1.3035497053 | $722,987 | $722,987 | $942.45 | | |
| ST2 | State School Part 2 | 0.8169543533 | $722,987 | $722,987 | $590.65 | | |
| | Total Tax Rate: | 8.4728839852 | | | | | |
| | | | | Taxes w/Current Exemptions: | $6,125.79 | | |
| | | | | Taxes w/o Exemptions: | $6,125.79 | | |
Improvement / Building
| Improvement #1: | RESIDENTIAL/COMMERCIAL | State Code: | B4 | 4790.0 sqft | Value: | $506,973 |
| Bathrooms: | 8 | Bedrooms: | 8 | | Ceiling: | DRYWALL PAINTED | Exterior Wall/Cover: | VINYL | | Floor Covering: | CARPET/VINYL 80-20 | Floor Structure: | WOOD W/SUBFLOOR | | Foundation: | CONCRETE | Heating: | RAD HOT WATER-GAS | | Interior Finish: | DRYWALL PAINT | Plumbing Fixture Cnt: | 27 | | Roof Slope: | 5" IN 12" | Roof Structure/Cover: | CJ ASPHALT |
|
| | Type | Description | Class CD | Sub Class CD | Year Built | Area |
| | BAS | BASE/MAIN FLOOR | 3 | 0 | 1992 | 1750.0 |
| | OP1 | OPEN PORCH SLAB | 3 | 0 | 1992 | 972.0 |
| | UTY | STORAGE/UTILITY | 3 | 0 | 1992 | 35.0 |
| | UTY | STORAGE/UTILITY | 3 | 0 | 1992 | 35.0 |
| | UTY | STORAGE/UTILITY | 3 | 0 | 1992 | 30.0 |
| | UPS | UPPER STORY | 3 | 0 | 1992 | 3040.0 |
| | OWC | OPEN WOOD PORCH W/STEPS/ROOF/C | 3 | 0 | 1992 | 50.0 |
| | OWC | OPEN WOOD PORCH W/STEPS/ROOF/C | 3 | 0 | 1992 | 50.0 |
| | OWC | OPEN WOOD PORCH W/STEPS/ROOF/C | 3 | 0 | 1992 | 50.0 |
| | OWP | OPEN WOOD PORCH W/STEPS | 3 | 0 | 1992 | 68.0 |
| | oPV1 | PV/ASPH 2" | 3 | 0 | 1992 | 1740.0 |
Sketch
Property Image
Land
| 1 | 61 | MULTIPLE RESIDENCES | 0.1653 | 7200.47 | 0.00 | 0.00 | 1.00 | $216,014 | $0 |
Roll Value History
| 2026 | N/A | N/A | N/A | N/A | N/A |
| 2025 | $506,973 | $216,014 | $0 | $722,987 | $722,987 |
| 2024 | $385,228 | $216,014 | $0 | $601,242 | $601,242 |
| 2023 | $352,566 | $216,014 | $0 | $568,580 | $568,580 |
| 2022 | $286,564 | $216,014 | $0 | $502,578 | $502,578 |
| 2021 | $284,953 | $216,014 | $0 | $500,967 | $500,967 |
| 2020 | $284,681 | $216,014 | $0 | $500,695 | $500,695 |
| 2019 | $274,519 | $216,014 | $0 | $490,533 | $490,533 |
| 2018 | $274,550 | $187,212 | $0 | $461,762 | $461,762 |
| 2017 | $331,115 | $57,604 | $0 | $388,719 | $388,719 |
| 2016 | $331,115 | $57,604 | $0 | $388,719 | $388,719 |
| 2015 | $331,115 | $72,005 | $0 | $403,120 | $403,120 |
| 2014 | $331,115 | $61,416 | $0 | $392,531 | $392,531 |
| 2013 | $331,115 | $61,416 | $0 | $392,531 | $392,531 |
| 2012 | $331,115 | $61,416 | $0 | $392,531 | $392,531 |
| 2011 | $331,115 | $61,416 | $0 | $392,531 | $392,531 |
| 2010 | $329,627 | $61,416 | $0 | $391,043 | $391,043 |
| 2009 | $333,519 | $65,592 | $0 | $399,111 | $399,111 |
| 2008 | $337,635 | $69,048 | $0 | $406,683 | $406,683 |
| 2007 | $341,753 | $69,048 | $0 | $410,801 | $410,801 |
Deed and Sales History
| 1 | 06/25/2024 | WD | Warranty Deed | FAIRFAX PROPERTIES, LLC | LY DEVELOPMENT LLC | | | $3,245,000.00 | 60511 | 4574085 |
|   | |
| 2 | 07/13/2017 | QCD | Quit Claim Deed | FAIRFAX LTD PARTNERSHIP III | FAIRFAX PROPERTIES, LLC | | | $0.00 | 30246 | 4426534 |
| 3 | 12/01/1994 | QCD | Quit Claim Deed | FAIRFAX, GEORGE T | FAIRFAX, LTD P | | | $0.00 | 45215 | 94026324 |
| 4 | 01/01/1900 | OTHER | Other - Misc. Documents | Unknown | FAIRFAX, GEORGE T | | | $0.00 | 0 | 0 |
Payout Agreement
| No payout information available.. |