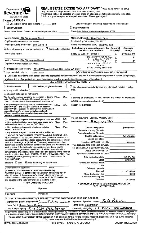
Property
Account |
| Property ID: | 333865 | Abbreviated Legal Description: | OAK HARBOR N70'LOT 24 |
| Geographic ID: | S7585-00-00024-1 | Agent Code: | |
| Type: | Real | | |
| Tax Area: | 100 - APPRAISER-OH Schl Dist, in OH | Land Use Code | 62 |
| Open Space: | N | DFL | N |
| Historic Property: | N | Remodel Property: | N |
| Multi-Family Redevelopment: | N | | |
| Township: | | Section: | |
| Range: | |
Location |
| Address: | 1080 SE PIONEER WAY OAK HARBOR, WA 98277 | Mapsco: | |
| Neighborhood: | 12cOH-se midway | Map ID: | 89 |
| Neighborhood CD: | 12cOHsemid |
Owner |
| Name: | PROSPERITY INVESTMENTS FAMILY LP | Owner ID: | 184788 |
| Mailing Address: | 1582 SCENIC HEIGHTS RD OAK HARBOR, WA 98277-8415 | % Ownership: | 100.0000000000% |
| | | Exemptions: | |
Taxes and Assessment Details
Values
| (+) Improvement Homesite Value: | + | $0 | |
| (+) Improvement Non-Homesite Value: | + | $97,117 | |
| (+) Land Homesite Value: | + | $0 | |
| (+) Land Non-Homesite Value: | + | $58,789 | |
| (+) Curr Use (HS): | + | $0 | $0 |
| (+) Curr Use (NHS): | + | $0 | $0 |
| | | -------------------------- | |
| (=) Market Value: | = | $155,906 | |
| (–) Productivity Loss: | – | $0 | |
| | | -------------------------- | |
| (=) Subtotal: | = | $155,906 | |
| (+) Senior Appraised Value: | + | $0 | |
| (+) Non-Senior Appraised Value: | + | $155,906 | |
| | | -------------------------- | |
| (=) Total Appraised Value: | = | $155,906 | |
| (–) Senior Exemption Loss: | – | $0 | |
| (–) Exemption Loss: | – | $0 | |
| | | -------------------------- | |
| (=) Taxable Value: | = | $155,906 | |
Taxing Jurisdiction
| Owner: | PROSPERITY INVESTMENTS FAMILY LP | | |
| % Ownership: | 100.0000000000% | | |
| Total Value: | $155,906 | | |
| Tax Area: | 100 - APPRAISER-OH Schl Dist, in OH |
| CF | Conservation Futures | 0.0316035091 | $155,906 | $155,906 | $4.93 | | |
| CEM1 | Cemetery #1 | 0.0040320932 | $155,906 | $155,906 | $0.63 | | |
| COH | City of Oak Harbor | 2.3001546061 | $155,906 | $155,906 | $358.61 | | |
| OAKBOND | City of Oak Harbor BOND | 0.1926904192 | $155,906 | $155,906 | $30.04 | | |
| HOBOND | Hospital BOND | 0.1910887512 | $155,906 | $155,906 | $29.79 | | |
| HOGEN | Hospital GEN | 0.3902502903 | $155,906 | $155,906 | $60.84 | | |
| CE | County Current Expense | 0.3708482477 | $155,906 | $155,906 | $57.82 | | |
| ISLANDEMS | Hospital GEN (EMS) | 0.5000000000 | $155,906 | $155,906 | $77.95 | | |
| LIB | Library Sno-Isle GEN | 0.3153421757 | $155,906 | $155,906 | $49.16 | | |
| NWHIDPRMT | P & R N Whidbey GEN | 0.2004466701 | $155,906 | $155,906 | $31.25 | | |
| SCH201MO | School 201 Enrichment | 1.8559231640 | $155,906 | $155,906 | $289.35 | | |
| ST | State School | 1.3035497053 | $155,906 | $155,906 | $203.23 | | |
| ST2 | State School Part 2 | 0.8169543533 | $155,906 | $155,906 | $127.37 | | |
| | Total Tax Rate: | 8.4728839852 | | | | | |
| | | | | Taxes w/Current Exemptions: | $1,320.97 | | |
| | | | | Taxes w/o Exemptions: | $1,320.97 | | |
Improvement / Building
| Improvement #1: | COMMERCIAL | State Code: | F1 | 1750.0 sqft | Value: | $97,117 |
| Bathrooms: | 0 | Ceiling: | PAINT OPEN FLOOR BAS | | Exterior Wall/Cover: | 8" CONC BLK/CON FRAM | Floor Covering: | CONCRETE SEALER | | Floor Structure: | CONCRETE ON GROUND | Foundation: | SLAB | | Heating: | SPACE HEATERS | Interior Finish: | CHURCH | | Plumbing Fixture Cnt: | 1 | Roof Structure/Cover: | BEAM BUILT-UP ROCK |
|
| | Type | Description | Class CD | Sub Class CD | Year Built | Area |
| | BAS | BASE/MAIN FLOOR | 2 | 0 | 1955 | 1750.0 |
| | OP3 | OPEN PORCH W/ROOF | 2 | 0 | 1955 | 50.0 |
| | OCP | OPEN CARPORT | 2 | 0 | 1955 | 252.0 |
| | OP2 | OPEN PORCH W/STEPS | 2 | 0 | 1955 | 80.0 |
| | oPV1 | PV/ASPH 2" | 2 | 0 | 1955 | 1300.0 |
Sketch
Property Image
Land
| 1 | 68 | COMMERCIAL RETAIL | 0.0964 | 4199.18 | 0.00 | 0.00 | 1.00 | $58,789 | $0 |
Roll Value History
| 2026 | N/A | N/A | N/A | N/A | N/A |
| 2025 | $97,117 | $58,789 | $0 | $155,906 | $155,906 |
| 2024 | $101,357 | $58,789 | $0 | $160,146 | $160,146 |
| 2023 | $57,919 | $58,789 | $0 | $116,708 | $116,708 |
| 2022 | $44,228 | $58,789 | $0 | $103,017 | $103,017 |
| 2021 | $43,810 | $58,789 | $0 | $102,599 | $102,599 |
| 2020 | $43,770 | $58,789 | $0 | $102,559 | $102,559 |
| 2019 | $40,361 | $46,191 | $0 | $86,552 | $86,552 |
| 2018 | $40,361 | $41,992 | $0 | $82,353 | $82,353 |
| 2017 | $48,426 | $41,992 | $0 | $90,418 | $90,418 |
| 2016 | $48,462 | $41,992 | $0 | $90,454 | $90,454 |
| 2015 | $48,858 | $51,072 | $0 | $99,930 | $99,930 |
| 2014 | $48,110 | $51,072 | $0 | $99,182 | $99,182 |
| 2013 | $37,544 | $51,072 | $0 | $88,616 | $88,616 |
| 2012 | $73,584 | $51,072 | $0 | $124,656 | $124,656 |
| 2011 | $73,584 | $51,072 | $0 | $124,656 | $124,656 |
| 2010 | $43,569 | $51,072 | $0 | $94,641 | $94,641 |
| 2009 | $44,991 | $54,516 | $0 | $99,507 | $99,507 |
| 2008 | $47,837 | $57,372 | $0 | $105,209 | $105,209 |
| 2007 | $49,260 | $57,372 | $0 | $106,632 | $106,632 |
Deed and Sales History
| 1 | 11/27/2012 | WD | Warranty Deed | FORTNER JTWROS, BRIGITTA M | PROSPERITY INVESTMENTS FAMILY LP | | | $85,000.00 | 9614 | 4328136 |
|   | |
| 2 | 12/07/2011 | QCD | Quit Claim Deed | FORTNER, BRIGITTA M | FORTNER JTWROS, BRIGITTA M | | | $0.00 | 6387 | 4306382 |
| 3 | 12/14/2011 | PRD | Personal Representatives Deed | FORTNER, GEORGE L | FORTNER, BRIGITTA M | | | | 53807 | 4143107 |
| 4 | 02/01/1982 | PACD | Purchaser's Assignment | HOWARD, KENNETH A | FORTNER, GEORGE | | | $30,495.00 | 20473 | 393601 |
| 5 | 11/01/1979 | REC | Real Estate Contract | HELLER, SIMON | HOWARD, KENNETH A | | | $25,000.00 | 95579 | 362092 |
| 6 | 01/01/1900 | OTHER | Other - Misc. Documents | Unknown | HELLER, SIMON | | | $0.00 | 0 | 0 |
Payout Agreement
| No payout information available.. |