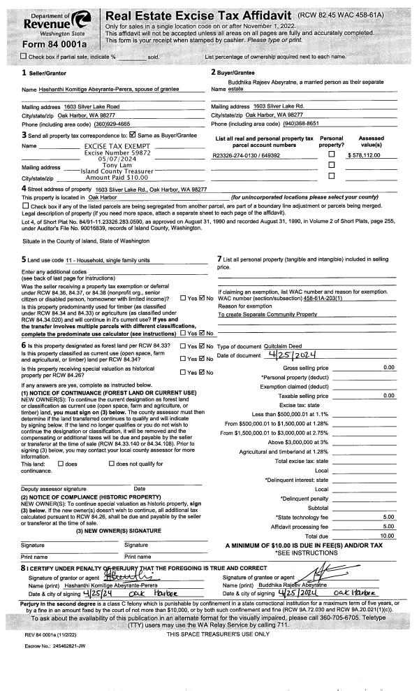
Property
Account |
| Property ID: | 334114 | Abbreviated Legal Description: | OAK HARBOR LOTS 51 & 52 |
| Geographic ID: | S7585-00-00051-0 | Agent Code: | |
| Type: | Real | | |
| Tax Area: | 100 - APPRAISER-OH Schl Dist, in OH | Land Use Code | 59 |
| Open Space: | N | DFL | N |
| Historic Property: | N | Remodel Property: | N |
| Multi-Family Redevelopment: | N | | |
| Township: | | Section: | |
| Range: | |
Location |
| Address: | 980 SE PIONEER WAY OAK HARBOR, WA 98277 | Mapsco: | |
| Neighborhood: | 12cOH-pioneer way | Map ID: | 87 |
| Neighborhood CD: | 12cOHpionr |
Owner |
| Name: | COFFEE GROUND LLC | Owner ID: | 78379 |
| Mailing Address: | PO BOX 309 CLINTON, WA 98236-0309 | % Ownership: | 100.0000000000% |
| | | Exemptions: | |
Taxes and Assessment Details
Values
| (+) Improvement Homesite Value: | + | $0 | |
| (+) Improvement Non-Homesite Value: | + | $265,833 | |
| (+) Land Homesite Value: | + | $0 | |
| (+) Land Non-Homesite Value: | + | $297,602 | |
| (+) Curr Use (HS): | + | $0 | $0 |
| (+) Curr Use (NHS): | + | $0 | $0 |
| | | -------------------------- | |
| (=) Market Value: | = | $563,435 | |
| (–) Productivity Loss: | – | $0 | |
| | | -------------------------- | |
| (=) Subtotal: | = | $563,435 | |
| (+) Senior Appraised Value: | + | $0 | |
| (+) Non-Senior Appraised Value: | + | $563,435 | |
| | | -------------------------- | |
| (=) Total Appraised Value: | = | $563,435 | |
| (–) Senior Exemption Loss: | – | $0 | |
| (–) Exemption Loss: | – | $0 | |
| | | -------------------------- | |
| (=) Taxable Value: | = | $563,435 | |
Taxing Jurisdiction
| Owner: | COFFEE GROUND LLC | | |
| % Ownership: | 100.0000000000% | | |
| Total Value: | $563,435 | | |
| Tax Area: | 100 - APPRAISER-OH Schl Dist, in OH |
| CF | Conservation Futures | 0.0316035091 | $563,435 | $563,435 | $17.81 | | |
| CEM1 | Cemetery #1 | 0.0040320932 | $563,435 | $563,435 | $2.27 | | |
| COH | City of Oak Harbor | 2.3001546061 | $563,435 | $563,435 | $1,295.99 | | |
| OAKBOND | City of Oak Harbor BOND | 0.1926904192 | $563,435 | $563,435 | $108.57 | | |
| HOBOND | Hospital BOND | 0.1910887512 | $563,435 | $563,435 | $107.67 | | |
| HOGEN | Hospital GEN | 0.3902502903 | $563,435 | $563,435 | $219.88 | | |
| CE | County Current Expense | 0.3708482477 | $563,435 | $563,435 | $208.95 | | |
| ISLANDEMS | Hospital GEN (EMS) | 0.5000000000 | $563,435 | $563,435 | $281.72 | | |
| LIB | Library Sno-Isle GEN | 0.3153421757 | $563,435 | $563,435 | $177.67 | | |
| NWHIDPRMT | P & R N Whidbey GEN | 0.2004466701 | $563,435 | $563,435 | $112.94 | | |
| SCH201MO | School 201 Enrichment | 1.8559231640 | $563,435 | $563,435 | $1,045.69 | | |
| ST | State School | 1.3035497053 | $563,435 | $563,435 | $734.47 | | |
| ST2 | State School Part 2 | 0.8169543533 | $563,435 | $563,435 | $460.30 | | |
| | Total Tax Rate: | 8.4728839852 | | | | | |
| | | | | Taxes w/Current Exemptions: | $4,773.93 | | |
| | | | | Taxes w/o Exemptions: | $4,773.93 | | |
Improvement / Building
| Improvement #1: | COMMERCIAL | State Code: | F1 | 1792.7 sqft | Value: | $265,833 |
| Bathrooms: | 2 | Ceiling: | DRYWALL PAINTED | | Cooling: | HEAT PUMP/CONV/V | Exterior Wall/Cover: | HARDBOARD/WOOD FRAME | | Floor Covering: | COLORED CONCRETE | Floor Structure: | CONCRETE ON GROUND | | Foundation: | SLAB | Interior Finish: | RESTAURANT | | Plumbing Fixture Cnt: | 9 | Roof Structure/Cover: | BUILT UP/STEEL JOIST |
|
| | Type | Description | Class CD | Sub Class CD | Year Built | Area |
| | BAS | BASE/MAIN FLOOR | 3 | 0 | 1954 | 1792.7 |
| | OP1 | OPEN PORCH SLAB | 3 | 0 | 1954 | 377.8 |
| | OP1 | OPEN PORCH SLAB | 3 | 0 | 1954 | 215.0 |
| | OP1 | OPEN PORCH SLAB | 3 | 0 | 1954 | 84.0 |
| | OCP | OPEN CARPORT | 3 | 0 | 1954 | 280.0 |
| | oPV1 | PV/ASPH 2" | 3 | 0 | 1954 | 8700.0 |
Sketch
Property Image
Land
| 1 | 68 | COMMERCIAL RETAIL | 0.2296 | 18600.12 | 0.00 | 0.00 | 1.00 | $297,602 | $0 |
Roll Value History
| 2026 | N/A | N/A | N/A | N/A | N/A |
| 2025 | $265,833 | $297,602 | $0 | $563,435 | $563,435 |
| 2024 | $273,189 | $297,602 | $0 | $570,791 | $570,791 |
| 2023 | $248,029 | $297,602 | $0 | $545,631 | $545,631 |
| 2022 | $205,365 | $297,602 | $0 | $502,967 | $502,967 |
| 2021 | $203,686 | $297,602 | $0 | $501,288 | $501,288 |
| 2020 | $203,442 | $297,602 | $0 | $501,044 | $501,044 |
| 2019 | $210,327 | $223,201 | $0 | $433,528 | $433,528 |
| 2018 | $210,352 | $186,001 | $0 | $396,353 | $396,353 |
| 2017 | $204,653 | $251,600 | $0 | $456,253 | $456,253 |
| 2016 | $204,680 | $251,600 | $0 | $456,280 | $456,280 |
| 2015 | $211,438 | $251,600 | $0 | $463,038 | $463,038 |
| 2014 | $55,490 | $240,870 | $0 | $296,360 | $296,360 |
| 2013 | $56,574 | $240,870 | $0 | $297,444 | $297,444 |
| 2012 | $64,821 | $240,870 | $0 | $305,691 | $305,691 |
| 2011 | $64,821 | $240,870 | $0 | $305,691 | $305,691 |
| 2010 | $72,690 | $240,870 | $0 | $313,560 | $313,560 |
| 2009 | $75,173 | $257,238 | $0 | $332,411 | $332,411 |
| 2008 | $76,435 | $270,816 | $0 | $347,251 | $347,251 |
| 2007 | $78,918 | $270,816 | $0 | $349,734 | $349,734 |
Deed and Sales History
| 1 | 07/26/2005 | 5 | DNU - Marriage License/Name Change | OLLIS TRUSTEE, M DAN | COFFEE GROUND LLC, | | | $0.00 | 54344 | 4148500 |
| 2 | 10/11/2004 | 5 | DNU - Marriage License/Name Change | OLLIS, M DAN | OLLIS TRUSTEE, M DAN | | | $0.00 | 45246 | 4117352 |
| 3 | 08/15/1998 | WD | Warranty Deed | STILL, CLELLEN J | OLLIS, M DAN | | | $175,000.00 | 84468 | 98024256 |
| 4 | 06/01/1990 | REC | Real Estate Contract | HAUN, MICHAEL W | STILL, CLELLEN J | | | $95,000.00 | 4140 | 90013570 |
| 5 | 12/01/1979 | CD | DNU - Correction Deed | MIDWAY, TIRES I | HAUN, MICHAEL W | | | $0.00 | 95805 | 362811 |
| 6 | 09/01/1979 | EXECUTORD | Executor Deed | MASSEY, W L | MIDWAY, TIRES I | | | $80,000.00 | 94468 | 358528 |
| 7 | 05/01/1978 | OTHER | Other - Misc. Documents | Unknown | MASSEY, W L | | | $40,000.00 | 824410 | 3335650 |
Payout Agreement
| No payout information available.. |