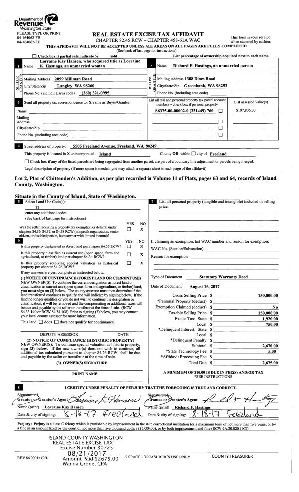
Property
Account |
| Property ID: | 334203 | Abbreviated Legal Description: | OAK HARBOR HSE APT C 7.27% INT IN BLDG |
| Geographic ID: | S7590-00-0000C-0 | Agent Code: | |
| Type: | Real | | |
| Tax Area: | 100 - APPRAISER-OH Schl Dist, in OH | Land Use Code | 14 |
| Open Space: | N | DFL | N |
| Historic Property: | N | Remodel Property: | N |
| Multi-Family Redevelopment: | N | | |
| Township: | | Section: | |
| Range: | |
Location |
| Address: | 51 NW COLUMBIA DR APT 101 OAK HARBOR, WA 98277 | Mapsco: | |
| Neighborhood: | 4B*OH-ok house | Map ID: | 253 |
| Neighborhood CD: | 4B*OHokhse |
Owner |
| Name: | MCNABB, STUART | Owner ID: | 281097 |
| Mailing Address: | PAMELA HUSCH 255 NE ERNST ST #8 OAK HARBOR, WA 98277-2543 | % Ownership: | 100.0000000000% |
| | | Exemptions: | |
Taxes and Assessment Details
Values
| (+) Improvement Homesite Value: | + | $0 | |
| (+) Improvement Non-Homesite Value: | + | $114,783 | |
| (+) Land Homesite Value: | + | $0 | |
| (+) Land Non-Homesite Value: | + | $65,000 | |
| (+) Curr Use (HS): | + | $0 | $0 |
| (+) Curr Use (NHS): | + | $0 | $0 |
| | | -------------------------- | |
| (=) Market Value: | = | $179,783 | |
| (–) Productivity Loss: | – | $0 | |
| | | -------------------------- | |
| (=) Subtotal: | = | $179,783 | |
| (+) Senior Appraised Value: | + | $0 | |
| (+) Non-Senior Appraised Value: | + | $179,783 | |
| | | -------------------------- | |
| (=) Total Appraised Value: | = | $179,783 | |
| (–) Senior Exemption Loss: | – | $0 | |
| (–) Exemption Loss: | – | $0 | |
| | | -------------------------- | |
| (=) Taxable Value: | = | $179,783 | |
Taxing Jurisdiction
| Owner: | MCNABB, STUART | | |
| % Ownership: | 100.0000000000% | | |
| Total Value: | $179,783 | | |
| Tax Area: | 100 - APPRAISER-OH Schl Dist, in OH |
| CF | Conservation Futures | 0.0316035091 | $179,783 | $179,783 | $5.68 | | |
| CEM1 | Cemetery #1 | 0.0040320932 | $179,783 | $179,783 | $0.72 | | |
| COH | City of Oak Harbor | 2.3001546061 | $179,783 | $179,783 | $413.53 | | |
| OAKBOND | City of Oak Harbor BOND | 0.1926904192 | $179,783 | $179,783 | $34.64 | | |
| HOBOND | Hospital BOND | 0.1910887512 | $179,783 | $179,783 | $34.35 | | |
| HOGEN | Hospital GEN | 0.3902502903 | $179,783 | $179,783 | $70.16 | | |
| CE | County Current Expense | 0.3708482477 | $179,783 | $179,783 | $66.67 | | |
| ISLANDEMS | Hospital GEN (EMS) | 0.5000000000 | $179,783 | $179,783 | $89.89 | | |
| LIB | Library Sno-Isle GEN | 0.3153421757 | $179,783 | $179,783 | $56.69 | | |
| NWHIDPRMT | P & R N Whidbey GEN | 0.2004466701 | $179,783 | $179,783 | $36.04 | | |
| SCH201MO | School 201 Enrichment | 1.8559231640 | $179,783 | $179,783 | $333.66 | | |
| ST | State School | 1.3035497053 | $179,783 | $179,783 | $234.36 | | |
| ST2 | State School Part 2 | 0.8169543533 | $179,783 | $179,783 | $146.87 | | |
| | Total Tax Rate: | 8.4728839852 | | | | | |
| | | | | Taxes w/Current Exemptions: | $1,523.26 | | |
| | | | | Taxes w/o Exemptions: | $1,523.26 | | |
Improvement / Building
| Improvement #1: | RESIDENTIAL | State Code: | A1 | 876.0 sqft | Value: | $114,783 |
| Bathrooms: | 1.5 | Bedrooms: | 2 | | Ceiling: | DRY WALL SPRAYED | Exterior Wall/Cover: | CONCRETE BLOCK | | Floor Covering: | CARPET/VINYL 80-20 | Floor Structure: | WOOD W/SUBFLOOR | | Foundation: | CONCRETE BLOCKS | Heating: | BASEBOARD ELECTRIC | | Interior Finish: | DRYWALL PAINT | Plumbing Fixture Cnt: | 8 | | Roof Slope: | FLAT | Roof Structure/Cover: | CJ BUILT-UP ROCK |
|
| | Type | Description | Class CD | Sub Class CD | Year Built | Area |
| | BAS | BASE/MAIN FLOOR | 2 | 0 | 1975 | 876.0 |
| | OP3 | OPEN PORCH W/ROOF | 2 | 0 | 1975 | 156.0 |
| | oSIT | Site Improvements | 2 | 0 | 1975 | 0.0 |
Sketch
Property Image
Land
| 1 | 61 | MULTIPLE RESIDENCES | 0.0000 | 3410.00 | 0.00 | 0.00 | 1.00 | $65,000 | $0 |
Roll Value History
| 2026 | N/A | N/A | N/A | N/A | N/A |
| 2025 | $114,783 | $65,000 | $0 | $179,783 | $179,783 |
| 2024 | $118,921 | $45,000 | $0 | $163,921 | $163,921 |
| 2023 | $120,689 | $45,000 | $0 | $165,689 | $165,689 |
| 2022 | $111,059 | $45,000 | $0 | $156,059 | $156,059 |
| 2021 | $98,192 | $25,000 | $0 | $123,192 | $123,192 |
| 2020 | $76,430 | $45,000 | $0 | $121,430 | $121,430 |
| 2019 | $54,013 | $70,000 | $0 | $124,013 | $124,013 |
| 2018 | $54,232 | $65,000 | $0 | $119,232 | $119,232 |
| 2017 | $54,668 | $20,631 | $0 | $75,299 | $75,299 |
| 2016 | $55,540 | $20,631 | $0 | $76,171 | $76,171 |
| 2015 | $56,413 | $20,631 | $0 | $77,044 | $77,044 |
| 2014 | $59,903 | $20,631 | $0 | $80,534 | $80,534 |
| 2013 | $59,903 | $20,631 | $0 | $80,534 | $80,534 |
| 2012 | $59,903 | $20,631 | $0 | $80,534 | $80,534 |
| 2011 | $59,903 | $20,631 | $0 | $80,534 | $80,534 |
| 2010 | $63,607 | $20,631 | $0 | $84,238 | $84,238 |
| 2009 | $66,412 | $37,510 | $0 | $103,922 | $103,922 |
| 2008 | $73,634 | $44,330 | $0 | $117,964 | $117,964 |
| 2007 | $74,599 | $44,330 | $0 | $118,929 | $118,929 |
Deed and Sales History
| 1 | 07/14/2017 | SPLTDWARDE | Special Limited Warranty Deed | BANK OF AMERICA | MCNABB, STUART | | | $100,000.00 | 30323 | 4426859 |
| 2 | 07/12/2016 | TRUSTEED | Trustee's Deed | VALDEZ, HILBERT H | BANK OF AMERICA | | | $68,800.00 | 25194 | 4403027 |
| 3 | 06/28/2016 | ESTSEPPROP | Establish Separate Property | VALDEZ, HILBERT H | VALDEZ, HILBERT H | | | $0.00 | 25031 | 4402246 |
| 4 | 04/11/2006 | 5 | DNU - Marriage License/Name Change | VALDEZ, HILBERT H | VALDEZ, HILBERT H | | | $0.00 | 61689 | 4168012 |
| 5 | 12/01/2005 | ESTSEPPROP | Establish Separate Property | VALDEZ, HILBERT H | VALDEZ, HILBERT H | | | $0.00 | 56031 | 4155927 |
| 6 | 12/01/2005 | WD | Warranty Deed | MARTIN, MARY M | VALDEZ, HILBERT H | | | $93,500.00 | 56030 | 4155926 |
| 7 | 07/01/1994 | WD | Warranty Deed | CHRISTENSEN, C P | MARTIN, MARY M | | | $50,500.00 | 42928 | 94015981 |
| 8 | 07/01/1978 | OTHER | Other - Misc. Documents | Unknown | CHRISTENSEN, C P | | | $30,950.00 | 83540 | 335865 |
Payout Agreement
| No payout information available.. |