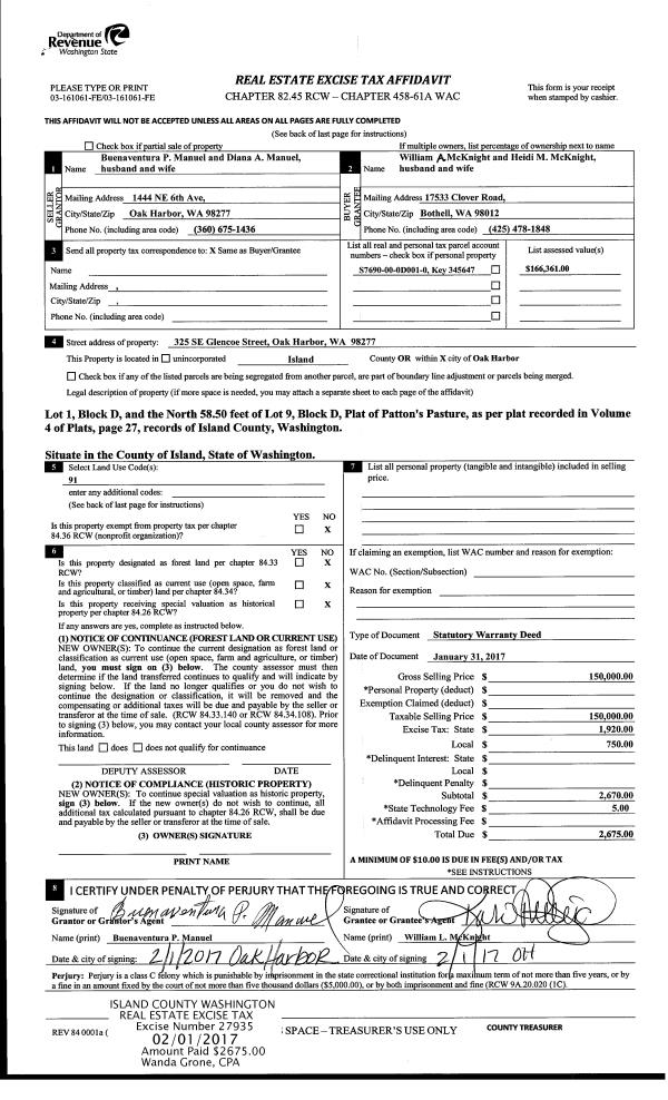
Property
Account |
| Property ID: | 334276 | Abbreviated Legal Description: | OAK HARBOR HSE APT J 7.27% INT IN BLDG |
| Geographic ID: | S7590-00-0000J-0 | Agent Code: | |
| Type: | Real | | |
| Tax Area: | 100 - APPRAISER-OH Schl Dist, in OH | Land Use Code | 14 |
| Open Space: | N | DFL | N |
| Historic Property: | N | Remodel Property: | N |
| Multi-Family Redevelopment: | N | | |
| Township: | | Section: | |
| Range: | |
Location |
| Address: | 51 NW COLUMBIA DR APT 204 OAK HARBOR, WA 98277 | Mapsco: | |
| Neighborhood: | 4B*OH-ok house | Map ID: | 253 |
| Neighborhood CD: | 4B*OHokhse |
Owner |
| Name: | ROOD, AMY S | Owner ID: | 310742 |
| Mailing Address: | 51 NW COLUMBIA DR UNIT #204 OAK HARBOR, WA 98277 | % Ownership: | 100.0000000000% |
| | | Exemptions: | |
Taxes and Assessment Details
Values
| (+) Improvement Homesite Value: | + | $0 | |
| (+) Improvement Non-Homesite Value: | + | $133,000 | |
| (+) Land Homesite Value: | + | $0 | |
| (+) Land Non-Homesite Value: | + | $65,000 | |
| (+) Curr Use (HS): | + | $0 | $0 |
| (+) Curr Use (NHS): | + | $0 | $0 |
| | | -------------------------- | |
| (=) Market Value: | = | $198,000 | |
| (–) Productivity Loss: | – | $0 | |
| | | -------------------------- | |
| (=) Subtotal: | = | $198,000 | |
| (+) Senior Appraised Value: | + | $0 | |
| (+) Non-Senior Appraised Value: | + | $198,000 | |
| | | -------------------------- | |
| (=) Total Appraised Value: | = | $198,000 | |
| (–) Senior Exemption Loss: | – | $0 | |
| (–) Exemption Loss: | – | $0 | |
| | | -------------------------- | |
| (=) Taxable Value: | = | $198,000 | |
Taxing Jurisdiction
| Owner: | ROOD, AMY S | | |
| % Ownership: | 100.0000000000% | | |
| Total Value: | $198,000 | | |
| Tax Area: | 100 - APPRAISER-OH Schl Dist, in OH |
| CF | Conservation Futures | 0.0316035091 | $198,000 | $198,000 | $6.26 | | |
| CEM1 | Cemetery #1 | 0.0040320932 | $198,000 | $198,000 | $0.80 | | |
| COH | City of Oak Harbor | 2.3001546061 | $198,000 | $198,000 | $455.43 | | |
| OAKBOND | City of Oak Harbor BOND | 0.1926904192 | $198,000 | $198,000 | $38.15 | | |
| HOBOND | Hospital BOND | 0.1910887512 | $198,000 | $198,000 | $37.84 | | |
| HOGEN | Hospital GEN | 0.3902502903 | $198,000 | $198,000 | $77.27 | | |
| CE | County Current Expense | 0.3708482477 | $198,000 | $198,000 | $73.43 | | |
| ISLANDEMS | Hospital GEN (EMS) | 0.5000000000 | $198,000 | $198,000 | $99.00 | | |
| LIB | Library Sno-Isle GEN | 0.3153421757 | $198,000 | $198,000 | $62.44 | | |
| NWHIDPRMT | P & R N Whidbey GEN | 0.2004466701 | $198,000 | $198,000 | $39.69 | | |
| SCH201MO | School 201 Enrichment | 1.8559231640 | $198,000 | $198,000 | $367.47 | | |
| ST | State School | 1.3035497053 | $198,000 | $198,000 | $258.10 | | |
| ST2 | State School Part 2 | 0.8169543533 | $198,000 | $198,000 | $161.76 | | |
| | Total Tax Rate: | 8.4728839852 | | | | | |
| | | | | Taxes w/Current Exemptions: | $1,677.64 | | |
| | | | | Taxes w/o Exemptions: | $1,677.64 | | |
Improvement / Building
| Improvement #1: | RESIDENTIAL | State Code: | A1 | 876.0 sqft | Value: | $133,000 |
| Bathrooms: | 1.5 | Bedrooms: | 2 | | Ceiling: | DRY WALL SPRAYED | Exterior Wall/Cover: | CONCRETE BLOCK | | Floor Covering: | CARPET/VINYL 80-20 | Floor Structure: | WOOD W/SUBFLOOR | | Foundation: | CONCRETE BLOCKS | Heating: | BASEBOARD ELECTRIC | | Interior Finish: | DRYWALL PAINT | Plumbing Fixture Cnt: | 8 | | Roof Slope: | FLAT | Roof Structure/Cover: | CJ BUILT-UP ROCK |
|
| | Type | Description | Class CD | Sub Class CD | Year Built | Area |
| | BAS | BASE/MAIN FLOOR | 2 | 0 | 1975 | 876.0 |
| | OWR | OPEN WOOD PORCH W/STEPS/ROOF | 2 | 0 | 1975 | 156.0 |
| | oSIT | Site Improvements | 2 | 0 | 1975 | 0.0 |
Sketch
Property Image
Land
| 1 | 61 | MULTIPLE RESIDENCES | 0.0000 | 3410.00 | 0.00 | 0.00 | 1.00 | $65,000 | $0 |
Roll Value History
| 2026 | N/A | N/A | N/A | N/A | N/A |
| 2025 | $133,000 | $65,000 | $0 | $198,000 | $198,000 |
| 2024 | $137,532 | $45,000 | $0 | $182,532 | $182,532 |
| 2023 | $139,313 | $45,000 | $0 | $184,313 | $184,313 |
| 2022 | $111,813 | $45,000 | $0 | $156,813 | $156,813 |
| 2021 | $98,856 | $25,000 | $0 | $123,856 | $123,856 |
| 2020 | $79,292 | $45,000 | $0 | $124,292 | $124,292 |
| 2019 | $56,030 | $70,000 | $0 | $126,030 | $126,030 |
| 2018 | $56,256 | $65,000 | $0 | $121,256 | $121,256 |
| 2017 | $56,709 | $20,631 | $0 | $77,340 | $77,340 |
| 2016 | $57,614 | $20,631 | $0 | $78,245 | $78,245 |
| 2015 | $58,519 | $20,631 | $0 | $79,150 | $79,150 |
| 2014 | $62,142 | $20,631 | $0 | $82,773 | $82,773 |
| 2013 | $62,142 | $20,631 | $0 | $82,773 | $82,773 |
| 2012 | $62,142 | $20,631 | $0 | $82,773 | $82,773 |
| 2011 | $62,142 | $20,631 | $0 | $82,773 | $82,773 |
| 2010 | $65,960 | $20,631 | $0 | $86,591 | $86,591 |
| 2009 | $68,871 | $37,510 | $0 | $106,381 | $106,381 |
| 2008 | $74,422 | $44,330 | $0 | $118,752 | $118,752 |
| 2007 | $75,397 | $44,330 | $0 | $119,727 | $119,727 |
Deed and Sales History
| 1 | 11/18/2023 | WD | Warranty Deed | RALEY, DOUGLAS | ROOD, AMY S | | | $216,500.00 | 58569 | 4566913 |
| 2 | 04/07/2022 | QCD | Quit Claim Deed | RALEY, MARIBEL | RALEY, DOUGLAS | | | $0.00 | 52734 | 4543469 |
| 3 | 04/13/2022 | WD | Warranty Deed | STOEFFLER, TROY | RALEY, DOUGLAS | | | $198,000.00 | 52733 | 4543468 |
| 4 | 02/24/2020 | WD | Warranty Deed | WANG, XU | STOEFFLER, TROY | | | $129,900.00 | 42245 | 4482143 |
| 5 | 02/07/2017 | WD | Warranty Deed | GOLDKAMP, STEPHEN A / MAY A | WANG, XU | | | $102,500.00 | 28038 | 4416852 |
| 6 | 04/01/1997 | WD | Warranty Deed | MASSE, EDWARD J | GOLDKAMP, STEPHEN A | | | $51,000.00 | 71093 | 97004931 |
| 7 | 05/01/1990 | QCD | Quit Claim Deed | MASSE, E J | MASSE, EDWARD J | | | $0.00 | 2696 | 90008890 |
| 8 | 12/01/1978 | OTHER | Other - Misc. Documents | Unknown | MASSE, E J | | | $34,500.00 | 86193 | 344933 |
Payout Agreement
| No payout information available.. |