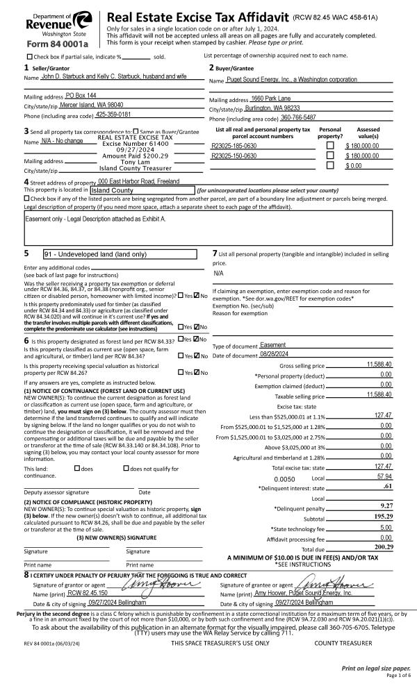
Property
Account |
| Property ID: | 334613 | Abbreviated Legal Description: | OLYMPIC GDNS 1-3 - S95' OF E80' OF W240' OF LOT 1 BLK 2 |
| Geographic ID: | S7600-00-02001-3 | Agent Code: | |
| Type: | Real | | |
| Tax Area: | 100 - APPRAISER-OH Schl Dist, in OH | Land Use Code | 11 |
| Open Space: | N | DFL | N |
| Historic Property: | N | Remodel Property: | N |
| Multi-Family Redevelopment: | N | | |
| Township: | | Section: | |
| Range: | |
Location |
| Address: | 564 SE 4TH AVE OAK HARBOR, WA 98277 | Mapsco: | |
| Neighborhood: | Cycle 1 | Map ID: | 88 |
| Neighborhood CD: | 1 |
Owner |
| Name: | REISENAUER, TYLER | Owner ID: | 295643 |
| Mailing Address: | LACEY REISENAUER 564 SE 4TH AVE OAK HARBOR, WA 98277 | % Ownership: | 100.0000000000% |
| | | Exemptions: | |
Taxes and Assessment Details
Values
| (+) Improvement Homesite Value: | + | $0 | |
| (+) Improvement Non-Homesite Value: | + | $221,117 | |
| (+) Land Homesite Value: | + | $0 | |
| (+) Land Non-Homesite Value: | + | $180,000 | |
| (+) Curr Use (HS): | + | $0 | $0 |
| (+) Curr Use (NHS): | + | $0 | $0 |
| | | -------------------------- | |
| (=) Market Value: | = | $401,117 | |
| (–) Productivity Loss: | – | $0 | |
| | | -------------------------- | |
| (=) Subtotal: | = | $401,117 | |
| (+) Senior Appraised Value: | + | $0 | |
| (+) Non-Senior Appraised Value: | + | $401,117 | |
| | | -------------------------- | |
| (=) Total Appraised Value: | = | $401,117 | |
| (–) Senior Exemption Loss: | – | $0 | |
| (–) Exemption Loss: | – | $0 | |
| | | -------------------------- | |
| (=) Taxable Value: | = | $401,117 | |
Taxing Jurisdiction
| Owner: | REISENAUER, TYLER | | |
| % Ownership: | 100.0000000000% | | |
| Total Value: | $401,117 | | |
| Tax Area: | 100 - APPRAISER-OH Schl Dist, in OH |
| CF | Conservation Futures | 0.0316035091 | $401,117 | $401,117 | $12.68 | | |
| CEM1 | Cemetery #1 | 0.0040320932 | $401,117 | $401,117 | $1.62 | | |
| COH | City of Oak Harbor | 2.3001546061 | $401,117 | $401,117 | $922.63 | | |
| OAKBOND | City of Oak Harbor BOND | 0.1926904192 | $401,117 | $401,117 | $77.29 | | |
| HOBOND | Hospital BOND | 0.1910887512 | $401,117 | $401,117 | $76.65 | | |
| HOGEN | Hospital GEN | 0.3902502903 | $401,117 | $401,117 | $156.54 | | |
| CE | County Current Expense | 0.3708482477 | $401,117 | $401,117 | $148.75 | | |
| ISLANDEMS | Hospital GEN (EMS) | 0.5000000000 | $401,117 | $401,117 | $200.56 | | |
| LIB | Library Sno-Isle GEN | 0.3153421757 | $401,117 | $401,117 | $126.49 | | |
| NWHIDPRMT | P & R N Whidbey GEN | 0.2004466701 | $401,117 | $401,117 | $80.40 | | |
| SCH201MO | School 201 Enrichment | 1.8559231640 | $401,117 | $401,117 | $744.44 | | |
| ST | State School | 1.3035497053 | $401,117 | $401,117 | $522.88 | | |
| ST2 | State School Part 2 | 0.8169543533 | $401,117 | $401,117 | $327.69 | | |
| | Total Tax Rate: | 8.4728839852 | | | | | |
| | | | | Taxes w/Current Exemptions: | $3,398.62 | | |
| | | | | Taxes w/o Exemptions: | $3,398.62 | | |
Improvement / Building
| Improvement #1: | RESIDENTIAL | State Code: | Y | 1124.0 sqft | Value: | $221,117 |
| Bathrooms: | 1.5 | Bedrooms: | 3 | | Ceiling: | DRYWALL PAINTED | Exterior Wall/Cover: | VINYL | | Floor Covering: | CERAMIC TILE/HWD 40/60 | Floor Structure: | WOOD W/SUBFLOOR | | Foundation: | CONCRETE BLOCKS | Heating: | FHA GAS | | Interior Finish: | DRYWALL PAINT | Plumbing Fixture Cnt: | 9 | | Roof Slope: | 5" IN 12" | Roof Structure/Cover: | CJ ASPHALT |
|
| | Type | Description | Class CD | Sub Class CD | Year Built | Area |
| | BAS | BASE/MAIN FLOOR | 3 | 0 | 1957 | 1124.0 |
| | OP4 | OPEN PORCH W/CEILING-ROOF | 3 | 0 | 1957 | 63.0 |
| | AGR | ATTACHED GARAGE | 3 | 0 | 1957 | 294.0 |
| | OWC | OPEN WOOD PORCH W/STEPS/ROOF/C | 3 | 0 | 1957 | 69.5 |
Sketch
Property Image
Land
| 1 | 13 | SQ (06001-08000) | 0.0000 | 0.00 | 0.00 | 0.00 | 1.00 | $180,000 | $0 |
Roll Value History
| 2026 | N/A | N/A | N/A | N/A | N/A |
| 2025 | $221,117 | $180,000 | $0 | $401,117 | $401,117 |
| 2024 | $224,057 | $170,000 | $0 | $394,057 | $394,057 |
| 2023 | $225,239 | $170,000 | $0 | $395,239 | $395,239 |
| 2022 | $206,673 | $160,000 | $0 | $366,673 | $366,673 |
| 2021 | $182,075 | $120,000 | $0 | $302,075 | $302,075 |
| 2020 | $147,872 | $100,000 | $0 | $247,872 | $247,872 |
| 2019 | $104,019 | $140,000 | $0 | $244,019 | $244,019 |
| 2018 | $104,374 | $125,000 | $0 | $229,374 | $229,374 |
| 2017 | $105,510 | $110,000 | $0 | $215,510 | $215,510 |
| 2016 | $107,017 | $90,000 | $0 | $197,017 | $197,017 |
| 2015 | $108,523 | $70,000 | $0 | $178,523 | $178,523 |
| 2014 | $110,030 | $55,000 | $0 | $165,030 | $165,030 |
| 2013 | $111,539 | $55,000 | $0 | $166,539 | $166,539 |
| 2012 | $113,046 | $60,000 | $0 | $173,046 | $173,046 |
| 2011 | $113,433 | $50,000 | $0 | $163,433 | $163,433 |
| 2010 | $121,946 | $50,000 | $0 | $171,946 | $171,946 |
| 2009 | $125,613 | $60,000 | $0 | $185,613 | $185,613 |
| 2008 | $127,261 | $72,000 | $0 | $199,261 | $199,261 |
| 2007 | $128,906 | $72,000 | $0 | $200,906 | $200,906 |
Deed and Sales History
| 1 | 08/06/2020 | WD | Warranty Deed | BRIGHT ROCK ASSESTS, LLC | REISENAUER, TYLER | | | $322,500.00 | 44244 | 4493897 |
| 2 | 07/03/2019 | QCD | Quit Claim Deed | MCARTHUR, STEPHEN B | BRIGHT ROCK ASSESTS, LLC | | | $0.00 | 39305 | 4466712 |
| 3 | 06/14/2019 | WD | Warranty Deed | SECRETARY OF HOUSING AND URBAN DEVELOPMENT | MCARTHUR, STEPHEN B | | | $0.00 | 39057 | 4465717 |
| 4 | 04/16/2019 | WD | Warranty Deed | BANK OF AMERICA | SECRETARY OF HOUSING AND URBAN DEVELOPMENT | | | $10.00 | 37987 | 4461052 |
| 5 | 04/16/2019 | SHERIFFD | Sheriff Deed | MCMURDO, GEORGE R | BANK OF AMERICA | | | $200,250.00 | 37612 | 4459367 |
| 6 | 07/01/1988 | WD | Warranty Deed | STACH, RAYMOND J | MCMURDO, GEORGE R | | | $59,000.00 | 82336 | 88008754 |
| 7 | 11/01/1985 | WD | Warranty Deed | HENDERSON, HARRY | STACH, RAYMOND J | | | $54,900.00 | 53310 | 85013095 |
| 8 | 01/01/1900 | OTHER | Other - Misc. Documents | Unknown | HENDERSON, HARRY | | | $0.00 | 0 | 0 |
Payout Agreement
| No payout information available.. |