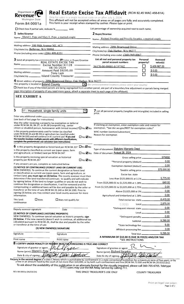
Property
Account |
| Property ID: | 334668 | Abbreviated Legal Description: | OLYMPIC GDNS S91.8'OF W240'OF L2 BLK 2 & N13.2'OF W240' L1 BLK 2 |
| Geographic ID: | S7600-00-02002-2 | Agent Code: | |
| Type: | Real | | |
| Tax Area: | 100 - APPRAISER-OH Schl Dist, in OH | Land Use Code | 11 |
| Open Space: | N | DFL | N |
| Historic Property: | N | Remodel Property: | N |
| Multi-Family Redevelopment: | N | | |
| Township: | | Section: | |
| Range: | |
Location |
| Address: | 316 SE ELY ST OAK HARBOR, WA 98277 | Mapsco: | |
| Neighborhood: | Cycle 1 | Map ID: | 88 |
| Neighborhood CD: | 1 |
Owner |
| Name: | DURKEE, MARK E | Owner ID: | 304803 |
| Mailing Address: | 316 SE ELY ST OAK HARBOR, WA 98277 | % Ownership: | 100.0000000000% |
| | | Exemptions: | SNR/DSBL |
Taxes and Assessment Details
Values
| (+) Improvement Homesite Value: | + | $306,271 | |
| (+) Improvement Non-Homesite Value: | + | $0 | |
| (+) Land Homesite Value: | + | $190,000 | |
| (+) Land Non-Homesite Value: | + | $0 | |
| (+) Curr Use (HS): | + | $0 | $0 |
| (+) Curr Use (NHS): | + | $0 | $0 |
| | | -------------------------- | |
| (=) Market Value: | = | $496,271 | |
| (–) Productivity Loss: | – | $0 | |
| | | -------------------------- | |
| (=) Subtotal: | = | $496,271 | |
| (+) Senior Appraised Value: | + | $375,447 | |
| (+) Non-Senior Appraised Value: | + | $0 | |
| | | -------------------------- | |
| (=) Total Appraised Value: | = | $375,447 | |
| (–) Senior Exemption Loss: | – | $225,268 | |
| (–) Exemption Loss: | – | $0 | |
| | | -------------------------- | |
| (=) Taxable Value: | = | $150,179 | |
Taxing Jurisdiction
| Owner: | DURKEE, MARK E | | |
| % Ownership: | 100.0000000000% | | |
| Total Value: | $496,271 | | |
| Tax Area: | 100 - APPRAISER-OH Schl Dist, in OH |
| CF | Conservation Futures | 0.0316035091 | $496,271 | $150,179 | $4.75 | | |
| CEM1 | Cemetery #1 | 0.0040320932 | $496,271 | $150,179 | $0.61 | | |
| COH | City of Oak Harbor | 2.3001546061 | $496,271 | $150,179 | $345.43 | | |
| OAKBOND | City of Oak Harbor BOND | 0.1926904192 | $496,271 | $150,179 | $28.94 | | |
| HOBOND | Hospital BOND | 0.0000000000 | $496,271 | $0 | $0.00 | | |
| HOGEN | Hospital GEN | 0.3902502903 | $496,271 | $150,179 | $58.61 | | |
| CE | County Current Expense | 0.3708482477 | $496,271 | $150,179 | $55.69 | | |
| ISLANDEMS | Hospital GEN (EMS) | 0.5000000000 | $496,271 | $150,179 | $75.09 | | |
| LIB | Library Sno-Isle GEN | 0.3153421757 | $496,271 | $150,179 | $47.36 | | |
| NWHIDPRMT | P & R N Whidbey GEN | 0.2004466701 | $496,271 | $150,179 | $30.10 | | |
| SCH201MO | School 201 Enrichment | 0.0000000000 | $496,271 | $0 | $0.00 | | |
| ST | State School | 1.3035497053 | $496,271 | $150,179 | $195.77 | | |
| ST2 | State School Part 2 | 0.0000000000 | $496,271 | $0 | $0.00 | | |
| | Total Tax Rate: | 5.6089177167 | | | | | |
| | | | | Taxes w/Current Exemptions: | $842.35 | | |
| | | | | Taxes w/o Exemptions: | $4,204.85 | | |
Improvement / Building
| Improvement #1: | RESIDENTIAL | State Code: | Y | 2228.0 sqft | Value: | $306,271 |
| Bathrooms: | 3 | Bedrooms: | 4 | | Ceiling: | DRYWALL PAINTED | Exterior Wall/Cover: | WOOD SIDING | | Floor Covering: | CARPET/VINYL 80-20 | Floor Structure: | WOOD W/SUBFLOOR | | Foundation: | CONCRETE | Heating: | BASEBOARD ELECTRIC | | Interior Finish: | DRYWALL PAINT | Plumbing Fixture Cnt: | 12 | | Roof Slope: | 4" IN 12" | Roof Structure/Cover: | CJ ASPHALT |
|
| | Type | Description | Class CD | Sub Class CD | Year Built | Area |
| | BAS | BASE/MAIN FLOOR | 3 | 0 | 1964 | 1498.0 |
| | DWN | DOWNSTAIRS LIVING AREA | 3 | 0 | 1964 | 730.0 |
| | OP1 | OPEN PORCH SLAB | 3 | 0 | 1964 | 384.0 |
| | BGR | BASEMENT GARAGE | 3 | 0 | 1964 | 576.0 |
| | UTY | STORAGE/UTILITY | 3 | 0 | 1964 | 192.0 |
| | OP4 | OPEN PORCH W/CEILING-ROOF | 3 | 0 | 1964 | 98.0 |
Sketch
Property Image
Land
| 1 | 16 | AC (00.51-01.00) | 0.5700 | 24829.20 | 0.00 | 0.00 | 1.00 | $190,000 | $0 |
Roll Value History
| 2026 | N/A | N/A | N/A | N/A | N/A |
| 2025 | $306,271 | $190,000 | $0 | $496,271 | $150,179 |
| 2024 | $317,019 | $175,000 | $0 | $492,019 | $150,179 |
| 2023 | $309,820 | $180,000 | $0 | $489,820 | $150,179 |
| 2022 | $284,282 | $180,000 | $0 | $464,282 | $150,179 |
| 2021 | $250,447 | $125,000 | $0 | $375,447 | $150,179 |
| 2020 | $244,399 | $100,000 | $0 | $344,399 | $344,399 |
| 2019 | $187,409 | $150,000 | $0 | $337,409 | $337,409 |
| 2018 | $188,000 | $125,000 | $0 | $313,000 | $313,000 |
| 2017 | $155,175 | $110,000 | $0 | $265,175 | $265,175 |
| 2016 | $157,456 | $90,000 | $0 | $247,456 | $247,456 |
| 2015 | $159,166 | $70,000 | $0 | $229,166 | $229,166 |
| 2014 | $161,440 | $65,000 | $0 | $226,440 | $226,440 |
| 2013 | $163,714 | $65,000 | $0 | $228,714 | $228,714 |
| 2012 | $165,987 | $65,000 | $0 | $230,987 | $230,987 |
| 2011 | $166,574 | $65,000 | $0 | $231,574 | $231,574 |
| 2010 | $180,478 | $65,000 | $0 | $245,478 | $245,478 |
| 2009 | $188,244 | $75,000 | $0 | $263,244 | $263,244 |
| 2008 | $188,272 | $78,000 | $0 | $266,272 | $266,272 |
| 2007 | $190,641 | $78,000 | $0 | $268,641 | $268,641 |
Deed and Sales History
| 1 | 09/14/2021 | PRD | Personal Representatives Deed | DURKEE, MARY L | DURKEE, MARY L | | | $0.00 | 50260 | 4530402 |
| 2 | 09/15/2010 | ESTSEPPROP | Establish Separate Property | DURKEE, MILES E | DURKEE, MARY L | | | $0.00 | 2482 | 4282341 |
Payout Agreement
| No payout information available.. |