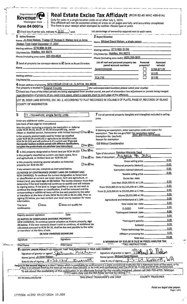
Property
Account |
| Property ID: | 334962 | Abbreviated Legal Description: | OLYMPIC GDNS 6-W75'LOT 8 BLK 2 EX N90.4' |
| Geographic ID: | S7600-00-02806-0 | Agent Code: | |
| Type: | Real | | |
| Tax Area: | 100 - APPRAISER-OH Schl Dist, in OH | Land Use Code | 11 |
| Open Space: | N | DFL | N |
| Historic Property: | N | Remodel Property: | N |
| Multi-Family Redevelopment: | N | | |
| Township: | | Section: | |
| Range: | |
Location |
| Address: | 950 SE 4TH AVE OAK HARBOR, WA 98277 | Mapsco: | |
| Neighborhood: | Cycle 1 | Map ID: | 89 |
| Neighborhood CD: | 1 |
Owner |
| Name: | RUSSELL, AUSTIN | Owner ID: | 312745 |
| Mailing Address: | 950 SE 4TH AVE OAK HARBOR, WA 98277 | % Ownership: | 100.0000000000% |
| | | Exemptions: | |
Taxes and Assessment Details
Values
| (+) Improvement Homesite Value: | + | $0 | |
| (+) Improvement Non-Homesite Value: | + | $300,960 | |
| (+) Land Homesite Value: | + | $0 | |
| (+) Land Non-Homesite Value: | + | $180,000 | |
| (+) Curr Use (HS): | + | $0 | $0 |
| (+) Curr Use (NHS): | + | $0 | $0 |
| | | -------------------------- | |
| (=) Market Value: | = | $480,960 | |
| (–) Productivity Loss: | – | $0 | |
| | | -------------------------- | |
| (=) Subtotal: | = | $480,960 | |
| (+) Senior Appraised Value: | + | $0 | |
| (+) Non-Senior Appraised Value: | + | $480,960 | |
| | | -------------------------- | |
| (=) Total Appraised Value: | = | $480,960 | |
| (–) Senior Exemption Loss: | – | $0 | |
| (–) Exemption Loss: | – | $0 | |
| | | -------------------------- | |
| (=) Taxable Value: | = | $480,960 | |
Taxing Jurisdiction
| Owner: | RUSSELL, AUSTIN | | |
| % Ownership: | 100.0000000000% | | |
| Total Value: | $480,960 | | |
| Tax Area: | 100 - APPRAISER-OH Schl Dist, in OH |
| CF | Conservation Futures | 0.0316035091 | $480,960 | $480,960 | $15.20 | | |
| CEM1 | Cemetery #1 | 0.0040320932 | $480,960 | $480,960 | $1.94 | | |
| COH | City of Oak Harbor | 2.3001546061 | $480,960 | $480,960 | $1,106.28 | | |
| OAKBOND | City of Oak Harbor BOND | 0.1926904192 | $480,960 | $480,960 | $92.68 | | |
| HOBOND | Hospital BOND | 0.1910887512 | $480,960 | $480,960 | $91.91 | | |
| HOGEN | Hospital GEN | 0.3902502903 | $480,960 | $480,960 | $187.69 | | |
| CE | County Current Expense | 0.3708482477 | $480,960 | $480,960 | $178.36 | | |
| ISLANDEMS | Hospital GEN (EMS) | 0.5000000000 | $480,960 | $480,960 | $240.48 | | |
| LIB | Library Sno-Isle GEN | 0.3153421757 | $480,960 | $480,960 | $151.67 | | |
| NWHIDPRMT | P & R N Whidbey GEN | 0.2004466701 | $480,960 | $480,960 | $96.41 | | |
| SCH201MO | School 201 Enrichment | 1.8559231640 | $480,960 | $480,960 | $892.62 | | |
| ST | State School | 1.3035497053 | $480,960 | $480,960 | $626.96 | | |
| ST2 | State School Part 2 | 0.8169543533 | $480,960 | $480,960 | $392.92 | | |
| | Total Tax Rate: | 8.4728839852 | | | | | |
| | | | | Taxes w/Current Exemptions: | $4,075.12 | | |
| | | | | Taxes w/o Exemptions: | $4,075.12 | | |
Improvement / Building
| Improvement #1: | RESIDENTIAL | State Code: | Y | 1555.0 sqft | Value: | $300,960 |
| Bathrooms: | 2 | Bedrooms: | 4 | | Ceiling: | DRYWALL PAINTED | Exterior Wall/Cover: | CEMENT FIBER | | Floor Covering: | VINYL TILE | Floor Structure: | WOOD W/SUBFLOOR | | Foundation: | CONCRETE | Heating: | FHA ELECTRIC | | Interior Finish: | DRYWALL PAINT | Plumbing Fixture Cnt: | 10 | | Roof Slope: | 10" IN 12" | Roof Structure/Cover: | CJ ALUMINIUM HEAVY |
|
| | Type | Description | Class CD | Sub Class CD | Year Built | Area |
| | BAS | BASE/MAIN FLOOR | 3 | 0 | 1949 | 1303.0 |
| | OWP | OPEN WOOD PORCH W/STEPS | 3 | 0 | 1949 | 107.0 |
| | OWR | OPEN WOOD PORCH W/STEPS/ROOF | 3 | 0 | 1949 | 180.0 |
| | UPH | HALF STORY | 3 | 0 | 1949 | 252.0 |
| | OWP | OPEN WOOD PORCH W/STEPS | 3 | 0 | 1949 | 76.0 |
| | CPD | OPEN CARPORT DIRT FLOOR | 3 | 0 | 1949 | 484.0 |
Sketch
Property Image
Land
| 1 | 14 | SQ (08001-12000) | 0.3116 | 13573.30 | 0.00 | 0.00 | 1.00 | $180,000 | $0 |
Roll Value History
| 2026 | N/A | N/A | N/A | N/A | N/A |
| 2025 | $300,960 | $180,000 | $0 | $480,960 | $480,960 |
| 2024 | $304,577 | $170,000 | $0 | $474,577 | $474,577 |
| 2023 | $300,960 | $170,000 | $0 | $470,960 | $470,960 |
| 2022 | $255,473 | $160,000 | $0 | $415,473 | $415,473 |
| 2021 | $224,787 | $125,000 | $0 | $349,787 | $349,787 |
| 2020 | $148,734 | $100,000 | $0 | $248,734 | $248,734 |
| 2019 | $108,627 | $140,000 | $0 | $248,627 | $248,627 |
| 2018 | $108,988 | $125,000 | $0 | $233,988 | $233,988 |
| 2017 | $75,193 | $110,000 | $0 | $185,193 | $185,193 |
| 2016 | $76,405 | $90,000 | $0 | $166,405 | $166,405 |
| 2015 | $77,618 | $70,000 | $0 | $147,618 | $147,618 |
| 2014 | $78,832 | $55,000 | $0 | $133,832 | $133,832 |
| 2013 | $80,044 | $55,000 | $0 | $135,044 | $135,044 |
| 2012 | $81,257 | $60,000 | $0 | $141,257 | $141,257 |
| 2011 | $72,707 | $50,000 | $0 | $122,707 | $122,707 |
| 2010 | $80,306 | $50,000 | $0 | $130,306 | $130,306 |
| 2009 | $83,896 | $60,000 | $0 | $143,896 | $143,896 |
| 2008 | $85,127 | $72,000 | $0 | $157,127 | $157,127 |
| 2007 | $86,358 | $72,000 | $0 | $158,358 | $158,358 |
Deed and Sales History
| 1 | 06/11/2024 | WD | Warranty Deed | HENNESSEY, ALLISON ROSE | RUSSELL, AUSTIN | | | $498,000.00 | 60305 | 4573389 |
| 2 | 04/10/2023 | WD | Warranty Deed | CYBULA, DANIEL | HENNESSEY, ALLISON ROSE | | | $481,000.00 | 56409 | 4558811 |
| 3 | 05/06/2022 | WD | Warranty Deed | JOHNSON, TROY | CYBULA, DANIEL | | | $490,000.00 | 53053 | 4544922 |
| 4 | 09/30/2020 | WD | Warranty Deed | PARSONS, GLENNA | JOHNSON, TROY | | | $395,000.00 | 45045 | 4498315 |
| 5 | 05/12/2020 | WD | Warranty Deed | MARIS, MARK A | PARSONS, GLENNA | | | $190,000.00 | 43066 | 4486881 |
| 6 | 07/29/2004 | WD | Warranty Deed | CARROLL TRYSTEE, THOMAS | MARIS, MARK A | | | $111,000.00 | 43418 | 4108253 |
| 7 | 02/04/2004 | 5 | DNU - Marriage License/Name Change | CARROLL, THOMAS | CARROLL TRYSTEE, THOMAS | | | $0.00 | 40472 | 4090692 |
| 8 | 01/01/1900 | OTHER | Other - Misc. Documents | Unknown | CARROLL, THOMAS | | | $0.00 | 0 | 0 |
Payout Agreement
| No payout information available.. |